Винтовото стълбище с право се счита за кралица на стълбищните системи. Винаги луксозен, с ненадминат дизайн - тази структура служи като централен декоративен елемент, около който е оформен целият интериор. Спиралните стълбищни системи са изключително функционални, но не заемат много полезно пространство. Прегледът "Винтови стълби до втория етаж в частна къща: снимки, цени за конструкции" ще помогне да се проучат съществуващите опции за стълби и да се даде предимство на функционален, безопасен и компактен дизайн.
Съдържание
- 1 Вита стълба: видове конструкции
- 2 Изчисляване на спирални стълби
- 3 Направи си сам спирални стълби. Чертежи и диаграми на конструкции
- 4 Инсталиране на спирално стълбище със собствените си ръце, изработени от метал: строителни чертежи
- 5 Изграждане на спирални стълби до втория етаж в частна къща: снимка в интериора
- 6 Винтови стълби до втория етаж в частна къща: снимки, цени, производители
Вита стълба: видове конструкции
Спиралните стълби са най-атрактивните и необичайни дизайни. Те могат да се различават по материалите, използвани за направата им, и по стила на конструкцията. Спиралните стълби се класифицират в зависимост от метода за поддържане на стъпалата (стъпалата):
- опора на стъпала по стени и стълб - при такъв дизайн стъпалата на клиновидни спирални стълби опират широката си част върху периметърните стени, докато тясната част на стъпалата има опора под формата на среден стълб. Опорният стълб е направен от камък или може да бъде набран от удебелени стъпала;
- конзолно закрепване на стъпала около опорния стълб - стъпалата на такава винтова система са конзолни към централния стълб под формата на стълб. Закрепването на стъпалата се оказва доста твърдо, така че такава стълба може да бъде монтирана по желание до стената;
- опора на стъпала върху извита тетива и ограда - такъв дизайн на стълбище не предвижда централна опора. Стъпалата са монтирани в спирално извити тетиви, които в същото време служат като прегради. Производството на такава винтова конструкция е изпълнено с определени трудности, но има много привлекателен и оригинален външен вид;
- стъпалата са резбовани с тясна част върху поддържащата тръба на корпуса - най-често срещаният начин за закрепване на стъпалата: металните протектори се поставят конзолно върху вътрешен опорен стълб под формата на тръба. При този дизайн е важно тръбата да е с диаметър най-малко 50 mm, тъй като тя служи като поддържащ елемент в стълбищната система.
За производството на спирални стълби се използват различни материали, включително:
- метал - неръждаема стомана, легирана стомана, месинг, полиран алуминий, чугун;
- дърво - дъб, клен, бук, лиственица, бор и други;
- камък, тухла, керамика, стъкло, мрамор.
За създаването на винтови системи се използват различни комбинации от материали, което води до оригинални и необичайни дизайни. Основното им предимство е висока якост и устойчивост на големи натоварвания.
Изчисляване на спирални стълби
Изчисляването на размерите на вита стълба до голяма степен зависи от предназначението на конструкцията: дали тя ще бъде основна или вторична. Ако стълбището играе ролята на основното, препоръчва се размерът на стъпалата му да бъде с дължина не по-малка от 90 см, а диаметърът на отвора, в който ще бъде монтиран, е 200 см. Оказва се, че диаметърът на отвора трябва да бъде приблизително 20 см повече от дължината на две стъпала. Този размер на отвора се обяснява с необходимостта от оборудване на спиралното стълбище с ограда и парапети. След това между парапети а на повърхността на отвора остава празнина от 10 см, което ще допринесе за удобна опора на парапета. В случай на спомагателно вита стълба е достатъчен отвор с диаметър 140 см и дължина на стъпалото 60 см. Обикновено такива стълби се използват за изкачване до тавана или слизане в мазето.
Дизайнът на спиралните стълби е такъв, че при движение по тях се използва не цялата дължина на стъпалата, а само широката му част. Ако например проектираното стълбище има ширина на стъпалото от 90 см, тогава част от тази стъпка ще бъде прикрепена към опорния стълб, от другата страна ще бъде прикрепена ограда. По този начин за ходене ще останат около 80 см. Но като се има предвид, че стъпалата на винтовата конструкция имат подреждане, тази част от тях, която е прикрепена към стълба, ще надвисне над част от следващата стъпка. Следователно, ширината на стъпалото, подходяща за движение, ще бъде намалена с още 25%. В резултат се оказва, че от цялата стъпка с ширина 90 cm, около 50 cm ще бъдат използвани за движение.
За да се постигне по-удобно движение, диаметърът на отвора и размерите на винтовото стълбище се увеличават. Размерът на отвора обаче не трябва да се взема повече от 300 см, в този случай пространството под заетото стълбище ще ви позволи да инсталирате маршируващата конструкция.
Направи си сам спирални стълби. Чертежи и диаграми на конструкции
Многобройни снимки на спирални стълби до втория етаж със собствените си ръце показват, че независимото производство на такива конструкции е напълно възможно. Когато започвате да произвеждате стълби, е необходимо да определите мястото на монтаж, изчислете всички параметри, разбирайте чертежите на спирални стълби.
Например, помислете за вита стълба с дървени клиновидни стъпала и носеща опора под формата на метален стълб. Такава стълба може да бъде инсталирана както до стената, така и в средата на стаята.
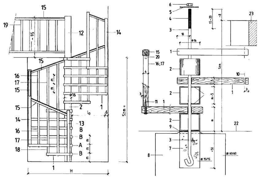
Схема за проектиране на стълба
Конструкцията на спиралното стълбище се основава на носеща опора под формата на пръчка, към която са прикрепени стъпалата. Като правило за опорния стълб се използва масивна метална тръба. Стъпалата се поддържат от втулки, прикрепени към багажника. Можете да ги направите сами, като нарежете стоманената тръба на цилиндри с определени размери. От двете страни към цилиндрите-втулките са заварени облицовки, които имат отвори за монтирането им върху опорния стълб.
За да придадат на втулките естетичен вид, те се залепват с декоративен филм с подходяща текстура.Това може да бъде имитация на дърво или мрамор, в зависимост от комбинацията с материала за стъпалата. Понякога като втулки се използват цилиндрични дървени елементи. Основното тук е краищата на всички втулки да са успоредни един на друг.
Как се прави спиралното стълбище: процедура за монтаж
Монтажът на стълбата започва с монтажа на лагерната опора. Дължината му трябва да е със 7 см повече от сумата от височината на помещението и дебелината на горния таван. В горния край на опората се изрязва конец с дължина около 20 см, а долният ръб на опората се бетонира.
Всички необходими части на стълбите трябва да бъдат подготвени предварително: стъпала, дистанционни втулки, маншети, съединители. Всички части са монтирани последователно върху лагерна опора. След като бъде монтиран последният етап, цялата система се закрепва с диск и завинтва закрепваща гайка върху резбите.
Полезен съвет! Така че с течение на времето стълбата да не скърца при ходене, е необходимо да затегнете горната гайка на крепежния елемент, тъй като стъпалата се свиват.
След това се закрепват всички елементи на оградата, проверява се фиксирането на стъпалата и прътите на препятствията и накрая се фиксира горната гайка за закрепване.
Обяснения за схемата за инсталиране на стълбата:
| 1 - стълбищни стъпала; | 12.13 - горни и долни парапетни стълбове; |
| 2 - втулка за дистанционер на стъпалата; | 14 - ъглов стълб на оградата; |
| 3 - опора на лагера; | 15 - парапети; |
| 4 - резба за закрепване на багажника; | 16 - къс стълб за ограда; |
| 5 - диск за гайка; | 17 - дълъг стълб за ограда; |
| 6 - крепежна гайка; | 18 - допълнителен стълб за ограда; |
| 7 - закрепване на опората чрез бетониране; | 19 - балюстрада; |
| 8 - основата на къщата; | 20 - свързващ щифт; |
| 9 - перваз; | 21 - подплата на ръкава; |
| 10 - отвор за оградата; | 22 - подова повърхност; |
| 11 - закрепване на оградата; | 23 - припокриване. |
Инсталиране на спирално стълбище със собствените си ръце, изработени от метал: строителни чертежи
Винтови стълбища от метал могат да се използват за външна и вътрешна употреба. Ако отвън е монтирано метално стълбище, то трябва да е в хармония с решетките на прозореца и входната врата. В този случай конструкцията на ковани спирални стълби ще бъде напълно подходяща. Ако стълбището е инсталирано на закрито, желателно е неговият дизайн да поддържа стила на интериора. Винтовите стълбища от метал могат да бъдат сглобяеми, ляти, заварени.
Когато самостоятелно произвеждате спирални метални стълбища, препоръчително е да се запознаете и да използвате готови схеми и чертежи на конструкции, адаптирани към индивидуалните размери.
Изчисляване на металната конструкция
Изчисляването на всички параметри на системата на стълбата се извършва, като се вземат предвид следните точки:
- за да се движите нагоре по стълбите безопасно, разстоянието между съседните завои на винтовата конструкция трябва да бъде най-малко 2 m;
- ако конструкцията е основната и е инсталирана на закрито, диаметърът на отвора трябва да съответства на размера от 200 см, а дължината на стъпалото трябва да бъде 80 см;
- носещата метална опора трябва да бъде избрана под формата на тръба с диаметър най-малко 5 cm;
- ширината на протектора (стъпалото) по средната линия е най-малко 20 cm;
- ако спиралното стълбище е заобиколено от периметърни стени, разстоянието от парапета до повърхността на стената трябва да бъде около 10 см, така че при движение нагоре по стълбите да е удобно да се държи за перилото;
- не увеличавайте ъгъла на стълбата над 45 градуса;
- спирално метално стълбище трябва да има висококачествена и стабилна ограда;
- препоръчително е да се използват противоплъзгащи се покрития за безопасно движение по стъпалата на външни стълби.

За безопасно движение е по-добре да оборудвате спиралните стълби с надеждни парапети и противоплъзгащо покритие на стъпала
След като сте решили сами да направите метална стълба, трябва да знаете, че такава конструкция ще изисква знания и опит в работата със заваръчна машина. Металните конструкции на винтовите стълби до втория етаж от икономичната класа подлежат на самопроизводство. Устройството на такива стълби предвижда закрепване на стъпала към носеща метална стойка. Всички елементи на стълбището се приготвят отделно в комфортна обстановка, а самото стълбище се сглобява на закрито.
Подготовка на елементи и части от стълбите
Всички елементи на стълбището са предварително закупени съгласно чертежи и схеми:
- тръбата на лагерния багажник се изрязва до размера на височината на помещението;
- тръба с по-голям диаметър със същия размер;
- метален прът за изработване на болтови крепежни елементи;
- метален ъгъл за направа на стъпала.
От тръба с по-голям диаметър се изрязват цилиндри за втулки-ръкави, които ще фиксират стъпалата на определена височина. Дължината на ръкава трябва да съответства на височината на стъпалото. Втулките на ръкавите трябва да бъдат плътно нанизани върху носещата тръба. Ако между тръбата и втулката остане малка междина, пръстените допълнително се заваряват за запечатване. След приключване на работата, всички заварки се почистват.
Металният ъгъл се изрязва според шаблона на стъпалата и рамката за стъпалата се заварява от тези елементи. Към всяка стъпка се заварява ръкав-ръкав и шевовете също се почистват. Болтовете се подготвят.
Спиралните стълби имат много тясна ширина на стъпалото по линията на движение. По време на движение по такава стълба кракът, който стъпва по-близо до централната опора, опира в част от стъпалото с по-малка ширина. Това може да доведе до подхлъзване на крака, особено при движение надолу.
Полезен съвет! За удобство на движението по вита стълба стъпалата на конструкцията не трябва да бъдат оборудвани с щрангове. Това ще постави крака зад линията на стъпалото в тясно пространство.
След това се сглобяват всички части и елементи на винтовото стълбище. Една по една втулките със стъпала са резбовани върху носещата тръба. Когато всички стъпки са сглобени, тяхното положение е подравнено според чертежите и всички части са заварени заедно. Всички заварки са шлифовани. Металната повърхност на стълбите се обработва с грунд и се боядисва. Рамката на стъпалата е изпълнена с облицовъчен материал.
Когато стълбището със стъпала е монтирано, преминете към инсталирането на огради и парапети.
За по-голяма яснота на инсталационния процес можете да използвате снимка на спирални стълби до втория етаж в частна къща.
Изграждане на спирални стълби до втория етаж в частна къща: снимка в интериора
Винтовото стълбище към втория етаж на къщата, освен функционалното си натоварване, носи основния декоративен компонент. В тази връзка се обмисля не само надеждността и удобството на дизайна, но и съответстващият му дизайн.
Ако предпочитате минимализъм или високотехнологичен стил, ще бъде подходящо да изберете метална конструкция. Тези стълби изглеждат леки и винаги ще привличат вниманието. Не забравяйте за ролята на цвета на стълбите. Например, ако стълбището е черно, тъмни мебели, черно-бели картини или килими с комбинация от черно-бели ивици ще го подкрепят добре.
Ако в интериора, който планирате, на стълбището се дава място на вторичен декор, трябва да изберете опции за дизайни, боядисани в светли нюанси. Матово стълбище, което не отразява други предмети, изглежда много по-леко от тъмното и ще бъде почти невидимо. Много хора избират модели, боядисани в ярки цветове, а понякога и с многоцветни стъпки.
Полезен съвет! За да се избегне нараняване при движение нагоре по стълбите, е необходимо да се оборудва конструкцията с висококачествена ограда, тя може да бъде твърда. Това важи особено за семейства с малки деца.
Винтовите стълбища от ценно дърво са подходящи за класическия стил. Такива конструкции също трябва да се поддържат от подходящи мебели, за предпочитане почти да съвпадат. Специален чар дървени стълби прикрепете огради от издълбани балюстради. Кованите парапети в комбинация с дървено стълбище изглеждат не по-малко елегантни.
Използвайки дървено спирално стълбище за свързване на нива, можете да напълните къщата с топлина и комфорт. В края на краищата дървото е материал, който абсорбира енергията на слънцето, вятъра, дъжда и я пренася в цялата стая.
Ако искате да придадете лекота и прозрачност на стълбите, можете да използвате дизайни със стъклени стъпала. Оградите в тези конструкции могат да бъдат избрани по различни начини: дървени парапети в комбинация с алуминиеви балюстради, хоризонтални алуминиеви огради или прозрачни пластмасови огради.
Винтови стълби до втория етаж в частна къща: снимки, цени, производители
Използването на спирални стълби не се ограничава само до частни и селски къщи, те се използват с удоволствие в офиси, хотели, спортни центрове, клубове и други обществени помещения. Благодарение на необичайния си дизайн и оборудване с различни декоративни елементи, винтовите стълби се вписват перфектно в интериора на стая с почти всякакъв дизайн.
Чрез свързване на различни нива помежду си, спиралната конструкция значително спестява пространството, отредено за движение по нея. Това ви позволява да поставите конструкцията дори в малки двуетажни къщи. Този факт повлия на невероятната популярност на спиралните стълби до втория етаж в частни къщи. Снимки, цени за продукти, продавани по поръчка, могат да се видят на уебсайтовете на производителите. Като правило компаниите предлагат свои готови спирални стълби (проверете цените при производителя). Но много от тях могат да въплъщават и дизайнерските проекти на самите клиенти, като вземат предвид индивидуалните размери и личните желания.
Свързана статия:
Таванско стълбище с люк: простота, практичност и достъпност. Видове, предимства и недостатъци. Как да направите сгъваема стълба с люк със собствените си ръце. Умно използване на пространството.
Винтови стълби до втория етаж в частна къща (снимки, цените са посочени на съответните сайтове), предлагани от производителите, могат да бъдат направени във всеки стил: квадратни или овални стъпала, ковани или резбовани огради, дървени или стъклени декоративни елементи. Всичко зависи от вашите индивидуални предпочитания и избрания стил на стаята.
Полезен съвет! Намирането на професионален майстор на стълби днес не е толкова лесно. Следвайте препоръките на познати, планирайте лични разговори, разберете всички интересни точки и се запознайте с портфолиото на специалиста.
Къде да купя евтини винтови стълби до втория етаж? В Интернет можете да намерите каталози на продукти на различни производители. Представените в тях модели са изработени от най-различни материали: метал, дърво, комбинирани, с елементи на вложки от стъкло, мрамор, керамика, витражи и ковани изделия.
Много компании, в опит да направят цените на продуктите достъпни за всеки купувач, предлагат системи за отстъпки за най-популярните стълбищни системи. Вижте цените на някои модели винтови конструкции, изработени от различни материали на фирма Mister Step:
| Модел спирално стълбище | Материал | Цена за 1 п / м, евро | ||
| Стъпки | Парапет | Балюстради | ||
| GENIUS 010 T, диаметър 110-160 см, височина 210-380 см, стъпка 21 -24 см | Ясен, бук | Ясен, бук | Метал с кабели от неръждаема стомана | от 1250г |
| SCENIK ONE T | Пепел | Пепел | Пепел | от 2290г |
| GENIUS 030 T, диаметър 110-160 см, височина 210-380 см, стъпка 21 -24 см | Ясен, бук | Ясен, бук | Метал с кабели от неръждаема стомана | от 1200 |
| GENIUS 050 T, диаметър 110-160 см, височина 210-380 см, стъпка 21 -24 см | Ясен, бук | Ясен, бук | Полирана неръждаема стомана с пръти от неръждаема стомана | от 1750г |
| СКЕНИК Спорт | Ясен | Пепел | Обработен алуминий с неръждаеми въжета | от 2450 |
| SCENIK CHIC-LINE Q | Ясен | Пепел | Анодизиран алуминий с кабели от неръждаема стомана | 2345 |
За да поръчате спирално стълбище на достъпна цена, трябва да предоставите на производителя следните данни:
- схема-план на помещението, в което е предвидено инсталирането на вита стълба;
- местоположението на конструкцията спрямо стаята;
- размерите на стаята, указващи височината и диаметъра на отвора за винтовото стълбище;
- тип модел стълби към втория етаж, предпочитани материали за неговото производство, характеристики на общия стил на стаята.
Вземайки предвид всички данни, специалистите за кратко време ще създадат продукти, които трябва стриктно да отговарят на оперативните изисквания и стандарти, независимо от избрания дизайн. Освен това, с цел оперативна безопасност, се препоръчва да се поръчат стълбищни конструкции с тяхното оборудване с огради и парапети.
Изпълнението на стълби е сравнително нов вид услуга в строителната индустрия. В допълнение към вносни дизайни, на пазара има много продукти на местни производители.
Фирмите, продаващи стълби, обикновено приемат поръчки за дизайн по поръчка. Освен това те предоставят услуги за доставка и монтаж на стълбищни системи. Но трябва да се има предвид, че цената на стълба, направена по индивидуални чертежи, ще бъде с 20% по-скъпа от стандартния модел. От вас зависи да изберете.





























