Едно от най-интересните решения при изграждането и реконструкцията на жилищна площ е дизайнерският проект на апартамента. Това е специално подготвен набор от графични документи и изчисления, който изисква индивидуален подход. Тази статия ще разгледа факторите, на които трябва да обърнете внимание при извършване на ремонт на апартаменти: дизайн, снимки и др.
Съдържание
- 1 Къде да поръчате дизайнерски проект за апартамент: началният етап
- 1.1 Как сами да направите проект за дизайн на апартамент: създаване на скица
- 1.2 Ремонт на апартамент: дизайн, снимка и разработване на технически спецификации
- 1.3 Как да направите проект за дизайн на апартамент: изчисление на прогнозата
- 1.4 Интериорен проект за апартамент: Създаване на 3D модел и одобрение на проекта
- 2 Проект за апартамент: цени за общи услуги
- 3 Преглед на най-популярните програми за дизайн на апартаменти
- 4 Характеристики на дизайнерския проект на студио
Къде да поръчате дизайнерски проект за апартамент: началният етап
Вече може да се поръча дизайнерски проект в Интернет, например на уебсайта на компания, която предоставя такива услуги за декориране на помещения. Много фирми, които успешно съществуват на пазара за интериорен дизайн, могат да предложат на клиента поетапно плащане на поръчка или план на изплащане.

Проектирането на апартамент преди ремонт, дава възможност за рационално разпределение на полезното пространство предварително
Индивидуално проектиран проект предполага присъствието на дизайнер по всеки важен аспект от работата. Той контролира дейността на ремонтния екип, други служители, а също така отговаря за качеството, точността на идеята и издръжливостта на интериора. При изготвянето на дизайнерски проект се препоръчва да се използват услугите на квалифицирани специалисти, тъй като тази работа изисква професионални знания и умения.
Началният етап от изпълнението на проектния проект се основава на проверка и оценка на помещенията, които трябва да бъдат преработени. Заедно с това се правят измервания на стаите. Това е основният аспект, необходим за следващите етапи от работата на проектанта и строителния екип.
Полезен съвет! Необходимо е внимателно да се подходи към въпроса за измерванията, тъй като дори малки недостатъци могат да доведат до факта, че проектът ще трябва да бъде променен още в разгара на ремонта. Това не само ще доведе до нови разходи, но и може да предизвика ненужно безпокойство. Множеството измервания ще ви позволят да избегнете недостатъци и да получите висококачествен резултат на изхода.
За измервания и визуална оценка се използват различни средства: обикновена рулетка, лазерни измервателни уреди, както и фото и видео оборудване. 3D визуализацията ви позволява да видите как ще бъде завършеният проект, дори преди да бъде завършен. Освен това вече създадените дизайнерски проекти могат да бъдат допълнени или леко променени преди започване на работа.
Ако желаете, можете сами да завършите безплатен дизайнерски проект на апартамента. Такова събитие обаче изисква да се вземат предвид много фактори, поради което, преди да се изготви план, се препоръчва да се проучат всички негови отделни аспекти.
Как сами да направите проект за дизайн на апартамент: създайте скица
В интернет можете да поръчате дизайнерски проект за апартамент. Безплатната консултация, която в повечето случаи се предлага от компании, ви позволява да разберете нюансите при съставянето на план във всеки конкретен случай.
В резултат на събирането и обработката на първични данни ще бъдат получени визуални изгледи на бъдещи помещения. Обикновено се създават няколко варианта на скици (започвайки с три или повече). От тях клиентът избира най-подходящата версия. Сред по-малкото възможности клиентът може да не намери желания проект. Това означава, че цялата работа ще трябва да бъде извършена наново.
Такива скици се създават независимо с помощта на специални програми. Можете лесно да намерите и изтеглите един от тях в Интернет. Важно е да запомните, че когато работите със скица, е необходимо да се вземат предвид индивидуалните характеристики на корпуса, в който ще се извършва ремонтът. Мрежата съдържа и много снимки на готови идеи. За апартамент най-добрите варианти са различни съвременни стилове.

Така че очакванията да са оправдани и да не са несъгласни с крайния резултат, интериорните дизайнери предлагат да се създаде дизайнерски проект за бъдещия апартамент преди започване на ремонтни дейности
При съставяне на скица се избират цветовете на всички повърхности: таван, под и стени. Изборът на мебели и помощни елементи от интериора също се извършва в програмата чрез 3D моделиране. Този формат дава възможност да се създадат много опции за дизайн. Освен това си струва да се разгледат и такива аспекти като живот в стая за малки деца или хора с увреждания.
Скицата ще ви позволи да направите красив дизайн на апартамента (както малък, така и по-просторен). След това се създава проект за безопасност. Той отчита изготвянето на технически документи, съдържащи подробна информация за всички комуникации в стаята.

Всички елементи, елементи вътрешен дизайн апартаментите получават своята визуална форма благодарение на технологията за 3D моделиране
Ремонт на апартамент: дизайн, снимка и разработване на технически спецификации
Въз основа на скиците, изготвени по-рано, се подготвя техническо задание. Този етап отчита обсъждането на редица важни въпроси, а именно: има ли нужда от преустройство на апартамента, има ли нужда от намеса в инженерни мрежи и т.н.
Забележка! За да се опрости процесът на изготвяне на тази задача, се препоръчва да се свържете с MFC. Това ще ви позволи да получите технически план на етажа, което ще спести време при изготвяне на дизайнерски проект за ремонт на апартаменти.
На този етап скиците трябва да бъдат преобразувани в схеми, които съответстват на оформлението на конкретно жилище. Те включват всички необходими изчисления и таблици, а също така съдържат ръководство за ремонтни дейности.
Техническото задание се състои от планове за всички комуникации, които осигуряват комфортен живот. Най-важните:
- отопление;
- водопровод;

По време на работа по визуализация техник извършва разработването на чертежи и проектна документация
- канализация;
- газ;
- електрически.
Освен това се изготвят планове за използване на строителни и довършителни материали и необходимите инструменти. Необходимо е стаята да се раздели на зони и да се допълни описанието с различни детайли от интериорната подредба. По този начин е много по-лесно да се създаде технически план за проектиране на малък апартамент. Районът в този случай играе много важна роля.

Интериорният дизайн на дома е не само приятно творчество, но и кропотлива работа, чийто успех зависи от уменията и опита на специалистите
Всичко това ви позволява да формирате общ стил на дизайн. Отделните зони трябва да бъдат обединени в едно цяло. В резултат на това можете да видите предварително как ще изглежда интериорът след приключване на работата. Ако сте използвали услугите на специалист, тогава на този етап дизайнерът трябва да представи готовите резултати от оформлението на помещението и удобното осветление.
Свързана статия:
Ремонт на апартамент в нова сграда от нулата: какво, как и кога да направя
Характеристики на готовите помещения от разработчика. Ремонтни етапи. Цената на конкретен вид работа и общите разходи за ремонт до ключ.
Много е важно да се подходи отговорно към създаването на технически спецификации. Това е основният документ, с който се проверява проектът. Затова е желателно участието на висококвалифицирани специалисти в създаването на такъв план. Това ще позволи на интериора да служи дълго време и ще ви зарадва със своето устройство.

На последния етап от проектния проект клиентът получава всички необходими технически чертежи, което значително ще улесни изпълнението на одобрения интериор
Как да направите проект за дизайн на апартамент: изчисление на прогнозата
След приключване на работата по създаването на техническата част на поръчания проект се изчислява неговата икономическа основа. Документът обобщава цената на материалите, използвани за изпълнение на дизайнерски идеи. Включва и общите разходи за доставка, ако доставчикът не предостави безплатна доставка.
Отделно се изчислява заплащането на услугите на персонала, извършващ ремонтни дейности. Въз основа на данните, получени по време на изчисленията, се създават листовете, които са необходими за закупуването на материали. Освен това се сключват договори с компании, предоставящи ремонтни услуги.
Цената, която плащате за съставяне на пълен план, който отчита абсолютно всички аспекти на ремонта, зависи от площта на помещенията. По този начин създаването на дизайнерски проект за тристаен апартамент ще струва значително повече от малък едностаен апартамент.
При условие, че проектът се формира предварително, цените могат да се променят. Трябва да се събере списък на фирмите, участващи в строителни работи. Това ще ви позволи да направите избор между различни организации или да отворите оферта за изпълнение на поръчката.
Интериорен проект за апартамент: създаване 3д модели и одобрение на проекти
На това ниво на развитие на проекта дизайнът е представен в графична форма. Експертите казват, че създаването на 3D модел може да отнеме значително време за цялата проектна работа, но си заслужава. Тези разработки са добри с това, че дават възможност да се мисли подробно за бъдещата обстановка на стаята. Също така експертите предлагат да се извърши онлайн пътуване през жизненото пространство, което се развива.
Преди да пристъпите към независимо изпълнение или поръчка на 3D модел, препоръчително е да видите снимка на ремонт на апартаменти. Снимките ще ви позволят визуално да оцените предимствата на дадено решение за интериора и да определите дизайна на вашия дом.

Благодарение на 3D изображението собствениците на апартаменти могат да оценят проекта в реалистична обстановка
Висококачествен 3D модел се отличава с избора на осветление.Дизайнерите обясняват, че именно играта на светлината и сенките, светлинните отражения и показването на цветовете дават цялостен образ на завършения „продукт“. Различни сценарии за осветление често се разработват допълнително. Това показва как стаята се променя в зависимост от времето на деня, както и при използване на различни източници на светлина.
Полезен съвет! Ако искате по-бюджетна и по-малко времеемка опция, можете да изберете презентация. Това е опростена версия, която също ще ви покаже окончателния модел на проектиране, но без допълненията, характерни за 3D структурите.
Предишният етап завършва с получаването на готовия дизайнерски проект на апартамента с интериора (снимка с плана) в графична форма. Сега ще бъдат възможни само малки промени във външния вид на стаята. Пример е подмяната на довършителни материали, промяна в характеристиките на декора. Но трябва да се има предвид, че подобни промени ще повлияят на цената на услугите.
След това се извършва закупуването на декоративни материали и аксесоари. Те могат да бъдат закупени в магазини за мебели и железария. След като работата по коригиране на проектния проект е завършена и са направени всички необходими редакции, строителните бригадири започват активни действия.

На етапа на проектиране те се определят с местоположението на прегради, врати, отоплително оборудване
Проект за апартамент: цени за общи услуги
Ценовият диапазон за разработване на дизайнерски интериор за стая в Русия варира от 1000 до 2000 рубли. на квадратен метър. Разликата в тарифата зависи от сложността на проекта, индивидуалните характеристики.
Има много компании, които позволяват на клиента да изчисли цената на работата на сайта въз основа на кадрите. За да изчислите, трябва да въведете цифровите данни за площта на апартамента и цената, декларирана от компанията. Онлайн калкулаторът значително опростява процеса на изчисление, поради което се препоръчва да се използва за определяне на крайната цена на проекта.

Проектът за дизайн на апартаменти е незаменима услуга за комплексни ремонти до ключ или когато искате да направите дома си наистина уникален
За да отговорите на въпроса колко струва проектът за проектиране на апартамент, трябва да решите опцията за услуга, която е най-предпочитана за вас. Например, най-бюджетният тип дизайнерски проект е „скица“. Цената му е около 200 рубли. на квадратен метър. Цената на тази услуга включва планиране на измервателни работи, план за преустройство (ако е необходимо), както и монтаж и демонтаж.
Друг тип интериорен дизайн за малък апартамент (или по-голям) е „пълен“. Неговото изпълнение ще изисква около 1500 рубли. на квадратен метър. В допълнение към горното, към списъка с услуги, предлагани от тази програма, са добавени и други услуги. Сред тях са следните: проект за полагане на стенни, подови и таванни покрития, монтаж на лампи, контакти и ключове. Определя се най-подходящата подредба на мебелите, избират се конструкции на вратите.
А също така дизайнерът предоставя чертежи за довършване и декориране на стаята. Съставя се списък на необходимите материали. Предвижда се подреждане на стаи за баня. Освен това клиентът получава 3D визуализация на крайните резултати от обработката на помещенията.
Забележка! Ако е необходимо, можете да изтеглите готови дизайни на апартаменти в Интернет безплатно. В този случай обаче се препоръчва да изберете план за апартамент със същата площ като вашия.

Цената на дизайнерския проект пряко зависи, на първо място, от площта и вида на помещенията, както и от броя на необходимите услуги
Освен това има „първокласен“ проект, който е най-скъпият от всички представени опции.Той включва не само всички услуги от типа „скица“ и „пълен“, но и личния контрол на дизайнера, както и посещението му на мястото на ремонтните дейности поне 4 пъти.
В зависимост от вида на проекта, времето за разработване на дизайна също се различава. Например за най-евтиния "проект" план ще отнеме 2-3 седмици, ще отнеме около месец и половина, за да завършите "пълното" задание, а за "премиум" програма ще отнеме повече от два месеца. Снимките на проекти за проектиране на апартаменти ще ви помогнат да оцените разликата между техните видове.
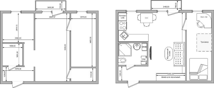
Реновиран проект за дизайн на апартаменти: снимки и препоръки
На първо място, трябва да решите въпроса в какъв стил ще бъде реновиран апартаментът. Необходимо е да се проучат характеристиките на стаята и избрания стил, да се оцени тяхната съвместимост, а също и да се помисли за съотношението на цветовете и текстурите.
Преди да започнете работа по изготвяне на план, препоръчително е да разгледате няколко примера за проекти за проектиране на апартаменти. Те могат лесно да бъдат намерени в Интернет чрез лентата за търсене на браузъра.

3D визуализацията на интериора е един от инструментите на съвременния дизайнер, който предоставя възможност за създаване на триизмерно изображение на дизайн на стая
За да създадете скици, ще трябва да закупите измервателна лента или рулетка, както и карбонова хартия и моливи. Когато създавате проект, трябва да обърнете внимание на редица важни препоръки.
Как да направите сами дизайнерски проект за апартамент? За да започнете, ви е необходим схематичен план на етажа, който можете да нарисувате сами или да поръчате от най-близкия MFC. Когато чертежът е готов, е необходимо да се направят необходимите промени за ремонта, както и да се изобразят детайлите на бъдещия дизайн.
Следващата стъпка е да покажете подредбата на мебелите на чертежа, изберете желаната цветова схема. За да направите това, използвайте шаблон. С негова помощ можете да дадете воля на творческите стремежи и да създадете разнообразие от различни проекти, дизайни, рисунки, орнаменти. Препоръчително е да направите няколко опции и да се съсредоточите върху един от тях.
Когато избирате цветова палитра, трябва да обърнете внимание, че светлите пастелни цветове се считат за по-подходящи за спалнята и кухнята, а ярките и наситени цветове за хола, залата, коридора. Но това не означава, че трябва да се откажете от сочните тонове в стаята, ако това отговаря на вашия вкус. За да изберете желания цвят, препоръчително е да проучите примери за дизайни на апартаменти.
Също така можете самостоятелно да разработите желания дизайн на мебели и да допълвате оформлението на стаята. След това трябва да изберете подходящата опция в магазина, като разгледате моделите онлайн или да поръчате необходимите модели в мебелна фабрика от дизайнери. Освен това, ако желаете, можете да приложите рисунки и орнаменти върху рамките.
Полезна информация! Не забравяйте да поставите на диаграмата кадрите от апартамента, както и размерите и границите на интериорните предмети, стени, прозорци, врати. Освен това може да се наложи да дешифрирате конвенциите, използвани при създаването на проекта.
Не забравяйте за спомагателните декоративни елементи, които трябва да изглеждат органично във вътрешността на стаята. Важно е да запомните, че експертите категорично не препоръчват пренасищане на интериора на малки апартаменти със спомагателни детайли. Снимките на малки жилища в минималистични стилове ще ви помогнат да оцените предимствата на такова решение.
Преглед на най-популярните програми за дизайн на апартаменти
Днес има много програми, които използват 3D моделиране. Всички те се подразделят на платени и безплатни. Всеки от тях има свои собствени характеристики, плюсове и минуси, така че трябва да се запознаете с тях по-подробно.

Когато планирате ремонт или искате да актуализирате интериора на апартамент, трябва визуално да си представите как ще изглежда след ремонт
3D Studio MAX. Тази услуга е предназначена за интериорен дизайн. Той се разглежда от специалистите като програма за професионален клас. Основната цел е 3D моделиране и анимация. След като внимателно проучихте всички функции на този софтуер, можете лесно да прехвърлите дизайнерския проект за ремонт на апартаменти от хартия на екран.
Тъй като приставките постоянно се актуализират и допълват в приложението, винаги можете да разширите възможностите на тази програма, например да допълните картината с показване на различни текстури: коприна, вълна, велур и други.

В момента широко се използват безплатни програми, създадени специално, за да може всеки да създаде апартамент на мечтите си
Въпреки това хората отбелязват, че програмата не е много лесна за научаване. Но можете да отделите повече време за изучаването му и да спестите пари, без да ходите при професионалисти. Ще бъдете доволни не само от резултата, но и от факта, че вие сами сте създали интериора на дизайнерския апартамент.
ArchiCAD. Според архитектите тази програма се смята за една от най-добрите в дизайна. С негова помощ можете да моделирате елемента на интериора, от който се нуждаете.

Реалистично изображение на стая, направено в програмата ArchiCAD, ще ви помогне да го визуално представите след ремонта
Разработчиците предлагат широка гама от възможности. Ако е необходимо, можете да проектирате необходимата основа, врати, прозорци, стени и тавани, стълби, както и множество малки детайли от оформлението на апартамента. Снимките на готови проекти ще ви помогнат да разберете в коя посока трябва да работите с тази програма. Струва си да завършите работата, като изберете подробен дизайн за апартамента.
Наличието на вградени приставки ще ви позволи да направите най-интересното - декориране на стаята. Тук ще намерите разнообразие от артистични елементи. Ако имате желание да разнообразите интериора с рисуване или моделиране, тогава програмата ще ви помогне с това.

Програми за създаване на интериор на апартаменти, ще помогнат за разработването на дизайна на жилища в най-малките детайли
Забележка! Трябва да вземете предвид, че ще трябва да отделите доста време, за да разберете характеристиките на този софтуер.
В резултат на това ще получите картина с отлично качество, която ще изглежда доста фотореалистично. По този начин времето, отделено за изучаване на програмата, ще се изплати изцяло с красив ремонт в апартамента. Не е за нищо, че професионалистите предпочитат ArchiCAD и също го съветват на тези, които проектират сами.
PRO100. Според много интериорни дизайнери тази програма е една от най-лесните за използване за начинаещи. Платформата има оформление на руски език, което улеснява работата с нея и насърчава бързото развитие. Също така едно от предимствата е, че приложението може да бъде адаптирано към вашите нужди и умения.
Цялата налична функционалност е достатъчно проста за разбиране и по-нататъшно използване. Освен това с помощта на този софтуер можете перфектно да подредите мебели в реконструираните помещения. По този начин за непрофесионалистите такава програма е една от най-добрите. С негова помощ можете да претворите в действителност идеята за интериор за малък апартамент или по-голямо жилище.

Необходима е програма за интериорен дизайн, за да си представите как ще изглежда стая или апартамент с определени мебели.
Google SketchUp. Това е мощен софтуер, чийто интерфейс е предназначен за различни категории потребители. Програмата се предлага в безплатен формат, който е предимно с информационна цел. Следващият тип лиценз е ограничен, който е предназначен за лична употреба. Има и ол инклузив формуляр, който съдържа опции за напредналия професионалист.
Според потребителите тази услуга е приятна и лесна за използване. Менюто е доста удобно подредено тук. Производителите взеха предвид нуждите и възможностите на различните видове аудитории, като адаптираха услугата за всяка група.
За непрофесионален потребител простата и достъпна функционалност ще бъде привлекателна, както и широка гама от готови шаблони и решения. В същото време опитните дизайнери са по-склонни да се интересуват от възможността за подробна реконструкция на интериора. Освен това програмата ви позволява да разработите визуализация на екстериора, да проектирате сгради и необичайни конструкции.
Google SketchUp ще ви помогне да създадете интериор за частна къща или да проектирате дизайн за малък апартамент. Снимките на мостри, направени с тази програма, ви позволяват визуално да оцените ползите от нея.

Използвайки 3D интериорна програма, можете лесно да проектирате дизайна на апартамент, стая или всяка друга стая
Трябва да се отбележи, че с помощта на този софтуер, по мнението на много потребители, ще получите висококачествена проектна документация. В допълнение, приложението е пълно с урок и набор от инструкции за всички функционални компоненти на приложението.
Astron Design. Тази програма е забележителна с факта, че е изцяло фокусирана върху рускоезичната аудитория. С това приложение можете лесно да решите въпроса с довършването на стенни, подови и таванни покрития, както и да проектирате и подредите мебели. Започвайки работа по трансформацията на дизайна, виждаме пред себе си шаблони, които са представени в цялото им разнообразие, или празен лист, който ви позволява да създадете проект от нулата. Сред предимствата на програмата потребителите отбелязват удобен интерфейс и изскачащи прозорци.
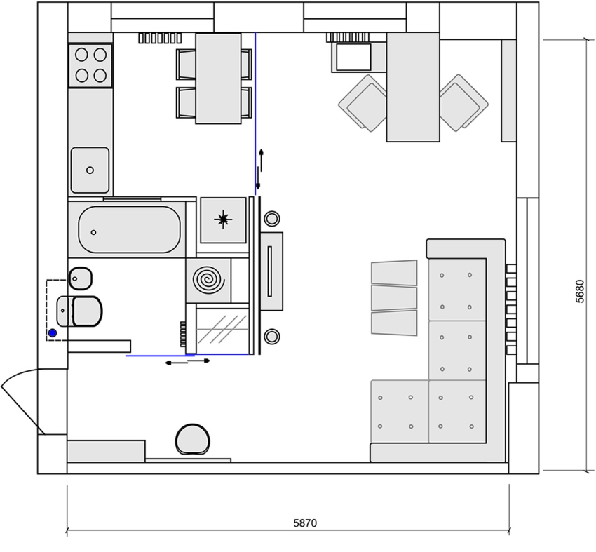
Характеристики на дизайнерския проект на студио
При избора на стил за студио, дизайнерите препоръчват да се обърне внимание на минимализма. Тази опция е най-приемлива и кратка и също допринася за компетентното зониране.
Забележка! Изпълнявайки плана за бъдещ ремонт на стаята, в която кухнята е комбинирана с основната стая, трябва да се обърне специално внимание на зонирането. Необходимо е функционалните зони в голяма стая да се разделят на зони за хранене, работа, сън и почивка.

Когато изготвяте проект на студио, е важно да обърнете внимание на зонирането на стаята и интериорната концепция
Днес има няколко начина да се разграничи сегмент, отделен от общия интериор в малък апартамент. Снимките на интериорния дизайн допринасят за визуално проучване на предимствата на всеки от тях. Нека разгледаме тези методи:
- подови настилки;
- Цвят;
- блясък;
- плъзгащи се врати;
- дялове и екрани.
Когато избирате мебели за студио, експертите препоръчват да се откажат от обемисти структури. Най-добре е да закупите многофункционални и компактни мебели, които могат да се трансформират, ако е необходимо. Като легло можете да използвате както диван, така и легло, но в първия случай се спестява повече полезно пространство. Освен това мебелите могат да се използват за зониране на пространството.
Ако искате да изготвите проект за преустройство на типичен апартамент с една стая в студио, тогава ще трябва да се свържете със специалистите. Кухненската зона в студио апартамент може да бъде подчертана с подови настилки, полагане на плочки. Също така предпочитано е LED осветлението, което помага за сегментиране на пространството.
Мебелите за кухнята, разположени в общата стая, се купуват най-добре по поръчка, като се вземат предвид индивидуалните характеристики на стаята. Що се отнася до технологията, препоръчително е да закупите вградена такава, която лесно може да се интегрира в слушалките.
Спомагателните елементи също са много важни и изпълняват акцентираща функция. Те могат да бъдат от всякакъв цвят, да хармонизират или, обратно, да контрастират с тоновете, в които са боядисани повърхностите на стаята. Спазването на горните правила допринася за компетентното изготвяне на дизайна на малък апартамент. Фотостудията ще ви помогнат да изберете стилистично решение, затова се препоръчва да ги изучите, преди да разработите проект.
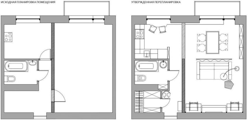
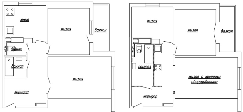
Проект за апартамент: разходи и характеристики на преустройството
Преустройството на всеки апартамент изисква проект, който дава възможност да се оцени осъществимостта на това решение. Освен това, този план е необходим, за да получите разрешение, което ви позволява да извършвате съответната работа по законен начин.
За да поръчате проект за преустройство на апартамент, трябва да се свържете с организация, която има одобрение на SRO. Можете също така да използвате услугите на квалифициран специалист, преминал съответното сертифициране.
За завършване на редизайна ще е необходимо да се обсъдят и съгласуват всички възможни нюанси в обществените услуги. Необходимо е да се получат разрешения от органи като:
- Пожарна;
- санитарна и епидемиологична станция (SES);
- мрежово инженерство;
- газова услуга;
- архитектурен контрол.
Примерен проект за преустройство за одобрение може лесно да бъде намерен в Интернет. Такъв план е документ, който ви позволява да получите разрешение за извършване на съответната работа. Проектирането на такъв план се извършва, като се вземат предвид изискванията, които се определят от местните градоустройствени стандарти.

Прибягва се до реконструкция, за да се направи домът им по-функционален и подходящ за живота на конкретно семейство
Полезна информация! Различните градове имат свои собствени нюанси за одобряване на проект за преустройство на апартаменти. Образец от този план също трябва да бъде представен в жилищната инспекция (без одобрение).
Какви документи трябва да бъдат представени на проектантската организация? На първо място, имате нужда от план за висока сграда. И също така си струва да подготвите скици на предложената работа, ситуационен план и технически доклад за състоянието на поддържащите конструкции. Последният документ трябва да съдържа информация за това какъв вид работа може да се извърши при тези условия.
Цената на проект за саниране на апартамент може да е различна. Зависи какви услуги предоставя компанията. Например съставянето на редовен план (без допълнително одобрение) ще струва по-малко. В повечето случаи компаниите поемат абсолютно всички главоболия. По един или друг начин, днес цената на проект за преустройство на апартамент е средно 10-25 000 рубли.
Проектът за дизайн на апартамент е сериозно събитие, което включва много нюанси. Преди да изготвите такъв план, трябва да проучите всички необходими точки и да ги следвате. Експертите категорично не препоръчват отклонение от алгоритъма за изготвяне на дизайнерски проект, тъй като това е изпълнено с неприятни последици.



















































































































