Когато избират жилище, мнозина обръщат внимание на размера на банята на последно място, което се счита за изключително погрешно. Ако площта на стаята е много малка, тогава няма да е лесно да подредите най-важното, особено след като няма да остане място за поставяне на домакински уреди и мебели. Размерът на тоалетната може да не е огромен, но поне трябва да има достатъчно място за удобно инсталиране на тоалетната, на която ще седи удобно.
Съдържание
- 1 Характеристики на оформлението и размера на тоалетната в апартамента
- 2 Какъв трябва да бъде размерът на тоалетната в апартамента в съответствие с GOST и SNiPam
- 3 Стандартна тоалетна за инвалиди
- 4 Какви тоалетни се считат за стандартни в стари и нови апартаменти
- 5 Как да изчислим параметрите на тоалетната, които ще бъдат удобни за всички членове на семейството
- 6 Как да поправите малка тоалетна: снимки на завършени интериори
- 7 Как правилно да позиционирате селска тоалетна: размери и чертежи
Характеристики на оформлението и размера на тоалетната в апартамента
Обемът на работата по дизайна на тоалетната зависи преди всичко от състоянието на стаята, защото това може да е стая с груб завършек или дори с тухлени стени, ако говорим за нова сграда. Във всеки случай, независимо в какво състояние е тоалетната в апартамент или къща, ремонтът трябва да започне с интериорно планиране. В този случай се изисква да се вземат предвид размерите на стаята и характеристиките на декорацията. В зависимост от размера на тоалетната в къщата ще трябва да решите следните въпроси:
- Изчислете броя на необходимите водопроводни инсталации, които искате да инсталирате. Например, ако това е само тоалетна, тогава тоалетна чиния и поне малка мивка ще са достатъчни тук, но ако говорим за комбинирана баня, тогава допълнително трябва да осигурите място за баня и минимален комплект мебели.
- Помислете как да планирате оформлението на комуникациите, за да поставите всички необходими елементи. Ако мястото е ограничено, можете да закупите многофункционални уреди, като тоалетна с функция биде или душ кабина с просторна тава.
- Изберете опции за най-доброто покритие. Така че, в малка тоалетна, не трябва да използвате стени от гипсокартон, които ще отнемат полезно пространство. Също така трябва да разберете, че ако стените трябва да бъдат измазани, тогава ще бъдат взети поне 2-10 см от всяка повърхност.
Полезен съвет! Площта на тоалетната трябва да се изчисли на етапа на довършване, а не по-рано, тъй като в съответствие с избрания материал площта също може да се промени. Например, рамката от гипсокартон отнема до 10 см, а мазилката, в зависимост от отсъствието или наличието на армираща мрежа, отнема 2-15 см от всяка стена.
Какъв трябва да бъде размерът на тоалетната в апартамента в съответствие с GOST и SNiPam
На етапа на ремонта в къща или апартамент мнозина се опитват да увеличат площта точно поради размера на тоалетната и много често остава много малко място за тази стая. За да не бъдете объркани с района и след това да нямате проблеми с държавните услуги, трябва да вземете предвид стандартните размери на тоалетната в апартамента, приети според SNiP.
В нормативните правни документи на Русия има голям списък от правила, регулиращи параметрите на баните, както и определяне на минималния размер на тоалетна в апартамент, къща или друго обществено пространство.
Също така, нормите установяват не само размера, но и местоположението на банята. Например, според правилата на ОТИ, ако в резултат на преустройството тоалетната се окаже над жилищната площ или кухнята, те ще откажат да проектират такъв апартамент, което означава, че всичко ще трябва да бъде преработено. Понякога снизхождението се прави само при проектиране на двуетажни апартаменти. Във всеки случай, когато изчислявате размера на тоалетната в апартамент на панелна къща, първо трябва да помислите над всички нюанси.
Единственият момент, когато можете да пренебрегнете приетите норми и правила, е при планиране на местоположението и размера на тоалетната в частна къща, ако не използвате връзка нито към централната канализационна система, нито към водопровода. И все пак, преди да се откажете от установените параметри, трябва да вземете предвид стандартните размери на тоалетната, регулирани от SNiP:
- ширина - не по-малко от 0,8 m;
- дължина - от 1,2 м;
- височина на стената - от 2,5 m.
Според нормите се разграничават стандартните размери на тоалетната в апартамента, които са посочени в тази таблица:
| Тип стая | Ширина, m | Дължина, m | Площ, м2 |
| Баня с монтирана тоалетна и мивка | 1 | 1,5 | 1,5 |
| Комбинирана тоалетна и баня | 1,98 2,5 2,5 |
1,73 1,6 2,35 |
3,42 4 5,9 |
| Комбинирана баня с душ (вместо вана) | 1,4 | 1,6 | 2,24 |
Когато планирате тоалетна в частна къща, тези стандарти могат да бъдат закръглени и да се направи по-просторна стая, в която всички водопроводни елементи могат свободно да се поберат, като същевременно оставят достатъчно място за удобно движение.
Полезен съвет! Ако за баня е отделена голяма площ, например 6-7 м2 и в семейството живеят голям брой хора, тя може да бъде разделена на две пълноценни отделни стаи. Препоръчително е да инсталирате не вана, а душ в една стая, но е по-добре да инсталирате тоалетна с мивка и в двете стаи. Когато проектирате такива бани, можете да използвате двустранни инсталации... Минималният препоръчителен размер на тоалетна с мивка в частна къща е 2-2,5 м2.
Минимални размери на тоалетната, които да се вземат предвид при планирането на пространство
Отделно трябва да се каже, че според приетите стандарти, ако тоалетната е разположена на таванския етаж, тогава разстоянието от тоалетната чиния до наклонения таван не трябва да бъде по-малко от 105 см. Други важни правила, които трябва да се спазват при планирането на размера на тоалетната в апартамент:
- Вратата на стаята трябва да се отваря строго навън. Силно не се препоръчва да се монтира врата, която да се отваря навътре.
- Изходът от банята трябва да бъде организиран само в коридора или коридора. Невъзможно е да поставите вратата на тоалетната близо до дневната и още повече до кухнята.
- При излизане от коридора височината на тавана не трябва да бъде по-малка от 210 см, което е важно, ако планирате да направите мецанин в коридора.
Стандартите на GOST и SNiP също регулират инсталирането на водопроводни инсталации. Следователно, ако се планира да се инсталира не само тоалетна чиния в банята, но и биде, умивалник или душ, трябва да се вземат предвид следните показатели:
- Пред душ кабината или купата за баня трябва да има поне 70 см свободно пространство.
- Бидето трябва да се извади от тоалетната на разстояние най-малко 25 см. Устройството може да се позиционира от двете страни.
- Оптималното разстояние от централната ос на купата до страничната стена е 45 cm.
- Трябва да има 60 см свободно пространство от предната страна на тоалетната до най-близката стена, препоръчително е да оставите 25-35 см отстрани.
- Ако е монтиран умивалник, разстоянието от него до най-близката повърхност не трябва да е по-малко от 70 cm.
Трябва да се отбележи, че предложените стандарти са по-подходящи, когато става въпрос за тоалетна, която има голяма площ, когато е трудно да се реши как да се поставят всички водопроводни елементи. Често площта на тоалетната в Хрушчов не надвишава няколко квадрата. В този случай тоалетната е инсталирана на задната стена в средата на кабината и рядко има допълнително пространство за други елементи. Трябва също да се отбележи, че горните стандарти са по-свързани с оформлението на отделна тоалетна. Когато декорирате комбинирана баня, не се прилагат толкова строги правила - при преустройство трябва да разчитате на личен комфорт.
Полезна информация! Минималната площ на тоалетната, която може да се намери, е 1,8-2 м2. С компетентен подход, дори при такива условия, ще бъде възможно да се създаде удобен ъгъл чрез правилно позициониране на мебелите и използване на модерна функционална водопроводна инсталация.
Стандартна тоалетна за инвалиди
Отделно при обсъждането на стандартите трябва да се спомене размерът на тоалетната кабина за хора с увреждания. И така, нормите на SNiP 2.08.02-89 относно обществените сгради, които са посочени в параграф 4.36, регламентират стандартните размери на баните за хора с увреждания. Според изискванията се разграничават следните размери тоалетни за хора с увреждания:
- ширина на помещението - 1,65 м;
- дълбочина - 1,8 m.
Предпоставка е фактът, че вратата трябва да се отваря строго навън, за да не пречи на свободното движение на инвалидната количка. Според регламентите не се изисква допълнително оборудване като писоари или бидета, но тяхното инсталиране се счита за изключително желателно.
В допълнение към факта, че трябва да се вземе предвид размерът на тоалетната кабина, също така е необходимо да се избере оптималното място за местоположението му, така че човек с увреждане да може лесно да стигне до там без допълнителна помощ. Наличието на парапети както близо до тоалетната, така и близо до мивката се счита за задължително. Оптималната височина на перилото е 75 см. В този случай е необходимо от страната, от която лицето ще бъде прехвърлено в тоалетната от стола, да е сгъваема.
Важно! Размерите на вратите към банята и тоалетната трябва да бъдат такива, че човек в инвалидна количка да може безопасно да премине през тях.
В тоалетната, предназначена за човек с увреждания, мивката трябва да бъде монтирана на ниво не по-високо от 80 см, а огледалото на височина 1 м. потребител на инвалидна количка. Бутонът за източване също трябва да бъде монтиран на удобна височина, най-добре е, ако е разположен на един от парапетите.
Ако човек има проблеми с тазобедрените или коленните стави, тогава височината на тоалетната чиния в тоалетната трябва да е по-висока от стандартната - около 45-60 см. В този случай трябва да обърнете внимание на размера на тоалетната инсталация.Инсталацията ви позволява да регулирате височината на тоалетната и не изисква инсталиране на ненужни подиуми или други видове основи. Минималните размери на тоалетна в частна къща или апартамент, предназначени за хора с увреждания, са:
- ширината на банята с монтираната мивка е 1,6, а дължината е 2,2 м;
- тоалетна, комбинирана с вана - 2,2х2,2 м.
Ако баня за хора с увреждания се намира на обществено място, на вратата трябва да се постави специална значка, а вътре трябва да се монтира алармен бутон на удобна височина.
Какви тоалетни се считат за стандартни в стари и нови апартаменти
Площта на тоалетната в апартамента винаги е била определяна съгласно нормите на SNiP. През последните десетилетия тези показатели не са се променили, поне минималните размери определено са останали непроменени. Старите апартаменти рядко се гордеят с големи параметри за баня, но дори и на ограничена площ можете да организирате удобно и удобно пространство с достатъчно свободно пространство.
Когато планирате интериора на малка тоалетна, експертите препоръчват да се спазват следните правила:
- Направете внимателни измервания на стаята и начертайте диаграма на стаята, като вземете предвид всички размери, ниши и отвори.
- Обмислете подробно плана на стаята, нарисувайте всички водопроводни инсталации, като вземете предвид размерите и вижте дали всичко се побира в стаята и дали има достатъчно свободно място за безпрепятствено движение. На този етап можете също да определите броя на устройствата, за да разберете какво можете да откажете.
- Подредете ниши и ъгли. За правилната организация на малка площ се препоръчва максимално да се използват вградени и шарнирни конструкции. За да спестите място, можете да организирате тоалетна инсталация в ниша или да направите вграден гардероб за малки неща.
Свързана статия:
Ремонт на тоалетна в апартамент или къща: как да създадете красив дизайн
Характеристики, предимства и цена на услугите до ключ. Как да направите красив самостоятелен ремонт: препоръки и ръководство стъпка по стъпка.
Също така е важно да помислите предварително за размерите на избрания водопровод. Ако тоалетната е малка, не трябва да купувате тоалетна с дълбочина над 60 см, защото ще бъде неудобно да използвате голямо и неправилно инсталирано устройство.
Що се отнася до модерните оформления в нови сгради, тук, като правило, се отделя голяма площ за баня. Малките модерни апартаменти обикновено се характеризират с наличието на тоалетна от около 4 m², докато апартаментите над 60 m² могат да се похвалят или с отделна баня, или с голяма тоалетна, комбинирана с вана, чийто размер достига 6 m².
Също така модерните луксозни жилища могат да бъдат допълнени от тоалетна, чийто размер е 9 m². Тази зона ще бъде достатъчна, за да подредите най-удобната стая с всички домакински уреди, просторни шкафчета за спално бельо и битова химия. В някои случаи в такава голяма баня е монтирана вградена дъска за гладене, върху която е удобно да се глади бельото.
Ако говорим за нови сгради, тогава за всяка площ на апартамента се спазват определени правила по отношение на размера на банята. И така, в новите едностайни апартаменти площта на тази стая ви позволява свободно да поставяте всички необходими елементи: вана, тоалетна, мивка. Често има кът за инсталиране на пералня или кош за мръсно пране.
В двустайните и тристайните апартаменти най-често се планира да се постави отделна баня. Разположението на апартаментите с размери 80-100 м², в зависимост от общата площ на жилището, предвижда две бани с различни размери.Препоръчителните размери на вратите на тоалетната са 55-60 см отвори, с изключение на ширината на отвесите.
Как да изчислим параметрите на тоалетната, които ще бъдат удобни за всички членове на семейството
В повечето случаи разширяването на границите на малка тоалетна в многоетажна сграда или друга обществена сграда се счита за нереалистично, тъй като това ще изисква не само отнемане на площ от друга стая, но и обмисляне на разрушаването на стените и изграждането им на ново място. Този въпрос стои по съвсем различен начин при организирането на тоалетна в частна къща, когато можете да планирате оптималния размер на банята дори на етапа на изграждане и създаване на оформление на стаите.
Преди да създадете план за къща, е необходимо предварително да решите какъв вид баня трябва да подредите: съвместна или отделна, а също така можете предварително да помислите за наличието на няколко тоалетни. В този случай най-често те правят отделна малка тоалетна с мивка и тоалетна, а във втората стая се прави пълноценна комбинирана баня.
Полезен съвет! Всеки на етапа на изграждане на собствена къща иска да направи всички стаи възможно най-големи. По-добре е да реализирате това желание, когато планирате голяма спалня или кухня, но отделянето на повече от 6-7 m² за баня не се счита за разумно. Тази площ е изчислена, като се вземат предвид стандартите и характеристиките на поставянето на водопроводни инсталации.
Таблицата показва оптималната площ, която е достатъчна за инсталирането на един или друг водопровод:
| Име на устройството | Свободна площ, м2 |
| Душ кабина | 2-2,5 |
| Вана | 2-3,5 |
| Тоалетна | 1-2 |
| Мивка | 0,7-1 |
Преди да планирате ситуацията, трябва да се запознаете със стандартните размери на водопровода, например дължината на тоалетната, в зависимост от модела и размера, варира от 460 до 605 мм, ширината е от 300 до 400 мм, а височината достига 40 см. и компактни тоалетни с намалени размери, както и купи с увеличени параметри, предназначени за много големи хора и хора с увреждания.
Бидето обикновено има стандартни размери - 60x40 см. Най-често срещаната ширина на ваната се счита за 70-85 см, а височината, в зависимост от отсъствието или наличието на крака, варира от 48 до 64 см. Много опции на купата се открояват по дължината, например има малки седящи вани с размер до 120 см. Оптималната дължина е 150-170 см, което е достатъчно за настаняване на човек със средно телосложение. Душовете могат да бъдат или квадратни, или всякакви други форми. Умивалниците са с различна ширина, а дълбочината обикновено е 40-60 cm.
Как да поправите малка тоалетна: снимки на завършени интериори
Преди да проектирате малка тоалетна в панелна къща или друг корпус, първо трябва да помислите за характеристиките на ремонта. Тоалетната и банята, дори ако са разделени на различни помещения, въпреки това се считат за единична баня, при декорирането на която трябва да се използва един и същ стил, цвят, текстура и едни и същи довършителни материали. Също така, преди да започнете ремонта, трябва да решите количеството и вида водопроводни инсталации, тъй като инсталацията под окачена за стена тоалетна или биде трябва да бъде фиксирана преди завършване на стените.
Полезен съвет! В обща баня с всякакъв размер се препоръчва да се използват керамични плочки на всички повърхности с изключение на тавана, които запазват външния си вид дълго време и не са изложени на влага. В малка, отделна тоалетна, тапет може да се използва за декорация на стени, ако желаете, но керамиката все още се счита за най-добрият вариант.
Можете визуално да разширите границите дори на малка баня, като използвате леки покрития, но когато създавате дизайн на тоалетна 4 кв.m вече можете да проявите повече въображение и да приложите всяка комбинация от цветове. Тук, освен мивката и тоалетната, вече ще бъде възможно да се осигурят допълнителни водопроводни инсталации, домакински уреди, малки мебели, например, можете да инсталирате стенен шкаф с плъзгащи се или люлеещи се врати за съхранение на битови предмети.
Важно е да се подреди тоалетна на много малка площ в стил таванско помещение, защото посоката приема наличието на отворени комуникации, както и минимално количество декорация по стените. Характерна особеност на таванско помещение е наличието на тухлена зидария, така че можете да спестите от довършването на поне една стена. В същото време трябва да сте сигурни, че отворените тухли в малка тоалетна няма да причинят нараняване.
Ако разглеждате снимки на тоалетни дизайни за малка площ, често можете да отбележите наличието на ъглови мебели и вградени водопроводи. Тази техника ви позволява да увеличите максимално непотърсените зони зад ъгъла и да освободите повече свободно пространство в централната част на стаята. Голям избор от снимки на интериори на малки тоалетни е представен в Интернет, доказвайки, че дори малко пространство може да се направи необичайно и удобно.
Как правилно да позиционирате селска тоалетна: размери и чертежи
Производството на малка външна селска тоалетна се планира в случая, когато е доста трудно да се направи тоалетна в къщата. В допълнение към факта, че трябва да разберете размера на тоалетната в частна къща на улицата, трябва да обърнете голямо внимание на избора на място, защото в този случай има и някои правила и разпоредби. Счита се за изключително лоша идея да се монтира външна тоалетна в централната част на местността или близо до съседен обект. Най-доброто място се счита за далечния вътрешен ъгъл на вилата, разположен на 1 м от задната и страничната демаркационна линия.
В допълнение към избора на удобно място за сградата, трябва да се придържате и към санитарните норми на SNiP, предписани в раздел № 42-128-4690-88. В съответствие с правилата, които се отнасят до частното развитие и територията на градински и дачни асоциации, е необходимо:
- Изпълнете помийна яма на най-малко 10-12 м от най-близкия жилищен район.
- Не локализирайте мястото на натрупване на отпадъчни води по-близо от 25 m до кладенец за пиене или неподвижен източник на вода.
- Инсталирайте тоалетна кабина на поне 1 м от оградата.
- Помислете над сградата, така че да не е по-близо от 12-13 м до мазето или избата.
- Най-близките овощни дървета трябва да са на най-малко 4 м от тоалетната.
Можете да се отклоните от някои от правилата, особено за дачи асоциации, разположени по протежение на реки или езера. В този случай се препоръчва вместо помийна яма да се организира херметичен септичен резервоар, който няма да навреди на околните резервоари. Контейнерът с отпадъци трябва да бъде разположен така, че канализационният камион да може лесно да стигне до него. Когато планирате отпадъчна яма, е необходимо да вземете предвид розата на вятъра, така че постоянната миризма на канализацията да не пречи на нормалната почивка.
Как правилно да определите оптималния размер на тоалетната
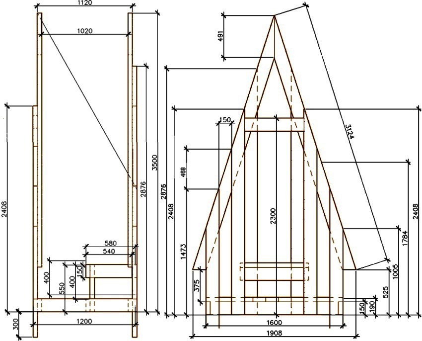
За да определите правилно размера на външна тоалетна, първо трябва да помислите за вида на конструкцията. Това може да бъде обичайната широко разпространена версия на тоалетната "село" с дълбока помийна яма или съвременен "люфт килер", по време на изграждането на който се мисли септична яма с пълна хидроизолация, за да се предотврати замърсяването на почвата и подпочвените води. Друг, по-рядък вариант се счита за дрешник, който просто се монтира вътре в издигната кабина, но сложността на грижите за него не допринася за неговата популярност. Следните се считат за стандартни размери на селска тоалетна:
- Обикновената правоъгълна къща с четири успоредни стени, с тоалетна седалка или обикновен отвор в пода, трябва да има дълбочина най-малко 1,5 м, ширината най-малко 1,2 м се счита за удобна.
- Когато планирате тоалетна, която има триъгълна форма на хижа или хижа, дълбочината трябва да се мисли на ниво 1,5 м, а ширината трябва да бъде най-малко 1 м. За да бъде удобно в тоалетната, повече от 40 см пространство трябва да остане от главата до наклонените стени в изправено положение ...
Като цяло за оптимална височина на улична тоалетна се счита 2-2,5 м, което е напълно достатъчно за хората със средна височина. Ако планирате да поставите тоалетна седалка като седалка, те също се придържат към нормите за инсталиране на тоалетни в апартамент, чиято височина не надвишава 50 см. Основното предимство на инсталирането на тоалетна-колиба е добра структурна стабилност и по-малка податливост на разхлабване под въздействието на вятъра в сравнение със стандартна правоъгълна тоалетна.
DIY тоалетна: чертежи с размери, основните етапи на строителството
Създаването на диаграма и чертеж на сградата се извършва на етапа на планиране на външна тоалетна. В допълнение към факта, че предварителната диаграма ще помогне при избора на правилните размери, но също така с негова помощ можете да изчислите разхода на строителен материал, който ще е необходим в производствения процес, и да се предпазите от ненужни покупки.
Полезна информация! Планът показва структурата в детайли, като се вземат предвид необходимите размери, форми и вид на сградата. Можете да опитате сами да разработите чертеж или да намерите готови проекти за селски тоалетни в Интернет.
Най-лесният начин е да се изгради традиционна дървена кабина, която при необходимост ще бъде лесна за повторно инсталиране на ново място. Като основни материали се използват вагон, картон, листове от ПДЧ или шперплат. Най-бързият начин е да направите тоалетна от дървени дъски. При изграждането на конвенционална тоалетна с наклони трябва да се вземат предвид следните параметри:
- височина на задната стена - 2 м;
- височина на предната стена - 2,3 м;
- ширина 100-150 см.
Оптималният размер на основата е 150х150 см, което ще бъде достатъчно за човек от всякаква конструкция. Не трябва да разчитате на око по време на строителството - по-добре е да инсталирате панели, като използвате ниво. Като цяло изграждането на селска тоалетна се състои от следните етапи:
- Малка основа се излива под формата на бордюрна плоча, тя се поставя не по-близо от 20 см до ръба на помийна яма.
- В случай на създаване на капитална тухлена сграда между основата и рамката, се препоръчва да се постави слой изолация под формата на няколко листа покривен материал. Можете да пропуснете тази стъпка, когато изграждате обикновена дървена къща.
- След това рамката се издига с последващото й покритие.
- На последния етап в пода се изрязва отвор с диаметър 28-30 см и се монтира врата.
Покривът може да бъде направен от традиционен лист от шисти или стомана, но покривният материал се счита за по-лек, практичен и по-безопасен, който дори в случай на силен ураган няма да може да причини сериозни щети. За да се направи конструкцията по-здрава, се правят диагонални стрели на страничните и задните стени. Обикновено се прави прозорец отпред. Размерът на прозореца в тоалетната в частна къща трябва да бъде такъв, че не само да може да осигури допълнителна вентилация, но и да не пречи на тихото уединение. Срокът на експлоатация на сградата може значително да се удължи чрез покриване на дървените стени с лак или боя. Ще бъде полезно да се третира дървената основа с противопожарни разтвори.
Дори при независимото изграждане на селска тоалетна, не бива да се забравя и за вентилацията, чиято основна цел е да отстранява въздуха от ямата в атмосферата. Като въздуховод се използва пластмасова тръба с голям диаметър - най-малко 10 cm.Долната част на щранга е потопена под капака на помийната яма на дълбочина 10-20 см, а горната част на тръбата трябва да бъде изведена над покрива на тоалетната с 20-25 см.
Размерът на тоалетната е от голямо значение, така че на етапа на планиране не трябва да намалявате значително площта на банята, за да увеличите съседните стаи. Ако размерът на тоалетната е малък, е необходимо тоалетната да бъде правилно разположена така, че да е удобна за използване. Също така не е неуместно да инсталирате малка мивка в стаята. Всички други водопроводни елементи се монтират, когато е възможно и ако има голямо количество свободно място.
























