Gulvplader er vandrette paneler installeret mellem gulve. Interfloor plader bruges i den private konstruktion af hytter, til bygninger i flere etager samt til opførelse af industribygninger. I dag kan du købe næsten enhver størrelse gulvplader, men standardprodukter koster betydeligt mindre. Hovedbetingelsen for at købe er at vælge den rigtige type og antal paneler.
Indhold
- 1 Hvad er betonplader: prisen på de vigtigste typer produkter
- 2 Funktioner i produktionen af betonplader med et volumen på 2 m³ og strukturer i andre størrelser
- 3 Typer af gulvplader, størrelser, GOST: grundlæggende standarder
- 4 Grundmål på hulplader
- 5 Hvad er ribbet plader, deres vigtigste egenskaber
- 6 Hvad påvirker størrelsen på gulvpladen: standardstørrelser af monolitiske produkter
Hvad er betonplader: prisen på de vigtigste typer produkter
Ingen konstruktion er komplet uden brug af armerede betongulve, hvilket hjælper med at fremskynde opførelsen af en bygning betydeligt. Armerede betongulvplader i forskellige størrelser bruges til at adskille den nederste etage fra den øverste. Produkternes hovedopgave er at tilvejebringe en stiv bygningsstruktur. Alle plader er rektangulære, fremstillet af forskellige typer beton, og yderligere stivhed til panelerne leveres af et metalnet og en armeringstråd.
På grund af det store udvalg af typer og størrelser har RC-plader en bred vifte af anvendelser. Strukturer bruges til at danne grundlaget for en bygning og til at adskille kælderen fra etagerne ovenover samt til at dekorere loftet. I nogle tilfælde fungerer armeret betonprodukter som materiale til konstruktion af vægge.
Det er interessant! Brug af plader fremskynder ikke kun byggeprocessen, men hjælper også med at sikre bygningens stabilitet. Gulvpaneler er designet til alle slags belastninger. De betragtes som gennemprøvede og pålidelige elementer, der styrker strukturens stivhed.
Uanset størrelse er plader lavet af en betonblanding, der giver produkterne evnen til at modstå tunge belastninger.Derudover er produkterne kendetegnet ved høje brandslukningsegenskaber, praktisk talt upåvirket af ekstrem fugt og temperatur. Dybest set klassificeres plader efter produktionsfunktioner, fordi monolitiske og hule paneler adskiller sig ikke kun i udseende og pris, men også i tekniske egenskaber. Størrelsen og typen af beton, der anvendes, påvirker primært priserne på armeret betongulv.
Prislisterne angiver ofte ikke kun prisen pr. Plade, men også de vigtigste parametre og angiver også, hvor mange plader der kan leveres af en maskine ad gangen. Prisklassen er ret stor - fra 350 til 10 tusind rubler, fordi indikatoren er påvirket af mange faktorer.
Funktioner i produktionen af betonplader med et volumen på 2 m³ og strukturer i andre størrelser
Armeret beton er et materiale, der består af en blanding af beton, forstærket med armeringsstænger eller tråd. Det er denne kombination af komponenter, der gør armerede betonplader i forskellige størrelser til et holdbart byggemateriale. På grund af at stålforstærkningsstængerne er inde i betonblandingen, er de pålideligt beskyttet mod korrosion og skadelig miljøpåvirkning.
Til gengæld forbedrer stålelementerne lejegenskaberne for betonblandingen, som er relativt skrøbelig. Det er som et resultat af denne kombination, at armerede betonkonstruktioner er karakteriseret ved evnen til at modstå kompression. Uanset størrelse består plader således af følgende elementer:
- fittings;
- beton, som er let, tung eller silikat.
Forstærkningsindsatser er stålstænger eller trådbundter, som igen er opdelt i følgende typer:
- Arbejdere. De placeres i bunden af armeret betonprodukter og arbejder i bøjning.
- Montering. De udgør strukturens bund eller skelet, deres hovedopgave er at give pladens volumen og fastgøre placeringen af de armerende armeringsstænger.
Til produktion af lofter anvendes tung, stresset beton bestående af vand, en cementblanding og et specielt fyldstof, der er opdelt i sådanne typer som:
- grovkornet, bestående af knust sten eller kalksten;
- finkornet, hvis basis er kvartssand.
De vigtigste aktive ingredienser, der udgør beton, er cement og vand. Takket være deres interaktion opnås en cementsten, der holder fyldstofkornene sammen, hvilket resulterer i, at der opnås en fast monolit.
Interessant information! På grund af det faktum, at cement ikke interagerer med fyldstof, betragtes det som et inaktivt materiale. Imidlertid har fyldstoffet, uanset kornstørrelse, stor indflydelse på betonens egenskaber og struktur.
Hvis der anvendes fremstillet af plader, anvendes forkomprimeret beton, som kaldes stresset, bruges stænger i en let strakt tilstand til at forstærke det, hvilket øger gulvets styrke markant. Produktmængden påvirkes ikke kun af størrelsen på betonpladerne, men også af egenskaberne ved de dele, der anvendes i produktionen.
Typer af gulvplader, størrelser, GOST: grundlæggende standarder
Monolitiske rammebygninger vinder mere og mere popularitet, hvis essens er dannelsen af en sammenhængende plade over hele gulvets overflade. De største ulemper ved en monolitisk struktur er høje omkostninger, behovet for at skabe en foreløbig ramme og den non-stop proces med at hælde beton. Derfor mister færdige armerede betonprodukter ikke deres relevans og bruges aktivt, især i privat udvikling.
Derudover giver de lavere priser på betongulvplader og produktstørrelserne, der præsenteres i et stort antal i detailforretninger, dig mulighed for at vælge den passende mulighed for hvert specifikt byggeplads afhængigt af det tildelte budget og den arkitektoniske idé. Pladerne er lette at installere og hjælper med at fremskynde processen med bygningskonstruktion, og der kræves ikke noget yderligere installationsarbejde til installationen. En anden væsentlig fordel er fraværet af krympning i armeret betongulv.
Sådanne strukturer er kendetegnet ved øget stivhed, de er modstandsdygtige over for fugt og ekstreme temperaturer og har høje varme- og lydisoleringsegenskaber. Gastætte strukturer bruges også til opførelse af beboelsesejendomme. I de fleste tilfælde er den tilladte belastning på gulvpladerne 800 kg / m², og det maksimale tryk, som produkterne er designet til, starter fra 8 kPa. Da huse bygget ved hjælp af gulvplader har været bygget i lang tid, kan en lang levetid også bemærkes. På den foreslåede liste overvejes hovedtyperne og størrelserne af gulvplader i henhold til GOST:
- Hul. De har en bredde fra 1 til 3,6 m, en længde fra 1,7 til 9 m. Tykkelsen varierer afhængigt af modellen fra 16 til 30 cm. De er kendetegnet ved tilstedeværelsen af hule gennemgående huller.
- Præfabrikeret ribbet. I henhold til GOST-standarder er dimensionerne på ribbet gulvplader repræsenteret af parametre som højde - op til 40 cm, bredde - op til 3 m, længde varierer fra 6 til 18 m.
- Solide ekstra strukturer. Længde - fra 1,8 til 5 m, højde - 12-16 cm.
Interessant information! Alle egenskaber og dimensioner for armerede betonprodukter (gulvplader) er reguleret af standarderne i GOST 21924.2-84. Afhængigt af produkttypen kan de desuden udstyres med udløb for fittings samt lokale udskæringer og huller.
Når du vælger armeret betonkonstruktioner til konstruktion, er det ud over hovedparametrene vigtigt at tage højde for produktets vægt, hvilket vil påvirke den anvendte type løfteudstyr. Ofte på byggepladser er der kraner designet til at løfte strukturer, der vejer op til 5 tons. For eksempel kan en betonplade med et volumen på 2 m³ eller mere veje fra tre til 4,5 ton, hvilket kan være for meget for en konventionel kran.
Hulplader: dimensioner, hovedtyper
Dette er den mest almindelige type armeret betonprodukter, som oftest produceres af industrielle virksomheder. På grund af funktionerne og størrelsen på forskellige størrelser anvendes hule-kernede betonplader i vid udstrækning til industrielle, fleretages og private bygninger. Tilstedeværelsen af hulrum hjælper med at klare kommunikationen og opvarmningsnettet.
Den næsten helt flade og glatte overflade af hule-kerne-paneler tillader ikke kun hurtigt at installere lofter på gulvet, men forenkler også arbejdet med implementeringen af gulvbelægning og loftdesign. Tilstedeværelsen af hulrum påvirker ikke pladernes evne til at modstå tunge belastninger. Afhængigt af den indvendige sektion såvel som af formen og diameteren skelnes der mellem hulrum af følgende typer:
- rund;
- oval;
- halvcirkelformet.
Ud over det faktum, at tilstedeværelsen af hulrum reducerer massen af gulvplader betydeligt, har hule kernepaneler andre fordele, som inkluderer:
- Sparer betonblanding under produktion, hvilket reducerer omkostningerne ved færdige produkter.
- Gode egenskaber. Hulplader med høj kerne har en høj støj- og varmeisolering, hvilket øger kvaliteten af den færdige bygning.
- Fremme processen med kommunikation.Hulrummene inde i pladerne bruges til ikke kun at lægge kabler, men også andre kommunikationslinjer, for eksempel rør med forskellige diametre.
- Stort udvalg af størrelser og priser på armeret betongulv. I produktionen kan du finde paneler i næsten enhver størrelse, inklusive ikke-standardmål, men de koster lidt mere.
- Lysning af hele strukturen. På grund af den lavere masse af hule kerne plader vil der være ringe indflydelse på fundamentet, hvilket positivt vil påvirke stabiliteten af hele strukturen.
Produktionsegenskaber og fordelene ved at bruge visse typer produkter
Afhængigt af produktionsegenskaberne opdeles hulplader i hulformede forskallinger (PC), hule kerner letvægts (PLO) og hule kerner forskallinger (PB). Produktionsprocessen til fremstilling af hulformede forskallingsplader ser sådan ud:
- Betonopløsningen hældes i det forberedte metalforskalling med forstærkende elementer og et metalnet placeret indeni.
- Derefter, under påvirkning af vibrationer, komprimeres betonen godt og behandles i en hydrotermisk kasse, hvis temperatur er 80 ° C, og den absolutte fugtighed når 100%. I 7-12 timer falder temperaturen inde i kassen støt.
- Efter at blandingen er hærdet fuldstændigt, fjernes den færdige armerede betonplade af de faste stålkopper, hvilket letter installationen af panelerne. På lageret markeres alle plader og modtager teknisk dokumentation.
Med hensyn til lette betonplader betragtes de som en moderniseret version af pc-plader, som adskiller sig i reduceret tykkelse. Hvis standardstørrelsen på armerede betongulve er 22 cm, er tykkelsen af den lette version kun 16 cm, hvilket igen påvirker produktets endelige vægt og volumen. Så volumenet af en betonplade 2,4x1 m af en letvægtstype vil være lig med 0,38 m³, og volumenet af en standard pc-plade af samme størrelse når allerede 0,52 m³, mens vægten af den første plade vil være 550 kg, og den anden - allerede 750 kg, hvilket angiver en signifikant forskel i vægt.
På grund af det faktum, at der ved produktionen af pladen anvendes en tættere armering med anvendelse af fortykket armering, kan den modstå den samme vægt som hule pc-plader. Følgelig betragtes brugen af PNO-plader mere økonomisk, fordi de er lidt billigere i pris, og belastningen på fundamentet vil være endnu mindre. På grund af det faktum, at sådanne plader optager mindre volumen, kan flere plader bringes ind af en maskine, hvilket reducerer omkostningerne ved levering af produkter.
Relateret artikel:
Forstærkede betonblokke: et alsidigt materiale til opførelse af pålidelige bygninger
Anvendelsesområde. Varianter af blokke efter type, størrelse og anvendelsesområde. Fremgangsmåden til installation af armeret betonblokke.
Pladerne, der produceres uden brug af forskalling, fremstilles ved en kontinuerlig støbeproces, og den endelige form af panelet gives af en formemaskine. Dette produktionsprincip gør det muligt at fremstille plader med stor længde - op til 9 meter, som på kundens anmodning kan skæres i alle længder med en nøjagtighed på flere centimeter. Dette gør det muligt at bruge forskellige størrelser af betongulvplader til at designe komplekse arkitektoniske elementer.
Dybest set er pladernes tykkelse 22 cm, men i nogle tilfælde kan du finde andre produkter i højden. Den største fordel ved PB-plader er evnen til at bruge produkter i lodret position til konstruktion af vægge.
Det er interessant! De fleste industrielle virksomheder fremstiller nøjagtigt forskallingsbrædder, for det er ikke nødvendigt at købe ekstra udstyr til deres produktion.

Dimensionerne på de hule kerneplader er bekvemme til overlappende spændvidder op til 12 m lange, og formen er velegnet til kommunikation
Grundmål på hulplader
Standardmålene for hule gulvplader i henhold til GOST 9561.91 varierer inden for følgende grænser:
- længden varierer fra 1,5 til 9 m;
- bredde - fra 1 til 1,8 m;
- den mindste pladevægt er 500 kg
- den maksimale vægt overstiger 4 tons.
Det skal også huskes, at diameteren af de indre hulrum også påvirker panelernes styrke: jo mindre størrelsen på det gennemgående hul, jo mere holdbart betragtes produktet. For eksempel er forskellige typer 1PKK- og 2PKK-plader kendetegnet ved lignende dimensioner, kun i det første tilfælde er diameteren på gennemgangshullerne 159 mm, og i den anden - 140 mm antyder dette, at 2PKK-plader har en højere bæreevne.
Indikatoren for den beregnede belastning er den masse, som gulvet kan modstå, inklusive værdien af dets egen vægt. Den maksimale belastning på gulvpladen afhænger hovedsageligt af betontypen og af pladens tykkelse, som oftest svarer til 22 cm. I produktionen er der muligheder for øget stabilitet med en tykkelse på 30 cm - disse er plader mærket 6PK samt lette konstruktioner, hvis højde er 16 cm.
I overensstemmelse med GOST skal dimensionerne på pc'ens gulvplader være som følger:
| Dimensioner på pc-kort (længde, bredde, højde), mm | Volumen, m³ | Vægt, t |
| 1980x990x220 | 0,44 | 0,61 |
| 2180x1190x220 | 0,571 | 0,85 |
| 2680x990x220 | 0,58 | 0,83 |
| 3180x1490x220 | 1,04 | 1,6 |
| 4180x1190x220 | 1,09 | 1,525 |
| 5080x990x220 | 1,11 | 1,475 |
| 6180x990x220 | 1,35 | 1,83 |
Ifølge GOST er målene på gulvpladerne PB som følger:
| Dimensioner (LxBxH), mm | Volumen, m³ | Vægt, t |
| 5380x1195x220 | 1,41 | 1,91 |
| 5980x1195x220 | 1,57 | 2,125 |
| 6580x1195x220 | 1,73 | 2,34 |
| 7180x1195x220 | 1,89 | 2,55 |
| 8960x1195x220 | 2,36 | 3,19 |
GOST-størrelse bord til lette gulvplader:
| Dimensioner (LxBxH), mm | Volumen, m³ | Vægt, t |
| 6280x1190x160 | 1,20 | 1,7 |
| 5380x1190x160 | 1,02 | 1,4 |
| 3580x1190x160 | 0,68 | 0,92 |
| 4780x1190x160 | 0,91 | 1,25 |
| 5980x990x160 | 0,95 | 1,43 |
| 4780x990x160 | 0,76 | 1,1 |
| 2380x990x160 | 0,38 | 0,55 |
Hulkerne gulvplader PB, PK og PNO anvendes i vid udstrækning i byggeriet. Uanset den valgte type, til sidst, i sidste ende, for et hvilket som helst antal etager, opnås en højstyrkestruktur. På trods af at pladerne adskiller sig i den måde, de produceres på, er de ikke desto mindre designet til at løse lignende problemer.
Hvad du kan lære om egenskaber og dimensioner for pc-gulvplader
Ikke alle bygherrer skal studere funktionerne i produktionen af forskellige typer paneler, før de køber, men alle, der skal beskæftige sig med indkøb af materialer til konstruktion, skal vide, hvordan de dechiffrerer de markeringer, der er angivet på produkterne. Hvert produkt er mærket i overensstemmelse med GOST 23009.
Produktet er normalt markeret med 3 alfanumeriske grupper adskilt af bindestreger og prikker. I begyndelsen angives normalt paneltypen og hoveddimensionerne på dækpladen, såsom længde og bredde. Det er vigtigt at vide, at alle værdier er angivet i decimeter og afrundes til nærmeste helværdi. Derudover angiver betegnelserne gulvets bæreevne, eller det kan være en indikator for den beregnede belastning målt i kilopascal eller kg pr. Kvadratmeter af produktet.
Hvis der købes en plade af forspændt beton, er klassen af armeringsstål yderligere angivet. Betontypen er normalt ikke angivet på produktet. Den tredje markeringsgruppe indeholder ofte følgende egenskaber:
- modstandsdygtighed over for gasser
- evne til at modstå seismisk påvirkning
- tilstedeværelsen af yderligere indlejrede elementer.
Som et eksempel, der hjælper dig med at forstå strukturen i mærkningen, kan du overveje hulkernepladen 1PK63.15-6AtVL, hvor:
- 1PC - betyder, at dette er en hulkerneplade med afrundede huller;
- 63 - afrundet længde i decimeter, i millimeter vil den være 6280;
- 15 - afrundet bredde værdi, når oversat til millimeter betyder 1490;
- 6 - den maksimale belastning på panelet er 6 kPa eller 600 kg pr. Kvadratmeter;
- ATV - mærkning, der angiver klassen af brugte fittings;
- L - dette brev angiver, at produktet er lavet af letbeton.
Hvis produktet har en mærkning af en lignende type 1PK 63.15-6AtV-C7, kan vi sige, at en sådan plade er designet til brug i et område med øget seismisk aktivitet og er i stand til at modstå rystelser op til 7 på Richter-skalaen. Dette siger den ekstra markering af C7.
Forskelle mellem PB (PPS) og PC (PNO) gulvplader: størrelser, priser og andre parametre
Hvis vi taler om tykkelsesparametrene, har alle typer hulkerneplader værdier fra 160 mm til 300 mm, men 220 mm anses for at være standarden. Med hensyn til længden adskiller PB-pladerne sig i øgede dimensioner - den maksimale værdi her når 12 m, mens det er muligt at skære produktet med en nøjagtighed på 10 cm. PC-pladernes standardlængde er op til 7,2 m, mens tonehøjden er klart reguleret og den maksimale længde PNO-panelet når 6,3 m.
Bredden på paneler af enhver type er generelt standard og er kendetegnet ved følgende værdier (i meter):
- 1;
- 1,2;
- 1,5;
- 1,8.
PB-plader produceres oftest med en bredde på 1,2 m, meget sjældnere kan du finde option 1 og 1,5 m. Produktion af ikke-forskallingsplader med en bredde på 1,8 m findes praktisk taget ikke. Typisk belastning på hulplader er 800 kg / m². Den maksimale belastning på pc-plader når dog 1250 kg / m2, mens PB-plader kan bestilles til en belastning på 1600 kg / m2.
Nyttige råd! Hvis du køber en plade med åbne hulrum i enderne, skal de forsegles med cementmørtel og isolering.
En vigtig forskel mellem pc- og PB-kort er overfladens glathed: mens den første mulighed ikke kan prale af en flad overflade, har PB-kortene takket være udjævning med en ekstruder et glat og attraktivt udseende. Den gennemsnitlige tæthed af betonplader, uanset type, er 1400-2500 kg / m³.
Tabellen viser spredning af priser afhængigt af parametrene:
| Pladetype | Dimensioner (LxBxH), mm | Vægt, t | pris, gnid. (PC) |
| PC | 3380x1490x220 | 1,64 | 5360 |
| 2380x1490x220 | 1,2 | 3780 | |
| 2980x1190x220 | 0,97 | 3600 | |
| 2180x1190x220 | 0,82 | 2940 | |
| PB | 2080x997x220 | 0,69 | 2914 |
| 2380x997x220 | 0,79 | 3334 | |
| 2180x1197x220 | 0,84 | 3677 | |
| 3180x997x220 | 1,05 | 4468 | |
| PNO | 3180x990x160 | 0,95 | 4450 |
| 2380x1490x160 | 0,67 | 4624 | |
| 4780x990x160 | 1,1 | 6073 | |
| 1580x1190x160 | 0,3 | 2998 |
Hvad er ribbet plader, deres vigtigste egenskaber
Ribbet gulvplader kaldes også U-formet. De fik deres navn på grund af to parallelle afstivningsribber, hvor afstanden generelt er 600 mm. Yderligere stivhed af produktet tilvejebringes på grund af armering, som gør det muligt at reducere forbruget af beton og samtidig opretholde den styrke, der påvirker strukturens modstand mod bøjning. Produktets ydeevne forbedres ved tilstedeværelsen af flere tværgående ribben. Pladerne er lavet af beton B15 eller B20. Under hensyntagen til de eksterne funktioner er panelerne opdelt i to typer:
- Plader, der er kendetegnet ved fraværet af en åbning i hylden, er markeret med bogstaverne PG.
- Blokke, hvor der er en forsænket åbning, er karakteriseret ved PV-mærkning. Den største fordel ved at bruge ribbet plader af dette mærke er muligheden for at lede en luftkanal eller skabe en ventilationsaksel.
På grund af deres specielle udseende og specifikke karakteristika anvendes U-formede gulvplader ofte til konstruktion af ikke-boligkonstruktioner såsom garager eller lager. Ved opførelse af beboelsesbygninger er det upraktisk at bruge plader af denne art til at skabe et mellemgulv, fordi de ikke har en sådan flad overflade som andre overlapningsmuligheder. Et ujævnt loft vil se grimt ud, det vil ikke være let at beklæde det æstetisk, og der vil være problemer med at lægge kommunikation.
Det er interessant! I nogle tilfælde bruges ribberede plader til at skabe varme- eller vandforsyningsnetværk.
Det vigtigste kendetegn ved ribbet paneler i sammenligning med andre typer gulve er deres højde. Tykkelsen af en U-formet betonplade ligger normalt i området 30-40 cm. Tyndere muligheder anvendes til opførelse af små bygninger og til at adskille loftet fra rummet. Plader på 40 cm tykke findes ofte på byggepladser til industrianlæg.
Dimensionerne på de ribbet gulvplader adskiller sig også fra hinanden i bredden: værdien af denne parameter er inden for 1,5-3 m, og hver type har sine egne fordele. Således vil konstruktionen ved hjælp af tre meter paneler være hurtigere på grund af den større bredde, hvilket ikke kun reducerer tid, men også arbejdsomkostninger. Hvis du bruger smallere en og en halv meter plader, vil bygningen komme stærkere ud.

En af ulemperne ved ribbet gulvelementer er umuligheden af deres anvendelse til opførelse af beboelsesejendomme.
Andre egenskaber ved ribbet betongulv: dimensioner og andre parametre
Sammenlignet med dimensionerne på pc-kort overskrider ribbet gulvplader dem betydeligt i længden. Hovedsageligt i produktionen er der produkter, hvis længde er 6 eller 12 m. Til individuel produktion er der også muligheder for paneler på 18 meter. Som i andre tilfælde afhænger deres masse også af pladernes størrelse, hvilket er især vigtigt at overveje, når du transporterer produkter, og når du opretter en installationsplan.
En gulvplade til et hus, der måler 12 m, kan veje fra 4 til 7 tons, selvom gennemsnitsværdien anses for at være 1,5-3 tons. Hvis det ønskes, kan du bestille plader lavet af lettere beton, som påvirker produktets vægt. Alle U-formede strukturer er udstyret med monteringssløjfer for nemheds skyld.
Når du køber, skal du være opmærksom på tilstedeværelsen af huller beregnet til kommunikation samt mærket af beton, der bruges i produktionen. Alle disse egenskaber påvirker i sidste ende bygningens bæreevne. Ifølge GOST er den maksimale belastning på ribbet gulvplader 180-830 kg / m².
Med hensyn til prisen er ribbet plader i sammenligning med pc-plader lidt billigere, og de er også lettere i vægt end hule kerner. Hovedårsagen til, at de købes sjældnere end andre muligheder, er kuldenes høje ledningsevne.
Gulvpladens tykkelse på den øverste hylde overstiger ikke 5 cm. Det betyder, at selv ved en svag minus temperatur vil den tynde hylde lade kulden inde i bygningen på kort tid. Af denne grund har ribbet gulve brug for yderligere isolering, hvilket medfører unødvendig tid og økonomiske omkostninger.
Tabellen viser størrelsen på gulvplader:
| Mål (længde, bredde), mm | Tykkelse, mm | Vægt, kg |
| 1170-390 | 90 | 65 |
| 1370-390 | 76 | |
| 1570-390 | 87 | |
| 1770-390 | 100 | |
| 2370-390 | 120 | 154 |
| 2570-390 | 167 | |
| 2970x390 | 150 | 197 |
| 3170x390 | 206 | |
| 3370x390 | 227 | |
| 3570x390 | 240 |
Hvad påvirker størrelsen på gulvpladen: standardstørrelser af monolitiske produkter
I klassificeringen af lofter indtager monolitiske plader en særlig position på grund af det faktum, at de kun installeres i specielle tilfælde. Tykkelsen på en monolitisk gulvplade afhænger hovedsageligt af produktets længde:
- hvis længden er 6,6 m, vil tykkelsen være inden for 16 cm;
- med en længde på 3,6-4,2 m overstiger tykkelsen ikke 12 cm.
Prisen og størrelsen på armerede betonplader af monolitisk type afhænger direkte af produktets tykkelse. Jo tykkere produktet er, jo mere signifikant er det i vægt, men man skal huske på, at med denne indikator svarende til 16 cm, vil produkterne have øgede lyd- og varmeisoleringsegenskaber, og tynde plader skal yderligere isoleres og lydisoleres. På trods af at monolitens størrelse også reguleres af GOST-standarderne, er det muligt at fremstille specialfremstillede produkter på bestilling. Når du vælger dimensioner, skal du tage højde for, at jo større og tungere produktet er, jo sværere bliver det at levere og hæve det til den ønskede højde.
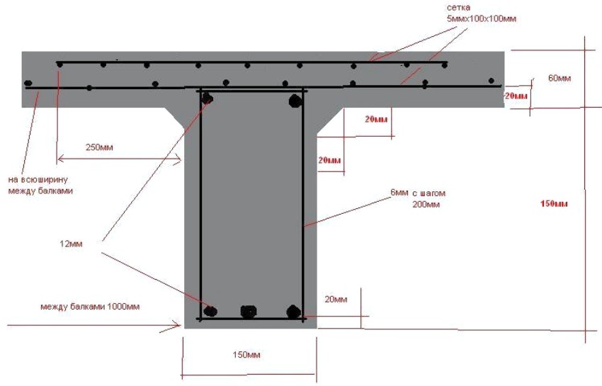
Produktionen af monolitiske plader indebærer anvendelse af armering, som er grundlaget for den fremtidige struktur. Forstærkningsnettet er lagt, så afstanden mellem det og forskallingshuset ikke overstiger 3 cm.Forskallingen er en sammenklappelig struktur, der bruges til at forme pladen og ligner en kasse. Tykkelsen på stålstængerne skal være fra 1 til 1,2 cm. Til fremstilling af plader af denne type anvendes højkvalitetsbeton af M200-mærket.
Nyttige råd! På handelsgulve kan du finde genanvendelig forskalling, der giver dig mulighed for selv at lave plader. Den største ulempe ved en monolitisk struktur er en lang størkningstid på op til 28 dage. Derfor udføres konstruktion bedre i den varme årstid, fordi høj luftfugtighed og frost forlænger hærdningstiden.
Det er også vigtigt at tage højde for, at en monolitisk betonplade med et volumen på 2 m³ nedsænket på bunden vil være noget tungere end hulkerne eller ribbet plader, hvilket skal tages i betragtning ved beregning af bæreevnen for bygningens bærende struktur. For at løfte pladen er det også nødvendigt med en kraftig kran. Det er af denne grund, at store monolitiske plader, i modsætning til pc-paneler og U-formede plader, fremstilles direkte på byggepladsen.
Hvad er sorterne af monolitiske armerede betongulvplader: størrelser og priser på produkter
Monolitiske gulve er opdelt i 3 typer, som hver har sine egne forskelle, installationsmetoden og den endelige pris pr. Stykke. Der er sådanne sorter:
- bjælke;
- rammeløs
- ribbet.
Stråletypen af overlapning, afhængigt af hvilken overflade pladen har - glat eller ribbet, adskiller sig også med hensyn til brugen af strukturer. En plade med en ribbet overflade lægges vinkelret på kanterne, og glatte produkter monteres vinkelret på pladerne. Stivheden af den færdige bygning afhænger også af den korrekte placering. I konstruktionen anvendes to typer bjælker:
- vigtigste, der har en større tværsnitsdiameter;
- mindre - med en mindre diameter.
Til spændvidder af betydelig størrelse anvendes gulve med et spændvidde på tre meter. Monolitiske armerede betonbjælker lægges på væggen, som derefter forbindes med den vigtigste armerede betonplade og yderligere forstærkes. Normalt lægges bjælker i en afstand på 1,3-5 m fra hinanden. For at opnå større stivhed er de desuden fastgjort i et armeret betonbælte ved hjælp af ankre. Bjælketypen af overlapning anvendes, hvor det er bydende nødvendigt at opnå et jævnt loft, hvilket er særligt vigtigt for en beboelsesbygning. Prisen på en forstærket bjælke op til 6 m i størrelse starter fra 1213 rubler. et stykke.
Kolonner med hovedstæder lavet i form af en omvendt pyramide bruges til at skabe et ikke-bjælkebund. Sektion af forstærkningsstifter er 8-12 mm. Hovedstæderne er kendetegnet ved frigørelse af beslag på begge sider, som igen kommer ind i pladen og tilføjer stivhed til strukturen. Spændtykkelsen på rammeløse plader er 1 / 35-1 / 30 i forhold til selve produktets længde.
For nylig, mere og oftere, er søjler og plader betonet på samme tid. Prisen afhænger direkte af størrelsen af overlapningen og varierer fra 300 til 2500 rubler. til 1 m².
I modsætning til ribbet plader er caissontypen af gulve karakteriseret ved, at ribbenene er placeret i begge retninger. De største fordele ved at bruge denne type gulv er den reducerede vægt af strukturen, jo større bøjningsstyrke, der tilvejebringes af det ribbet mesh.
Under konstruktionen anvendes forstærkningsarmering ved krydset mellem søjlen og gulvet for at gøre strukturen mere pålidelig, hvor søjlens ben indføres i forskallingshulrummet. Stifternes tværsnitsdiameter er mindst 8 mm.
De største fordele og ulemper ved at bruge monolitiske plader
Monolitiske gulvplader på grund af deres egenskaber bruges ofte til opførelse af bygninger med et komplekst arkitektonisk design, og i tilfælde af at strukturen har ikke-standardiserede parametre og er karakteriseret ved komplekse vinkler og former. Den største fordel ved monolitten er bygningens øgede stivhed, derfor bruges den i tilfælde, hvor det er nødvendigt at udføre en bygning designet til en tung belastning.
For eksempel er det vigtigt at bruge monolitiske plader i opførelsen af et industrielt værksted, hvor der ikke kun vil være statisk, men også dynamisk belastning forårsaget af konstant vibration af udstyret. Andre fordele ved monolitiske produkter:
- Besparelser ved levering. På grund af den store størrelse samles pladerne direkte på byggepladsen, hvilket sparer på logistik samt lastning og losning. Derudover er der ikke behov for at udstyre et lager til opbevaring.
- Tilgængelighed af byggematerialer, der anvendes til fremstilling. Beton kan altid købes eller fremstilles straks på byggepladsen, og affald af sekundært jernholdigt metal er også egnet til armering.
- Lettere arbejde med indretning. Takket være brugen af forskalling har pladens nederste overflade en flad og glat overflade, som giver dig mulighed for hurtigt at udføre efterbehandlingsarbejde med minimale omkostninger.
- Øgede varmeisoleringsegenskaber. Fraværet af samlinger mellem pladerne øger evnen til ikke kun at holde på varmen, men også at absorbere lyd.
- Lang levetid. På grund af det faktum, at beton beskytter stålstænger mod korrosion, hvilket igen øger betonens ydeevne, forbliver bygningen stærk i lang tid. Det skal dog huskes, at andre typer overlapning har disse egenskaber.
- Stort udvalg af størrelser og former. Da monolitiske plader kan få en hvilken som helst form ved hjælp af forskalling, giver de deres anvendelse dig mulighed for at designe støttebenbalkoner med afrundede former samt gøre glattere bøjninger på bygningens facade.
Med hensyn til manglerne betragtes den vigtigste for at være teknisk vanskeligt arbejde, fordi en monolitisk plade med de krævede dimensioner med styrkeegenskaber kun produceres af erfarne specialister med de relevante færdigheder. GOST indeholder ikke standarder for selvfremstillede betonprodukter. De overordnede parametre for produkterne beregnes individuelt i hvert tilfælde, henholdsvis ekstra omkostninger skal fordeles til at betale for en hældningsspecialist. Andre ulemper ved monolitiske plader:
- Betydelig vægt. Fraværet af hulrum og de store dimensioner af produkterne giver det færdige produkt en stor masse, hvilket vil kræve skabelsen af et mere solidt fundament.
- Lang hærdetid. I henhold til GOST-standarderne er betonhærdningsperioden i forskallingen 28 dage, hvilket forlænger byggeperioden.
For ikke at blive forvekslet, når du køber en plade til konstruktion, skal du først og fremmest udover størrelsen spørge sælgeren om varens oprindelse og om producentens omdømme. Det er vigtigt at kontrollere betonkvaliteten og kvaliteten af det færdige panel. Du bør ikke købe produkter med åbenlyse krænkelser af integriteten, hvilket reducerer strukturens bæreevne. Det er bydende nødvendigt at sikre dig, at du har et produktpas, og vælg derefter antallet af plader ud fra de krævede dimensioner. Det vigtigste er at forstå, at stabiliteten af den færdige bygning afhænger af gulvenes kvalitet.



























