Πολλοί κάτοικοι των προαστιακών και προαστιακών οικισμών ονειρεύονται να διακοσμήσουν τον κήπο τους με ένα κομψό κιόσκι. Αναθεωρούν τις σελίδες των εικονικών περιοδικών αναζητώντας μια ενδιαφέρουσα λύση. Και είναι, αυτό είναι ένα κιόσκι από ξύλο: ακολουθώντας την τεχνολογία κατασκευής βήμα προς βήμα και ακολουθώντας τις συστάσεις έμπειρων επαγγελματιών, μπορείτε να δημιουργήσετε ένα μοναδικό περίπτερο που θα γίνει το αγαπημένο σημείο διακοπών για όλη την οικογένεια και τους καλεσμένους σας. Η αυτο-κατασκευή όχι μόνο θα εξοικονομήσει τον προϋπολογισμό σας, αλλά θα σας επιτρέψει να πάρετε πολλή ευχαρίστηση από τη διαδικασία.
Περιεχόμενο
- 1 Σχέδια και διαστάσεις του κιόσκι
- 2 Φτιάξτε μόνοι σας κιόσκι από ξύλο: χτίζουμε μια δομή βήμα προς βήμα
- 2.1 Βασικά εργαλεία και υλικά για την κατασκευή
- 2.2 Συσκευή θεμελίωσης
- 2.3 Κατασκευή δαπέδου Arbor
- 2.4 Εγκατάσταση στέγης
- 2.5 Τοποθέτηση ασφαλτικών βοτσάλων
- 2.6 Χαρακτηριστικά του εξαγωνικού σχεδιασμού κιόσκι
- 2.7 Σύνθεση περιφράξεων για κιόσκια από ξύλο με τα χέρια σας. Φωτογραφίες τελικών κατασκευών
- 2.8 Διακοσμητικός σχεδιασμός του κιόσκι
Σχέδια και διαστάσεις του κιόσκι
Τα σχέδια Arbor είναι πολύ διαφορετικά και ενδιαφέροντα. Ορισμένες κατασκευές διαφέρουν σε μη τυπικά σχήματα, μπορεί να είναι ανοιχτές ή κλειστές, να είναι εξοπλισμένα με μπάρμπεκιου και μπάρμπεκιου. Αλλά αν αποφασίσετε να χτίσετε για πρώτη φορά, είναι καλύτερα να επιλέξετε μια ανοιχτή δομή απλού σχήματος, για παράδειγμα, τετράγωνη ή εξαγωνική. Σχέδια και σκίτσα στο έργο ενός τέτοιου κιόσκι δεν θα είναι περίπλοκα και θα προσφέρονται για ανεξάρτητη ανάπτυξη.

Πρωτότυπο διάταξη βεράντας με ξύλινο κιόσκι και σχάρα
Πρώτα απ 'όλα, πρέπει να αποφασίσετε για το σχεδιασμό της κατασκευής και να επιλέξετε ένα μέρος για τη μελλοντική κατασκευή. Η ανάπτυξη του έργου περιλαμβάνει δύο στάδια: τη δημιουργία ενός σκίτσου και κατασκευαστικών σχεδίων σε προφίλ και μετωπικές προβολές. ΣΕ σχέδια κιόσκι Εμφανίζονται οι διαστάσεις, τα ύψη των ραφιών, το σχήμα της οροφής, η θέση εισόδου, το ύψος του φράκτη. Εάν προορίζεται μια στατική εγκατάσταση του πίνακα και καταστήματα, είναι απαραίτητο να εμφανιστεί η θέση τους στο σχέδιο.
Ξεχωριστά, πραγματοποιείται ένα διάγραμμα εργασίας του θεμελίου και ένα σχέδιο της οροφής, που δείχνει το σχήμα, το ύψος, τη γωνία κλίσης του. Το έργο συνταγογραφεί διαγράμματα τεχνικών μονάδων (στέγη, δοκούς, σκαλοπάτια), τεχνολογία κατασκευής, προδιαγραφές για τα υλικά του ιδρύματος, τοίχους, χωρίσματα, δάπεδα, οροφές. Λαμβάνει επίσης υπόψη την κατανάλωση ειδικής σύνθεσης για αποτελεσματική επεξεργασία ξύλου από εξωτερικούς παράγοντες.
Εάν σχεδιάζεται να εξοπλίσει τη δομή με φωτισμό, οι θέσεις εγκατάστασης των λαμπτήρων και το διάγραμμα καλωδίωσης καταγράφονται στο σχέδιο. Αυτό ισχύει επίσης για την πιθανή παροχή νερού στο περίπτερο.
Ένα καλά σχεδιασμένο έργο είναι το κλειδί για την επιτυχή κατασκευή.Ακριβείς υπολογισμοί του αριθμού των απαιτούμενων ράβδων, σανίδων, συνδετήρων, στεγών, υλικού και άλλων απαραίτητων στοιχείων θα επιτρέψουν την αγορά ενός πλήρους συνόλου υλικών για κατασκευή και την αποφυγή παράλογων δαπανών.
Χρήσιμες συμβουλές! Τα υλικά πρέπει να αγοραστούν με μικρό περιθώριο, δεδομένου ότι ορισμένα εξαρτήματα ενδέχεται να καταστραφούν κατά λάθος κατά τη διαδικασία εγκατάστασης ή να βρεθούν ελαττωματικά στοιχεία στα αγορασμένα υλικά.
Εάν αμφιβάλλετε για τις μηχανικές σας ικανότητες και η ανάπτυξη ενός έργου θα φαίνεται δύσκολη για εσάς, μπορείτε να χρησιμοποιήσετε έτοιμα σχέδια από ξύλινα άξονες με τα χέρια σας. Φωτογραφίες και σκίτσα τέτοιων κτιρίων αφθονούν στο Διαδίκτυο.
Φτιάξτε μόνοι σας κιόσκι από ξύλο: χτίζουμε μια δομή βήμα προς βήμα
Η κατασκευή ενός κιόσκι είναι μια επίπονη διαδικασία που απαιτεί προσοχή, τήρηση των κανόνων εγκατάστασης και αυστηρή τήρηση του έργου. Εάν όλη η εργασία εκτελείται με μια συγκεκριμένη σειρά, η διαδικασία θα προχωρήσει εύκολα και σε μόλις δύο ή τρεις ημέρες η δομή θα είναι έτοιμη. Συνιστάται να ελέγξετε τη διαθεσιμότητα όλων των εργαλείων εκ των προτέρων και να αγοράσετε όλα τα απαιτούμενα υλικά σύμφωνα με τους υπολογισμούς, έτσι ώστε η επιχείρηση να μην σταματήσει λόγω της έλλειψης μέρους.
Βασικά εργαλεία και υλικά για την κατασκευή
Η επεξεργασία ξύλου απαιτεί ειδικό εξοπλισμό και εργαλεία. Ελέγξτε τη διαθεσιμότητα και τη δυνατότητα συντήρησής τους. Για να εργαστείτε θα χρειαστείτε:
- φτυάρι ή τρυπάνι - για να φτιάξετε ένα λάκκο ή λάκκους θεμελίωσης.
- επίπεδο κτιρίου, μεζούρα, τετράγωνο;
- κανόνας;
- σμίλη, σφυρί, κλειδιά, μαχαίρι στέγης ·
- πριόνι, παζλ ή κυκλικό πριόνι.
- τρυπάνι ή κατσαβίδι.
- Βούλγαρος;
- στεγνωτήρας μαλλιών κατασκευής
- ηλεκτρικό επίπεδο
- καλώδιο κατασκευής - για σήμανση.
- γυαλόχαρτο, πινέλα, σπάτουλα.
Η ποσότητα των υλικών που απαιτούνται για την κατασκευή λαμβάνεται με βάση τις προδιαγραφές:
- άμμος, θρυμματισμένη πέτρα, τσιμέντο - ανάλογα με τον τύπο του θεμέλιο: στήλη ή ταινία?
- πίνακας ξυλότυπου - εάν υποτίθεται βάση ταινίας.
- μια δοκός με διαφορετική διατομή - 50x150 mm χρησιμοποιείται για τον κάτω ιμάντα, την κεντρική δέσμη του πλαισίου και το κορμό δαπέδου. 100x100 mm - για ορθοστάτες, κορδόνι πάνω 50x100 mm - χρησιμοποιείται για γωνιακές, βοηθητικές και κοντές δοκούς, καθώς και για περίφραξη. 50x50 mm - για περιφράξεις κάγκελων.
- σανίδα δαπέδου;
- επένδυση οροφής - κόντρα πλακέ πάχους 12 mm.
- τσόχα - για μόνωση
- εύκαμπτα (ασφαλτικά) πλακάκια, ασφαλτική κόλλα.
- συνδετήρες - βίδες, γωνιακά στηρίγματα, μεταλλικές γωνίες, βίδες αυτοεπιπεδούμενων, καρφιά οροφής.
- αστάρι, στόκος από ξύλο;
- βαφή, βερνίκι.
Συσκευή θεμελίωσης
Για παράδειγμα, θα χρησιμοποιήσουμε ένα μικρό τετράγωνο ξύλινο κιόσκι με ισχίο.
Επιλέγοντας το σωστό μέρος για κιόσκι, ξεκινήστε την προετοιμασία του ιστότοπου. Είναι απαραίτητο να αφαιρέσετε όλα τα συντρίμμια, να αφαιρέσετε τους θάμνους και τις ρίζες των δέντρων εκεί. Εάν υπάρχουν προσκρούσεις ή καταθλίψεις, είναι ισοπεδωμένες.
Χρήσιμες συμβουλές! Εάν είναι δυνατόν, μην εγκαταστήσετε κιόσκι κοντά στο δρόμο ή γείτονα φράκτης, προσπαθήστε να τοποθετήσετε το κιόσκι σε τέτοιο μέρος που να ανοίγει από την όμορφη θέα του κήπου, της αλπικής διαφάνειας ή της λίμνης.
Στη συνέχεια, γίνονται σημάνσεις για τη μελλοντική δομή. Για να γίνει αυτό, η πρώτη σφήνα οδηγείται και ολόκληρη η περίμετρος της δομής σημειώνεται από αυτήν, στερεώνοντας τις γωνίες με σφήνες. Ένα καλώδιο κατασκευής τραβιέται μεταξύ τους. Σε αυτό το στάδιο, είναι πολύ σημαντικό να διατηρηθεί η σωστή γωνία, καθώς αυτό θα επηρεάσει στη συνέχεια την αντοχή ολόκληρης της δομής.Για να το επιβεβαιώσετε, πρέπει να ελέγξετε τις διαγώνιες του τετραγώνου που προκύπτει. Εάν είναι τα ίδια, τότε η σήμανση γίνεται σωστά και παρατηρείται γωνία 90 μοιρών.
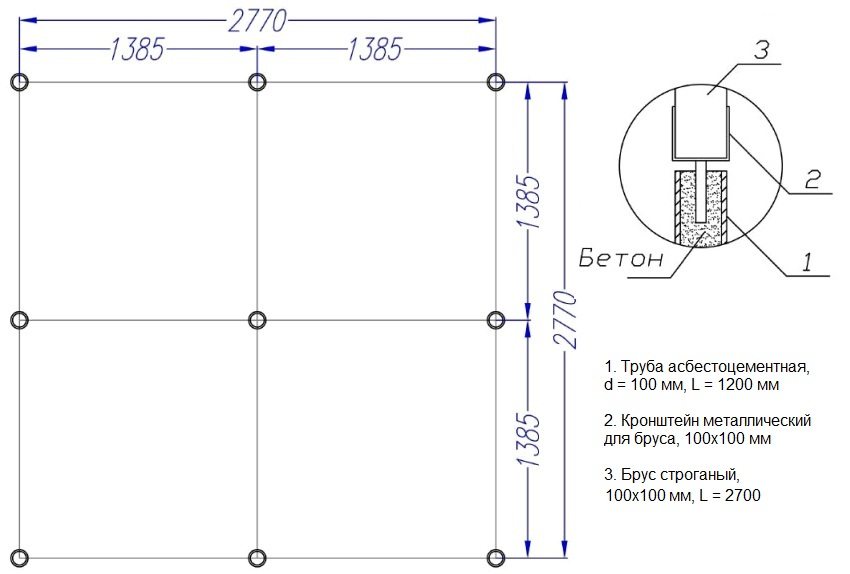
Βασικά, για μικρές ξύλινες κατασκευές, χρησιμοποιείται λωρίδα ή στήλη. Δεδομένου ότι η κατασκευή ενός ξύλινου τετράγωνου κιόσκι είναι αρκετά ελαφριά, επιλέγεται ως βάση η στήλη. Για να γίνει αυτό, κατασκευάζονται λάκκο βάθους έως 80 cm, τοποθετείται ένα στρώμα άμμου (5-6 cm) στον πυθμένα τους και χύνεται με στρώμα σκυροδέματος περίπου 8-10 cm.
Όταν το μείγμα σκυροδέματος σκληραίνει λίγο, τα ράφια κατεβαίνουν σε αυτό. Πρέπει να εγκατασταθούν κάθετα. Μετά την κατακόρυφη ευθυγράμμιση των στηριγμάτων από το επίπεδο, η θέση τους στερεώνεται με προσωρινά φτερά.
Είναι δυνατόν να στερεώσετε τις ράγες στήριξης χρησιμοποιώντας ρυθμιζόμενες άγκυρες. Για αυτό, τοποθετούνται κομμάτια μεταλλικών σωλήνων κατάλληλου μεγέθους στα λάκκα, το διάλυμα χύνεται στην κοιλότητα του σωλήνα και μετά από μια μικρή ρύθμιση του διαλύματος, τοποθετούνται συνδετήρες (αγκύρια). Όταν το σκυρόδεμα έχει οριστεί τελικά (τουλάχιστον 48 ώρες), οι ορθοστάτες μπορούν να ασφαλιστούν. Αφού εγκαταστήσετε όλα τα στηρίγματα, πρέπει να βεβαιωθείτε ότι η θέση τους είναι σωστή: η απόσταση μεταξύ γειτονικών στηριγμάτων πρέπει να είναι αυστηρά η ίδια σε όλο το ύψος των στηριγμάτων (κάτω, στη μέση και πάνω).
Σχετικό άρθρο:
Καλοκαιρινή κουζίνα στη χώρα: έργα, φωτογραφίες ενδιαφέρων ιδεών. Τύποι καλοκαιρινών σχεδίων κουζίνας στη χώρα. Τα πλεονεκτήματα των κλειστών κτιρίων. Ανεξάρτητη κατασκευή καλοκαιρινής κουζίνας στη χώρα.
Κατασκευή δαπέδου Arbor
Το επόμενο βήμα μετά την εγκατάσταση των στηριγμάτων είναι το κάτω λουράκι των κάθετων στύλων. Για αυτό, χρησιμοποιείται μια ράβδος με διατομή 50x150 mm. Το πλαίσιο δαπέδου πραγματοποιείται με καθυστερήσεις στερέωσης, οι οποίες βρίσκονται σε απόσταση όχι μεγαλύτερη από 45 cm μεταξύ τους. Αυτό θα επιτρέψει στη δομή του πλαισίου να στηρίξει το βάρος της ξύλινης πλατφόρμας. Οι καθυστερήσεις συνδέονται με τις οριζόντιες δοκούς δέσμευσης με γωνιακούς βραχίονες, έχοντας προηγουμένως τρυπήσει τις οπές στερέωσης για βίδες με αυτοκόλλητο.
Στη συνέχεια, προχωρήστε στην εγκατάσταση ενδιάμεσων ραφιών. Στη συνέχεια, θα φέρουν το βάρος της ξύλινης δομής οροφής και θα χρησιμοποιηθούν για τη στερέωση της άνω οριζόντιας ράγας. Τα ράφια είναι προσαρτημένα στα κορμούς με καρφιά. Ο ίδιος κανόνας ισχύει εδώ και για τα γωνιακά στηρίγματα - όλες οι θέσεις πρέπει να εγκατασταθούν αυστηρά κάθετα.
Μόλις συναρμολογηθεί το πλαίσιο δαπέδου και εγκατασταθούν ενδιάμεσα στηρίγματα, προχωρούν στην εγκατάσταση του δαπέδου από το ταμπλό. Για το δάπεδο, χρησιμοποιείται σανίδα κατάλληλη για εξωτερική χρήση, η οποία αντέχει καλά τις επιδράσεις των φυσικών παραγόντων. Τότε δεν θα χρειαστεί να ανακαλύψετε μετά από σύντομο χρονικό διάστημα ότι οι σανίδες έχουν σαπίσει σε ορισμένα μέρη.
Για να στερεώσετε τη σανίδα στο κιβώτιο, χρησιμοποιούνται καρφιά ή βίδες. Στερεώστε την πλακέτα χρησιμοποιώντας δύο καρφιά ή βίδες από κάθε άκρο.
Χρήσιμες συμβουλές! Εάν χρησιμοποιούνται καρφιά για τη στερέωση των σανίδων, πρέπει να γίνουν τρύπες εκ των προτέρων. Αυτό θα βοηθήσει στην αποφυγή ρωγμών του ξύλου.
Αφού τοποθετήσετε το δάπεδο σανίδας, προχωρήστε στην άνω οριζόντια σύνδεση των στηριγμάτων κιόσκιχρησιμοποιώντας μια δέσμη 100x100 mm. Το λουρί από μόνος σας από τους στύλους ενός ξύλινου κιόσκι (παραδείγματα φωτογραφιών παρέχει οπτικές πληροφορίες) πραγματοποιείται με το πριόνι κλειδαριών από τα άκρα της ξυλείας, τα οποία συνδέονται μεταξύ τους και στερεώνονται με δύο καρφιά.
Εγκατάσταση στέγης
Για ένα τετράγωνο κιόσκι, το πιο ελκυστικό θα είναι μια οροφή που αποτελείται από τέσσερις πλαγιές. Η κατασκευή στέγης ξεκινά με την κατασκευή του σκελετού. Τα κεκλιμένα πόδια δοκού κόβονται από την ξυλεία, στερεώνονται σε ζευγάρια με καρφιά υπό γωνία.Τα βοηθητικά στηρίγματα συνδέονται συμμετρικά σε καθένα από τα κύρια κεκλιμένα πόδια. Είναι στερεωμένα με τη μία άκρη στη δοκό δέσμευσης, το άλλο στις κύριες δοκούς.
Χρήσιμες συμβουλές! Για να εργαστείτε στην οροφή, προσκαλέστε έναν βοηθό, καθώς είναι αδύνατο να αντιμετωπίσετε μόνο την εγκατάσταση.

Για την τακτοποίηση της οροφής του κιόσκι, μπορείτε να χρησιμοποιήσετε φύλλα από κόντρα πλακέ ανθεκτικό στην υγρασία
Στη συνέχεια, προχωρήστε στην κάλυψη της οροφής. Για αυτό, μπορείτε να χρησιμοποιήσετε τόσο σανίδα όσο και φύλλο από κόντρα πλακέ. Η στερέωση των πλακών από κόντρα πλακέ πραγματοποιείται στην επιφάνεια των δοκών με βήμα 20-25 cm χρησιμοποιώντας βίδες αυτο-χτυπημάτων Η επιφάνεια των φύλλων κόντρα πλακέ καλύπτεται με μονωτικό υλικό στέγης - τσόχα στέγης και στη συνέχεια μαλακά (ασφαλτικά) πλακάκια.
Τοποθέτηση ασφαλτικών βοτσάλων
Τα εύκαμπτα βότσαλα είναι ελαφριά και εύκολα στην εγκατάσταση. Στερεώστε την εύκαμπτη οροφή στο δάπεδο με φαρδιά καρφιά. Τα πλακίδια μαρκίζες τοποθετούνται στις μαρκίζες από όλες τις πλευρές Για ευκολία εγκατάστασης και καλή ευκαμψία του υλικού, χρησιμοποιείται στεγνωτήρας μαλλιών. Στη συνέχεια, ξεκινά η τοποθέτηση συνηθισμένων εύκαμπτων βοτσάλων. Κατά τη στερέωση της πρώτης σειράς, είναι απαραίτητο να επιλέξετε τόσο μεγάλο μήκος καρφιών ώστε να περάσουν από τις μαρκίζες και τα συνηθισμένα πλακάκια και να φτάσουν στην ξύλινη βάση της οροφής του κιόσκι.
Πριν χρησιμοποιήσετε το πλακίδιο, αφαιρέστε το προστατευτικό φιλμ από αυτό. Τα φύλλα επικαλύπτονται. Κατά την τοποθέτηση κάθε σειράς υλικού, τα φύλλα τοποθετούνται έτσι ώστε τα αποκόμματα της προηγούμενης σειράς να καλύπτονται με τις προεξοχές της επόμενης. Κατά τη στερέωση του έρπητα ζωστήρα, είναι απαραίτητο να διασφαλιστεί ότι τα καρφιά φτάνουν στο περίβλημα οροφής σε σημεία του διπλού στρώματος υλικού. Διαφορετικά, τα νύχια θα ωθηθούν στη συνέχεια και θα προκαλέσουν τα πλακίδια να ξεφλουδίσουν.
Όταν το υλικό φτάσει στο διάλειμμα της κλίσης, τα περίσσεια των άκρων των πλακιδίων κόβονται στο ίδιο επίπεδο με τη γραμμή κλίσης. Σε αυτά τα μέρη, το υλικό επιχρίεται επιπλέον με ασφαλτική κόλλα.
Στη συνέχεια, αρχίζουν να τοποθετούν τα πλακίδια κορυφογραμμής. Για να γίνει αυτό, ένα φύλλο πλακιδίων κόβεται σε τρία μέρη και κάθε πλάκα που προκύπτει τοποθετείται με την πλευρά κόλλας κατά μήκος της κορυφογραμμής με επικάλυψη 5 cm. Στερεώστε κάθε πλάκα με καρφιά σε τέσσερα σημεία. Έτσι, επεξεργάζονται όλα τα σημεία των πλαγιών.
Μια στέγη από ασφαλτούχα πλακάκια για ένα ξύλινο κιόσκι με τα χέρια σας (η φωτογραφία το δείχνει) φαίνεται αρκετά ελκυστική λόγω της ποικιλίας των σχημάτων και των χρωμάτων. Ένα από τα πλεονεκτήματα ενός τέτοιου καλύμματος στέγης είναι η αθόρυβη βροχή και χαλάζι.
Χρήσιμες συμβουλές! Όταν αγοράζετε βότσαλα, βεβαιωθείτε ότι όλα τα πακέτα αντιστοιχούν στην ίδια παρτίδα. Το υλικό από διαφορετικές παρτίδες μπορεί να ποικίλει στο χρώμα.
Οι εργασίες στεγών πλακιδίων εκτελούνται πολύ προσεκτικά, προσπαθώντας να μην καταστρέψουν το υλικό με καρφιά.
Χαρακτηριστικά του εξαγωνικού σχεδιασμού κιόσκι
Όλα τα στάδια αυτο-ανέγερσης ενός εξαγωνικού άξονα είναι παρόμοια στην εγκατάσταση με μια τετραγωνική δομή. Το θεμέλιο, το δάπεδο και οι στύλοι του κιόσκι κατασκευάζονται σύμφωνα με τα διαθέσιμα σχέδια. Όσον αφορά την οροφή έξι πλαγιών, συνιστάται η κατασκευή στο έδαφος και η τελική κατασκευή ανυψώνεται και προσαρτάται στο πλαίσιο του κιόσκι.
Λόγω της απουσίας κεντρικού υποστηρικτικού στοιχείου στη δομή, είναι πολύ δύσκολο να συνδεθούν όλα τα δοκάρια μεταξύ τους. Επομένως, συνιστάται να δοθεί στην ξυλεία το σχήμα ενός εξαγώνου, κάθε πλευρά του οποίου πρέπει να αντιστοιχεί σε μέγεθος με το πάχος των δοκών. Τα άκρα των δοκών δοκών κόβονται υπό γωνία και, με τη σειρά τους, στερεώνονται με καρφιά στην κομμένη ράβδο με εξαγωνικό τμήμα. Το άλλο άκρο των δοκών εισάγεται στις αυλακώσεις, οι οποίες είναι προ-κομμένες στη δέσμη.
Στη συνέχεια, το πλαίσιο της οροφής είναι επενδυμένο με σανίδα ή κόντρα πλακέ, και η τελική κατασκευή ανυψώνεται και στερεώνεται στους στύλους στήριξης του κιόσκι.
Σύνθεση περιφράξεων για κιόσκια από ξύλο με τα χέρια σας. Φωτογραφίες τελικών κατασκευών
Η εμφάνιση του κιόσκι εξαρτάται σε μεγάλο βαθμό από τον τύπο του φράκτη. Μπορεί να είναι στερεό ή πλέγμα. Ανάλογα με τις προτιμήσεις σας, το κιγκλίδωμα μπορεί να αποτελείται από κιγκλιδώματα και κάγκελα, από δύο ή τρία οριζόντια ξύλινα στοιχεία που βρίσκονται κατά μήκος κάθε πλευράς του κιόσκι, καθώς και με τη μορφή ρόμβων εγκατεστημένων μεταξύ των κάθετων στηριγμάτων της κατασκευής. Μερικοί άνθρωποι προτιμούν να κανονίσουν ένα φράχτη από ένα βαγόνι ή ένα μπλοκ. Όλα εξαρτώνται από τη δημιουργική φαντασία σας και τη διαθεσιμότητα του ελεύθερου χρόνου.
Το ύψος των περιφράξεων είναι παραδοσιακά 75-85 cm, αλλά αυτή η τιμή μπορεί να αλλάξει όπως θέλετε. Τα οριζόντια τμήματα του φράχτη είναι στερεωμένα με βίδες ή γωνίες αυτοεπιτροπής. Επιπλέον, οι βίδες πρέπει να εισέρχονται στο δέντρο υπό γωνία. Δεν συνιστάται η χρήση καρφιών που οδηγούνται στα άκρα των ράβδων κάγκελων μέσω του κιγκλιδώματος για στερέωση οριζόντιων ράβδων. Αυτό μπορεί να οδηγήσει σε ρωγμή της ξυλείας. Για την τοποθέτηση κάγκελων στο κιγκλίδωμα, συνιστάται να χρησιμοποιείτε πείρους.
Τα κάγκελα μπορούν να εγκατασταθούν κάθετα, υπό γωνία, με τη μορφή διαμαντιού. Για να στερεώσετε τα κεκλιμένα κάγκελα στις οριζόντιες ράβδους, οι αυλακώσεις είναι τοποθετημένες σε μια συγκεκριμένη γωνία από πάνω και κάτω. Τα άκρα των κάγκελων κόβονται επίσης σε κατάλληλη γωνία, τα οποία στη συνέχεια εισάγονται στις αυλακώσεις.
Επιπλέον, για να δώσετε στο κιόσκι μια ανοιχτή εμφάνιση, τακτοποιήστε ένα οριζόντιο διακοσμητικό περίγραμμα στην κορυφή. Το ύψος του πεζοδρομίου είναι το ένα τρίτο του ύψους του ίδιου του φράχτη. Το μοτίβο συγκράτησης ακολουθεί συνήθως τη διαμόρφωση του κάτω κιγκλιδώματος, αλλά μπορείτε να τα κάνετε διαφορετικά. Το κύριο πράγμα είναι ότι δεν έρχονται σε αντίθεση με το γενικό στυλ του ξύλινου κιόσκι.
Διακοσμητικός σχεδιασμός του κιόσκι
Μόλις ολοκληρωθεί όλη η εργασία, προχωρήστε στην επεξεργασία ξύλινων επιφανειών. Εάν ορισμένα από τα στοιχεία ξύλου έχουν μικρές ρωγμές, πρέπει να γεμίσουν με γέμισμα ξύλου. Αφού στεγνώσει ο στόκος, αρχίζουν να τρίβονται όλα τα στοιχεία. Για τους σκοπούς αυτούς, χρησιμοποιείται χαρτί λείανσης με μεσαίου κόκκου επίστρωση. Περαιτέρω, όλες οι ξύλινες επιφάνειες υφίστανται επεξεργασία με βερνίκι σε δύο στρώσεις και το δεύτερο στρώμα εφαρμόζεται αφού στεγνώσει πλήρως το προηγούμενο.

Κοντά λεκάνη τοποθετημένο κιόσκι σε μια μικρή ξύλινη πλατφόρμα
Χρήσιμες συμβουλές! Η επίστρωση με βερνίκι πραγματοποιείται με ομοιόμορφες κινήσεις βουρτσών, πρώτα κατά μήκος των ινών και στη συνέχεια απέναντι. Το βερνίκι πρέπει να διανέμεται λεπτά και ομοιόμορφα στην επιφάνεια, χωρίς χαλάρωση.
Η διάρκεια ζωής ενός ξύλινου κιόσκι εξαρτάται σε μεγάλο βαθμό από το πόσο καλά επεξεργάζεται το ξύλο.
Το εσωτερικό του κιόσκι μπορεί να είναι πολύ διαφορετικό. Μπορεί να είναι ένα ξύλινο τραπέζι και πάγκοι, κατασκευασμένο ανεξάρτητα και μόνιμα στερεωμένο στη δομή. Πολλοί άνθρωποι προτιμούν να εγκαταστήσουν άνετα φορητά έπιπλα στο κιόσκι με τη μορφή ξαπλώστρες ή πολυθρόνες από μπαστούνι... Μπορείτε να παρέχετε ηλεκτρικό ρεύμα στο κιόσκι και να εγκαθιστάτε όμορφα φώτα γύρω από την περίμετρο. Μερικοί φέρνουν νερό στη δομή του κιόσκι. Όμορφα φυτά αναρρίχησης φυτεύονται συχνά κατά μήκος του φράχτη του κιόσκι.
Ένα σύμβολο ηρεμίας και ηρεμίας στον κήπο σας είναι ένα κιόσκι do-it-yourself κατασκευασμένο από ξύλο. Ακολουθώντας όλες τις συστάσεις βήμα προς βήμα, δεν είναι δύσκολο να συναρμολογήσετε μόνοι σας τη δομή. Και τα χειροποίητα προϊόντα διακρίνονται πάντα από ιδιαίτερη άνεση και ζεστασιά.
























