Pätevä ja tarkka tikkaiden laskenta on tae niiden kätevästä ja turvallisesta käytöstä. Niille, jotka päättävät valmistaa ja koota rakenteen itse, sinun on tiedettävä, kuinka laskea portaat toiseen kerrokseen oikein. Portaiden tyypin valinnasta riippuen laskenta voi olla enemmän tai vähemmän monimutkaista. Toimiva suunnittelu on mahdollista saada vain, jos kaikkia teknisiä standardeja noudatetaan ja kaikki portaiden pääparametrit otetaan huomioon: pituus, leveys, kaltevuuskulma, portaiden syvyys ja korkeus.
Sisältö
- 1 Kuinka laskea portaat toiseen kerrokseen: peruslaskentaparametrit
- 2 Portaiden laskeminen toiseen kerrokseen 90 ja 180 asteen käännöksellä
- 3 Ominaisuudet laskettaessa portaita toiseen kerrokseen omin käsin: ruuvisuunnittelu
- 4 Portaiden laskeminen "hanhen askel"
- 5 Kaiteiden, kaiteiden ja portaiden kaiteiden suunnitteluparametrit
- 6 Portaiden laskeminen online-laskimella
Kuinka laskea portaat toiseen kerrokseen: peruslaskentaparametrit
Joten portaiden asentamisen jälkeen toiseen kerrokseen sinun ei tarvitse huomata, että se on liian jyrkkä tai kapea, on erittäin vaikea kiivetä tai laskeutua siihen on hankalaa, sinun on tiedusteltava etukäteen, kuinka toiseen kerrokseen johtavat portaat lasketaan. Tätä varten sinun on perehdyttävä tikkaiden rakenteisiin ja niitä koskeviin vaatimuksiin.
Tikkaiden rakenteiden tyypit
Yksi tai toinen portaat toiseen kerrokseen valitaan rakennuksen suunnitteluominaisuuksien, portaiden tarkoituksen, sisätilojen yleisen tyylin ja asennuksen vapaan tilan perusteella.
Portaikkorakenteiden päätyypit:
- suorat marssiportaat yhdellä jännevälillä;
- yksimarssi 90 asteen käännöksellä säteen (kääntymisen) askelin;
- yksimarssi 180 asteen käännöksellä säteen (kääntymisen) askelin;
- suora kahden marssin yhdistetty tasalla;
- L: n muotoinen kaksimarssi, joka on yhdistetty alustalla;
- U-muotoinen kaksimarssi, joka on yhdistetty alustalla;
- kolmen marssin, yhdistää kaksi paikkaa;
- ruuvi (kierre).
Talon tai huoneiston sisäpuolelle asennetut portaat ovat yksinkertaisia - niihin kuuluu suorat rakenteet ja portaat, joissa on korit. Portaat talossajotka sisältävät useita lentoja ovat oikealla (käännä myötäpäivään) ja vasemmalle (käännä vastapäivään). Monimutkaisemmat mallit - pyörivä ja kierreportaat.
Tärkeimmät portaiden käytön vaatimukset ovat:
- mukavuus ja turvallisuus portaita ylöspäin liikuttaessa;
- portaikon tulisi sijaita mahdollisimman lähellä talorakennuksen sisäänkäyntiä;
- portaikko tulisi sijoittaa vaiheittain sisäänkäynnin huoneeseen, johon se on asennettu. Jos tällaista mahdollisuutta ei ole koko rakennetta varten, on tarpeen kääntää ainakin muutama ensimmäinen askel sisäänkäynnille;
- portaikon tulisi viedä huoneeseen mahdollisimman vähän tilaa, mutta ottaen huomioon rakenteen turvallisuus;
- tikkaiden asennuspaikka on varustettu lisävalaistuksella.
Hyödyllisiä neuvoja! Jos suunniteltu portaikko on vierashuoneessa, kulku portaikon sisäänkäynnistä on siirrettävä huoneen seinälle, eikä se saa ylittää tilaa vinosti.
Portaikkorakenteiden perusosat
Tikkaiden rakenteen laskemiseksi on navigoitava rakenneosissa, joista se koostuu.
Tikkaiden rakenteiden pääosat sisältävät seuraavat elementit:
- portaiden lento - rakenne, joka yhdistää kaksi alustaa ja koostuu portaista;
- kosour - tukipalkki, jossa on kolmiomaiset leikkaukset, johon porrat on kiinnitetty ylhäältä. Tällaisella kiinnityksellä varustettujen portaiden päät näkyvät sivulta katsottuna;
- keulanaru on tukipalkki, johon portaat työnnetään sisältäpäin erityisiin pistorasioihin tai uriin;
- kulutuspinta - askelman vaakasuora pinta;
- nousuputki - askelman ulompi pystysuora sivu, jonka leveys on yhtä suuri kuin portaiden korkeus;
Hyödyllisiä neuvoja! Portaikkorakenteen päästämiseksi enemmän valoa ja ulkonäkö on melko kevyt, on suositeltavaa, ettei siinä käytetä nousuputkia.
- kelausaskelmat - portaat, joiden toinen reuna on pienempi kuin toinen. Niitä käytetään kääntämään portaita;
- alusta - vaakasuora pinta, joka yhdistää portaita;
- kaiteet - pystypylväät, jotka tukevat kaiteita ja ulkonevat portaiden aita;
- tukijalustat - portaiden alkuun ja loppuun asennetut kaiteet ovat kaiteiden ja kaiteiden kiinnittimiä;
- kaiteet, kaiteet - kaiteiden yläpuolella oleva aita, jota pidetään kiinni laskeutuessa tai portaita ylöspäin noustessa.

Portaikon elementit: 1 - maaliskuu; 2 - alusta; 3 - kaiteet; 4 - laakeripalkki (stringer tai bowstring); 5 - ampua viiva; 6 - aloitusvaihe; 7 - ulostulovaihe; 8 - kulutuspinta; 9 - nousuputki; 10 - tukijalustat; 11 - kaiteet
Kun olet tutustunut portaikkorakenteiden pääelementteihin, voit aloittaa portaikon turvallisen laskemisen pelkäämättä sekoittumista sen osien käsitteisiin ja nimiin.
Tikkaat järjestelmän laskentaparametrit
Niille, jotka päättivät laskea itsenäisesti portaat toiseen kerrokseen, on tehtävä projekti. Projektin mukaan voit laskea rakenteen mitat: portaiden pituus ja leveys, portaiden määrä, kaltevuuskulma. Portaikko on laskettava peräkkäin, jotta ei tehdä virheitä vaadituissa arvoissa, koska pienetkin virheelliset laskelmat voivat johtaa ei-toivottuihin seurauksiin portaikkojärjestelmän käytön aikana.
Tikkaiden rakenteen laskeminen sisältää useita kohtia:
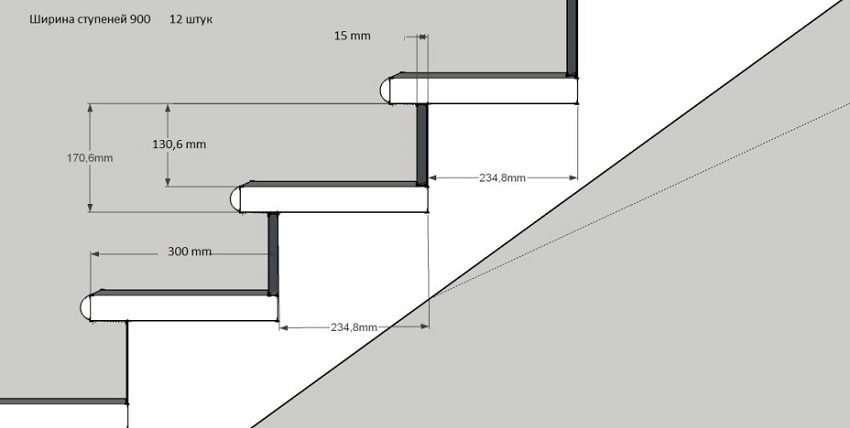
- portaiden kallistuskulma (jyrkkyys)... Portaiden kallistuskulma, jossa liikkuminen pitkin sitä on melko mukavaa, on 40-45 astetta. Mutta tällaisen rakenteen sijoittaminen vaatii paljon tilaa, mikä ei ole aina mahdollista. Siksi tällaisia malleja käytetään erittäin harvoin. Tämän vuoksi portaikkorakenteet on järjestetty 36 asteen jyrkemmällä kaltevuudella. Tällaisesta portaikosta siirtyminen on melko kätevää, mitä ei voida sanoa laskeutumisesta (ehkä vain selkäsi eteenpäin). On myös otettava huomioon, että etäisyys jalan pinnasta limitykseen tai ulkoneviin osiin oli yli 2 m.Tämä sääntö otetaan huomioon laskettaessa kääntyviä portaita, joissa on korit ja säteen (kelaus) portaat;
- koko ja vaiheiden määrä... Yhden marssin vaiheiden määrän tulisi olla 3--18 kappaletta. Portaiden ylöspäin liikkumisen helpottamiseksi on suositeltavaa, että portaita portaita yhdellä lennolla. Laskettaessa portaiden portaita niitä ohjaa kaava, joka osoittaa, että askelman kahden korkeuden ja kulutuspinnan leveyden (askelman pinnan) tulisi olla yhtä suuret kuin henkilön keskimääräinen askel, eli noin 60 cm. Yksinkertaisilla laskelmilla saat selville, että askelman suositeltu leveys on 27 -28 cm, ja nousuputkeksi kutsutun askelman korkeus on mieluiten 17-18 cm, puuportaiden laskelmissa otetaan huomioon myös ulkoneman (nokan) leveys. Sen päälle vapautuu noin 4 cm, ja haluaisin huomata vielä yhden tärkeän asian: portaiden koko pituudelta on oltava sama korkeus ja leveys, jotta liikkuminen pitkin sitä on mukavaa ja turvallista;
- portaikon leveys (maaliskuu)... Portaiden leveys toiseen kerrokseen riippuu sen käytön intensiteetistä. Standardien mukaan portaikon leveyden on oltava vähintään 100 cm, enintään 140 cm. Tällä leveydellä yksi tai kaksi ihmistä voi liikkua portaita pitkin sekä nostaa isoja huonekaluja. Leveille portaikkoille vaaditaan kuitenkin, ettei huoneessa ole tilanpuutetta. Käytännössä useammin on portaita, joiden kärkiväli on 70-90 cm. Tällaisella leveydellä on täysin mahdollista, että yksi henkilö liikkuu vapaasti ja kiipeää pieniä esineitä ja esineitä ylös portaita. Kahden tai useamman rakenteen lentojen leveyden on välttämättä oltava sama koko pituudelta.
Hyödyllisiä neuvoja! Jos portaikossa on kaksi tai useampia marsseja vastakkaiseen suuntaan, niiden välillä on oltava vähintään 50 mm: n rako.
Portaiden laskeminen toiseen kerrokseen 90 ja 180 asteen käännöksellä
Kun otetaan huomioon, että suorat yksimarsimaiset rakenteet vaativat riittävän paljon tilaa, mökeissä ja kesämökeissä käytetään pyöriviä rakenteita alustoilla tai sädeportailla. Laskettaessa portaikkoa, jossa on lasku toiseen kerrokseen pyörimällä 180 tai 90 astetta, otetaan huomioon suorakaiteen tai neliön muotoinen kaistale, josta kiertäminen tapahtuu vastaavalla astemäärällä.
Phyödyllisiä neuvoja! Laskettaessa portaita laskeutumisilla on välttämätöntä ohjata sitä, että laskujen pituuden lentojen välillä tulisi olla yli 140 cm (kaksi askelta) ja leveyden on vastattava portaikon leveyttä.
Laskettaessa portaikkoa toiseen kerrokseen 90 asteen käännöksellä kelausaskelmilla otetaan huomioon se tosiasia, että kelausaskeleita on vähintään kolme kierrosta kohti.
Pyörivien rakenteiden perusvaatimukset:
- kääntövaiheen leveyden leveästä reunasta tulisi olla vähintään 40 cm ja keskellä - vähintään 20 cm;
- portaiden kääntösäde on 30 cm;
- kaikkien marssin vaiheiden, myös kääntyvien, tulisi säännöllisesti toistaa marssin rivi. Tämä varmistaa mukavan kävelyn portaita pitkin.
Laskettaessa portaita, joissa on 180 ja 90 asteen kiertoportaat, on pidettävä mielessä, että kulutuspinnan (portaiden) leveyden kapeimmassa osassa on oltava vähintään 14 cm. tätä viivaa siirretään portaita kääntyvää osaa pitkin.
Ominaisuudet laskettaessa portaita toiseen kerrokseen omin käsin: ruuvisuunnittelu
Kierreportaiden rakenne on portaiden ympyrä, jonka toinen sivu on leveämpi kuin toinen.Ruuvijärjestelmien tärkein etu on portaiden käyttämä huomattavasti pienempi alue verrattuna marssiviin vastaaviin.
Aiheeseen liittyvä artikkeli:
Portaat toiseen kerrokseen metallikehyksessä: kauneus, armo, helppo asennus. Metallikehysten tyypit ja tyypit. Metallikaiteet. Itsetehdyt portaat.
Spiraalirakenteen asentamista varten on riittävästi ympyrän pinta-ala, jonka keskellä on tukilaakeri.
Kierreportaita laskettaessa on pidettävä mielessä, että ympyrän säde, jota pitkin se sijaitsee, on askeleen pituus. Jos kierreportaan porrasaskelman pituus on 100 cm, tällainen rakenne vie 1,5 kertaa vähemmän pinta-alaa kuin suora marssirakenne, jolla on sama porrastus.
Ruuvirakenteissa, jotka koostuvat kokonaan kääntöaskelmista, askelman leveys kapeissa ja leveissä osissa on vastaavasti 10 ja 25 cm, portaiden korkeus lasketaan identtisesti marssiportaiden kanssa.
Kierreportaita laskettaessa on otettava huomioon seuraavat seikat:
- määrittää keskitukipylvään asennuspaikka;
- välileveys ja askelen pituus lasketaan etäisyydenä keskitukesta sen rajaviivaan;
- askeleen muoto on puolisuunnikkaan muotoinen, jonka kapean reunan leveyden ei tulisi olla pienempi kuin 20 cm ja leveän - alle 40 cm;
- helpon liikkuvuuden takaamiseksi kierreportaiden portaiden korkeus tehdään pienemmäksi kuin suositellaan suorille portaille;
- Tärkeää mukavan liikkumisen kannalta on portaiden käännösten välinen etäisyys: sen on oltava vähintään kaksinkertainen halkaisijaan.
Portaiden laskeminen "hanhen askel"
Erittäin pienikokoiset portaat "hanhen askel" - ns. Portaiden muodon vuoksi, symmetrisesti asennettuina kulkusuuntaan nähden ja liittyvät hanhen askeleeseen. Ne asennetaan pääasiassa silloin, kun tilaa säästetään huomattavasti ja niiden kaltevuuskulma on 45-65 astetta. Mukavaan liikkumiseen tällaisilla portailla on leveä kulutuspinta, joka on vain puolet askelman pituudesta. Loput vaiheesta vähennetään minimiin.
Kun lasketaan portaiden "hanhen askel", kun rakenteen kaltevuuskulma ja sen käyttämä pinta-ala määritetään, otetaan huomioon seuraavat parametrit:
- kulutuspinnan leveyden jalan lepopaikassa tulisi olla noin 30 cm, joskus portaiden pienentämiseksi käytetään pienempää leveyttä;
- vaiheen kapean osan leveys voidaan määrittää suunnitteluratkaisun ja sen valmistukseen käytetyn materiaalin perusteella;
- tällaisen portaikon portaiden välinen rako ei sulkeudu;
- suositeltu askelkorkeus on 15 cm, vaikka sitä usein kasvatetaan portaiden käyttämän tilan säästämiseksi. Älä kuitenkaan saa tehdä portaiden korkeutta liian korkeaksi - tämä vaikuttaa negatiivisesti portaiden ylöspäin liikkumisen turvallisuuteen.
On huomattava, että "hanhen askeleen" tikkaat voivat marssia käyttämällä naruja tai rusetteja sekä spiraaleja.
Kaiteiden, kaiteiden ja portaiden kaiteiden suunnitteluparametrit
Kun he ovat päättäneet toisen kerroksen portaiden pääparametrit, he alkavat laskea portaikon kaiteita ja kaiteita. Tässä laskennan vaiheessa sinun on määritettävä:
- aidan korkeus (kaiteet);
- kaiteiden ja kaiteiden pituus ja leveys;
- tukijalkojen korkeus (äärimmäiset kaiteet).
Kaiteiden ja kaiteiden suositeltu leveys on 10 cm, minkä ansiosta kuka tahansa tuntuu mukavalta nojata niihin. Tikkaiden kaiteen optimaalinen korkeus on 90 cm, tässä tapauksessa kaiteiden korkeus on noin 80 cm.Mutta tässä on välttämätöntä ottaa huomioon se tosiasia, että kaiteet asetetaan erityiseen uraan, joten sen syvyys otetaan huomioon telineiden korkeutta määritettäessä.
Tukijalan korkeutta laskettaessa otetaan huomioon sen asennusmenetelmä. Jos tukipylväs on kiinnitetty portaaseen, sen korkeus on sama kuin kaikkien kaiteiden korkeus. Jos se asennetaan lattialle, on otettava huomioon etäisyys lattiasta vaiheeseen.
Kaiteiden ja kaiteiden pituus vastaa koko portaiden pituutta. Joissakin portaiden malleissa on kaiteita, jotka työntyvät hieman marssin rajojen ulkopuolelle. Suosittelemme, että tutustut erilaisiin valokuviin portaiden kaiteista.
Portaiden laskeminen online-laskimella
Toinen tapa laskea portaiden rakenteet toiseen kerrokseen on laskea portaat online-laskimella. Pyydetyt tiedot portaikon parametreista syötetään erityisesti osoitettuihin kenttiin. Laskimen avulla voit tehdä tarkat ja oikeat laskelmat minkä tahansa muotoisille portaille: marssi, kääntyminen, kierre, yhdistetty.
Kuinka laskea portaat toiseen kerrokseen laskimella? Tätä varten sinun on asetettava pääparametrit verkossa:
- portaikon tyyppi;
- aukon korkeus ja pituus;
- vaiheiden lukumäärä ja syvyys
- portaiden asennuspaikka - lähellä seinää tai huoneen keskellä. Jos rakenne on suunniteltu seinää pitkin, kaiteet ja portaiden kaiteet voidaan järjestää vain yhdelle puolelle;
- suunnitellun rakenteen marssien määrä määritetään huoneen pinta-alasta riippuen;
- katon korkeus ja tulevan portaikon pinta-ala - tiedot ovat välttämättömiä rakenteen hyväksyttävän kallistuskulman laskemiseksi.
Jos kaikki lähtötiedot syötetään laskimen asianmukaisiin kenttiin oikein, voit olla varma laskun tarkkuudesta ja värillisen tai mustavalkoisen piirustuksen tuloksesta.
Hyödyllisiä neuvoja! Oikean laskennan saamiseksi laskimella kaikki tärkeimmät tuloparametrit on mitattava yhdellä mittanauhalla.
On syytä huomata, että online-laskinohjelma perustuu GOST: n teknisiin standardeihin ja portaikkorakenteiden vaatimuksiin.
Kun olet suorittanut pätevän laskelman toisen kerroksen portaista, voit valmistaa ja asentaa rakenteen itsenäisesti varmistaen, että se täyttää kaikki vaaditut toimintastandardit.


























