Ponekad je preporučljivo vlastitim rukama napraviti kotao na kruta goriva za dugo izgaranje: crteži i dijagrami su slobodno dostupni. Sposobnost rukovanja alatom i vješte ruke pružaju dobru uslugu prilikom gradnje vlastitog doma ili ljetne vikendice. Uvijek postoji potreba da sami napravite nekakvu strukturu. Napokon, ovo značajno smanjuje troškove bilo kojeg pothvata. Jedinice za grijanje nisu iznimka. U stara vremena ljudi su unajmljivali peći za postavljanje opeke pećnice... Danas su kotlovi na čvrsto gorivo dugog gorenja postali najpopularniji.
Sadržaj
Načelo rada kotlova na kruto gorivo i njihov uređaj
Čvrsta fosilna goriva najstariji su izvor energije za čovječanstvo. Nemoguće ga je potpuno napustiti, čak ni u modernom svijetu. Štoviše, uz ogrjevno drvo i ugljen danas su se pojavile i mnoge druge vrste zapaljivih krutina:
- briketi od treseta - osušeni i stlačeni treset stvara puno topline tijekom izgaranja;
- briketi od otpada od obrade drveta - stlačena piljevina, strugotina i kora drveta;
- brezov ugljen - isti kao i za roštilj;
- reciklirani otpad s odlagališta otpada;
- peleti za grijanje goriva - fino gorivo dobiveno prešanjem piljevine. Može se automatski hraniti;
- obična suha piljevina.
Jasno je da se sve to gorivo dobiva preradom različitih otpada, što rješava problem iskorištavanja u poduzećima i ide zajedno sa "zelenom" ekonomijom.
Koristan savjet! Gore dostupna goriva koja su gore navedena su piljevina. Ako ih namjeravate koristiti za grijanje, pobrinite se da imaju vlažnost manju od 20%. Veliki pokazatelji ovog parametra neće dopustiti stvaranje plina za pirolizu, jer će većina energije za grijanje ići za sušenje goriva.
Kao rezultat ljudske aktivnosti stvara se ogromna količina otpada koji se može pretvoriti u visokoenergetsko gorivo, što je dovelo do pojave na tržištu kotlova za grijanje na dugo gorivo. Za razliku od konvencionalnih peći, ove jedinice ne rade na izgaranju samog goriva, već na njegovom cijepanju kao rezultat zagrijavanja. U radnoj komori takvih kotlova izgaraju se plinoviti proizvodi razgradnje krutog goriva. Ova je radna shema nekoliko puta učinkovitija od konvencionalnog izgaranja fosilnih goriva.Pirolizni plin odaje veliku količinu energije.

Načelo rada kotao na kruto gorivo dugo gori
Uređaj takvog postrojenja za proizvodnju plina nije vrlo složen. Možete čak i vlastitim rukama izgraditi kotao na kruta goriva za dugo izgaranje. Crtež najjednostavnije verzije izgleda ovako:
- zatvoreni cilindrični spremnik koji ima otvor za spremanje goriva, puhalicu i otvor za ugradnju dimnjaka;
- razdjelnik zraka smješten je unutar spremnika, što stvara vrtlog piroliznog plina. Pričvršćen je na pokretnu teleskopsku cijev. Cijela ova struktura poput klipa pritišće gorivo odozgo. Izgaranje plina događa se iznad klipa, a gorivo tinja ispod njega;
- izmjenjivač topline ugrađen je u gornju komoru gdje se postiže maksimalna temperatura.
U donjoj komori događa se sporo tinjanje krutog goriva. To se postiže podešavanjem dovoda zraka u puhalo. Izdvojeni plin intenzivno gori u gornjoj komori i zagrijava rashladnu tekućinu.
Koristan savjet! Ne biste trebali koristiti najjednostavniji dizajn za proizvodnju kotla koji će kontinuirano zagrijavati stambenu zgradu. Da biste to učinili, morate ili kupiti gotov proizvod ili napraviti složeniju i pouzdaniju opciju.
Kotlovi na čvrsto gorivo dugog gorenja mogu biti neophodni u privatnim kućama, u komunalnim objektima, garažama i staklenicima. Oni će biti posebno korisni tamo gdje postoji velika drvoprerađivačka industrija, jer se otpad u takvim poduzećima daje gotovo besplatno. Te su jedinice također potrebne u područjima gdje postoje redoviti prekidi u opskrbi plinom. Takve instalacije imaju brojne prednosti, ali postoji i jedan važan nedostatak - vrlo visoka cijena. Zato je danas važno samostalno izraditi kotlove na kruta goriva za dugotrajno izgaranje. Crteži za to mogu se koristiti različitih stupnjeva složenosti. Ovisi o razini vještine.
Povezani članak:
|
Kako izraditi kotao na kruta goriva dugog gorenja vlastitim rukama: crteži i dijagrami
Prije nego što započnete s proizvodnjom kotla, morate odlučiti o njegovom dizajnu. Njegov izbor ovisi o namjeni jedinice. Ako je namijenjen za grijanje male pomoćne prostorije, garaže ili ladanjske kuće, tada u njemu nije potrebno napraviti vodeni krug. Zagrijavanje takve prostorije dogodit će se izravno s površine kotla, konvekcijom zračnih masa u sobi, kao iz peći. Za veću učinkovitost moguće je organizirati prisilno puhanje jedinice pomoću ventilatora. Ako u sobi postoji sustav tekućeg grijanja, potrebno je osigurati uređaj u krugu kotla u obliku zavojnice iz cijevi ili drugog sličnog dizajna.
Dijagram spajanja kotla na kruta goriva na sustav grijanja
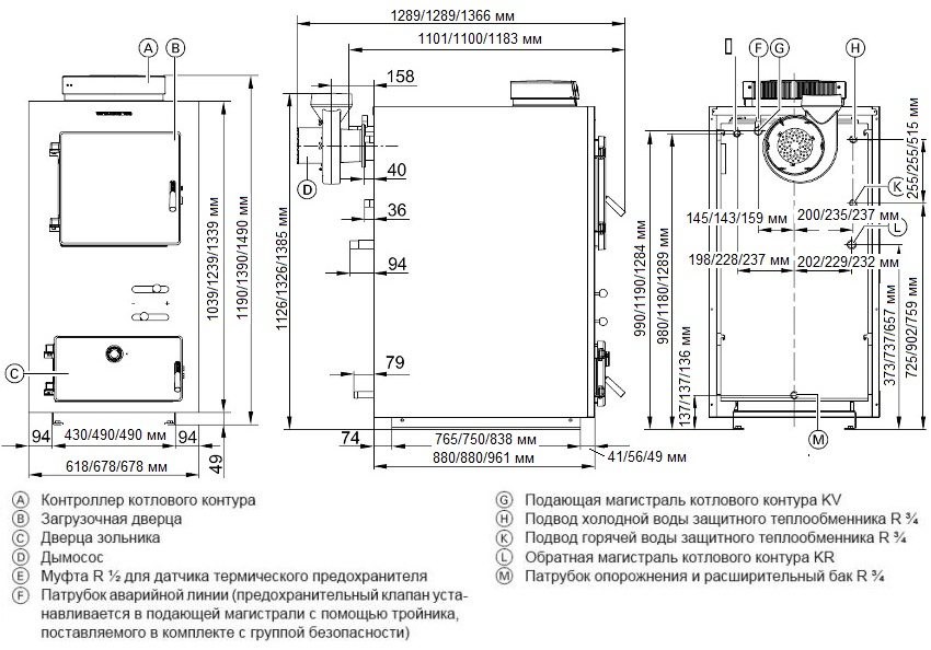
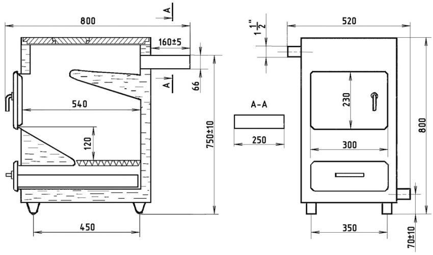
Izbor opcije također ovisi o vrsti krutog goriva koje će se koristiti. Za grijanje na obično drvo za ogrjev potreban je povećani volumen peći, a za upotrebu malih peleta s gorivom može se organizirati poseban spremnik iz kojeg se granulirano gorivo automatski dovodi u kotao. Za proizvodnju kotla za dugotrajno izgaranje na kruta goriva vlastitim rukama možete uzeti univerzalni crtež. Prikladan je za bilo koju vrstu krutog goriva.
Korak po korak ćemo vam reći kako i od kojih dijelova možete napraviti kotao za grijanje na kruta goriva za dugo izgaranje prema predloženoj shemi:
- pripremit ćemo mjesto na kojem će se instalirati buduća jedinica. Podloga na kojoj će stajati mora biti ravna, čvrsta, kruta i vatrootporna.Za to je najprikladniji betonski temelj ili debela ploča od lijevanog željeza ili čelika. Zidovi također moraju biti presvučeni vatrostalnim materijalom ako su drveni;
- sakupljamo sav potreban materijal i alate: od kojih trebamo aparat za elektrolučno zavarivanje, brusilicu i trakicu. Materijali: lim 4 mm čelik; Čelična cijev od 300 mm sa zidovima od 3 mm, kao i ostale cijevi promjera 60 i 100 mm;

Struktura i princip rada kotao na kruto gorivo
- kako bi se izradio kotao na kruta goriva za dugo sagorijevanje, potrebno je iz velike cijevi od 300 mm izrezati komad duljine 1 m. Moguće je i malo manje, ako je potrebno;
- izrezati dno od čeličnog lima prema promjeru cijevi i zavariti ga, opremivši nogama od kanala duljine do 10 cm;
- razdjelnik zraka izrađen je u obliku kruga od čeličnog lima promjera 20 mm manjeg od cijevi. U donji dio kruga zavareno je radno kolo iz kuta s policom veličine 50 mm. Za to možete koristiti kanal iste veličine;
- odozgo na sredinu razdjelnika zavarimo cijev od 60 mm, koja bi trebala biti viša od kotla. Na sredini diska razdjelnika izrežite rupu duž cijevi tako da postoji prolazni tunel. Potreban je za dovod zraka. U gornjem dijelu cijevi izrezana je zaklopka, koja će omogućiti podešavanje dovoda zraka;
- na samom dnu kotla izrađujemo mala vrata, opremljena zasunom i šarkama, koji vode do posude za pepeo za lako uklanjanje pepela. U kotlu izrežite rupu za dimnjak odozgo i na to mjesto zavarite cijev od 100 mm. Isprva ide pod blagim kutom u stranu i prema gore za 40 cm, a zatim strogo okomito prema gore. Prolaz dimnjaka kroz strop prostorije mora biti zaštićen u skladu s pravilima zaštite od požara;
- dovršavamo izgradnju kotla za grijanje na kruta goriva za dugo izgaranje izradom gornjeg poklopca. U njegovom središtu trebala bi biti rupa za cijev razdjelnika zraka. Kontakt sa zidovima kotla mora biti vrlo čvrst, isključujući ulazak zraka.
Koristan savjet! Za paljenje samoizrađenog kotla na čvrsto gorivo dugog gorenja, čiji je crtež gore predstavljen, potrebno je: ukloniti poklopac i podići regulator, napuniti kotao gorivom do vrha i uliti zapaljivu tekućinu, staviti sve na svoje mjesto i baciti goruću baklju u cijev regulatora. Kad se gorivo zapali, smanjite protok zraka na minimum, tako da samo tinja. Nakon toga, pirolizni plin će se zapaliti i kotao će se pokrenuti.

Kotao dugog gorenja - presjek
Kako sam izradio kotao na kruta goriva za dugo sagorijevanje: recenzije i preporuke
“Radim u pilani. Znao sam kući nositi čvorove i rezati kolica. Naučio sam o kotlu na kruta goriva za dugo sagorijevanje, pročitao recenzije i odlučio to učiniti. Dogodilo se. Sad je potrebno tri puta manje ogrjevnog drva i isto toliko topline ”.
Aleksandar Nikolaev, Syktyvkar
“Vidio sam čudo u kotlu u prijateljskoj garaži. Ujutro smo s njim popravljali automobil. On, dok je u njega stavljao drva, nije ga dirao do večeri. Ništa nisam mogao razumjeti dok mi nije objasnio cijelu shemu. Evo, također sam dobio ideju da se stavim u garažu. Prijatelj je rekao da će dati crteže. "
Nikolaj Platonov, Surgut

Razlike u normalnom i kotlovi za pirolizu
„Ako se odlučite, na primjer, na svojoj dači napraviti kotao na čvrsto gorivo za dugo izgaranje, čiji su pregledi pronađeni na mreži, učinite sve jasno prema shemi u skladu sa svim sigurnosnim pravilima. A onda mi je susjed spalio daču kad je instalirao kotao sav u rupe ”.
Andrey Shirshov, Tyumen
Gore opisani uređaj za grijanje služit će vam vjerno, omogućujući vam uštedu energije. Međutim, ne zaboravite sve učiniti učinkovito, bez odstupanja od sheme.












