Hladno pušenje mesa uključuje dugotrajno zapaljenje proizvoda dimom, koje se događa na niskoj temperaturi. Generator dima koristi se za osiguravanje vuče unutar konstrukcije, što doprinosi nesmetanom protoku dima u glavnu komoru. Ovaj uređaj možete sami sastaviti kod kuće. Generator dima za hladno pušenje uvelike pojednostavljuje postupak pripreme delicija kod kuće.

Kada izrađujete generator dima vlastitim rukama, dopušteno je koristiti sve raspoložive materijale, komponente i spremnike
Sadržaj
- 1 Što je generator dima za pušenje: funkcije i značajke
- 2 Uradi sam, generator dima: strukturni elementi
- 3 Generator dima za hladno pušenje: dimenzije
- 4 Uradi sam, generator dima: načelo rada uređaja
- 5 Generator dima za hladno pušenje vlastitim rukama: crtanje
- 6 Kako sastaviti generator dima za hladno pušenje vlastitim rukama: upute
- 7 Pravila za upotrebu generatora dima: fotografija i operativne značajke
- 8 Kako regulirati propuh u domaćem generatoru dima?
- 9 Kako izraditi generator dima za hladno pušenje vlastitim rukama: dodatni elementi
- 10 Kućni štednjak s generatorom dima za hladno pušenje: video i fotografija
- 11 Uradi sam generator dima iz aparata za gašenje požara: jednostavna i pouzdana opcija
Što je generator dima za pušenje: funkcije i značajke
Hladno pušenje traje prilično dugo. Ovako dobiveni proizvodi imaju suptilniju, profinjenu aromu i okus. Tijekom postupka kuhanja uništavaju se patogene bakterije. Rok trajanja proizvoda kuhanih u hladnim jedinicama može biti i do godinu dana, što je ozbiljna prednost u dizajnu.
Značajke ovog postupka zahtijevaju upotrebu posebne opreme. Najvažniju ulogu u ovom slučaju ima generator dima za pušenje. Ovaj uređaj ima određene zahtjeve. Trebao bi pomoći u stvaranju dovoljno dima i regulirati njegov intenzitet. Uređaj koji ima autonomiju uvelike pojednostavljuje postupak kuhanja dimljenog mesa.
Da biste sastavili ovaj uređaj, trebate sastaviti preliminarni crtež. Dijagram uključuje crtež budućeg uređaja, potrebne dimenzije i oznake.
Korisne informacije! Važno je napomenuti da temperatura tijekom hladnog pušenja ne raste iznad 50 ° C. Zauzvrat, minimalna vrijednost je samo 30 ° C.Trajanje takve operacije varira ovisno o kvaliteti samog proizvoda i može doseći nekoliko dana.

Specifični dim nastaje uslijed sporog sagorijevanja drvnih sirovina, kao i ostalog otpada: od johe, kruške, bukve i jabuke
Uradi sam generator dima: strukturni elementi
Samoizrada takvog uređaja neće potrajati puno vremena. Dizajn generatora dima uključuje nekoliko osnovnih elemenata koji se moraju pripremiti prije početka montaže. Razmotrimo ih detaljnije.
Prvo vam treba cijev (metalna). Njegov oblik može biti okrugli ili kvadratni. Prva opcija je poželjnija. To je zbog činjenice da kružni presjek povećava propusnost dima i ne ometa njegov transport. Cijev generatora dima za pušnicu trebala bi imati promjer od 100 do 140 mm. To je glavni strukturni element u kojem se stvara i kreće dim.
Dalje, trebate pripremiti cijevi za sastavljanje ejektora. U ovom slučaju odabiru se proizvodi manjeg promjera. Drugi važan element dizajna je opruga. Postavlja se unutar komore. Ovaj dio pomaže podići dim iz donjih slojeva čipsa prema gore.
Kompresor je obvezni element generatora dima za hladno pušenje. Ovaj je uređaj potreban za dovod ejektora u zrak. Termometar se ne smatra uvjetom. Međutim, stručnjaci i dalje preporučuju opremanje domaćeg uređaja termometrom. To će vam omogućiti praćenje promjene temperature unutar komore za stvaranje dima i izbjegavanje pregrijavanja.
Svi gore navedeni dijelovi mogu se kupiti u trgovinama hardvera i hardvera. Da biste sastavili generator dima, također morate kupiti alate poput brusilice, uređaja za zavarivanje.
Generator dima za hladno pušenje: dimenzije
Dimenzije uređaja koji se koristi za stvaranje dima variraju. Kupljeni se modeli obično prodaju zajedno s tehničkom dokumentacijom koja ukazuje na njihove karakteristike. Od njih također možete saznati za koji će ormar za pušenje ovaj uređaj biti optimalan.
Bilješka! Prilikom sastavljanja generatora dima za pušnicu vlastitim rukama, preporuča se unaprijed izračunati njegovu snagu. Ovaj se pokazatelj određuje ovisno o volumenu spremnika za pušenje. Neće biti moguće pušiti hranu u ukupnoj komori ako je snaga ovog uređaja premala.
Uređaje sklopljene od kuće teško je klasificirati. Da bi se dimenzije spremnika i snaga generatora dima podudarale, često je potrebno provesti probne vožnje. Najčešća veličina spremnika za pušenje danas je 0,3 m³. Ovaj dizajn omogućuje vam kuhanje dovoljnog broja domaćih jela hladnim pušenjem. S vlastitim rukama, generator dima može se izraditi iz raznih improviziranih sredstava.
Važno je zapamtiti da dimenzije samog uređaja nisu toliko važne. Oni prije svega ovise o tome koji će se materijali koristiti za njegovu montažu. Glavni parametar u svakom slučaju je snaga uređaja, koja utječe na performanse generatora dima.
Uradi sam generator dima: kako uređaj radi
Da bi se sastavio funkcionalni uređaj, preporučuje se razumijevanje njegovog dizajna i razumijevanje njegovog rada. Svi generatori dima imaju isti princip rada. Svi se koriste za stvaranje dima i pomoć u njegovom transportu u pravom smjeru.
Gorivo koje se koristi za stvaranje dima može biti i drvo i drvna sječka (piljevina). Razmotrimo detaljnije načelo rada generatora dima za hladno pušenje. Kad gorivo izgori, ispušta se dim koji ulazi na ulaz ovog uređaja. Tada se (pod utjecajem kompresora) usmjerava na drugi dio uređaja, uslijed čega ulazi u spremnik za pušenje.
Kompresor igra vrlo važnu ulogu, jer vlastitim rukama opskrbljuje generator dima koji ima povećani tlak. Mnogi stručnjaci primjećuju da ti uređaji imaju vrlo visoku učinkovitost.
Da biste sastavili komoru generatora dima, u kojoj će se dim destilirati, možete upotrijebiti bilo koji prikladan spremnik. U ovom slučaju najčešće se koriste spremnici:
- tijelo aparata za gašenje požara;
- aluminijska limenka za mlijeko;
- termos.
Najviše je uputno koristiti metalnu cijev. Od njega se može napraviti generator dima za hladno i toplo pušenje. Važno je zapamtiti da njegova duljina ne smije biti veća od 1 m. Ako uređaj napravite duljim, tada će se učinkovitost uređaja smanjiti. Dim koji prolazi kroz predugu cijev izgubit će brzinu i temperaturu.
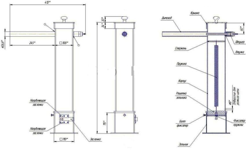
Generator dima za hladno pušenje vlastitim rukama: crtanje
Izrada crteža neophodna je pripremna faza koja vam omogućuje da izvršite odgovarajuće izračune i označite ih na papiru. Na dijagramu je nužno naznačeno tijelo generatora dima, koje može imati okrugli ili kvadratni oblik.
Korisne informacije! Životni vijek uređaja ovisi o izboru materijala od kojeg će se izrađivati kućište. Majstori preporučuju obratiti pozornost na dvije mogućnosti - nehrđajući čelik ili pocinčani čelik. To je zbog činjenice da takvi materijali imaju najveću otpornost na vatru, a također su otporni na korozivne učinke.
Tijelo domaćeg generatora dima koristi se kao komora koja se puni gorivom. Zidovi uređaja moraju biti dobro nepropusni. Inače, dim koji nastaje tinjanjem piljevine raspršit će se u okolni prostor.
Sami uređaji za proizvode za pušenje podijeljeni su u sorte, ovisno o dizajnerskim značajkama i namjeni. Danas možete pronaći velike stacionarne uređaje ili, obratno, kompaktnije, prijenosne. U dizajnu pušnice može biti prisutna zaklopka. Ovaj element omogućuje povećanje protoka zraka u komoru koja sadrži gorivo.
Domaća pušnica s hladnim dimom može imati dva kamina. Cilj ovog dizajna je povećati potisak u sustavu. Generatori dima koriste se i u toplim i u hladnim pušnicama. Crtež označava sve sastavne elemente uređaja. U krug je nužno uključiti ejektor i njegove dimenzije, kao i kompresor.
Kako izraditi generator dima vlastitim rukama: izrada ejektora
Izbacivač je naprava koja je cijev i koristi se za stvaranje potrebnog propuha u generatoru dima. Ovaj je uređaj klasificiran prema mjestu. Ovisno o ovom čimbeniku, mogu se razlikovati dvije vrste izbacivača:
- niži;

Bilo koji generator dima za pušnicu s hladnim dimom sastoji se od spremnika, pumpe (kompresora) i ejektora
- Gornji.
Prvu opciju stručnjaci ne preporučuju za samostalno izrađene pušnice.To je zbog činjenice da takvo postavljanje sprječava protok zraka, što se, sukladno tome, odražava u potisku u strukturi. Cijevi instalirane na dnu zahtijevaju stalno praćenje, što nije baš prikladno. Pri izradi crteža generatora dima potrebno je unaprijed razmisliti o mjestu ove cijevi i popraviti ga na slici.
Probleme s vučom lako je izbjeći. Sve što je potrebno je izbacivač postaviti u gornju polovicu generatora dima. Ovaj potez ima nekoliko prednosti. Ugradnjom ejektora na vrh povećava se volumen zone izgaranja. U ovom slučaju gorivo smješteno unutar komore tinja sporije, a vjerojatnost da će se ugasiti također je smanjena.
Tako se vlastitim rukama sastavlja izbacivač za generator dima. Crtež, fotografija i detaljne upute - sve to omogućuje kompetentno sklapanje ovog proizvoda.
Bilješka! Važna prednost izbacivača instaliranog na vrhu generatora dima je što ima duži vijek trajanja. To je zbog činjenice da se uređaj nalazi na značajnoj udaljenosti od grijanog područja komore.
Što napraviti kompresor za generator dima vlastitim rukama?
Kompresor se smatra jednim od najvažnijih dijelova uređaja koji stvara dim za proizvode za pušenje. Može se kupiti zasebno, a zatim pričvrstiti na strukturu. Ali najčešće se u te svrhe koriste razni otpadni materijali koji se mogu naći u svakom stanu ili kući.
Povezani članak:
Uradi sam hladna dimljena pušnica: ukusna jela kod kuće
Značajke pušnice hladnog tipa. Uređaj i vrste. Faze montaže. Priprema proizvoda za hladno pušenje.
Puhalica za zrak "uradi sam" može se napraviti od starog hladnjaka. Ovaj računalni dio savršen je za povećanje protoka zraka u strukturu. Potrebno je slijediti postupak pretvaranja hladnjaka u kompresor.
Prije svega, trebate uzeti plastičnu bocu i odrezati joj vrh. Dalje, pomoću ljepila pričvrstite ventilator na unutrašnjost izrezanog plastičnog elementa. S druge strane (na vrat) spojeno je crijevo. Drugi izlaz cijevi spojen je na generator dima. Ovaj dizajn izvrsno odrađuje svoju funkciju. Jedini mu je nedostatak nepregledljiv izgled.

Kompresor za generator dima s vlastitim rukama može se napraviti od starog računalnog dijela - hladnjaka
Druga uobičajena opcija je kupiti akvarijski kompresor za svoj generator dima. Mnogi ljudi otkrivaju da uređaj za stvaranje dima može raditi bez kompresora. Ali učinkovitost takve instalacije manja je, jer zrak u nju ulazi prirodno.
Stoga se preporuča sastaviti kompresor kako bi se povećale performanse. Štoviše, nije nužno da ima složen dizajn. Jednostavni ventilator za generator dima vlastitim rukama uvelike pojednostavljuje pušenje i za njegovu proizvodnju nije potrebno više od sat vremena.
Kako sastaviti generator dima za hladno pušenje vlastitim rukama: upute
Kada sami montirate generator dima, preporučuje se ne samo da obratite pažnju na fotografske materijale, već i da gledate videozapise o treningu na ovu temu. Dizajn uređaja je prilično jednostavan. Stoga, svatko bez posebnog tehničkog znanja može sastaviti ovu jedinicu.

Za proizvodnju generatora dima nije potrebna posebna oprema i materijali, možete ga sastaviti od dostupnih alata
Postoji određeni slijed radnji koje treba slijediti. Svako odstupanje od uputa može dovesti do pogrešaka koje utječu na funkcionalnost uređaja tijekom uporabe.Potrebno je upoznati se s faznim sastavljanjem generatora dima.
Nakon sastavljanja crteža generatora dima za hladno pušenje, započinje izravan raspored uređaja. Prije svega, trebate dovršiti tijelo uređaja. Da biste to učinili, morate pripremiti kvadratni ili okrugli komad cijevi. Duljina proizvoda ne smije prelaziti 1 m, inače će, prilikom njegove upotrebe, biti problema s indikatorom potiska.
Korisne informacije! U pravilu, kada samostalno izrađujete generator dima, uobičajeno je koristiti komad cijevi, čija je duljina 70-80 cm.
Na vrhu takve cijevi mora se napraviti poklopac. Potreban je za slobodan pristup komori generatora dima. To će vam omogućiti da lako napunite piljevinu unutar uređaja, kao i da je očistite. Zauzvrat, ispod bi trebao biti predviđen poseban spremnik koji će sakupljati pepeo nastao nakon obrade goriva.
Pušnica s hladnim dimom s generatorom dima vrlo je funkcionalna ako je njezin dizajn pravilno razrađen. Najjednostavnije opcije za generatore dima izrađene su od cijevi na koju je dno čvrsto zavareno. Takvi uređaji ne osiguravaju prisutnost posude za pepeo, a njihovo čišćenje je vrlo jednostavno: nakupljeni pepeo jednostavno se istresa iz uređaja.
Tehnološki napredniji dizajni opremljeni su uklonjivim dnom. Ispod njegove razine postavlja se rešetka na koju padaju proizvodi izgaranja drva. Kroz nju ulaze u posudu za pepeo. Bez obzira na odabranu opciju dizajna, svi predviđaju rupu u donjoj polovici tijela. Potrebno je kako bi se osiguralo dovod zraka u tinjajuće drvo. Promjer takve rupe ne smije biti veći od 6 mm, inače se piljevina može jednostavno zapaliti, što će naštetiti procesu pušenja.
Kako napraviti generator dima: raspored dimnjaka i izbacivača
Dimnjak je potreban za isporuku tinjajućih drvnih sječaka u komoru jedinice za pušenje. Dimnjak se nalazi na vrhu uređaja za stvaranje dima. Važno je imati na umu da se ne izvodi u poklopcu, već približno 8 cm ispod ruba kućišta (gornjeg dijela).
Da biste to učinili, u zidu generatora dima mora se napraviti rupa koja mora odgovarati promjeru cijevi. Zatim se zavaruje na uređaj pomoću opreme za zavarivanje. Potrebno je da je duljina metalne cijevi dovoljne veličine da se preko nje može prebaciti plastična cijev kroz koju se dim kreće u pušnicu. Preporučena duljina ovog elementa je 7-8 cm. Dimnjak mora biti prikazan bez greške na crtežu generatora dima vlastitim rukama.
Bilješka! Plastična cijev nije obavezna. Dimenzionalni modeli dimnih peći, koji su stacionarni, predviđaju spajanje s generatorom dima bez ovog elementa. U tom je slučaju uređaj jednostavno pričvršćen na zid spremnika za pušenje.
Sljedeći je korak sastavljanje ejektora za generator dima vlastitim rukama. Hladni pušač stvorit će dovoljno dima ako je ovaj nastavak pravilno sastavljen.
Gotovi crteži generatora dima pomoći će razumjeti značajke ugradnje ejektora. Mogu se lako pronaći na Internetu. Ovaj je uređaj povezan s kompresorom koji u njemu stvara tlak. Pokretni zrak stvara vakuumsku zonu u ovom elementu. Kao rezultat, dim izbacivača prelazi u dimnjak.

Ako izbacivač postavite na dno uređaja, tada u uređaju neće doći do prirodnog propuha zraka, jer će komora proizvoda i spremnik za piljevinu biti na istoj razini
Pravila za upotrebu generatora dima: fotografija i operativne značajke
Nakon završetka instalacije generatora dima, morate provjeriti njegovu učinkovitost. Korištenje ovog uređaja vrlo je jednostavno. Razmotrite kako pravilno upravljati domaćim generatorom dima.
Prvo, morate učitati čipove u strukturu. Količina goriva može biti različita. Njegova je ukupna težina u pravilu oko 0,7-0,8 kg. Važna je stvar odabir vrste drveta koje se koristi za dobivanje dima potrebnog za pušenje. Kategorično je nemoguće koristiti crnogorično drveće, jer zagrijavanjem emitiraju smole, što će pokvariti proizvode natovarene u dimni stroj. Za pušenje preporučuje se odabir drva za ogrjev i piljevine izrađene od lišćara i voćaka (na primjer hrast, javor ili jabuka).
Tehnologija korištenja ove jedinice detaljno je objašnjena u povezanim videozapisima. Nakon punjenja piljevinom, generator dima mora se zatvoriti, a zatim cijev dimnjaka spojiti na spremnik za pušenje. Uređaj se može pričvrstiti izravno na kameru. U ovom je slučaju jednostavno instaliran na svoje mjesto - blizu zida pušnice.

Nakon završetka instalacije svih potrebnih komponenata generatora dima, morate provjeriti njegove performanse
Da biste zapalili piljevinu, morate otvoriti bočna vrata. Nakon što se zapale, uključuje se kompresor koji destilira zrak. Nakon dovršenja svih gore navedenih manipulacija započinje postupak pušenja. Ostaje samo pričekati pravo vrijeme koje će biti potrebno za kuhanje hrane u pušnici.
Kako regulirati propuh u domaćem generatoru dima?
Dizajn, čija je montaža gore opisana, prilično je učinkovit. Međutim, ima i jedan ozbiljan nedostatak. Kada se koristi takav generator dima, teško je prilagoditi intenzitet izgaranja. Jedini način da se to učini je promjena performansi puhala zraka (kompresora).
Ovaj se problem može prevladati opremanjem uređaja dodatnim elementom - puhalom. Za izradu ovog dijela potrebna vam je metalna cijev duljine od 10 do 15 cm. U donji dio tijela mora se zavariti dim stroja. Nije vrlo teško napraviti puhalo vlastitim rukama, ali ovaj biste posao trebali shvatiti ozbiljno.
Nakon što je cijev zavarena, u njoj treba napraviti dvije rupe, paralelne jedna s drugom. Zatim morate pripremiti metalnu šipku. Veličina njegovog dijela trebala bi biti takva da se lako može proći kroz ove rupe. Sljedeći je korak izrezivanje kruga iz metalnog lima.
Bilješka! Promjer kruga trebao bi biti 1-2 mm manji od unutarnjeg dijela cijevi.
Organizacija puhala može značajno povećati učinkovitost uređaja. Ovo je rješenje prikladno i za generatore dima bez kompresora. Vrlo je jednostavno sastaviti takvu zaklopku vlastitim rukama. Glavna stvar je promatrati geometrijske parametre i slijed radnji.
Tada je kraj šipke savijen, što vam omogućuje da napravite svojevrsnu ručku. Završetak izrade zatvarača uključuje provlačenje ručke kroz rupu napravljenu u cijevi i zavarivanje metalnog kruga na šipku. Jednostavnost dizajna ni na koji način ne utječe na njegovu učinkovitost. Prilagođavanje veličine lumena cijevi omogućuje vam podešavanje količine zraka koji ulazi u generator dima.
Kako izraditi generator dima za hladno pušenje vlastitim rukama: dodatni elementi
U jednostavnim uređajima, proizvodi tinjajućih čipsa nakupljaju se na dnu. Takvi generatori dima trebaju redovito preventivno čišćenje.Da biste to izbjegli, možete poboljšati dizajn tako što ćete ga opremiti posudom za pepeo - spremnikom u kojem se sakupljaju proizvodi izgaranja drva.
Posuda za pepeo nalazi se ispod razine dna generatora dima. Da biste je izradili, morat ćete pripremiti metalnu cijev, čiji bi promjer trebao biti veći od indeksa presjeka tijela uređaja. Fotografije će vam pomoći da razumijete sve nijanse uređaja generatora dima za hladno pušenje. Nije teško sastaviti posudu za pepeo vlastitim rukama. Da biste to učinili, morate se jasno pridržavati uputa.
Prije svega, potrebno je zavariti metalnu traku (duž oboda) na tijelo. Njegova debljina ne smije biti prevelika. Metalno dno mora biti povezano s cijevi, koja je tijelo posude za pepeo, pomoću opreme za zavarivanje. U završnoj fazi montaže, tijelo generatora dima umetnuto je u posudu za pepeo.
Takav uređaj može dugo služiti. Ne treba stalno uklanjanje proizvoda izgaranja iz tijela. Ako je potrebno, možete kupiti gotov uređaj opremljen ovim spremnikom. Cijena generatora dima kreće se od 4 do 12 tisuća rubalja. ovisno o njegovim dizajnerskim značajkama.
Još jedna važna točka na koju se morate usredotočiti prilikom izrade generatora dima je nakupljanje kondenzata. Tijekom hladnog pušenja javlja se reakcija uslijed koje se kapljice vlage talože na zidovima konstrukcije. Za njihovo uklanjanje koristi se zbirka. Možete to učiniti sami. Da biste to učinili, morate se upoznati sa redoslijedom koraka u proizvodnji uređaja.
Prvo morate spustiti ispušnu cijev generatora dima. Dalje, morate pripremiti spremnik u kojem će se nakupiti kondenzat. Dvije cijevi povezane su s njim uz pomoć opreme za zavarivanje (paralelne jedna s drugom). Tada se odvojna cijev vraća u prvobitni položaj. Takav sustav omogućit će sakupljanje većine kondenzata koji nastaje tijekom procesa pušenja.
Kućni štednjak s generatorom dima za hladno pušenje: video i fotografija
U nekim slučajevima dimenzije standardnih uređaja možda neće biti dovoljne. Ako želite sastaviti strukturu koja je učinkovitija, tada možete napraviti pušnicu i opremiti je generatorom dima.
Bilješka! Glavni element takve peći je tijelo. Može se napraviti od široke metalne cijevi ili zavariti od dijelova metala. U drugom slučaju, struktura bi trebala imati pravokutni oblik, što je najučinkovitije.
Razmotrite redoslijed koraka za sastavljanje samostalne peći generatora dima. Video i fotografski materijali koji vam omogućuju razumijevanje zamršenosti postupka mogu se lako pronaći na Internetu na specijaliziranim forumima.
Kao što je gore spomenuto, prvo se sastavi tijelo strukture. Dalje, u njemu morate izrezati pravokutna vrata. Dimnjak u takvom uređaju nalazi se na određenom nagibu. To je neophodno za održavanje vuče unutar sustava. Unutarnji prostor peći, zavaren od limova od nehrđajućeg čelika, treba podijeliti na dva dijela. Za to se koristi i lim od lima. Dno bi trebalo zauzimati približno 60% volumena komore. Na ovom području se zapali vatra. Zauzvrat, gornja zona je potrebna za smještaj čipova.
Najbolje je vlastitim rukama izraditi crtež generatora dima za ovu vrstu pušnice. Ova pećnica ima visoke performanse. Međutim, sastavljanje takve strukture zahtijeva više vremena, truda i sredstava.U svakom slučaju, vrsta pušnice odabire se na temelju njezine namjene i individualnih preferencija vlasnika.
Uradi sam generator dima iz aparata za gašenje požara: jednostavna i pouzdana opcija
Ovaj dizajn je možda najjednostavniji. Za njegovu montažu potreban vam je stari aparat za gašenje požara. Tijelo ovog uređaja mora biti metalno. Važno je zapamtiti da aparat za gašenje požara ne smije imati hrđave zidove. Ako se u uređaju još nalazi sadržaj, mora se isprazniti i temeljito isprati prije početka rada.
Stari aparat za gašenje požara može se koristiti za izradu generatora dima za hladno pušenje. Videozapise na ovu temu možete pronaći pomoću okvira za pretraživanje vašeg preglednika. Ispravan i jasan redoslijed radnji omogućit će vam visokokvalitetnu transformaciju aparata za gašenje požara u generator dima.

Da bi se napravio generator dima, uzima se aparat za gašenje požara promjera oko 100 mm i duljine 500 mm
Prvo morate rezati aparat za gašenje požara. Narezuje se rez na gornjem dijelu (5 cm ispod dekoltea). Rezultat je jednostavan poklopac koji ne treba daljnje preinake. Dalje, morate napraviti dvije rupe na dnu aparata za gašenje požara. Poželjno je da se nalaze 5-6 cm ispod reza izvedenog u gornjem dijelu.Optimalni promjer u ovom slučaju trebao bi biti 2,5 mm.
Bilješka! Prije montaže, preporuča se dovršiti detaljan crtež generatora dima za hladno pušenje vlastitim rukama. Videozapis će također pomoći pojednostaviti postupak proizvodnje ovog uređaja.
Nakon organiziranja rupa, možete prijeći na sljedeću fazu - zavarivanje cijevi na njih. Duljina proizvoda ne smije prelaziti 7-8 cm. Jedna cijev služit će kao dimnjak, a druga je potrebna za dovod zraka. Ovaj dizajn uzima u obzir gornji položaj izbacivača, a otvor za usis zraka bit će smješten na dnu uređaja.
Generator dima izrađen od starog aparata za gašenje požara može nesmetano raditi oko 7 sati. Dakle, sastavlja se najjednostavniji uređaj za ubrizgavanje dima.

Iz aparata za gašenje dim ulazi u komoru za pušenje kroz inčnu cijev duljine 150-250 mm uvijenu u čajnik
Generator dima može uvelike pojednostaviti postupak pušenja. Za samostalnu montažu ovog uređaja potrebno je izraditi preliminarni crtež. Mora naznačiti veličinu pojedinih komponenata. Ovaj je uređaj proizveden u skladu s uputama. Ako niste sigurni u vlastite sposobnosti, najbolje rješenje bilo bi kupiti gotov generator dima.


















