Még akkor is, ha a nyaraló területén nincs ház állandó vagy ideiglenes tartózkodásra, akkor is szükség van egy vécéépület építésére. Az emberi természetes igények éreztetik magukat, még akkor is, ha csak néhány órára érkezik az országba művelni és öntözni a földet. Ésszerű megoldás ebben az esetben egy barkácsoló WC lenne. A lépésről lépésre történő utasítások meglehetősen egyszerűek, és maga a konstrukció is olcsó.
Tartalom
- 1 Hogyan készítsünk WC-t az országban saját kezűleg: általános információk
- 2 Fürdőszoba a személyes telek számára
- 3 Doboz nélküli szekrények: a főbb fajták és jellemzőik
- 4 WC saját kezűleg történő ajándékozáshoz. Lépésről lépésre a legnépszerűbb minták létrehozásához
- 5 WC kialakítása nyári rezidenciához: méretrajz a "Madárház" típusú kialakításhoz
- 6 A rajzok alapján saját kezűleg WC-t építünk az országban, például a "Shalash" -t
- 7 Hogyan készítsünk WC-t az országban saját kezűleg: rajz és lépésenkénti utasítások a tőzeg WC létrehozásához
Hogyan készítsünk WC-t az országban saját kezűleg: általános információk
Az épület látszólagos, első pillantásra primitív jellege ellenére a nyaralóhoz tartozó WC kialakítása az alapszerkezetek kategóriájába tartozik. Először meg kell kezdeni annak építését. Sokan egyet fognak érteni abban, hogy a városon kívüli földterület könnyen megkerülhető kerítés, vidéki ház és egyéb épületek nélkül, de az illemhely a kényelem szerves része, amely nélkül egyszerűen lehetetlen üzemeltetni a helyszínt.
Jegyzet! Természetesen az utcai saját WC-vel ellátott saját WC nem helyettesíti a normál fürdőszobát, csak minimális kényelmet biztosít. A nyári vakáció azonban nélkülük lehetetlen, nem lehet teljes mértékben a helyszínen dolgozni.
Számos egészségügyi és higiéniai szabvány létezik, amelyeknek megfelelően az ilyen kivitelezést elvégzik. Ezért nem lesz felesleges először megismerkedni velük a munka megkezdése előtt.
Egészségügyi és higiéniai előírások a WC kialakításához
A WC telepítése külvárosi területre egyszerű kérdés, amely megfelelő tanulmányozással nem igényli szakemberek bevonását. Az ilyen építkezést azonban még mindig néhány sajátosság kíséri.
Alapvető szabványok:
- Először is érdemes meggyőződni arról, hogy a szerkezet felépítése nem okoz-e kellemetlenségeket a szomszédoknak.
- A szerkezet telepítésének helyét nagy gonddal választják ki. Az építkezés ezen szakaszát a fürdőszoba területére vonatkozó egészségügyi előírások teljes betartásával kell végrehajtani. E szabályok megsértése a környező területek (talaj, talajvíz) súlyos szennyezéséhez vezethet, ami az egészségügyi szolgálat pénzbírságait, sőt egészségügyi problémákat von maga után.
- A rajzok kidolgozásának szakaszában ki kell gondolni egy módszert, amely szerint az olajteknő kiürül.
- A tervezés választását több tényező korlátozza. Az egyik a külvárosi terület vízhorizontja. Ha a vízszint nagyon magas, akkor az aknát teljesen le kell zárni.
Ezek az egyszerű szabályok segítenek megszabadulni a további üzemeltetéssel kapcsolatos problémáktól.
Hogyan válasszon és készítsen WC-t az országban a saját kezével: fotók és szerkezetek típusai
A nyaralónál különféle építmények építhetők. Nagyon sok lehetőség közül lehet választani, ezért több kritériumnak kell vezérelnie. A design megválasztását a következők befolyásolhatják:
- a fejlesztő rendelkezésére álló költségvetés nagysága;
- a fürdőszoba becsült gyakorisága;
- a vízhorizont magasságának szintje;
- az a pénzösszeg, amelyet a jövőben a WC fenntartására terveznek kiutalni.
Jegyzet! Minden kültéri WC-t egy kritérium alapján osztályoznak - a hulladék ártalmatlanításának módja alapján.
Fürdőszoba a személyes telek számára
A legnépszerűbbek és a legelterjedtebbek az üreges vonalak. És nemcsak a nyaralókban, hanem a falvak udvarában is.
Az ilyen szerkezetek saját kezűleg történő megépítését általában nem kísérik nehézségek, mivel a csatornarendszert ebben az esetben egy mély gödör váltja fel. Folyékony hulladékot halmoz fel, amelyet fokozatos párolgással és talajon keresztüli felszívódással ártalmatlanítanak. Csak néha kell szennyvíztargoncát hívni a tartály teljes kiürítéséhez és tisztításához.
A szennyvízcsatornák behívásának gyakorisága attól függ, hogy milyen mély a gödör, és milyen jól készül a szerkezet. A hulladékkezelési eljárások rendkívül ritkák lehetnek. A legtöbb esetben ezt a problémát a gödör feltöltésével oldják meg. Ezt követően egy új hulladékgyűjtő tartályt ásnak ki a közelében.
A WC felszínének része különféle anyagokból készülhet:
- fém profil;
- táblák;
- pala lapok;
- tégla stb.
A kiváló minőségű kialakítás legfontosabb elemei a vázalap megbízhatósága és a hatékony szellőzés elérhetősége.
A nyári lakóhely saját WC-jével ellátott fa WC jellemzői, rajzok
Sok háztulajdonos előnyben részesíti a fa szerkezeteket. Ez a választás annak köszönhető, hogy a deszkakeret építésének technológiája nagyon egyszerű és nem igényel komoly készségeket, költsége pedig alacsony.
A fából készült termék stilizálható mese kunyhóként vagy házként, ennek köszönhetően nemcsak funkcionális, hanem esztétikus épületet is kaphat. A keret befejező anyagaként deszkák helyett bélést használhat. Ez a WC felszínének nagyon vonzó és stílusos megjelenést kölcsönöz.
Jegyzet! A fatermék számos előnyének egyike a mobilitása. Abban az esetben, ha kitöltött lyukat temetnek annak érdekében, hogy másikat ássanak máshova, nem kell újjáépíteni a házat. Elég csak a keretet a kívánt helyre mozgatni.
A fából készült szerkezetek hátrányai
Ennek az anyagnak a kiválasztásakor ne feledkezzen meg a fa hiányosságairól. Számos negatív tényező befolyásolja, amelyek csökkentik az épület élettartamát. Ezek a tényezők a következők:
- a közvetlen napfény hatása (hatásukra a fa megreped, összeomlik és deformálódik);
- az ultraibolya sugárzásnak a fa felületén történő megütése a kiégéséhez vezet;
- a páratartalom, amelyet szükségszerűen minden WC működése kísér, hozzájárul a keret deformációs változásaihoz;
- a nedvességnek kitett gombák és penész intenzíven fejlődnek a fában, támogatva a bomlás, a nedvesség és a kellemetlen szagok folyamatát.
A védőimpregnálásokkal ellátott speciális eszközök segítenek elkerülni a WC idő előtti károsodását negatív üzemi körülmények hatása alatt. A deszkák vagy bármely más faalapú anyag élettartamának növelése érdekében a termék felületét kültéri körülményekre tervezett színezékkel kell festeni. A fát alapozóval előkezelik.
Azoknak, akik szeretik a természetes fa szépségét, azt tanácsolhatjuk, hogy tiszta lakkot használjon védőanyagként. Megőrzi a fa természetes mintázatát.
Barkács WC az országban: fotók és szerkezetek jellemzői fémprofilból
A fémprofilokból készült WC többféle beépítési lehetőséget kínál. Az első esetben egy favázat veszünk alapul a nyári rezidencia WC-jének rajzaihoz. Egy másik lehetőség magában foglalja az alap létrehozását fém alakú csövekből, hegesztéssel összekötve. Ehhez elengedhetetlen, hogy legyen magával hegesztőgép, és rendelkezzen készségekkel a kezeléséhez.
Ezután a fa vagy fém alapot profillemezekkel burkolják. Rögzítőként szegecsek vagy önmetsző csavarok használhatók. Speciális védőalátéteket vásárolhat az önmetsző csavarokhoz, amelyek megakadályozzák a nedvesség bejutását a rögzítőbe, ezáltal megvédve a rozsdásodástól.
Annak ellenére, hogy egy ilyen szerkezet felépítése nem igényel sok időt és erőfeszítést, a fémprofil WC-nek egy jelentős hátránya van. Nyáron a szerkezet nagyon forró. Ezért ajánlott a fémterméket állandóan árnyékban elhelyezni.
Hasznos tanácsok! A belső burkolathoz használjon polisztirol hablemezt. Hűvös állapotban tartják a szerkezetet.
A profilozott fémlemezeket még a gyártási szakaszban is speciális védőbevonattal vonják be. Ennek a bevonatnak köszönhetően az anyag megbízhatóan védett a nedvességtől, így a profillapok biztonságosan használhatók a szabadban elhelyezett szerkezetek telepítéséhez.A profilos WC legelőnyösebb előnye a telepítés sebessége.
Csináld magad tégla WC rajzai a vidéki házhoz: tervezési jellemzők
A tégla szekrény építésének megvannak a maga nehézségei. Először is annak tudhatók be, hogy ha szükség van a szerkezet átadására, ez nem fog működni. Ezért javasoljuk, hogy először saját kezűleg tanulmányozza át a WC különböző projektjeit az országban, saját maga rajzai és jellemzői. Elő kell látnia azt a módszert is, amely szerint a cesspool tisztításra kerül. Ezenkívül egy téglaépítéshez betonpadló telepítését igénylik.
Valójában a tégla WC olyan tőkeszerkezet, amely több évtizedig nem igényel javítási munkát. Megépítésének költségei sokkal magasabbak, mint fa vagy profilos lemez használata esetén. De pénzt takaríthat meg, ha egy garázs vagy ház építése után tégla marad.
Jegyzet! A WC építése egy nyaralóban ugyanabból a téglából, amelyből a ház és a garázs épül, lehetővé teszi az egység elérését az udvar külső részén. Így a webhely kialakítását ugyanabban a stílusban fogják megtervezni, ami nagyon hatásosnak és harmonikusnak tűnik.
Mivel a kész téglaszerkezet súlya nagyon nagy, masszív és szilárd alapot kell lefektetni alá, amint azt korábban említettük. A szakemberek azt tanácsolják, hogy ezekre a célokra szalag típusú alapot válasszanak. Számos előnye van:
- minimális földmunka;
- nagyon kicsi cementporfogyasztás töltéshez;
- magas védelem;
- megbízhatóság (szinte bármilyen talajon biztosított).
Azoknál a termékeknél, amelyek könnyebb felépítésűek más anyagokból, oszlopos alapot lehet használni.
Doboz nélküli szekrények: a főbb fajták és jellemzőik
A cesspool-t a legegyszerűbb és legköltségvetőbb megoldásnak tekintik a személyes telken lévő WC-vel való probléma megoldására. De még így is vannak korlátozások az ilyen típusú szerkezetekre. A gödörfúrók telepítése a következő feltételektől függ:
- az elővárosi terület talaja mészkőből vagy pala talajból áll;
- a talajvíz túl közel folyik a felszínhez;
- a WC-t várhatóan sokan használják.
Mindezek a tényezők nem teszik lehetővé a WC-k megszervezését egy víztömeg alapján egy külvárosi területen. A kiút ebből a helyzetből egy teljesen más típusú latrinák építése lesz, más cselekvési elv alapján.
Vízelvezető gödör nélküli fürdőszobatípusok:
- hátsó szekrény;
- porszekrény;
- szekrény vagy vegyi WC.
Minden szerkezetnek megvan a maga jellemzője: eszköz, építési technológia, a működésre vonatkozó követelmények.
Hátsó szekrény: egy nyári rezidencia WC-jének rajzai és jellemzői
A visszahúzódó szekrény egyfajta továbbfejlesztett konstrukció, amely egy cesspoolon alapszik. Csak abban különbözik a szokásos verzióktól, hogy a hulladéktároló tartály teljesen lezárva van.
Jegyzet! A visszahúzódó szekrény eszköz lehetővé teszi a WC-csésze felszerelését egy fűtött helyiségben, vagyis otthon, és a tárolótartály távol lehet elhelyezni tőle. Leggyakrabban a fal mellé kerül, ahol a fürdőszoba van felszerelve.
Az összekötő darab a meghajtó és a WC csésze a cső kiáll. Lehet függőleges vagy lejtős. Ezt az elemet úgy tervezték, hogy hulladékot juttasson a meghajtóba, és gravitációs üzemmódban.
A visszahúzódó szekrény kialakításának sajátosságai miatt a csatornák szervizelésére szorul, amelyek időnként kiüríthetik a tárolótartályt. De ellentétben a hagyományos üstökös alapú WC-kkel, ez a lehetőség higiénikusabb és kényelmesebb használni.
A szennyvízcsatornák munkájának megkönnyítése érdekében lyukat ásnak a hátsó szekrény rendezése során. Alakjának hosszúkásnak kell lennie. Ez lehetővé teszi a szívókocsi tömlőinek felszerelését.
A kialakításnak vannak hátrányai is. Például a téli szezonban a tisztítási eljárás nem lehetséges. Sok tulajdonos megoldja ezt a problémát a meghajtó fűtésére szolgáló speciális rendszer telepítésével.
A nyaralójuk porszekrényének jellemzői
Ezt a típusú latrinát egy kis gyűjtőedény jellemzi. A szék alatti maximális tárolókapacitás 20 liter.
A porszekrény felszerelése akkor hasznos, ha a talajvíz a felszín közelében halad át. Ezeknek a feltételeknek a kezelése problematikus lehet. egyéb WC lehetőségek, de a porszekrény ilyen helyzetben is képes lesz teljes mértékben működni.
A kialakítás előnyei között szerepel az elrendezés minimális költségszintje. Ugyanakkor a hulladék környezetbarát szerves műtrágyává alakításának rendszere nagyon egyszerű és olcsó is.
Ennek a WC-nek a működési elve miatt adták a nevét. Az a tény, hogy a tárolótartályban lévő hulladékot mintha száraz összetételűen „porítják”. Az elalváshoz általában tőzeg-fűrészpor keveréket vagy tőzeget használnak. Ez kiküszöböli a rothadásos folyamatok valószínűségét, ezért nincs kellemetlen szag a WC-ben.
Amint a konténer felhalmozódik, az összes benne lévő és tőzeggel borított hulladék átkerül egy korábban elkészített hulladékba komposztgödör... Itt komposztálják őket.

A porszekrény rajza: 1 - szellőzőnyílás 25x25 cm, 2 - WC-üléshuzat, 3 - WC-ülés, 4 - tárolótartály, 5 - ajtó, 6 - téglatartó, 7 - agyagpárna, 8 - üvegezett kereszttartó
Jegyzet! A porszekrények szerkezete lehet álló és hordozható is. A második esetben a WC lehetővé teszi, hogy egy kis méretű szerkezetet vigyen be a házba eső alatt vagy éjszaka.
Mi a szekrény kialakítása?
A szekrények ma nagyon népszerűek a nyári lakosok körében. A kialakítás egy kompakt WC-ből áll, amelyet az operatív használat kényelmes rendszere jellemez. A szekrény működési elve sok szempontból hasonló a porszekrény által végzett munkához. A feldolgozás folyamatát, valamint a hulladék további lebontását tőzegkeverékkel hajtják végre.
Egyes modellek lehetővé teszik a biológiai termékek felhasználását a hulladék feldolgozásához. Ezek az anyagok lehetnek folyékony vagy száraz formában. Speciális baktériumok tenyészeteit tartalmazzák.
A kémiai hatáselvű modellekben a kémiai eredetű gyógyszerek hatóanyagokként hatnak, amelyek fokozzák a hulladék bomlását. Megfelelő opció kiválasztásakor ne feledkezzen meg a biztonságról. A hatékony és biztonságos gyógyszerek drágák.
A nyaralók egyes tulajdonosai tudatlanságuk miatt olyan anyagokat használnak, mint formaldehid, fehérítő és mások a hulladék ártalmatlanításához. Használatuk szigorúan tilos, mivel ezen anyagok összetétele nagyon mérgező.
A támogatható gyógyszerek átlagára:
| Gyógyszer neve | Kiadási űrlap (kötet) | Költség, rubel |
| Bio Kedvenc | folyadék (950 g) | 700 |
| Mikrozim SEPTI TRIT | folyadék (250 g) | 700 |
| Atmosbio | por (300 g) | 600 |
| Saneks | por (100 g) | 230 |
| Tamir | folyadék (350 g) | 200 |
WC saját kezűleg történő ajándékozáshoz.Lépésről lépésre a legnépszerűbb minták létrehozásához
A WC külső telepítéséhez bizonyos feltételek és szabályok betartása szükséges. Bármilyen típusú szerkezet telepítésének legfontosabb követelménye, hogy a tárolótartályban lévő hulladék nem érintkezik közvetlenül a talajvízzel. Ezen összetevők kölcsönhatását minimalizálni kell.
Fontos! A talajvízszint az első dolog, amelyet az építkezés előtt meghatároznak. A WC kialakítása csak akkor lehetséges, ha ez a szám 2,5 m-nél nagyobb a talaj alatt.
WC az országban: hogyan lehet saját maga építeni egy szerkezetet és telepíteni a megfelelő helyre
Mielőtt elkezdené rajzok készítését és magának a szerkezetnek a közvetlen tervezését, ügyelnie kell a helyének helyes megválasztására az elhelyezéséhez.
A következő feltételek befolyásolhatják az épület telepítését:
- A WC és a legközelebbi vízforrás közötti minimális távolság 30 m. Jobb, ha a víz nagyobb távolságra helyezkedik el. Bizonyos esetekben a víztározó geológiai elhelyezkedése alacsonyabb lehet, mint a WC kialakításának szintje. Ezután a struktúrát át kell adni egy másik zónába. Kiútként ebből a helyzetből a WC-t alacsonyabban mozgathatja, mint a vízforrás.
- A nyaraló területén lehetnek pincék vagy pincék. Az elhelyezés típusa szerint ezek a gödrök szomszédosak lehetnek a szekrénnyel, ezért a WC szerkezetének legalább 15 m távolságra kell lennie az ilyen épületektől.
- A lakóépületekből és a helyszínen lévő egyéb épületekből legalább 8 m-es behúzást hajtanak végre.
- Azok a helyek, ahol az állatok élnek vagy letelepednek, a WC-től legalább 5 m távolságra legyenek.
- A zöldfelületeket 1 m távolságra kell telepíteni.
- Legalább 1 m távolságot kell hagyni a közeli területet elválasztó kerítésig, amely szomszédoké lehet.
Jegyzet! A széliránynak is nagy jelentősége van. Ügyeljen arra, hogy ne bosszantsa a kellemetlen szagú szomszédokat.
A WC-fülke kiválasztása külvárosi területen
A modern dizájnválaszték számos változatot kínál. A nyári lakos önállóan megépítheti a szerkezet föld feletti részét, vagy megvásárolhat egy már kész terméket. Sok vállalat lehetővé teszi olcsó fa WC-k vásárlását a nyaralók számára.
Átlagos árak a kész faszerkezetek általános típusainál:
| Modell, jellemzők | Méretek (szélesség / hosszúság / magasság), mm | Ár, rubel |
| DT-4 | 1100/1100/2700 | 15000-től |
| DT-1 | 1000/1000/2500 | 12000-től |
| Fa | 1000/1000/2300 | 13000 |
| DT-3 (kert) | 1100/1000/2800 | 17000-től |
| DT-4 (ablakkal és tetővel) | 1100/1100/2700 | 18000-től |
| Dachny | 1100/1100/2700 | 18000 |
| Fa | 1000/1000/2500 | 12000 |
| Nagy (rúd utánzattal) | 2500/2000/2300 | 30000 |
| WC-segédblokk | 3000/2000/2300 | 35000 |
| Négyszögletes | 1000/1200/2100 | 15500 |
| Euro | 1000/1000/2300 | 8700 |
A kész kabinok és az ön által is építhető kabinok többféle típusúak:
- madárház;
- kunyhó;
- kunyhó;
- ház.
Mindegyiknek megvannak a maga sajátosságai, mérete és felépítése.
Kapcsolódó cikk:
Barkács WC építés az országban, rajzok, méretek. Melyek az önálló WC-k. A legjobb hely kiválasztása WC építéséhez egy külvárosi területen.
WC kialakítása nyári rezidenciához: méretrajz a "Madárház" típusú kialakításhoz
A "Birdhouse" szerkezet fa, amely bármilyen más anyaggal burkolható. Egy- vagy nyeregtető építése megengedett. Ez a típusú szekrény felső szerkezetként van felszerelve egy üstdoboz fölé.
Tipikus "Birdhouse" projekt méretparaméterekkel:
| Szerkezeti elem | Méret, m |
| Hátsó fal (magasság) | 2 |
| Szélesség | 1 |
| Első fal (magasság) | 2,3 |
| Alapterület | 1x1 |
Hasznos tanácsok! Ha nem elég erős a rajzok elkészítésében, használjon kész opciókat. Ezek alapján létrehozhat személyes projekteket.
A fából készült WC szerkezetének telepítésekor ellenőrizni kell a felületek függőleges és vízszintes elhelyezését. E célokra ajánlott épületszintet használni.

A "Madárház" vécé rajza: 1 - heveder, 2 - oszlop, 3 - ajtó, 4 - fogantyú, 5 - ajtós kereszttartó, 6 - elülső fal, 7 - tetőszarufa, 8 - tető, 9 - szellőző felszálló, 10 - terelő, 11 - oldalfal, 12 - üsttartó fedél, 13 - tégla tartó, 14 - hátsó fal
Anyagok a "Madárház" építéséhez
A munka elvégzéséhez ügyeljen az elérhetőségre:
- tetőfedő anyag - 2 m²;
- beton szegély (2 db, hossza - 2 m) vagy homokcement tömb (4 db);
- ajtótömb (2000x900 mm);
- homok;
- bélés (40 db, 87x3000 mm);
- szegélyezett deszkák (4 db, 50x100x6000 mm; 3 db, 32x90x6000 mm);
- profillemez horganyzott acélból (2000x1520x0,4 mm);
- fatartó (1 db., 50x50x600);
- kiegészítők az ajtóhoz (retesz, zsanérok, kilincsek);
- rögzítőelemek (csavarok, szegek);
- a fedőréteg anyaga (lakk vagy festék összetétel).
A szerkezet szigeteléséhez habot kell vásárolnia. Az építkezés befejezése után a keretet belülről burkolják. A belsőépítészetet gyönyörű anyagokkal készítheti el (opcionális).
Hogyan építsünk WC-t az országban saját kezűleg: a "Birdhouse" szakaszos építése
Utasítás a Birdhouse építéséhez (lépésről lépésre):
- cesspool szervezése. A tartály minimális mérete 1x1x2 m. Alján törmelékből vagy törött téglából készült párnát készítenek;
Fontos! A cesspool méretei alapján kiválasztják a föld feletti rész méreteit. A tervezési szakaszban állapodjon meg ebben a kérdésben.
- az alapítvány építése. Ehhez beton szegélyt építenek be úgy, hogy a gödör széle legfeljebb 0,2 m távolságra legyen tőle.A járdaszegély átfedés szerepét tölti be. A járda burkolatának beépítéséhez be kell ásni, hogy a beton alap legfeljebb 0,1-0,15 m-rel emelkedjen a talajszint fölé. Ha homokcement tömböket használnak, azokat a sarkokban kell beásni. A jövőben a teljes keretet rájuk telepítik;
- tetőfedő anyag telepítése. Az anyagot 3-4 rétegben fektetik az alapra, mint szigetelő a nedvességtől;
- a felszín (fa keret) felépítése, befejezése. A keret burkolóanyagaként fa deszkát vagy bélést lehet használni. A padló vastag deszkákból készül. A padlóburkolat minimális vastagsága 4 cm, fokozott szilárdsági jellemzőkkel rendelkező fafajok használata ajánlott. Ezek a fajok: vörösfenyő, bükk, tölgy stb.
Végső munka a "Madárház" létrehozásával
Az utolsó munkák a következő szakaszokat tartalmazzák:
- lyukat képezve a padlón. Ebben az esetben a rés alakja tetszőleges lehet (kerek, gyémánt alakú, ovális, szív alakú), a lényeg az, hogy átmérője legalább 30 cm;
- az ajtószerkezet telepítése. A kényelem érdekében az ajtólapban egy kis ablak alakú nyílás készíthető, hogy a napfény behatolhasson a keretbe. Ez az ablak szabadon hagyható vagy üvegezhető;
- a tető elrendezése. A Madárház teteje különféle anyagokkal borítható. Azbesztcement lemez, tetőfedő filc, acélból készült profilozott lemez a legalkalmasabb ezekre a célokra;
- befejező réteg felvitele. A termék felületét lakkal vagy festékkel kell kezelni. Olajfesték használata ajánlott.
A WC-k rendezésekor ne feledkezzen meg a szellőzés szervezéséről.A legegyszerűbb lehetőség is elegendő lesz. Ezt a rendszert úgy tervezték, hogy eltávolítsa a levegőt a hulladékgödörből kifelé. A szellőzés gyártásához csövet lehet használni. A termék minimális átmérője 10 cm.
A cső felszereléséhez a WC kifutójába, valamint a tetőbe a megfelelő átmérőjű rések készülnek. A csőnek legalább 0,2 m-rel meg kell emelkednie a tető felett.
Jegyzet! Minden helyet, ahol ez az elem keresztezi a favázat, gondosan lezárják. A rendszer végén egy terelő van felszerelve. Képes lesz kialakítani a légelszíváshoz szükséges tolóerő szintjét.
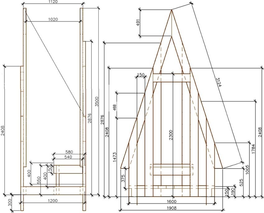
A rajzok alapján saját kezűleg WC-t építünk az országban, például a "Shalash" -t
A föld feletti "Shalash" szerkezete összetettebb, mint a "Madárház". De az építésére fordított összes munka igazolja önmagát, mert a végén látványos megjelenést kap a WC.
Sok nyári lakos stilizálja az ilyen kialakítást, hogy tündér háznak tűnjön. Ennek köszönhetően nagyon érdekes tervezési lehetőségek találhatók az oldalakon. Inspirációként saját kezűleg használhatja a nyári rezidenciához tartozó WC-k fényképeit, amelyek közül sok az interneten található.
Az ilyen objektum, mint a "Shalash" építése egy cesspool kialakításával kezdődik. A dimenziós paraméterek az előző tipikus projektből vehetők át. Azon a területen, ahol a gödör sarkai találhatók, mélyedéseket kell tenni. Betontömböket helyeznek el bennük. Nagyon fontos a pontos geometria megtartása. A szerkezet téglalap alakúvá tételéhez meg kell mérni a betontömbök közötti távolságot. Ne felejtse el átlósan ellenőrizni az alapot. Ezeket is meg kell mérni, és a végén ugyanazoknak kell lenniük.
Hasznos tanácsok! A vízszintes szabályozásához sík sín használható. Két egymás melletti blokkba illeszkedik. A tetején van az épület szintje. A betonalap maximális magassága 0,15 m. Ezen a magasságon ennek az elemnek a talaj fölé kell emelkednie.
Hogyan építsünk WC-t az országban saját kezűleg: rajzok és lépésenkénti utasítások a "Shalasha" építéséhez
Ennek az egyszerű utasításnak megfelelően könnyen elkészítheti a WC-t az elkészített rajzok alapján.
Szakaszos felépítés:
- az alapozás nedvességtől szigetelő anyagra történő felszerelése. Elég tetőfedő anyagot használni, amelyet csak erre a célra terveztek. Az anyagot több rétegben fektetik le. 2-3 réteg elég lesz;
- a keret alsó részének összeszerelése. Ehhez 50x50 mm keresztmetszetű rudat használnak. Az alap mérete 1x1 m. A kalapálást szélezett deszkák segítségével végezzük. Ezt a különös zsaluzatot padlólapok borítják;
- technológiai lyuk gyártása. Alján bármilyen tetszőleges alakú rés készül. Itt ugyanazok a méretkorlátozások érvényesek, mint a Madárház esetében;
- fa alap feldolgozása antiszeptikus szerekkel. Minden oldalról antiszeptikumot kell alkalmazni az alap felületére. Ha saját kezűleg WC-t csinál, kövesse az utasításokat, hogy megbizonyosodjon arról, hogy minden elvégzett művelete helytálló;
- a keret hátsó és első részének összeszerelése. A lépés végrehajtásához használja a meglévő rajzokat vagy vázlatokat. Még a hálózaton készített fényképek is megfelelnek, ha elég jól tud méretezni és rendelkezik a fa kezelésével kapcsolatos ismeretekkel.
A "Shalash" építésének utolsó szakasza
Az építkezés utolsó szakaszában az összes alkatrész felszerelésre kerül, és a keret véglegesítésre kerül. A további munka a következő:
- a "Shalasha" részek befejezése.A hátsó és az elülső falak belülről deszkával vannak ellátva;
- az első és hátsó falak felszerelése. Ezeket az alkatrészeket a padlóra szerelik, és a deszkákkal végzett munkából maradt maradványok segítségével tartják össze;
- deszkákból fa lécezés telepítése. Ennek az elemnek a gyártása után annak burkolatát hajtják végre;
- tetőszervezés. Táblák segítségével, amelyek hosszának legalább 1,8 mnek kell lennie, elkészítik a "Shalash" tetőjét. Ehhez az anyagnak a szerkezet hátulján és elülső oldalán kell nyugodnia, és rögzítőelemekkel fa léceken kell rögzítenie. Az eredmény egy tető;
- tetőfedő anyag fektetése;
Hasznos tanácsok! Ebben az esetben a befejezés bármilyen lehet. Fontos azonban fenntartani az általános építési stílust. Ha mesés házat készít, akkor nem ajánlott fémcsempét vagy hullámpapírt használni. Válasszon egy anyagot, amely megfelel a tervének. Szélsőséges esetben ugyanazt az anyagot használhatja, amely a helyszínen egy lakóépület tetejét vagy a környező épületek (garázs, pavilon, fészer) tetejét borítja.
- gerinc telepítés (tetőelem). A tető gerincrészét fából készült szobor díszítheti. Ez lehetővé teszi a következetes tervezési stílus létrehozását;
- ajtószerkezet telepítése. Az ajtó felszerelése előtt rögzítse előre a fogantyút és akassza fel. Kívülről egy tetszőleges alakú szélmalmot szegezhet;
- végső befejezés alkalmazása. A fát olaj alapú lakkal vagy festékkel kell bevonni.
A kert hátsó udvarának ez a változata lehetővé teszi a fantáziák kóborlását, és nem ír elő jelentős korlátozásokat a tervezésben. Számos fotó- és videóanyag segítségével érdekes ötleteket találhat a tündérházához.
Hogyan készítsünk WC-t az országban saját kezűleg: rajz és lépésenkénti utasítások a tőzeg-WC létrehozásához
A tőzeg WC-k nem kevésbé népszerűek a nyári lakosok körében, mivel rengeteg előnyt kínálhatnak a külvárosi területek sok tulajdonosának. A hulladék tőzegszubsztráttal történő megszórásának módszerét egyszerre számos előnye indokolja:
- A tőzeg jó szagelnyelő tulajdonságokkal rendelkezik. Ezzel elfelejtheti az utcai WC működésével járó kellemetlen pillanatokat.
- A magas higroszkopikus szint miatt az aljzat jól felszívja a nedvességet, ami miatt csökkenthető a hajtás tisztításának gyakorisága. Más szavakkal, a WC hosszabb ideig működtethető anélkül, hogy ki kellene üríteni a tárolótartályt.
- A feldolgozott keverék felhasználható a terület megtermékenyítésére, mivel a tőzeg, még tiszta formájában is, baktériumokat tartalmaz összetételében, amelyek hozzájárulnak a szerves hulladéknak a talaj tápláló komposztjává történő átalakulásához.
Jegyzet! A tőzeg WC-k gyárilag gyártott szerkezeteit nem kell összekötni a szolgáltató rendszerekkel: csatornázással, elektromos hálózattal és vízellátással. Függetlennek és autonómnak tekinthetők.
A gyári termelés tőzegtermékeinek jellemzői
A gyárilag gyártott tőzeg típusú WC-k sajátos működési elvvel rendelkeznek. Kialakításuk célja, hogy az emberi salakanyagokat több frakcióra válasszák: folyékony és szilárd.
Ha nagyszámú ember él egy külvárosi területen, vagy ha egyszerűen azt tervezi, hogy gyakran használja a WC-t, akkor egy speciális tömlővel vagy vízelvezető rendszerrel lehet a már megtisztított folyékony frakciót elvezetni.
Ekkor a szilárd frakció a tárolótartály alján halmozódik fel. Ezeket a fürtöket könnyű eltávolítani. Ehhez egyszerűen vegye ki a tartályt, és ürítse ki annak tartalmát a komposztgödörbe.A gyártók a tőzeg-WC-k tárolótartályait fogantyúval látják el a szállítás megkönnyítése érdekében.
A késztermékek fő előnyei közé tartozik az egyszerű kezelési rendszer. A tartály tartalmát összerázzuk, majd a hajtást leöblítjük, tőzegszubsztráttal feltöltjük és visszahelyezzük.
A gyári termékek átlagára:
| Modell név | Terméktípus | Kapacitás, l | Költség, rubel |
| Tőzeg | tőzeg WC | 110 | 24310 |
| Termo | tőzeg WC | 110 | 32510 |
| Ekomatic | tőzeg WC | 230 | 40110 |
| Biolan Eco | komposzt WC | 200 | 38000 |
| Biolan Komplet | tőzeg WC | 140 | 21900 |
A késztermék megvásárlása jelentősen leegyszerűsíti a fürdőszoba szervezését a helyszínen. Azok számára, akik pénzt akarnak megtakarítani, az alábbiakban részletes útmutatást találunk arról, hogyan készíthetünk magunknak tőzeghelyiséget.
DIY tőzegszekrény útmutató
A tőzegalapú hulladékkezelési elvű WC készítéséhez a következő anyagokat kell elkészíteni:
- rögzítőelemek (csavarok, szegek);
- táblák;
- rétegelt lemez.
Hasznos tanácsok! Használjon normál WC-ülést a nagyobb kényelem érdekében. Előre meg kell vásárolni bármelyik üzletben.
Lépésről lépésre:
- a doboz összeszerelése. Négy fatábla van egymással összekapcsolva önmetsző csavarokkal. A tárolótartály felszerelésének későbbi munkájának megkönnyítése érdekében ajánlatos kivágást készíteni a termék elülső részén;
- a doboz felső részének burkolata. Használjon egy rétegelt lemezt a doboz tetejének borítására. Ne felejtsen el előre lyukat vágni benne, amely alatt a tartály található;
- lábak telepítése. Stabil lábak vannak felszerelve a doboz sarkaihoz. Magasságukat úgy számolják, hogy a hulladéktároló tartály könnyen cserélhető;
- az ülés rögzítése a műszaki lyukhoz. A gyári opciók felhasználhatók a cserekészletként értékesített tőzeg WC-khez. Készülhet műanyagból vagy fából, valamint más anyagokból;
- tárolótartály felszerelése műszaki nyílás alatt. E célokra egy megfelelő térfogatú műanyag vödröt használnak. A tőzeget előzetesen az aljára öntik. A közbenső réteg vastagsága legfeljebb 5 cm.
Átlagos árak a gyárban:
| Név | Termék anyaga | Költség, rubel |
| Biolan Huussikka (termál ülés) | polipropilén műanyag | 1500 |
| Separett (termál ülés) | polipropilén műanyag | 1250 |
| Kekkila (termál ülés) | habosított polipropilén | 1850 |
| Biolan Pehvakka (termál ülés) | polipropilén műanyag | 1650 |
| Nyári lakos (ül a gödörön) | Hungarocell | 250 |
| Separett 500 PRIVI (termikus ülés szeparátorral folyékony frakciókhoz) | polipropilén műanyag | 4550 |
Hogyan építsen WC-t az országban a saját kezével, videó és további ajánlások
A korábban említett utasítás nem tartalmazza a tőzegszekrény szerkezetének méreteit, mivel egy ilyen szerkezet felépítése a helyszínen nem jár nehézségekkel. A föld feletti részként készíthet egy "Shalash" típusú fülkét.
További ajánlások:
- A könnyű használat érdekében jobb, ha előre több vödröt vásárol fedéllel.
- A tartály (vödör) ürítésének eljárása sokkal könnyebbé válik, ha a hulladékot akkor dobják ki, amikor a töltési szint eléri a teljes térfogat egyharmadát.
- Speciális adalékok alkalmazásával, biológiai gyorsítóként, fokozható a tőzeggel történő hulladékfeldolgozás hatékonysága.
- A minőségi eredmény elérése érdekében csak gyárilag gyártott töltőanyagot szabad használni.
Hasznos tanácsok! Azonnal gondoskodjon egy komposztgödörről a hulladék eltávolításáról a WC-ből, vagy dobja ki egy erre kijelölt helyre.Idővel a feldolgozott terméket felhasználhatja zöldségtermesztésre a kertben (talajtrágyázás).
Videóanyagok segítségével vizuálisan megtekintheti a WC létrehozásának technológiáját egy személyes telken.
Egy kis fantázia és szorgalom, és az utcai WC-je a hétköznapi szükségletből látványos kiegészítővé válik, amely díszíti a helyi területet.








































