באתרי האינטרנט של חברות הבנייה תוכלו למצוא אלפי פרויקטים יפים ופרקטיים ברשות הרבים. אבל לכל בעל קוטג 'קיץ יש רעיון משלו לגבי מה אמור להיות בית מרחץ בעליית גג: החל מהחומר שעל בסיסו ייבנה הבניין, וכלה בפריסה, סידור החלל הפנימי וחלוקתו לאזורים פונקציונליים. מאמר זה יעזור לכם ליצור פרויקט ממש נוח ונוח.
תוֹכֶן
אמבטיה עם עליית גג: יתרונות וספציפיות של פרויקטים
להרים פתרונות יוצאי דופן לבניית קוטג 'קיץ ברשת, לעתים קרובות יותר ויותר ניתן למצוא תמונות אטרקטיביות של אמבטיות עם עליית גג. לא נדיר שבעלי קרקעות משתמשים באלמנט אדריכלי זה על מנת לשפר ולהרחיב את האפשרויות לפריסה של בניין כזה.
קומת הגג מתאימה לסידור הנחות למטרות שונות:
- חדרי מנוחה;
- חדר כושר עם ציוד כושר;
- חדר ביליארד;
- מזווה לאחסון ציוד אמבטיה, מגבות וכו '.
אך הפיתרון הטוב ביותר הוא עדיין להשתמש בעליית הגג לארגון חדר לבילוי נעים.
היתרונות של שימוש בפרויקטים של אמבטיות עם עליית גג
לרוב, החלל מתחת לגג משמש בעליית גג, שם הדברים פשוט מאוחסנים. עם זאת, מעצבים הצליחו למצוא בו שימוש טוב יותר לאחר שהביקוש לבניינים עם קומת עליית גג גדל.
היתרונות של פרויקטים כאלה הם ברורים:
- לבעלים יש את ההזדמנות לחסוך משמעותית מקום פנוי, כמו גם להפיץ באופן רציונלי את האזור הניתן לשימוש.
- פרויקטים של אמבטיות בעלות עליית גג של 6x8 מ 'ומעלה יכולים להיחשב כבית הארחה, המתאימים למגורים זמניים של קרובי משפחה וחברים שהגיעו לבקר במדינה.
- בתי מרחץ עם עליית גג נראים הרבה יותר אטרקטיביים מבניינים ארציים חד קומתיים.יתר על כן, העלות של מבנים כאלה נמוכה בהרבה ממחיר בניין בן שתי קומות.
עצה מועילה! אם מזגגים את קירות הקצה של עליית הגג, תוכלו לקבל מרפסת יפה. ניתן להשתמש בחלל זה גם ליצירת אלמנטים מבניים אחרים, למשל לסידור מרפסת או מרפסת פתוחה.
אם אתה משתמש בחוכמה בחלל מתחת לגג, אתה יכול להפחית את עלויות החימום. ניתן לחמם את קומת עליית הגג באמצעות תנור סאונה, שבגללו יישמרו תנאים מיקרו אקלים נוחים באזור זה. אם האמבטיה תוכננה אך ורק להפעלה בקיץ, החלל מתחת לגג יכול לתפקד כסלון. פתרון מצוין יהיה לארגן מטבח קיץ עם נוף יפה מהחלונות.
הספציפיות של פרויקטים קומפקטיים של בתי מרחץ עם עליית גג
אפילו פרויקטים של בנייה טיפוסית יכולים להיות שונים בגודל ובפריסות הפנימיות. לרוב, בעלי קוטג'ים בקיץ, בגלל היעדר מקום פנוי, מעדיפים בניינים קומפקטיים. מסיבה זו, הפופולריים ביותר הם פרויקטים של אמבטיות בעלות עליית גג 6x6 מ 'ו 4x6 מ'.
למרות גודלם ופשטותם הברורה של פריסות, מבנים כאלה מסוגלים לספק את כל התנאים למנוחה טובה. הם אידיאליים למשפחות עם מספר מצומצם של אנשים או בעלי אזורים פרבריים עם שטח קטן.
פרויקטים אופייניים של אמבטיות עם עליית גג של 6 על 4 מ 'כוללים בדרך כלל מערכת סטנדרטית:
- חדר אדים;
- פְּרוֹזדוֹר;
- מקלחת;
- מרפסת או מרפסת.
כמה עיצובים קומפקטיים אינם מתחשבים בנוכחות של מרפסת או מרפסת. במקרה זה, כל שטח אזור הכניסה מוקצה לסידור חדר המנוחה. בעליית הגג מאורגן מרחב מחיה לאורחים. יכול להיות גם מזווה לאחסון אביזרי אמבטיה. המקום להתקנת המדרגות נבחר כך שהוא לא יסתבך בפנים.
היתרון של אמבטיות בעלות עליית גג של 6x6 מ 'ו 4x6 מ' הוא גם שבניינים כאלה תופסים מינימום מקום בקוטג 'הקיץ ומאפשרים לכם לחסוך את השטח הסמוך. יחד עם זאת, הפריסה, כמו הממדים הפנימיים של המקום, יכולה להשתנות לבקשת היזם.
הערה! גובה התקרה המינימלי בעליית הגג צריך להיות 2-2.5 מ '.
תכונות של בניית אמבטיה: פרויקטים, מחירים וחומרים
המעשיות יוצאת הדופן של המרחצאות בעליית הגג מאפשרת לך ליישם באופן מלא מגוון רחב של פריסות ופתרונות עיצוב. אם אתה רוצה לעשות מאמצים בעצמך לתכנן בניין, יש הזדמנויות רבות להתגלמות רעיונות מקוריים.
מבנה העל החשוב ביותר של קומת עליית הגג הוא מבנה גרם המדרגות. בלעדיה העלייה למפלס העליון של האמבטיה תהיה בלתי אפשרית. ספציפיות נוספת של בניין בעליית הגג היא מבנה הגג המיוחד. אסור לנו לשכוח שהשטח מתחת לגג מוגבל למדי. כדי לחלץ ממנו את הצילומים השימושיים המרביים, מומלץ ליצור גג גמלון עם מבנה שבור.
אפשרות לא מתאימה לפרויקטים של אמבטיות דו קומתיות עם עליית גג היא גג משופע. גם סוג גג גמלוני מסורתי לא יביא את הנוחות הרצויה. לעתים קרובות מפתחים משתמשים במבני גג מסוג אוהל.
על סמך הגיאומטריה והפרמטרים של הגג נבחרה אפשרות ההרמה לעליית הגג. הפרקטי ביותר והאמין ביותר הם מבני גרם המדרגות מסוג הצעדה. תהליך התקנתם באזורים מוגבלים מלווה בקשיים רבים.בפרויקטים בגודל 3x4 מ 'או 4x4 מ', עדיף לבחור באפשרות עיצובית אחרת. לסולמות בולטסב יש כמעט אותם תכונות שיש למכשירי צעדה. מדרגותיהם של מוצרים כאלה קבועות לקירות.
חָשׁוּב! לא ניתן להתקין גרם מדרגות בורג באמבטיות המיוצרות באמצעות טכנולוגיית מסגרת. מבנים כאלה דורשים תמיכה מיסב מוצק. במקרים אחרים, אין הגבלות.
גרם מדרגות לולייני נחשב לפחות נוח מבחינת התפעול. אך יש להם מראה מרהיב וחוסכים ביעילות מקום פנימי. מוצרים כאלה הם אידיאליים עבור אמבטיות קומפקטיות.
בחירת החומר ליישום הפרויקט של בית מרחץ בעליית גג
בשוק יש מגוון רחב של חומרי בניין שניתן להשתמש בהם לבניית אמבטיה. הפרויקטים של אמבטיות עם עליית גג עשויות עץ (מודבקות או מוגדרות), גושי קצף, בולי עץ (מעוגלים) מבוקשים מאוד.
חומרים אחרים מתאימים גם למטרות אלה:
- לְבֵנָה;
- בלוקים מעץ;
- בטון סודה;
- בלוקים למסגרת.
אם משתמשים בבטון מוגז, לבנים או קצף לבניית אמבטיה, אינך יכול להסתדר בלי עבודה מול פנים וחוץ. צורך זה נובע מהתכונות הטכניות של חומרים אלה. אם לקיר הלבנים אין בידוד נוסף, החדרים באמבטיה יהיו קרים.

עץ הוא החומר הפופולרי ביותר עבור בניית אמבטיות בקווי הרוחב שלנו
כנ"ל לגבי פרויקטים של אמבטיות עם עליית גג עשויה קוביות קצף ובטון סודה. מבנה החומרים הללו נקבובי; הוא חושש מחשיפה ללחות גבוהה ולשינויי טמפרטורה פתאומיים. יש לציין כי חיפוי הקירות מתבצע במקביל לבניית הבניין.
החומר האופטימלי ביותר לאמבטיה הוא עץ. זה ידידותי לסביבה, עמיד ואמין, עמיד ופרקטי. חומר זה מתאים גם לבניית מסגרות. יתר על כן, המסגרת יכולה להיות מעץ או מתכת. מעליו מותקן החיפוי. חשוב מאוד שבניינים כאלה יבחרו חומרי בידוד איכותיים. כקישוט לאמבטיה מסוג מסגרת, לוחות בלוק, עץ, בטנה מתאימים.
הערה! טכנולוגיית בניית מסגרות היא המועילה ביותר מבחינת מהירות ועלות. מבנים כאלה אינם דורשים ייצור של בסיס מסיבי ומוצק. יש אפשרות לחסוך ברכישת חומרים. בנוסף, אמבטיות המסגרת תלויות פחות במאפייני האדמה.
עלות ממוצעת לבניית אמבטיות מחומרים שונים:
| חוֹמֶר | מחיר, רובל / מ"ר |
| עץ (טכנולוגיית מסגרת) | מ- 9000 |
| בטון קצף, בטון סודה | משנת 11000 |
| עֵץ | משנת 12000 |
| קורות | משנת 14000 |
| לְבֵנָה | משנת 16000 |
פרויקט של בית מרחץ עם עליית גג ומרפסת מקורה לשימוש בכל ימות השנה
פרויקטים של אמבטיות העשויות מעץ 6x6 עם עליית גג מבוקשות מאוד בקרב בעלי קוטג'ים בקיץ, הממוקמים באזורי המרכז והצפון-מערב. ניתן להשתמש בשטח הפתוח אך ורק בעונת הקיץ. אם תעשה את המרפסת המקורה סגורה, היא תתאים לשימוש במהלך חודשי החורף. במקרה זה מוקצה שטח השווה ל 6 מ"ר לסידור המרפסת. מרחב זה מספיק בכדי לצייד מקום מנוחה נוח ל 2-3 אנשים.
על המרפסת תוכלו לשים:
- שולחן קטן;
- כִּיסְאוֹת;
- כמה כורסאות או ספה.
בנוסף, פרויקט הסאונה 6x6 עם עליית הגג מספק חדר מנוחה נפרד בקומת הקרקע. מידותיו 8.1 מ"ר. מחדר זה מוביל גרם מדרגות לקומת הגג, ששטחה הכולל הוא 25 מ"ר. יש כאן מספיק מקום לארח בנוחות חברה גדולה למנוחה או להצטייד בסלון שיאפשר שימוש בבית המרחץ למגורים קבועים או זמניים של האורחים.
לנוחיותכם, באמבטיה יש חדר רחצה וחדר רחצה. אם התנור מותקן בחדר האדים, ההדלקה יכולה להתבצע ישירות מחדר המנוחה. גובה התקרות בקומת הקרקע הוא 2.1 מ ', מה שמאפשר להתקין מדפים דו-קומתיים בחדר האדים. רצוי שהם יהיו זוויתיים. לפיכך, ניתן יהיה להגדיל את מספר האנשים שיכולים להיות בו זמנית בחדר האדים.
פרויקט מעשי ונוח של בית מרחץ עם עליית גג ומרפסת
הפרויקט הקומפקטי של בית מרחץ בעליית גג של 6x4 מ 'כולל לא רק את הנחות הראשיות, אלא גם טרסה. הודות לכך, הבעלים יכול לא רק להירגע בחדר האדים, אלא גם לבלות בנוחות בסוף השבוע בדאצ'ה. גם עם גודל כה קטן, גישה מוכשרת לתכנון תיצור את התנאים הדרושים באמבטיה למנוחה טובה.
מאמר קשור:
אמבטיה עם בריכה: פרויקט של מתחם אמבטיות מדהים למנוחה
פרויקט חדר אדים עם בריכת שחייה. תכונות וסדר הקמת המבנה. תמונות ותיאורים של הפריסות המצליחות והנוחות ביותר.
בקומת הקרקע של הבניין תוכלו לצייד את הנחות הבאות:
- חדר אדים (5 מ"ר);
- חדר בילוי (8 מ"ר);
- חדר מקלחת (8 מ"ר);
- מרפסת פתוחה (15 מ"ר).
מומלץ לארגן סלון בגודל 15 מ"ר בקומת עליית הגג.
עצה מועילה! ניתן לשפר את הפרויקט של בית מרחץ בן 6 על 4 עם עליית גג על ידי הוספת מרפסת מרווחת לקומה העליונה, ממנה תיפתח נוף יפהפה של הנוף שמסביב.
התכונות של פרויקט 6 על 6 אמבטיות עם עליית גג וחדר מנוחה
לא פחות נוח יהיה פרויקט האמבטיה, שפריסתו מספקת נוכחות של חדר אירוח מרווח. במקרה זה, רצוי להשתמש בקורה בגודל חתך של 100x150 או 150x150 מ"מ לבניית בניין. יש להשתמש בסיכות כאלמנטים מקבעים. הם יכולים להיות עשויים מתכת או עץ. יהיה שימושי להשתמש בתנור mezhventsovy. למטרות אלה, בד חבל הוא אידיאלי.
הפריסה הפנימית כוללת:
- אולם;
- מקלחת;
- חדר אדים;
- חדר מנוחה;
- אולם וחדר שינה (קומת עליית גג).
להרכבת אמבטיה 6 על 6 עם עליית גג, מומלץ להשתמש בסוג החיבור "חצי בר". לבניית מחיצות פנימיות המחלקות את החלל לחדרים נפרדים, עליך לקחת סרגל. הרצפה נוצרה מלוחות קצוות בגודל חתך של 50x150 מ"מ.
כדי למנוע אובדן חום דרך הרצפה, ההתקנה שלו מתבצעת על פי תוכנית מסוימת:
- על גבי בולי העץ, המותקנים בגובה של 0.8 מ ', מחובר לוח מחודד.
- לאחר מכן, מונחת שכבת בידוד גלילה. עובי החומר - לפחות 5 ס"מ.
- רצפת גימור נוצרת מהקרשים.
לפרויקט שהוצג, הגג בעל מבנה משופע הוא המתאים ביותר. רצוי להרכיב את הקורות באמצעות לוח קצוות, שהפרמטרים שלו הם 40x100 מ"מ. הגמלונים עטופים בלוח עץ, והגג מכוסה בצפחה אירו.
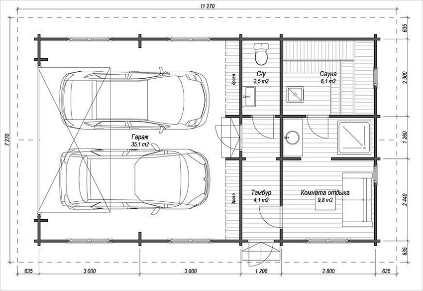
פרויקט סאונה ארגונומי עם מוסך תחת קורת גג אחת
מוסך הסאונה הוא מבנה בו שני חפצים מחוברים באופן אורגני - חניה מקורה לרכב וחדר אדים. בדרך כלל משתמשים בבניית פרויקטים כאלה אם המשאבים הכספיים של הבעלים מוגבלים. אם תוסיף עליית גג מעל המבנה, הבניין יכול לשמש בבטחה כבית הארחה.
פרויקט רחב היקף של בית מרחץ עם מוסך לשתי מכוניות עשוי להיות מורכב מהנחות הבאות:
- חדר הלבשה (5 מ"ר);
- חדר אדים (10 מ"ר);
- חדרי מנוחה (12.5 מ"ר);
- חדר מקלחת (3 מ"ר);
- חדר אמבטיה (2 מ"ר);
- חדר מנוחה (12.5 מ"ר);
- בריכה.
וכל זה ממוקם על שטח של 140 מ"ר. כשליש משטח זה מוקצה לסידור המוסך - כ 45 מ"ר.ליד הבריכה מקימים הנחות טכניות:
- יַעֲרָן;
- חדר דוודים;
- חדר דוודים.
עצה מועילה! במוסך תוכלו לצייד בית מלאכה ובכך להגדיל את הפונקציונליות של הבניין.
כיצד לבחור וליישם פרויקט אמבטיה בן שתי קומות
ייצור אמבטיות על בסיס פתרונות מוכנים הוא שירות מאוד פופולרי בשוק. יחד עם זאת, בעלי מגרשים יכולים להיות בטוחים לחלוטין כי על ידי הזמנת בניית בניין בן 2 קומות, הם ימצאו פרויקט של אמבטיה מבר או יומן העומד בכל תקני הבטיחות והנורמות. במקרה זה תוכלו להשיג לא רק חיסכון משמעותי בזמן, אלא גם תוצאה איכותית, המגובה בערבות.
חברות בנייה כוללות בדרך כלל כציוד סטנדרטי:
- בית עץ (או ארגז);
- יסוד יסוד;
- מחיצות;
- גג;
- מבני דלתות וחלונות.
פרויקטים סוהרים של אמבטיות דו קומתיות ומחירים ליישומם תלויים במידות המבנה ובחומר שנבחר לבנייה.
בבחירת גודל בניין עתידי, יש לקחת בחשבון את הניואנסים הבאים:
- סוג מיקום האמבטיה באתר (מבנה נפרד או הרחבה לבניין מגורים);
- השטח הכולל של המגרש וכמות השטח הפנוי;
- מספר האנשים שיבקרו בבית המרחץ;
- עובי המחיצות והקירות הפנימיים;
- סוג בידוד וחומר גימור;
- פריסה פנימית ותכונותיה.
חָשׁוּב! לפני הכניסה לאמבטיה חובה להכין סף גבוה, שיעלה כ- 15 ס"מ מעל מפלס הרצפה.
מאפייני פרויקטים ומחירים של אמבטיות דו קומתיות מעץ ובולי עץ
כמעט כל החומרים מתאימים לבניית אמבטיה, אך עץ ובולי עץ נחשבים לפופולאריים ביותר. כדי לקבוע איזו אפשרות מקובלת יותר, יש צורך להשוות את המאפיינים של כל אחד מהם.
מאפיינים השוואתיים של חומרים לבניית אמבטיה:
| קרִיטֶרִיוֹן | פרויקטים של אמבטיות דו קומתיות מבר | פרויקטים של אמבטיות דו קומתיות מתוך בולי עץ |
| מחיר חומר, רובל / מ"ר | לא מגולח (5000) | לא שורש (5000) |
| פרופילי (10000) | ||
| מיובש (10000) | מעוגל (10000) | |
| מודבק (25000) | ||
| תכונות התקנה | משך הבנייה משבועיים עד 6 שבועות, היכולת לבצע את העבודה במו ידיכם | משך הבנייה הוא משבועיים עד 8 שבועות, העבודה מתבצעת על ידי מומחים, המזמינה תוך 6 חודשים. |
| ניקיון אקולוגי | ידידותיות לסביבה (למעט עץ פורניר למינציה, בעת רכישתו, עליכם לבדוק את מאפייני הדבק) | חומר ידידותי לסביבה |
| הִצטַמְקוּת | מודבק - 2% | 15% |
| פרופיל - 5% | ||
| לא מעוצב - 10% | ||
| תכונות של עבודות גמר | איטום קירות נחוץ רק במקרים בהם משתמשים בעץ לא מטופל, חומר פרופילי אינו דורש זאת | קירות זקוקים לקליעה וכן לשיוף |
| תכונות דקורטיביות | מראה מודרני, מגוון רחב של עיצובים | אותנטיות הטמונה בחדרי אדים רוסיים מסורתיים |
| עלות בניית אמבטיה 6x6 מ ', לשפשף. | 409000 (63 מ"ר) | 463000 (64 מ"ר) |
לבניית אמבטיה מודרנית, רצוי להשתמש בבר. ישנם מספר זנים של חומר זה בשוק, שלכל אחד מהם יתרונות וחסרונות, מאפיינים ומאפיינים טכניים משלו.
לדוגמא, סרגל מהוקצע יכול להיות בעל חתך רוחב בטווח של 150-200 מ"מ. חתך רוחבו או מלבני. אפשרות זו נחשבת לתקציבית ביותר, אך מבחינת ביצועים, היא מפסידה משמעותית לסוגי עץ אחרים. החומר המסומן מאופיין בבהירות גיאומטרית של צורות וגדלים, שבגללם בניית אמבטיה מפושטת ומואצת מאוד. גודל החלקים נע בין 100 ל -150 מ"מ.
עץ פרופילי מודבק נחשב לאפשרות החומרים האיכותית ביותר.הפרויקטים המבוססים על חומר גלם זה הם בעלי העלות הגבוהה ביותר.
כיום, בעלי קוטג'ים עם שטח מוגבל יכולים אפילו להרשות לעצמם את המותרות שבבניית אמבטיה נוחה. הדבר מתאפשר על ידי גישה מודרנית לעיצוב מבנים. העיקר הוא לגשת במיומנות לבחירת הפריסה וחומר הבניין.



















