הזמן חלף בו האחוזה הכפרית נתפסה כמקום של מאבק עיקש לקציר. כיום כל בעל מנסה ליצור לעצמו גָדֵר גן עדן לאיים קטנים. צריך רק לראות אילו טרסות ומרפסות מחוברות לבית, ניתן לראות תמונות של פרויקטים בגלריה שלנו. עבודות פתיחה ועיצובים מונומנטליים, מוצלים ומוארים מפתיעים במגוון שלהם.
תוֹכֶן
- 1 מה ההבדל בין מרפסת למרפסת מקורה לבית
- 2 טרסות ומרפסות לבית, צילומי פרויקטים וחפצים מוגמרים
- 3 תכנון מרפסת לבית, האפשרויות העיקריות להרחבות
- 4 תכנון טרסות ומרפסות עם זיגוג הזזה המחובר לבית
- 5 תכונות של יצירת תשתית, גג וחופה בעת בניית מרפסת או מרפסת מקורה
- 6 מהם החומרים הטובים ביותר לבניית מרפסת לבית במו ידיך?
- 7 כיצד לקבוע את גודל המבנה העתידי
- 8 מאפייני עיצוב הפנים של המרפסת והמרפסת
- 9 טרסות ומרפסות: תמונות של פרויקטים ונקודות חשובות שיש לזכור במהלך הבנייה
- 10 מרפסות ומרפסות: סרטונים עם פרויקטים מעניינים
מה ההבדל בין מרפסת למרפסת מקורה לבית
בלבול במונחים הוביל לכך שההבדל בין שני המושגים בתפיסת האנשים כמעט נעלם. לכן, לפני שמדברים על עיצוב בנייני חוץבואו נבהיר את השאלה שהתעוררה.
המרפסת היא אזור קיץ פתוח, סיפון המותקן על בסיס מוגבה. הבניין יכול לצמוד לקיר אחד של הבית, בעיקר לידו מִרפֶּסֶת, או יכול להקיף את הבניין כולו. המרפסת עשויה לרוב מעץ, יש לה גג ומעקה צד. הטרסות כוללות גם אזורים חופשיים המשקיפים על הגן, היער, האגם. במקום גג, מטריה, סוכך מותקן מעל ריצוף כזה, מַרקִיז או נייד חוּפָּה עשוי בד צפוף.
כשמסתכלים על הטרסות והמרפסות לבית, פרויקטים של תמונות, אתה יכול לראות את ההבדלים בין שני המבנים החיצוניים האלה. מרפסת מקורה הוא חדר לא מחומם סגור. הקירות והגג עשויים מחומרים שונים: פוליקרבונט, זכוכית, עץ, לבנים... המרפסת משמשת לסידור חדר האוכל, מטבח הקיץ, גן חורף.

מְרוּוָח מרפסת מקורה עם ריהוט עץ
אם החצרים הולכים לשמש בחורף, אז הם מבצעים בידוד הידרו ותרמי של הקירות, מבצעים חימום.
תשומת הלב! אם התוסף לא יחומם, קישוט הפנים עשוי מחומרים עמידים בלחות שלא ילחלו ולא יתחילו להתעצב.
ורנדות בדרך כלל בנוי באקלים קר. טרסות נפוצות באזורים הדרומיים, מכיוון שבנתיב האמצעי הן יכוסו בשלג במשך רוב ימות השנה.
טרסות ומרפסות המחוברות לבית, ראשית כל, נבדלות זו מזו בכך שהמרפסת היא לעתים קרובות אזור סגור ולעתים קרובות לא מחומם. כאן, רוב הבעלים מעדיפים להשתמש במבנה לסידור מטבח קיץ, גן חורף או חדר אוכל. אנשים רבים מעדיפים לצרף מרפסת לבית עץ על מנת לארגן מקום נוח להירגע בו. שטח הזיגוג הגדול הופך את המקום הזה לקליל ואוורירי.
מספר רב של תמונות של מרפסות לבית במו ידיהם מאפשר להעריך לא רק את הצד האסתטי, אלא גם את הפרקטי. נוכחות של מבנה נוסף המחובר לבית יכולה לחסוך משמעותית בחימום ולהגן על הקירות מפני ההשפעות השליליות של גשם, שלג ורוחות חזקות. הדבר נכון במיוחד בבתים הבנויים בתנאי אקלים קשים.
באופן כללי, ההבדלים העיקריים בין הטרסה למרפסת הבית הם כדלקמן:
| אינדקס | מרפסת מקורה | מִרפֶּסֶת |
| סוג בנייה | מבנה הון עם תשתית, רגלי תמיכה וקירות | לרוב חסרים יסודות וקירות |
| נוחות | מבודד ומחומם | בידוד בדרך כלל לא נעשה; בגלל היעדר קירות, אין טעם לחמם את הטרסה המחוברת לבית במו ידיך |
| ערך פונקציונלי | מגן על הבית מפני השפעות חיצוניות ומשמש כאזור בילוי | ניתן לארגן כאן רק פינת ישיבה פתוחה |
| בחירת חומרים | העיקר שהחומרים מיועדים ללחות גבוהה וירידות טמפרטורה | נדרשים רק חומרי בניין המתאימים לשימוש חיצוני |
טרסות ומרפסות לבית, צילומי פרויקטים וחפצים מוגמרים
סוגי המרפסות והטרסות לבית שונים בהתאם למיקום ביחס לבניין הראשי, חומרי בניין ליצירת המבנה, כמו גם אינדיקטורים אחרים. בתצלום של טרסות ומרפסות לבית ניתן לראות צורות שונות של מבנים:
- מַלבֵּנִי;
- טרפז;
- מְשּוּלָשׁ;
- חצי עגול.
ניתן לבנות ולצרף מתקני שעשועים בקיץ. מקום מובנה מסופק בשלב עיצוב קוטג ', תואמים עד כמה שניתן לעיצוב הבניין ונמצאים איתו על אותו בסיס. מבנים צמודים נקשרים לבית קיים ומונחים על בסיס נפרד.

פרויקט תלת ממדי של פרטי מודרני בתים עם מרפסת
לפני שתמשיך בבנייה ופיתוח של פרויקט מרפסת לבית, עליך לקבוע את מטרת החדר ואת הפונקציות שהמבנה יבצע. אם מניחים שמרפסת פתוחה המחוברת לבית מיועדת למנוחה, די רק לחשוב על סוג הריצוף, החופה והמעקות שמסגרים את המבנה סביב ההיקף. מרפסת פתוחה לבית פופולרית בשל העובדה שהיא תשתלב בקלות בחלק החיצוני של כל בניין.
עצה מועילה! פרויקטים של טרסות לבית או למרפסות, הכוללות סידור מטבח קיץ או התקנת מנגל, נחשבות מורכבות יותר ויקרות כלכלית.
כמו כן, הרחבה המיועדת לשימוש בכל ימות השנה נחשבת מורכבת יותר בביצוע. זאת בשל העובדה שבמקרה זה יהיה צורך לחשוב על נוכחות בידוד ולבצע חימום. אם לא היה לך ניסיון בעבר בביצוע עבודה כזו, עדיף להתייעץ עם מומחה. זה יעזור למנוע בזבוז נוסף מיותר.
באופן כללי, הנספח של מרפסת פתוחה העשויה לבית הוא מבנה שיש בו קיר משותף, סככה או מרפסת עם הבניין הראשי. מבנה כזה מאופיין במרחב גדול ופתוח, מוגן מפני משקעים ואור שמש. כסאות נוח, כורסאות וכיסאות מוצבים כאן בדרך כלל. כדי למלא את החדר בנעימות, משלימים אותו במגוון צמחים. חשוב מאוד שכדי לחבר מרפסת או מרפסת פתוחה לבית, אין צורך להזמין מומחים יקרים או לבצע עבודות עיצוב מורכבות.
מרפסת מקורה לבית היא מבנה מורכב יותר הדורש פרויקט מקדים. יתרון חשוב בהרחבה כזו הוא ארגון חלל המוגן באופן אמין מפני השפעות אטמוספריות כמו גשם, רוח או שלג. לעתים קרובות מאוד, בידוד מלא מתבצע על המרפסת, שבזכותה ניתן יהיה לארגן כאן לא רק מטבח לכל העונות, אלא גם מקומות שינה נוספים במקרה של הגעת האורחים.
חָשׁוּב! לפני הקמת מרפסת מקורה וסגורה לבית, יש לזכור כי המבנה נחשב להון ומחייב לגליזציה נפרדת בשירות BTI. אם המסמכים הדרושים אינם זמינים, עלולים להיווצר קשיים בעתיד עם מכירת האתר או הפרטתו.
הצמדת מרפסת או מרפסת מקורה לבית, ניתן לארגן בסיס נפרד או ליצור מבנה יחיד עם הבית, אך יש לבצע עבודה כזו אפילו בשלב הבנייה. כנ"ל לגבי הגג: המרפסת יכולה להיות בעלת ריצוף נפרד או משותף עם הבניין הראשי.
מאמר קשור:
הרחבה לבית עץ. פרויקטים וסוגים עיקריים של הרחבות.
תוספות מחומרים שונים. רצף העבודות בבניית הרחבות וכמה טיפים לבנייתם.
תכנון מרפסת לבית, האפשרויות העיקריות להרחבות
טרסות ומרפסות מודרניות לבית (תמונות של פרויקטים מוצגות בעמוד) נראות ייצוגיות מאוד. המרפסת אינה עוד מבואה עם מתלה לבגדי עבודה או מחסן לכלי בית. הנוף הנשקף מהסיומת צריך להיות נעים לעין. לא מומלץ למקם מרפסת מקורה ליד גדר השכן, וכן על מגרש עם נוף לאזור הטכני (ערימת קומפוסט, טנקים, באר). עדיף שפרחים יהפכו לאובייקטים קבועים של תצפית. ערוגות פרחים, עצים, מגרש משחקים.
אם אנו רואים תמונות מודרניות של פרויקטים של מרפסות לבית בארץ, אתה יכול לשים לב למגוון רחב של רעיונות, צורות וחומרים המשמשים. בין חומרי הבניין המשמשים לבניית מבנים, הם הפופולריים ביותר:
- עֵץ;
- לְבֵנָה;
- מַתֶכֶת;
- פוליקרבונט;
- זכוכית;
- לוחות כריכים.
בזמן הצפייה בתמונות ובחירת האופציה שאתם אוהבים, ראשית כל, עליכם לקבוע האם הפרויקט ישתלב במסגרת האתר והאם הוא יהפוך לתוספת אידיאלית למראה החיצוני. לדוגמא, מרפסת יפה המוצמדת לבית עץ, שהתקלף ודהה צבע על החזית, לא תיראה אסתטית במיוחד. לכן, במקרים מסוימים, יש לבצע לפחות תיקון קוסמטי של החזית הראשית, ואז לשקול הקמת מבנים נוספים.
לעתים קרובות, כאשר בונים מרפסת לבית, משתמשים גם בשילוב של חומרים שונים, כמו לבנים, זכוכית, מתכת או אבן. בעת בחירתך, עליך לקחת בחשבון לא רק את העלות, אלא גם את זמינות החומר ליד אתר הבנייה. אם אין מקום במקום להציב את כל הבניינים הרצויים, מומלץ לשלב ביניהם, למשל לחבר בית מרחץ או מטבח קיץ למרפסת פתוחה. כיצד לחבר מרפסת לבית במו ידיכם? בואו ניקח בחשבון את האפשרויות הנפוצות ביותר.
מרפסת מרתף. הרחבה ממוקמת במפלס המרתף של הבניין הראשי ומורמת די גבוה מעל פני הקרקע. ליתר ביטחון, מעקות מותקנים סביב ההיקף, וגרם מדרגות מצויד לירידה נוחה לגינה. עמודי תמיכה משמשים בדרך כלל להתקנה, ובשלב הסופי של הבנייה, החלל שנותר בין הקרקע למרפסת מעוטר בסבכות עץ או ברזל יצוק.
מרפסת פתוחה לבית בן שתי קומות (או יותר). לרוב, ללא קשר למספר הקומות בבניין הראשי, המרפסת דו קומתית, המאפשרת גישה נוחה לקומות העליונות של הבית. לעתים קרובות, קורות גבוהות המשמשות כתומכות אינן מושכות במיוחד. כדי למנוע אי נוחות, החלל שמתחת למרפסת משמש ליצירת שטח נוסף.
עצה מועילה! במרפסת הקיץ של בית בן שתי קומות יכולות להיות מספר מפלסים המחוברים באמצעות מדרגות. זה נוח כשמתאספת חברה בגילאים שונים.
דרכים אחרות להוסיף טרסה או מרפסת לבית
כאמור, הרחבה יכולה להיות צמודה רק לאחד הקירות, להתבצע לאורך היקף הבית, או להיות מבנה נפרד באופן כללי, העומד בקצה השני של האתר. חשוב בבחירת אתר בנייה לקחת בחשבון את המוזרויות של שושנת הרוח של אזור נתון ולצייד את המבנה מהצד הנמוך.
לדוגמא, באזור עם רוח צפונית רווחת, יש להקים את המבנה מדרום. כדאי לקחת בחשבון גם את מיקום השמש ולמקם את הבניין בדיוק במקום בו הכי הרבה תאורה.
אם תפנה לתמונות של טרסות יפות ומרפסות לבית, אתה יכול לשים לב לפיתרון יוצא דופן כזה כמו המיקום של שטח הבילוי על גג הבניין. עם זאת, במקרה זה, יש לחשב נכון את העומס על הרצפות שסיימו כבר. תנאי הכרחי במקרה זה הוא ארגון של שכבת מחסום הידרו ואדים, כמו גם הנחת בידוד ורשת מחוזקת, המכוסים מלמעלה עם לוח טרסה מיוחד. כדי למנוע הצטברות לחות, יש לבצע את הרצפה בשיפוע קל מהקיר הראשי.
כפי שמראים תמונות רבות של הרחבות מרפסת לבית מסוג זה, לעתים קרובות משלימות אותן בריכה קטנה. מאגר מלאכותי יכול להיות מתנפח, עשוי מאמבטיה ישנה, כמו גם בריכה ממש מלאה (תלוי ביכולות הכלכליות של הבעלים). אזור מסודר לעיתים קרובות על הטרסה מנגל, מבודד באופן אמין את פלטפורמת העץ מהשפעות של טמפרטורות גבוהות.
לעתים קרובות ניתן למצוא ארגון של דשא עם דשא אמיתי או מלאכותי. בנוסף, העיצוב בצורת צמחים אקזוטיים בעציצים ייראה יפה. יש לחשוב מראש על ניואנסים כאלה, מכיוון שחפיפות חייבת להיות מתוכננת כך שתחזיק מסה כזו (תוך התחשבות במשקל האנשים שיהיו שם). חופה למבנה כזה יכולה להיעשות נייחת או נשלפת.
במקרה זה, ארגון המעקה סביב כל השטח של מבנה העל נחשב לחובה.לייצורם, חשוב להשתמש בחומרים הבאים:
- מתכת מזויפת;
- פרופיל אלומיניום;
- בר עץ.
אם לא ניתן להוסיף מרפסת לבית לאורך אף אחד מהקירות, מומלץ ליצור מבנה זוויתי או בצורת L. אפשרות זו מתאימה במיוחד ליצירת פרויקט משולב של מבנה פתוח וסגור. יחד עם זאת, המבנה הראשי מצויד בגג קבוע, ומעל ביתן מותקנת חופה שתפקידה העיקרי הוא להגן מפני השמש והגשם הקל.
האתר משולב לעתים קרובות עם פרגולות וסוכות, המחברות ביניהם עם מעברים, שבילים, מדרגות שונות. לא נדיר לשלב סיפון קיץ עם בריכה.
תכנון טרסות ומרפסות עם זיגוג הזזה המחובר לבית
מפתחים רבים חושבים שתוכניות של טרסות ומרפסות לבית (ראו פרויקטים של צילום בהמשך) צריכות להיות סטנדרטיות. ביצוע הרחבה מלבנית, כמובן, קל יותר. אך האם כדאי לחתור לפשטות כזו, כאשר בניית ריצוף חצי עגול או מעוגל מעט מורכבת יותר?
בָּדוּק! המרפסת היא אחד הגורמים לשמירה על חום בבית, שכן הדלת מהבניין הראשי נפתחת לא לרחוב, אלא לחדר סגור.
המרפסת המקורה המזוגגת לבית לא רק נראית אטרקטיבית, אלא גם מאפשרת לכם להתפעל בחופשיות מהנוף שמסביב בכל מזג אוויר. משם נעים במיוחד לראות גשם כבד עם סופת רעמים או חריגות טבעיות אחרות.
לפני שמארגנים מבנה מסוג סגור, כדאי ללמוד גם על חסרון משמעותי. חסרון זה הוא אפקט החממה, המתרחש בעונה החמה כתוצאה מחשיפה מתמדת לשמש. מהלך כזה של אירועים עלול לגרור עלויות נוספות להתקנת מזגן. כדי שלא יהיה קר מדי בחורף, כדאי גם לא לחסוך ברכישת חלונות איכותיים, כי זיגוג גדול יכול לגרום לקור מתמיד בפנים.
בהתאם לאופי השימוש ומטרת המבנה, ניתן לבחור באחת מאפשרויות הזיגוג:
- מִסגֶרֶת. כאן יש לזכור כי יישום המסגרות מפשט לא רק את תהליך החלפת החלונות במידת הצורך, אלא גם את התיקון הכללי של הבניין.
- ללא מסגרת. היעדר תפרים מחוברים ניתן למצוא רק בבנייני עילית, למרות זאת, לזיגוג כזה יש מספר רב של חסרונות. לדוגמא, זה כולל בידוד תרמי לקוי, חוסר היכולת להתקין רשתות נגד יתושים.
- פנורמי. מבוצע רק אם יש מסגרת ובניית גג.
- חלקי. מתאים כאשר הקירות מכוסים לחלוטין.
זיגוג גג או קיר מבוצע לעיתים קרובות. אם לבניין אין גג, תוכלו לצרף מרפסת לבית העשויה פוליקרבונט או להכין חופת סרטים. מומלץ לבצע זיגוג של משטחים אנכיים במקביל עם אלמנטים למינציה חסכוניים באנרגיה.
איך נראית הרחבה למרפסת מקורה לבית עם מערכת הזזה?
לאחרונה, הרחבות עם קירות הזזה הפכו פופולריות, מה שמאפשר לכם להפוך את המרפסת למרפסת. קירות כאלה עשויים מקטעים המחוברים באמצעות צירי מתכת (מה שנקרא. הַרמוֹנִי). כל קטע מורכב מלוח עץ תחתון וממשטח זכוכית. במידת הצורך, הם מועברים לצד אחד או שניים, ופותחים לחלוטין את הנוף.
באופן כללי, הופעתן של טכנולוגיות בנייה בצורת מנגנונים הזזה או נשלפים אפשרה להפוך טרסות פתוחות רגילות המחוברות לבית לחצרים מן המניין.המערכות הופכות מבנים סטנדרטיים לבניינים רב-תפקודיים, למשל, כאשר כל החלונות מורחבים לחלוטין, המרפסת הופכת פתוחה לחלוטין, ובמידת הצורך או במזג אוויר גרוע, ניתן להעביר את האלמנטים בקלות למקום ולהגן עליהם מפני משקעים או רוח.
יתרון נוסף של מבני הזזה הוא השימוש הרציונלי בחלל הפנימי, מכיוון שווילונות, תריסים או תריסי גלילה כבר לא יתדרדרו בהתאם למיקום האבנט.
זה מעניין! מבנים ניידים הזזה נחשבים בטוחים יותר מחלונות רגילים, מכיוון שהם קבועים היטב במצב הרצוי ואינם מסוגלים להיטרק ברוח חזקה או בטיוטה.
עיון בתמונות הטרסות המחוברות לבית, ניתן לשים לב כי ניתן להתקין את המערכות במיקומים שונים הן על פתחי חלונות נפרדים והן על כל גובה הקיר. ניתן גם לבחור בין אפשרויות שונות למערכות הזזה:
- עם בידוד נוסף;
- חסין זעזועים;
- דקורטיבי.
מבנים מחולקים גם על פי סוג מנגנון ההזזה, על פי קריטריון זה נבדלים בין הדברים הבאים:
- הרמה והחלקה;
- מִתקַפֵּל;
- נוֹטֶה.
אם פרויקט הבית אינו מאפשר הצמדת מרפסת אליו, ניתן להתקין אותו בנפרד. יש כאן יתרונות: באתר מרוחק תוכלו להירגע בבדידות, בשקט של הגן. או להפך, ניתן לשחק ולרעש, מבלי לחשוש להפר את שלום הבית. אם מתוכננת מסיבת ברביקיו, אז מרפסת עם על האש, המותקן במעמקי האתר, יפטר את הבית מריחות אובססיביים.
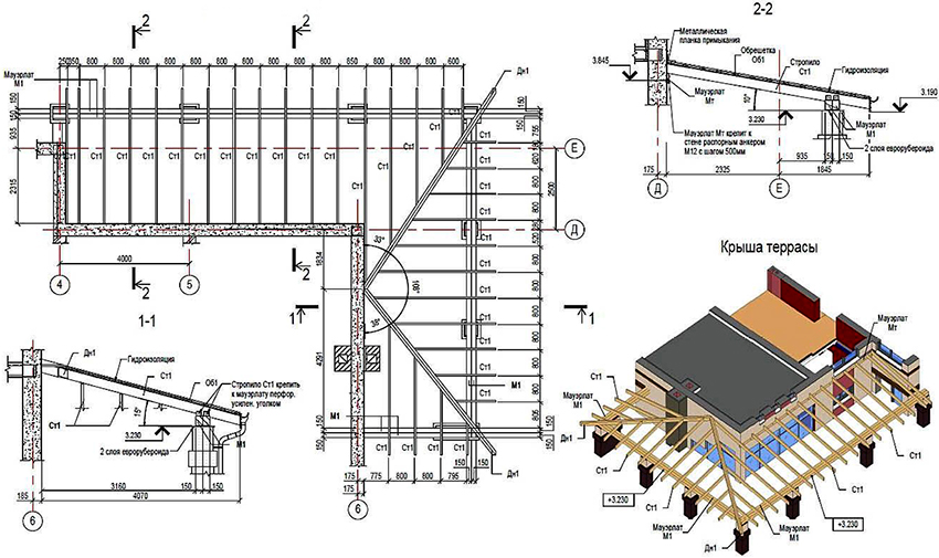
תכונות של יצירת תשתית, גג וחופה בעת בניית מרפסת או מרפסת מקורה
לפני שאתם בונים מרפסת לבית, עליכם להכיר את כל שלבי הבנייה:
- לקבוע את מקום הבנייה העתידית;
- בחר את הסוג שאתה אוהב;
- תכנן את הגובה, הרוחב והשטח האופטימליים;
- לערוך אומדן הוצאות תוך התחשבות בעלות החומרים, הכלים והשכר (במידת הצורך);
- לדבוק בשלבי עבודה מסוימים.
לא בכל המקרים נדרש לבצע עבודות להקמת הקרן, אך אם מתוכנן ליצור הרחבה הונית רחבת היקף, הרי שמדובר בבסיס חזק שיעזור להאריך את חיי המבנה. סוג הקרן נבחר על פי מאפייני המרפסת, בהתאם למשקל, לגודל ולמטרה הצפויים.
לפני שבונים מרפסת מקורה לבית במו ידיכם, לרוב מקימים בסיס עמודים. במקרה זה, מותקנים תומכים נפרדים המופצים על פני כל שטח המבנה העתידי. במקביל, יוצרים בור נפרד לכל עמוד שבתחתיתו מוזגים חול. לאחר מכן, העמודים מונמכים לחריצים המוגמרים ומקובעים היטב. בסוף העבודה, חובה לקשור עם לבד קירוי. אפשרויות בסיס אחרות:
- תשתית הבורג הינה אוניברסאלית מכיוון שהיא מתאימה לרוב סוגי האדמה. זהו מספר הערימות המותקנות שיקבעו את יכולות ההטבה של המבנה. להשלמת החלק העליון של התשתית משתמשים במסגרת עשויה קורות עץ או מתכת.
- תשתית רצועה נחשבת לאופציה הטובה ביותר אם אתם מתכננים ליצור מבנה כבד. במקרה זה יוצקים בסיס מונוליטי לאורך היקף הרחבה לעומק 50 ס"מ. אם הבניין קטן, ניתן להקטין את העומק.
- צַלַחַת. אפשרות קלה לעיצוב, מכיוון שאירגון הבסיס צריך להסיר את החלק העליון של האדמה, למלא אותו בהריסות ולהניח אותו על גבי הלוח.כדי לארגן את הרצפה, במקרה זה, מומלץ להשתמש בארגז כדי שיהיה חם יותר.
כדי לבנות מרפסת לבית ולהעניק למבנה מראה אטרקטיבי, עליכם לארגן נכון את הגג או להכין חופה. אם הרחבה צמודה לבית, אותו חומר מונח על הגג כמו על הבניין הראשי. אם הטרסה מוציאה בנפרד מהבניין או בגודל מרשים, עדיף להכין גג גמלונים.
חָשׁוּב! לא משנה מאיזה חומר עשוי הגג, עליו להתקין בזווית כדי שהמשקעים לא יצטברו על פני השטח.
קירוי גלילה נחשב לחומר פשוט, נוח, זול ופרקטי. זה יכול להיות איטום או רובם מאופיין, המאופיין במאפייני משתמש גבוהים. כדי להניח חומר כזה, קורות עץ מותקנות מראש, הסדינים עצמם מהודקים עם מסמרים מגולוונים.
בשל המראה האטרקטיבי וההתקנה הקלה שלהם, פופולריים גם אריחים גמישים, המשמשים לכיסוי מרפסת בכל צורה וגודל. בנוסף, נעשה שימוש בחומרים הבאים:
- ריצוף מקצועי;
- יריעות מגולוונות מברזל;
- פוליקרבונט.
מהם החומרים הטובים ביותר לבניית מרפסת לבית במו ידיך?
ורנדות בנויות מחומרים שונים:
- תוספות עץ נראות מקוריות אם הן מעוטרות בפנלים מגולפים וסוככים.
- מרפסת הלבנים ממוקמת על בסיס יציב. העיצוב משתמש בלבנים בצבעים שונים, המובחנות על ידי פדימנטים, בסיסים או פינות.
- תוסף עשוי אבן טבעית נראה מונומנטלי. הקשתות הקבועות למחצה יכולות להיות מזוגגות או מכוסות בחלונות ויטראז 'צבעוניים.
- עיצובים שקופים נפוצים. מסגרת המרפסת עשויה לבנים או קורות עבות כך שתומך הזכוכית יהיה חזק. בפתחים מותקנים חלונות עם זיגוג כפול או משולש.
עֵצָה! במקום זכוכית ניתן להשתמש ביריעות פוליקרבונט - הן קלות יותר, חזקות וזולות יותר.
ראשית כל, לפני שעושים מרפסת לבית, עליכם להחליט על סוג החומר המשמש לבנייה, תוך התמקדות לא רק בהעדפות אישיות, אלא גם בסביבה. למשל, לא מומלץ להכין מרפסת עץ לבית הבנוי מלבנים, ולהיפך.
עדיף להשלים בית לבנים עם הרחבה של אותו חומר. ולא רק בגלל המראה האטרקטיבי, אלא גם בגלל שחומרים מאותו מקור הם הרבה יותר קלים לשילוב זה עם זה, מכיוון שבסופו של דבר זה יביא למבנה מקשה אחת אמין ועמיד.
לפני שמכינים מרפסת לבית לבנים, עליכם לחשוב על בסיס אמין, מכיוון שהמבנה יהיה כבד מאוד ועם הזמן, קרוב לוודאי שיחל לשקוע. זה יגרום לסדקים בקירות, מה שעלול להוביל לקריסה. כדי להשלים את היסוד, תצטרך להכין תעלה עם טפסות סביב ההיקף, שם מוכנסים התומכים, ולאחר מכן הכל מלא במלט.
מאפיינים של טרסות ומרפסות עשויות פוליקרבונט לבית: תמונות בעיצובים שונים
לא משנה מאיזה חומר הקירות בנויים, גובהם יכול להיות כלשהו. עם זאת, עליך לקחת בחשבון את הדברים הבאים: ככל שהם גבוהים יותר, כך יהיה חם יותר בחדר, כך נמוך יותר - כך יותר שמש תיכנס פנימה. אתה יכול להסתדר בלי חומות הון. במקרה זה, מרפסת מקורה לבית עשויה פוליקרבונט, שהפך לאחרונה לביקוש משמעותי. היתרונות של חומר בנייה זה:
- משקל קל של המבנה המוגמר. זה מאפשר לך לא להילחץ יותר מדי מהקמת בסיס מסיבי. למרות זאת, המרפסת המוגמרת תהיה נוקשה ויציבה.
- עמידות בפני השפעה גבוהה. משקפיים וקסדות חסינות קליע לאופנוענים עשויים פלסטיק דומה. כאשר אבן פוגעת במשטח, ככל הנראה, המבנה יישאר שלם.
- תפוקה טובה. מרפסת הפוליקרבונט המחוברת לבית מכניסה עד 90% מאור השמש, כמו זכוכית טובה. יחד עם זאת, אנשים בפנים מוגנים ב 100% מפני ההשפעות המזיקות של קרינה אולטרה סגולה.
- בחירה בצבעים שונים. רק טרסות העשויות מחומר דומה יכולות להיות שונות במגוון צבעים, בין אם זה חום, כחול, ירוק או גוונים אחרים.
- אין צורך בעיצוב פנים. מבני פוליקרבונט עצמם נראים שלמים בפנים, מה שמבטל את הצורך בעבודה פנימית.
מידע מעניין! משקלם הנמוך של פוליקרבונט מובטח בשל העובדה כי נעשה שימוש בפחמן בייצור. יתרון נוסף של החומר הוא שמדובר בפולימר אורגני שאינו מכיל רעלים מזיקים או מתכות כבדות.
בשל המוזרויות בייצור, גם כאשר הוא מחומם לטמפרטורות גבוהות, כולל בעירה, פוליקרבונט אינו פולט חומרים מזיקים לבריאות, ולכן המבנה נחשב בטוח לתושבים, חיות מחמד וצמחים הגדלים בתוכו.
פלוס ללא עוררין בבניית מרפסת לבית הוא משקל החומר הנמוך, מה שמפשט מאוד לא רק את הובלתו, אלא גם את בניית הבניין. המבנה והגמישות המיוחדים של הסדינים מאפשרים לתת לחופה כל צורה מעוקלת. תקופת האחריות החומרית היא בדרך כלל 10-15 שנים.
האפשרויות העיקריות לטרסות פוליקרבונט המחוברות לבית
נקודה חשובה בבניית מרפסת פוליקרבונט היא להבטיח אטימה אמינה, מכיוון שאם לחלחל בין הסדינים עשויה להופיע עובש. מאותן סיבות נדרש אוורור נאות. עדיף לבחור חלונות עם מערכות הידוק המצוידות בתפסים ואטמים טובים לשם כך. זה יאפשר לפתוח את החלונות בקלות בקיץ ולסגור אותם בחורף.
מספר גדול של תמונות שונות של הרחבות למרפסת בית פוליקרבונט מאפשרות לך להעריך את אפשרויות הפרויקט הפופולריות ביותר:
- עם גג מקושת. חשוב לוודא שיש ניקוז טוב משני הצדדים, כי במקרה הגרוע ביותר, זה יכול לקרות שהקיר הסמוך לגג מוצף כל הזמן.
- עם גג בזווית. לפיכך, תוכלו לארגן גם מרפסת מקורה פתוחה וסגורה. אפשרות זו נראית אטרקטיבית, וזה לא לוקח הרבה זמן ומאמץ לייצר.
- מרפסת מקורה לחלוטין עם גג וקירות פוליקרבונט. אידיאלי עבור הרחבה בבית פרטי הממוקם באזור עם אקלים משתנה. במקרה זה, קיר הפוליקרבונט הראשי מתחיל מתחת לגג הבניין הראשי, וקירות פוליקרבונט מותקנים גם בצד.
- מרפסת מקורה למחצה. מתבצע גג משופע רגיל, הדלתות מיוצרות עם דלתות צירים רגילות או הזזה. אם אתה מכסה הכל לגמרי, אתה יכול להתחמם בחדר, אך ברוב המקרים הרחבה משמשת רק בעונה החמה.
מה התכונות של מרפסת עשה זאת בעצמך עשויה עץ או מתכת המחוברת לבית
חשוב לחבר מרפסת עץ לבית במו ידיכם אם במהלך בניית הבניין הראשי נעשה שימוש בבולי עץ מעוגלים, עץ מודבק או רגיל. למרות שבמקרים מסוימים טרסות ומרפסות עץ יהוו תוספת נהדרת לבית אבן או לבנים, יהיה קשה יותר לשלב חומרים.
במרבית הפרויקטים של מרפסת העץ אין ארגון בסיס. ככלל, את תפקיד הבסיס ממלאת המסגרת המשולבת של הרצפה והקירות, שעוטפים את החומרים שנבחרו. התוסף, המעוטר בדוגמאות מגולפות, ייראה יפה מאוד. לבניית סיפון עץ יש את היתרונות הבאים:
- מראה אטרקטיבי. הרחבה מעץ נראית תמיד מקורית, במיוחד אם היא מוקפת בנוף ירוק.
- ניקיון אקולוגי. עץ הוא חומר טבעי היוצר בתוכו סביבה נעימה ונעימה.
- עֲמִידוּת. אם החומר מעובד בצורה מיומנת, מרפסת עץ המחוברת לבית במו ידיכם תימשך מספר עשורים.
בנוסף ליתרונות, לבנייני עץ יש גם כמה היבטים שליליים. לדוגמא, יש לטפל בחומר מפעם לפעם כנגד פטריות וקרדית, מה שעלול לשבש לא רק את המראה האסתטי, אלא גם את חוזק המבנה. כמו כן, יש צורך לחדש את הטיפול בכיבוי האש, מכיוון שעץ הוא חומר דליק ודליק ביותר.
עצה מועילה! בתצלום הטרסות לבית העץ ניתן לראות שחלונות פלסטיק לבנים מחמירים את מראה הבניין. לכן, מומלץ להתקין חלונות עץ או חלונות פלסטיק מתחת לעץ, שלמרות שהם יקרים יותר, הם נראים הרבה יותר יפים.
לאחרונה, מבני מתכת לא היו נפוצים בשל תכונות הבידוד התרמיות הנמוכות שלהם. הודות לטכנולוגיות הבנייה המודרניות, המאפיינים של מבני מתכת השתפרו משמעותית. תומכי מתכת מותקנים בשתי דרכים:
- בולטוב. כל האלמנטים מחוברים זה לזה באמצעות ברגים. היתרון העיקרי הוא היכולת לפרק את המבנה ואף לסדר אותו מחדש במידת הצורך.
- מְרוּתָך. הוא אמין יותר מהגרסה הקודמת, אך לא ניתן לפרק את המבנה.
ליצירת מבנים תומכים משתמשים בצינורות עגולים או מעוצבים, כמו גם בפרופיל תאום. לאחר השלמת החיבורים, יש צורך לטפל במפרקים בתרכובות נגד קורוזיה כדי למנוע הרס בטרם עת. יתרון משמעותי הוא העובדה שכאשר מקימים מבנה מתכת, מותר להשתמש בחומרים משומשים שלעתים קרובות ניתן למצוא באתרים. חשוב שהם נקיים מסדקים, חלודה או חללים.
מה מומחים ממליצים להשתמש כחיפוי רצפה
מומלץ להניח עץ על רצפת המרפסת הגמורה, זה יאפשר לכם לקבל ציפוי אמין ועמיד שיימשך יותר מעשור ללא בעיות. על גבי העץ תוכלו למלא סיפון, ליצור רצפת עץ רגילה או להשתמש באחת מאפשרויות הריצוף המתאימות:
- לְרַבֵּד;
- לִינוֹלֵאוּם;
- אריחים קרמיים;
- לוח פרקט;
- פַּרקֶט.
התנאי העיקרי בבחירת חומר לרצפה הוא לקחת בחשבון את המוזרויות של המיקרו אקלים הפנימי. אם המרפסת היא אזור חיצוני, הרצפה חייבת להיות עמידה ואמינה. יש להבחין בחומר על ידי אינדיקטורים גבוהים של שחיקה ועמידות בפני כפור. עדיף שלכיסוי הרצפה יש מאפיינים נגד החלקה ויכולת לעמוד בפני השפעות הלחות ללא עיוות.
הסיפון נחשב לאחד החומרים הטובים ביותר.בתהליך ייצור הריצוף, קמח עץ ופולימרים משמשים למילוי החומר בכוח מספיק. התוצאה היא רצפה אטרקטיבית ולא מחליקה. חשוב במיוחד להשתמש אם מחוברת לבית מרפסת עץ, מכיוון שבחוץ לא ניתן להבדיל בין הסיפון לחומר טבעי - רק באמצעות מגע.
אם משמשים אריחי קרמיקה או כלי חרסינה לקישוט הרצפה, יש לזכור כי חומרים אלו מכבידים את המבנה באופן משמעותי. ניתן גם להבדיל בין עמידות בפני פגיעה נמוכה לבין המינוסים. בין יתרונות השימוש הם הנקודות הבאות:
- מאפייני ביצועים טובים;
- עמידות בפני כפור;
- היכולת לבחור ממגוון עיצובים ואפשרויות המחקים חומרים טבעיים.
רצפה עשויה לוחות בטון, המאופיינת בעמידות, נחשבת לזולה ופרקטית. לוחות מונחים בדרך כלל על מלט או משטחי חול, וניתן להחליף אלמנטים פגומים בקלות במידת הצורך. בין החסרונות הם חימום יתר בשמש והסיכוי הגבוה לשקיעה אחידה של הלוחות.
אם הרחבה סגורה, עץ טבעי מונח על הרצפה. כשהבית מעץ אז מרפסת או טרסה פתוחה עשויה מעץ איכותי. בין היתרונות של עץ טבעי, כדאי להדגיש מראה אטרקטיבי, תכונות ספיגת זעזועים גבוהות ומבחר גדול של מבנים וצבעים. החיסרון הוא הצורך בטיפולים קבועים בתרכובות נגד פטריות וקרדית.
כיצד לקבוע את גודל המבנה העתידי
מראה המקום צריך להתאים ככל האפשר למראה הכללי של הבית. הוא האמין כי הרחבה צריכה להיות עשויה מאותו חומר כמו הבניין הראשי. אך כלל זה אינו חובה. אתה יכול לראות דוגמאות רבות כאשר הנחות קיץ עשויות פיברגלס ועץ בהרמוניה טובה עם חזית בית אבן.
מידותיה של המרפסת המקורה תלויות במטרתה ורוחבה בממוצע 3 מ 'ואורך עד 6 מ'. בגדול, הפרמטרים של המרפסת המקורה יהיו תלויים במידות הבניין הראשי, והסידור הפנימי מושפע לא רק מהגודל, אלא גם מהמטרה הפונקציונלית של המבנה.
עצה מועילה! המעצבים מתמקדים בעובדה שהמידות המינימליות הנוחות של המרפסת הן 1.7x4 מ '. כמובן, מידות כאלה אינן אקסיומה, מכיוון שאם ניתן לחדר, ניתן לארגן חדר נוח בחדר קטן יותר, אך הם עדיין ממליצים להקפיד על פרמטרים אלה. ...
אם אין מגבלה בתחום הרחבה, הערך נקבע בעיקר על פי מה שמתוכנן לעשות כאן. כאשר המטרה העיקרית של הטרסה היא מקום למנוחה והתכנסות של בני משפחה וחברים, במקרה זה חשוב לא לחסוך מקום ולבנות מרפסת לבית הכפרי עם מידות מספיקות למטרה זו. זה הכרחי מכיוון ששולחן, ספה ופינות ישיבה בגודל הנכון חייבים להתאים כאן.
ראוי יהיה להקצות מקום לארגון ברביקיו ואולי אפילו מיני בר. מרפסת כזו צריכה להיות בשטח של 20 מ"ר ומעלה, עדיף שאורך אחד הקירות הוא כ -5 מ '.
אילו אינדיקטורים אחרים משפיעים על גודל הרחבה, כיצד לנצח מרפסת חופשית
אם הבית משמש כל הזמן כמה אנשים, אתה לא צריך להקצות הרבה מקום לבנייה. במקרה זה, העיקר שכיסאות נוחים עם שולחן מתאימים לכאן, ומאפשרים לכם לבלות ערבים נעימים בחברה קטנה. לשם כך, 8-10 מ"ר יספיקו.
האזור מושפע גם מסוג הבניין שנבחר. לדוגמא, אם מתוכננת מרפסת מלבנית, האורך בדרך כלל הוא בין 4-6 מ ', והרוחב הוא 2.5-4 מ'. במרפסת מקורה בצורת ריבוע, כל הקירות צריכים להיות באותו המידה בערך. מרבית הבעלים מעדיפים להקים מבנה בעל צורה דומה לצד הבניין. אם לבניין הראשי יש צורה יוצאת דופן, אז עדיף לעשות את המרפסת בצורה של משולש או חצי עיגול - הכל תלוי בדמיון של הבעלים. הצורה העתידית של הבניין משפיעה גם על העיצוב החיצוני של הגג:
- מרפסת צרה משלימה בדרך כלל גג גמלונים;
- מרובע או מלבני - גמלון;
- עדיף לקשט את בניית הטופס המקורי בריצוף יוצא דופן, המתאים לסגנון הנבחר.
בחלק מהמקרים, בעלי בתים פרטיים עומדים בפני העובדה שהממדים או הצורה הלא סטנדרטיים של הבניין אינם מאפשרים הצמדת מרפסת מקורה אליו. במקרה זה, הם נוקטים באפשרות לארגן מרפסת מקורה חופשית. על מנת שלא יהיה צורך לצאת לרחוב, מאורגן מעבר משותף בין החדרים, לרוב בצורת מסדרון זכוכית או פוליקרבונט המחבר את הרחבה לבית הראשי. במצב זה, תוכלו לבצע הרחבה של כל הפרמטרים. העיקר ששני הבניינים משולבים בצורה הרמונית זה עם זה.
מאפייני עיצוב הפנים של המרפסת והמרפסת
יש להתייחס בזהירות לעיצוב החיצוני של המרפסת, מכיוון שזה יהיה תלוי בכמה המבנה ישתלב בחוץ. יחד עם זאת, אסור לשכוח להקדיש תשומת לב ראויה לעיצוב הפנים. בחירת החומרים לקישוט פנים תהיה תלויה הן בגודל ובפונקציונליות והן במיקום הבניין.
לדוגמא, אם המרפסת קטנה, עליכם להפוך אותה לקלה ככל האפשר ולמקם אותה בצד הדרומי. כאשר לא ניתן לבחור את הצד הנכון של העולם, יש צורך לפתור את הבעיה בעזרת זיגוג משמעותי או שימוש באור מלאכותי.
במרפסת מרווחת ומוארת, די מותר להתנסות בחומרים שנבחרו, לא להתעסק בבחירת הצבעים ולעשות הכל כרצונכם. במיוחד כשמדובר בתוספת של מרפסת מקורה לבית. אתה גם לא צריך לחסוך ברהיטים שנבחרו, אתה יכול למקם את כל מה שנדרש. העיקר לא להיסחף עם סידור החפצים, כי אפילו חדר מרווח יכול בקלות להיות עמוס ברהיטים.
מַמָשִׁי! גורם חשוב בבחירת אפשרות לעיצוב פנים הוא מערכת החימום המותקנת, מכיוון שבחלל לא מחומם על החומר לעמוד בדרישות גבוהות ולסבול היטב כל חריגה. אם אינך מעוניין לבצע תיקונים כל שנה לאחר החורף, לא כדאי לך לחסוך בחומרים איכותיים.
באשר לקישוט קירות הטרסה לבית העשוי מעץ, עדיף לעטוף אותם מבפנים עם לוח עץ, בעל מרקם אטרקטיבי. יתר על כן, עבודה עם בטנת עץ היא די פשוטה אפילו עבור אדון טירון. אם תרצו להתנסות, תוכלו לצבוע את הבטנה בכל צבע ולהעניק לחלל הפנים מראה יוצא דופן. הצבע ישחק גם תפקיד מגן על עץ טבעי.
התקרה עשויה בדרך כלל עם סיבית זולה, אם כי קיר גבס עמיד בפני לחות עדיף למטרה זו. שתי האפשרויות מתאימות לקישוט באריחי עץ או פלסטיק. אם תרצה, תוכל להכין תקרת מתיחה, תלויה או עץ, במיוחד אם התקציב מאפשר זאת.
כאשר נדרש כדי להקל על ההשפעה על הבסיס, הקירות צריכים להיות עשויים לא מלבנים, אלא מבלוקים מוקצפים, המחודשים בקלות בכל חומר גימור. לפעמים, אם הבלוקים אטרקטיביים, הם נותרים ללא מגע, במיוחד כאשר התפרים המושלמים הושלמו במהלך עבודות הבנייה.
כיצד לבחור עיצוב של מרפסת מקורה המחוברת לבית: תמונות של אפשרויות אטרקטיביות
כדי להפוך את הרחבה לא רק לנוחה, אלא גם לאטרקטיבית, על המרחב הפנימי להיות מאורגן כראוי. עדיף כאשר הסגנון הכללי של הבניין הראשי משולב עם עיצוב הרחבה. בין העיצובים הפופולאריים יותר, נעשה שימוש באפשרויות הסגנון המתוארות להלן.
מוֹדֶרנִי. מדובר בעיקר בסגנונות היי-טק, מינימליזם או לופט. במקרה זה, נבחרים את הרהיטים והציוד הפונקציונליים ביותר כך שאפשר להשאיר כמה שיותר מקום פנוי. למרות זאת המרפסות נראות נעימות, פשוטות ומזמינות. הריהוט מאופיין בלקוניות וקווים פשוטים. העיצוב בדרך כלל מינימלי או לא קיים. חשוב לקחת בחשבון תאורה טובה, תשומת לב לפרטים וחלל יעוד. חומרים - פלסטיק, לעתים רחוקות יותר - עץ או אבן.
מָסוֹרתִי. מתאים למי שאוהב לדבוק במנהגים בעת קישוט החלל שלהם. בפנים כזה לא מתאים להשתמש בצבעים בהירים - לבסיס עדיף להעדיף צבעי פסטל. כיום ניתן להשיג מספר גדול של קישוטים, למשל מעקות מגולפים או תומכים. ניתן להניח עור או שטיחים גבוהים על רצפות וקירות. החומרים העיקריים הם עץ ואבן, לעתים קרובות משתמשים במתכת. ריהוט נצרים או עץ מלא ידגיש את הסגנון.
בָּארוֹק. סגנון זה מיועד לאלה המעדיפים pomp, רהיטים יוצאי דופן ומספר גדול של אביזרים. יתקבלו בברכה כמות גדולה של צבע זהב, מגוון שוליים, נברשות מסיביות ופמוטים. על הרהיטים להיות עשויים עץ עם ריפוד רך. על הרצפה ניתן להניח אריחי קרמיקה עם מגוון לוחות או פרקטים. בארוק הוא סגנון יקר שאינו מקבל פרטים זולים.
יָם תִיכוֹנִי. מתאים בצורה מושלמת על מרפסת הממוקמת ליד הים או גוף מים אחר. הצבעים העיקריים הם כחול, טורקיז, ירוק, חול. עדיף לבחור נצרים לריהוט או עם ריפוד טקסטיל, עם הדפס המתאים לנוף הים.
בקתה. פיתרון אידיאלי למרפסת עץ המחוברת לבית. עדיף להקים מבנה באמצעות מוט ולקשט אותו במעקה מברזל יצוק. מומלץ לארגן ריהוט מעץ מלא, ולהשתמש בלוח סיפון או בולי עץ כריצוף. לא צריכים להיות חלקי פלסטיק או קווים ישרים ברורים. במקרה זה, פלטה או תנור ייראו רלוונטיים מאוד.
טרסות ומרפסות: תמונות של פרויקטים ונקודות חשובות שיש לזכור במהלך הבנייה
על מנת שמרפסת או טרסה המחוברת לבית במו ידיכם תשמש שנים רבות, עליכם להכין ולתכנן את מהלך העבודה בקפידה. חשוב לחשב נכון את כוחך ולא לקחת עבודה אפילו עם חוסר ביטחון עצמי קל. לפני תחילת הבנייה מומלץ לבצע את הפעולות הבאות:
- קבעו את התקציב שהוקצה, תוך התחשבות אפילו בפרטים הקטנים ביותר. לעתים קרובות, אלמנטים דקורטיביים נוספים: גדרות ברזל מחושל, ריהוט מעצבים יוצא דופן ואביזרים - אוכלים את חלק הארי מהכספים.
- חשוב על תוכנית מפורטת המאפשרת לך לפחות לחשב בערך את כמות חומר הבניין המשמשת בכדי לאמוד את הפסולת לבנייה ותיקונים.אז לא תצטרך להתמודד עם מחסור בכספים בתהליך.
- אל תשמור. חשוב להקפיד על סטנדרטים מוכנים הקובעים את גודל המדרגות המינימלי (15 ס"מ - גובה ו- 25 ס"מ - רוחב), הגובה האופטימלי של המעקה הוא 90 ס"מ. נדרש לבחור הידוק מתאים ואמין ולבחון את שלב ההידוק הנכון.
- אספו את הכלים הדרושים לכם. ניתן לשכור מכשירים יקרים רבים: מערבל בטון, מטחנה ומקדחה במידת הצורך, אך צריך לרכוש לעצמכם כל מיני דברים קטנים בצורת מפלס, חוטי הארכה, פטיש, מברגים וכו '.
סוף כל סוף. טרסות ומרפסות לבית, שתמונות הפרויקטים המוצעות לעיל, ממלאות לא רק תפקיד דקורטיבי. מדובר בחצרות מן המניין עם פונקציונליות טובה שיכולה להגדיל את אזור המגורים הניתן לשימוש. בעזרתם ניתן לארגן חדר עבודה, מקום למנוחה, חדר משחקים לילדים. ומהר מאוד מתברר שאם המרפסות והטרסות מצוידות כראוי, אז המשפחה מבלה שם את כל הזמן החם.








































































































