ניתן לבנות גדר בשטח של בית פרטי או בארץ באמצעות חומרים שונים. למטרות אלה, לוחות עץ, לבנים ורשת מתכת מתאימים. כיום התפתחות התעשייה מאפשרת ליצור גדר מחומרים מתקדמים ועמידים יותר מבחינה טכנולוגית. אחד מהם הוא פוליקרבונט. זה הופך פופולרי יותר ויותר מדי שנה. על מנת לבנות גדר פוליקרבונט, עליך להכיר את סוגיה, כמו גם את תכונות ההתקנה.
תוֹכֶן
תכונות של גדר פוליקרבונט וההבדלים בינה לבין מוצרים מחומר אחר
למבנים עשויים ברזל ועץ חסרונות רבים שחסרים לחומרים מודרניים. גדרות מתכת מאכלות ודורשות צביעה ואמצעי הגנה אחרים. בתורם, למבני עץ יש כוח חלש, והם גם נוטים להיסדק ולהרקב.
פוליקרבונט הוא פולימר סינטטי מודרני שעמיד וגמיש במיוחד. מוצרים העשויים מחומר זה משדרים אור ובמקביל מסתירים את כל המתרחש באתר מעיניים סקרניות. גדר פוליקרבונט נראה נוח ומרשים, במיוחד בשילוב עם אלמנטים ממתכת ולבנים.
מידע מועיל! במידת הצורך ניתן לגדר העשויה מחומר זה צורה לא סטנדרטית, מכיוון שיש בה פלסטיות טובה.
פוליקרבונט משמש כמבודד רעש מכיוון שהוא מסוגל לספוג רעידות קול. בנפרד, יש לומר כי מוצרי פרספקס אינם מעבירים קרינה אולטרה סגולה, העלולה לפגוע בצמחים באזור.
אתה יכול לבנות גדר מבד כזה במו ידיך. עם זאת, יש צורך להבין בבירור את הטכנולוגיה של העבודה ולדעת כיצד לתקן פוליקרבונט, ואתה גם צריך להבין איך לעשות את זה נכון. חומר זה קל משקל, דבר שמפשט מאוד את הובלת והתקנת הסדינים.
יתרונות וחסרונות של פוליקרבונט
סידורן של גדרות כאלה נפוץ בשנים האחרונות, וגדרות כאלה משמשות לא רק באזורים פרטיים. בנייני מנהלה, בתי ספר, מפעלים ומתקנים אחרים משתמשים לרוב במבני פוליקרבונט. ההיקף התפעולי הרחב של חומר זה מעיד על יתרונותיו הרבים.
פוליקרבונט עמיד בפני לחות. גדרות עץ מתנפחות ומתמוטטות ממים וגדרות מתכת מחלידות. פוליקרבונט אינו צומח עובש והוא גם עמיד בפני קורוזיה.
יתרון נוסף של גדר כזו הוא עמידות בתנודות הטמפרטורה. זה חל גם על שינויים חדים שעלולים לגרום נזק משמעותי למדי למבנים העשויים מחומרים מוכרים. גדר פוליקרבונט לקוטג 'בקיץ לא תחמם כאשר היא נחשפת לאור שמש.
יריעות PCB עמידים בפני עומסים כבדים. אותו מאפיין טבוע בגדרות ברזל, אך פוליקרבונט, לעומת זאת, בעל גמישות טובה. זה מאפשר לא רק לפשט את ההתקנה, אלא גם להחיות אפשרויות עיצוב ייחודיות. הפלסטיות של מוצרים אלה יכולה להיות שונה, והיא בדרך כלל מצוינת בהוראות המצורפות לסדינים בערכה.
לגדר פוליקרבונט יכולה להיות שקיפות שונה. לדוגמא, אם עליכם ליצור גוון שישפיע לטובה על הצמחים בגינה, אז עדיף לבחור באפשרות שקופה. יריעה כזו היא חומר אידיאלי לבניית גדר, והיא מתאימה גם לסידור דלתות פוליקרבונט.
הערה! יתרון חשוב מאוד של חומר זה הוא שאין צורך בגימור. הטיפול במוצר זה הוא די פשוט: מספיק לנגב אותו מעת לעת במטלית לחה.
מומחים מייעצים להשתמש בגדרות כאלה אם אתה גר ליד כביש מהיר, שדה תעופה או רכבת. לחומר חלת הדבש מבנה חלת דבש, המאפשר לספוג צלילים טכניים.
יתרון נוסף של חומר בנייה זה הוא מגוון הגוונים. במידת הצורך, תוכלו לבחור את הצבע המתאים ביותר לשילוב עם מסגרת מתכת או לבנים. השילוב של PCB עם גדר ברזל יצוק... פרזול עם פוליקרבונט דורש הוצאה כספית גדולה למדי, אך זה לא רק נעים לעין, אלא גם עיצוב עמיד מאוד.

יריעות פוליקרבונט מעבירות עד 90% מאור השמש, ואילו מבנה הקריסטל שובר אותו באופן שהגדר מאפשרת להסתתר מאחוריו מעיניים סקרניות.
מבין החסרונות של יריעות פוליקרבונט, ניתן להבחין בצורך בארגון אלמנטים לקיבוע מתכת. בלעדיהם, לגדר תהיה יציבות חלשה, והפלסטיות רק תחמיר את תהליך העיוות. הבד בעל מאפייני חוזק טובים, אך הוא אינו עמיד בפני לחץ מכני כמו למשל ברזל.
וגם ראוי לציין את העלות היקרה של גדרות פוליקרבונט. המחיר עבור מבנים כאלה תלוי בגורמים רבים, אך לרוב הוא גבוה יותר מאשר עבור גדרות רגילות. זאת בשל העובדה כי PCB משולב לעתים קרובות עם אלומיניום מתכת, לבנים ועץ.
זנים של גדרות פוליקרבונט: צילום
כיום, מוצרים כאלה מחולקים למספר סוגים. כל גדרות הפוליקרבונט מובחנות בהתאם למבנה שלהן. על בסיס זה ניתן להבחין בשני סוגים של חומר:
- תָאִי;
- מוֹנוֹלִיטִי.
תָאִי.המבנה של חומר כזה מוצג בצורה של תאים מחוברים זה לזה. הלוחות החיצוניים מחוברים באמצעות מקשיחים, שיכולים להיות ישרים או אלכסוניים (בצורת X). הפרמטרים הגיאומטריים של יריעות אלה שונים ומשתנים בהתאם לסוג הבד. גדר עשויה מפוליקרבונט תאית יכולה להיות בעוביים שונים - בין 3 ל -40 מ"מ.
מוֹנוֹלִיטִי. שלא כמו PCB סלולרי, חומר זה הוא מוצק והוא זמין בשני סוגים: שקוף ושקוף. עובי מוצרי פוליקרבונט הומוגניים יכול להגיע ל 12 מ"מ, אך לא יותר מכך.
יש גורם נוסף לפיו מומחים מסווגים מוצרי פוליקרבונט - סוג ההתקנה. העובדה היא שכיום יש כמה אפשרויות להתקנת יריעות כאלה:
- חתך;
- על עמודי לבנים;
- זיוף עם PCB.
במקרה הראשון, גיליונות פוליקרבונט מקובעים במסגרת מיוחדת, אותה מכינים מראש. לייצורו משתמשים בצינורות פרופיל או פינות מתכת. הסדין מתקבע באמצעות ברגים הקשה עצמית או אלמנטים קבועים מיוחדים. התוצאה היא קטע שקל להעביר ולהתקין בשל משקלו הנמוך. אפשרות זו היא אחת הפופולריות ביותר בעת התקנת גדר פוליקרבונט. ניתן להתקין את עצמך את החלקים המרותכים בקלות.
התקנה של יריעות PCB בשילוב עם עמודי לבנים היא גם אפשרות נפוצה. החיסרון העיקרי של שיטה זו הוא מורכבות הארגון (כולל הקרן).
מידע מועיל! בחלק מהמקרים, בד זה משמש בשילוב עם רשת תלת מימד. גדר פוליקרבונט מסוג זה עמידה במיוחד. לחומר הפלסטי עצמו פונקציה דקורטיבית.

פוליקרבונט סלולרי מורכב משניים, שלושה או יותר גיליונות של פולימר שקוף, שהחלל ביניהם מחולק על ידי צלעות מקשיחות
לעיצוב זה יש לא מעט היבטים חיוביים.
גדר לבנים פוליקרבונט עמידה בפני תנודות טמפרטורה, חיי שירות ארוכים ומראה ייצוגי. בנפרד, יש לומר על האוניברסליות של מבנים אלה. ישנן אפשרויות רבות לקישוט בחוץ. בשילוב עם לבנים, אתה יכול להשתמש גם בגדר פוליקרבונט מונוליטית וגם בגדר סלולרית.
הדרך המעניינת ביותר להשתמש בפחמתי היא להתקין גדר מזויפת שכזו. בהתאם לתנאים האישיים, תוכלו לבחור יריעות פוליקרבונט שקופות או שקופות. מומחים ממליצים להשתמש באפשרות השנייה בשילוב מוטות מתכת מזויפים. קיימת אפשרות להתקנת ה- PCB מאחורי הקטעים (מבפנים).
וגם אפשרי שילוב נוסף, שהוא פחות נפוץ, אך גם פופולרי. זו גדר יריעות פוליקרבונט. גדר כזו קשה יותר לעשות במו ידיך.

פוליקרבונט משלים באופן מושלם מבנים מזויפיםיצירת פתרונות עיצוב מרהיבים
התקנת גדר פוליקרבונט: בחירת חומרים
מכיוון שעלות ה- PKB כיום גבוהה למדי, יש לגשת בקפידה לחישוב כמות החומר שתצרך לצורך התקנת הגדר. ראשית כל, עליך למדוד את היקף האתר על מנת להבין כמה מרחק הגדר תעבור.
באשר לחומר עצמו, ראשית עליך לבחור את עוביו. אינדיקטור זה חשוב מאוד, מכיוון שהוא משפיע על עמידות הגידור העתידי. לגדר רצוי לקנות יריעות בעובי גדול. בחירת המבנה תלויה היכן בדיוק מציידים את הגדר.לדוגמא, PCB מונוליטי מתאים להתקנה באזורים שקטים, מכיוון שהוא אינו מסוגל לספק בידוד רעש גבוה.
לפני ההתקנה, עליך להחליט על תכנון גדר הפוליקרבונט. ביקורות על פורומים מיוחדים יעזרו לך לבחור נכון. מומלץ גם ללמוד את הרכב הגיליונות שתחליטו לרכוש. יש יצרנים שמוסיפים זיהומים שונים לחומר כדי להפחית את עלות ייצורו. יריעות כאלה אינן שונות באיכותן ואינן מתאימות להתקנת גדרות.
האפשרות הפשוטה ביותר להתקנת גדר מ- PCB היא חתך. למסגרת החלקים נהוג להשתמש בצינורות מקצועיים בקטע מרובע של 60x60 מ"מ ומלבניים - 20x40 מ"מ. מבנה זה מורכב על ידי ריתוך. האפשרות הקשה ביותר היא גדר מזויפת עם פוליקרבונט.
מאמר קשור:
גדרות פרופיל מתכת: הוראות צילום ווידאו להתקנה עצמית
התקנה עצמית של הגדר: רשימת כלים, התקנת עמודים, ציפוי המסגרת בלוח גלי.
גדר פוליקרבונט: עבודת הכנה
נקודת ההכנה הראשונה להתקנת גדר פוליקרבונט היא רכישת הכלים הדרושים. שקול מה נדרש לאירוע זה:
- מקדחה ידנית (לחורים);

לאחר ביצוע סימון ראשוני, יש צורך לסמן את הנקודות במקומות ההקמה העתידית של עמודי תמיכה בעזרת יתדות עץ
- פטיש;
- בולגרית;
- מברג;
- רָמָה;
- חוט ניילון.
הערה! לפני ההתקנה הישירה, מומלץ לסמן את האתר. זה הכרחי כדי לפשט את העבודה ולמנוע טעויות במהלך בניית גדר פוליקרבונט.
סימון השטח מתבצע כדלקמן: ראשית, עליך להעריך את ההיקף, לבחון את פני הקרקע. זה צריך להיות שטוח. אחרת, מומלץ לפתור את הבעיה. ואז הסימון הישיר נעשה. לשם כך עליך לסמן את הנקודות בהן יותקנו העמודים.
הכנה להתקנת הגדר מה- PKB לוקחת בחשבון את העבודה עם המקדחה. יש לבחור כלי זה בצורה שתוכל להשתמש בו לקידוח חור בקוטר 200-250 מ"מ. חשוב לזכור כי קרקעית הבור צריכה להיות כ -20 ס"מ מתחת לרמת הקפאת האדמה. כלל זה ישמור על יציבות המבנה העתידי.
לפני התקנת גדר פוליקרבונט עליכם לדאוג גם לבטיחות היריעות עצמן. מומחים מייעצים להחזיק אותם בבית. עם זאת, אפשרות זו לא תמיד קיימת. אם לוחות PCB יאוחסנו בחוץ, מומלץ לכסות אותם בבד צפוף שאינו מאפשר לקרני השמש לעבור. יש לציין כי לא ניתן לאחסן יריעות PCB יחד עם מוצרי פוליוויניל כלוריד.
ארגון הבסיס לגדר לפוליקרבונט
רמת הקפאת האדמה באזור היא הגורם העיקרי המשפיע על עומק ארגון החורים לעמודי מתכת. עם זאת, לא כל בעלים יודע על פרמטר זה ויכול לקבוע אותו באופן עצמאי. ככלל, עומק החור למוצב הוא בין 80 ל -120 ס"מ. זה נובע מכך שהאדמה ברוב האזורים אינה קופאת מתחת ל -70 ס"מ.
סוג היסוד תלוי בהרכב האדמה. לדוגמא, לקרקעות קשות הנוטות להיות לא יציבות, מומלץ להשתמש בגיבוי קלטת מלא. אפשרות זו מתאימה גם לגדרות משולבות (פוליקרבונט גלי וכו '). עומקו של תשתית כזו צריך להיות לפחות 100 ס"מ, והרוחב צריך להיות כ 30 ס"מ. המידות הכלליות של השקע צריכות לחרוג מממדי עמודי המתכת.
התקנת תשתית לגדר פוליקרבונט משולבת (או סטנדרטית) כוללת הליך נוסף - חיזוק. אירוע זה הכרחי על מנת להעניק למבנה חוזק ואמינות נוספים. לצורך חיזוק תצטרכו לרכוש חיזוק בקוטר 10-16 מ"מ. אלמנטים בודדים, ככלל, מולחמים יחד או משתמשים בחוט להצטרפות. החיזוק חייב להיות רציף.
גדר פוליקרבונט על מסגרת מתכת: התחלת ההתקנה
התקנת גדרות פוליקרבונט מתחילה בקיבוע העמודים, שישמשו מסגרת לסדינים. המרחק בין תומכי המתכת משתנה, אך האופציה המומלצת והנפוצה ביותר היא 2 מ '. תהליך זה מחייב שימוש במפלס. כל פוסט צריך להיות שטוח לחלוטין, מה שבעתיד ישפיע על המאפיינים הכלליים של המבנה.
לאחר פילוס, התומכים מוזגים עם בטון. אז אתה צריך לחכות שהמלט יתייבש. לאחר שהתמיסה התייבשה, אלמנטים המדריכים מחוברים לעמודים. ציוד ריתוך משמש לחיבור. צינורות מלבניים במידות של 20x40 מ"מ משמשים לרוב כמדריכים.
לא משנה איזה קטע של הגדר מותקן. זו יכולה להיות גדר פוליקרבונט בין שכנים בארץ או גדר המפרידה בין האתר לרחוב. בכל מקרה יש להקפיד על כללים מסוימים. אחד מהם מספר ששני תומכים פינתיים ושני בולי עץ (צינורות מקצועיים 20x40 מ"מ) קובעים את המישור לכל החלקים הבאים. לפיכך, עליך להיות זהיר מאוד בצעדים הראשונים.
מידע מועיל! צמרות הצינורות המשמשים כתומכים צריכים להיות סגורים באמצעות תקעים או לרתך. זה יגן עליהם מפני כניסה והצטברות בתוך המים.
לארגון המסגרת נהוג להשתמש בצינורות מעוצבים. ותוכלו גם להשתמש בפרופיל המשמש לתיקון יריעות קיר גבס. גדר פוליקרבונט על גבי מסגרת מתכת אינה מבנה מורכב, אולם מומלץ להתבונן בפרופורציות במהלך הפעולה.
לפני שמתחילים בהרכבת המסגרת, יש צורך לסמן את התומכים האנכיים. זה אמור להתאים למקומות בהם יקבעו המגשרים האופקיים. הצעד ביניהם הוא בין 60 ל 100 ס"מ. ואז אתה יכול להתחיל לתקן את המגשרים. לשם כך משתמשים בציוד ריתוך. אם אין לך אפשרות לתקן את הקורות על ידי ריתוך, אתה יכול להשתמש בברגים הקשה עצמית.
לאחר הריתוך מנקים את המפרקים ואז מבצעים הגנה נגד קורוזיה. אותם מקומות שיכולים להחליד מכוסים בפריימר וצבועים (אם יש צורך). זה מספיק כדי להגן על המסגרת מפני חלודה.
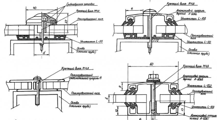
כיצד לתקן פוליקרבונט: הוראות שלב אחר שלב
לפני קיבוע ישיר, יש צורך להכין את החומר. קודם כל, כל הסדינים נחתכים לחלקים, שהפרמטרים שלהם עשויים להיות שונים. הם נקבעים בהתאם לרוחב וגובה חלקי הגדר. פאזל חשמלי מצוין לחיתוך יריעות פוליקרבונט. רצוי לבחור כלי עם שיניים בגודל בינוני ומשמש לעיבוד עץ.
לא מומלץ להסיר את סרט המפעל מהסדינים לפני תיקון הפוליקרבונט. במהלך ההתקנה, הוא יגן על הסדין מפני שריטות קלות ונזקים קלים אחרים. בשלב הבא, יש צורך לצייד את קצוות לוחות ה- PCB בתקעים מיוחדים. לאלמנטים כאלה צורת האות "P".
לאחר מכן, הסדינים מחוברים למסגרת.זהו צעד מרכזי בבניית גדר. קיבוע מתבצע באמצעות ברגים הקשה עצמית. חשוב לזכור שפוליקרבונט יכול להיסדק במהלך ההתקנה על המסגרת. כדי להימנע מכך, מומחים ממליצים לעשות את כל החורים מראש.
קוטר החורים שיש לקדוח בצלחת ה- PCB חייב להיות 2 מ"מ גדול יותר מחוון החלק הקשה על העצמי. ואז הפער נסגר באום איטום מיוחד. המרחק בין הברגים עם הקשה עצמית לא צריך להיות יותר מ 30-40 ס"מ. לפיכך, הידוק עבור פוליקרבונט נעשה.
מומחים ממליצים לזכור כלל חשוב נוסף: אל תבריג את אלמנטים הנעילה עד הסוף. צריך להשאיר מרווח קטן. זאת בשל העובדה שפוליקרבונט יכול להתעוות כאשר הוא נחשף לטמפרטורה. כתוצאה מכך, זה יכול להוביל לכך שהסדין יתפוצץ.
מידע מועיל! רצוי גם להשאיר מרווח קטן (כ -2 מ"מ) בין הלוחות ואלמנטים אחרים של המסגרת.
נדרש לעטות את הגדר בפוליקרבונט לכל אורכו, למעט אותם מקומות בהם יותקנו שערים ומעברים אחרים. בשלב האחרון, יש צורך להסיר את סרט המפעל המגן על הסדינים.
עלות גדר פוליקרבונט: סקירת מחירים
העלות הסופית של ארגון גדר מחומר זה תלויה במספר גורמים. ראשית כל אלה מאפייני החומר עצמו (עובי, גובה, מבנה). המחיר מושפע גם מגורמים בודדים, הכוללים את אורך המבנה.
יריעות בעלות מבנה חלת דבש זולות יותר מחומר מוצק. היקר ביותר הוא יריעת PCB מונוליטית, המצוידת במיגון UV משני הצדדים. לוחות סלולריים מיוצרים בגדלים שונים. לדוגמא, עובי נע בין 4 ל -32 מ"מ. אותו אינדיקטור למוצרים מונוליטיים הוא מעט פחות - מ -2 עד 12 מ"מ.
ראוי לציין כי מחיר גדר פוליקרבונט צבעונית יהיה גבוה מעלות גדר שקופה. בבחירת גובה הגדר, מומלץ לקחת בחשבון כי חריגות חומריות צריכות להיות מינימליות. זה יחסוך כספים.
עלות גיליון אחד של פוליקרבונט שקוף בעובי 4 מ"מ היא כ 1800 רובל. יתר על כן, מידותיו הן 2100x6000 מ"מ. מוצרים באורך של 12 מ ', ככלל, עולים פי שניים יותר. צלחות פוליקרבונט צבעוניות נמכרות במחיר גבוה יותר - 150 רובל בממוצע. יקר יותר מחומר שקוף עם אותם המידות.
יריעות בעובי 6 מ"מ ובגודל 2100x6000 עולות כ- 3100 רובל. עבור 1 יח '. ואורך הלוחות 6 מ ', עם אותם המידות, הם בערך 6400 רובל. לוחות PKB, שרוחבם המרבי הוא 32 מ"מ ואורכו 6 מ ', עולים כ- 14,000 רובל.
בתורו, ניתן לרכוש מוצרים באורך של 12 מ 'ורוחב של 32 מ"מ תמורת 28,000 רובל. מחיר גדר פוליקרבונט למגורי קיץ עם מאפיינים כאלה יהיה מקסימאלי.
אל תשכח כי התקנת הגדר תידרש אלמנטים עזריים אחרים. ציר הפלדה, חומר הבסיס ואלמנטים הקיבועים דורשים גם כסף. המחיר עם התקנת גדר פוליקרבונט נע בין 2000 ל 2800 רובל. ותלוי בגורמים כמו שיטת הרכבת הקטבים, מאפייני החומר.
פוליקרבונט הוא חומר מודרני, שבאיכויותיו לא רק שאינו נחות, אלא גם עולה על גדרות הברזל והעץ הרגילות. הוא אינו מצריך טיפול מיוחד ועמיד בפני גורמים חיצוניים.בבחירת PCB מומלץ לשים לב למידותיו וצבעיו. הרכבה עצמית של גדר פוליקרבונט אינה מצריכה ידע מיוחד בבניין.




















