Hver huseier minst en gang i livet har møtt konsekvensene av en tett kloakk, som kan oppstå som et resultat av at et stort fremmedlegeme kommer inn i det, brudd på driftsforholdene og feil installasjon. Dette fører til at avfallsmassene returneres og helles ut av rørleggerinnretningen. Det er ikke vanskelig å forhindre slike problemer. Til dette brukes en 110 mm avløpsventil eller annen størrelse.
Innhold
- 1 Mulige årsaker til tett kloakk
- 2 Hva er en 110 mm avløpsventil og andre størrelser
- 3 Strukturen og driftsprinsippet til avløpsventilen 110 mm
- 4 Kriterier for valg av avløpsventil
- 5 Hvordan installere en tilbakeslagsventil på et kloakkrør
- 6 Installasjon av kontraventiler 110 mm, laget av forskjellige materialer på kloakken
- 7 Hvorfor bruke en 110mm luftkontrollventil
- 8 Populære produsenter av kloakkventiler
Mulige årsaker til tett kloakk
Tilbakestrømning av avføring kan være forårsaket av flere årsaker. Den første ligger i feil bruk av kloakkanlegget, der plastposer, intime hygieneprodukter og andre ting som blokkerer rørdelen kan utilsiktet falle.
I dette tilfellet vil det være nødvendig å tenke på hvordan du kan bryte gjennom kloakksystemet hjemme. Den mest effektive metoden er å bruke et ståltau for å rengjøre rørene.
Ved langvarig drift vises avleiringer på rørets indre vegger, som gradvis vokser, og reduserer klaring av rørledningen. Det avgjorte slammet danner en grov overflate som faste partikler akkumuleres på, noe som fører til dannelsen av en plugg. Et godt resultat for å fjerne blokkering er bruk av kjemikalier som løser avleiringer inne i avløpet.
En annen mulig årsak til tilstopping av kloakksystemet er feil helling av samleren, som oppstår som et resultat av feil utført installasjonsarbeid. Det skal her forstås at en trafikkork kan danne seg med en sterk eller utilstrekkelig skråning. For å forhindre at faste forurensede partikler akkumuleres på rørets indre vegger, må vann bevege seg langs den med en viss hastighet. Dette problemet kan bare elimineres som et resultat av en fullstendig redesign av systemet.
En vanlig årsak til tilstopping av kloakk er tilstedeværelsen av et stort antall kraner plassert i en vinkel på 90 °. Denne konfigurasjonen av systemet bidrar til en kraftig endring i avløpsvannets bevegelseshastighet. Store suspenderte faste stoffer kan forsinkes umiddelbart, og danne en plugg.
Hva er en 110 mm avløpsventil og andre størrelser
En tilbakeslagsventil er en type stengeventil. Den er installert i lumen i rørledningen for å blokkere tilbakestrømning av væske i tilfelle en blokkering i systemet. Enheten er installert i en kjeller på et horisontalt snitt av en felles kloakksamler ved rørforbindelsespunktet. Den kan også installeres 90 ° i rørledningen.
For å oppnå maksimal sikkerhet kan det også installeres en 50 mm avløpsventil på kranene til rørleggerinnretningene i første og andre etasje i en bygård. Et slikt forbedret tiltak er berettiget av det faktum at fekalt vann under omvendt strømning bare kan stige over første etasje. Videre er den akkumulerte massen i stand til uavhengig å skyve gjennom pluggen som er dannet i røret.
For privat sektor er kontraventilen montert før utslipp i kloakkbrønnen (for hvert hus separat - på innsiden av fundamentet). En slik innretning er også ment for et autonomt system, hvor avløpsvann akkumuleres i en avløpsgrop eller i en septiktank. I dette tilfellet bør du bekymre deg for hvordan du fyller lokket på kloakken med egne hender.
Kontrollventilen er preget av enkel design, pålitelighet, effektivitet, holdbarhet, enkel installasjon og praktisk vedlikehold.
Strukturen og driftsprinsippet til avløpsventilen 110 mm
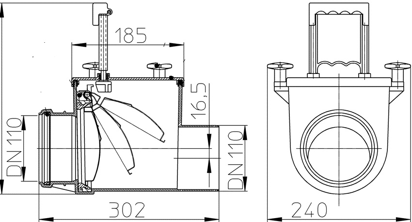
Kontraventilen er kompatibel med alle standard kloakkledninger. Slike sikkerhetsdeler består av en sekskantet kropp, som kan være laget av metall eller plast. Det indre rommet er konvensjonelt delt inn i en mottaksdel med et innløp for tilkobling til rørledningen og en plateformet stopper som fester avstengningselementet og utløpsområdet.
Viktig! Begrenseren er utstyrt med et tetningselement som sikrer maksimal tetthet når ventilen er helt lukket.
Under normal væskestrømning hjelper avstengningsbegrenseren å skape en fullstendig klaring i røret. Hvis det er en omvendt strøm av vann, lukker avstengningselementet det. Gjennom utløpssonen slippes avløpsvannet gjennom kloakkledningen inn i det generelle systemet.
Prinsippet for drift av avløpsventilen 110 mm og andre størrelser er som følger. I øyeblikket for å stoppe den frie bevegelsen av fekale masser, blir trykket utjevnet i ventilens innløps- og utløpssoner. Under påvirkning av tyngdekraften begynner proppen å blokkere gapet i røret. Dette skjer på grunn av frigjøringen av fjæren som er festet til den. I denne posisjonen holder den lukkeelementet godt. Fjæren komprimeres under normal systemdrift.
Kontrollventilene er mekaniske eller automatiske. Prinsippet om drift av enhetene er nesten det samme, bortsett fra at den automatiske enheten gir alarm når det oppstår en nødsituasjon.
Kontraventilen kan være enten vannrett eller loddrett. Det første alternativet har blitt mer utbredt. På kloakken er det montert en vertikal tilbakeslagsventil på 110 mm for automatisk å stenge avløpssystemet og for å beskytte det i tilfelle tett regnvann.Et slikt element brukes som kloakkrevisjon.
Utforming av dreneringsventiler
Basert på designfunksjonene til ventilene, er det kule-, rotasjons- (kronblad), løfte- og flenskontrollventiler i kloakkanlegget. Til tross for den forskjellige utformingen av arbeidsområdene, har alle typer enheter samme driftsprinsipp.
Kuleventilen er utstyrt med en kuleformet stopper. Under normal drift av systemet er elementet plassert i en spesiell utsparing inne i kroppen, noe som skaper et åpent gap. Så snart avløpsvannet begynner å bevege seg i motsatt retning, lukker det rørseksjonen. Denne formen på avstengningselementet sikrer ikke lukkerenes tetthet som følge av en løs kule mot sideveggene. Dette kan føre til drenering.
Kontraktsventilen til wafertypen er liten. Kroppen likner på en hul sylinder, inne er det en sommerfuglventil i form av en liten plate. Den kan på den ene siden festes til husveggen ved hjelp av en fjær, eller den kan ha to klaffer festet til en stang som passerer gjennom midten av enheten.
En slik ventil kan være plassert både i horisontale og vertikale rørseksjoner. Når du installerer den, brukes ikke flere pakninger, siden enheten er utstyrt med tetninger.
Det er to typer 110mm Wafer Type Sewer Wafer Check Valve (og annen størrelse): plate og butterflyventil. I den første versjonen er låseelementet laget i form av en solid disk, festet på toppen av kroppen. Synker under sin egen vekt, overlapper den helt rørseksjonen. Dette er den mest pålitelige typen sikkerhetsventil. Imidlertid brukes den utelukkende i et system uten trykk.
Sommerfuglventilen har en midtstamme med to kronblader. Med omvendt bevegelse av vann presses disse klaffene mot hverandre ved hjelp av fjærer, som blokkerer rørseksjonen.
Funksjoner av svingloben og heiskontrollventilen
Roterende kronbladventiler har en fjærbelastet membran som ligner et rundt kronblad. Med den frie strømmen av fekale masser gjennom kloakkrøret, er platen plassert i den øvre delen av kroppen i en omvendt stilling, noe som ikke hindrer bevegelse av væske. Hvis det oppstår en omvendt strømning, presses membranen inn i kroppshulrommet mot kanten, og lukker på en pålitelig og hermetisk måte lumen i røret. Et avtakbart deksel er plassert i den øvre delen av saken for å kontrollere enheten.
Viktig! Det er tilbakeslagsventiler for et 110 mm rør av kronblad med en manuell lukker, som er en annen plate, hvis drift styres ved hjelp av en knapp plassert på enhetens kropp.
Roterende ventiler kan være harde eller myke. I det første tilfellet overlapper skiven rørseksjonen under sin egen vekt. Dette alternativet anbefales å bruke for tyngdekraftssystemer med lite volum avfall. Hvis den er installert på en pumpe eller et nettverk med høy kapasitet, kan enheten forårsake vannhammer, noe som er et farlig fenomen for rør. Det myke systemet er preget av en jevn bevegelse av kronbladets låsemekanisme. I dette tilfellet er vannhammer ekskludert.
Løftekontrollventilen har et avstengningselement som under normal drift av systemet løftes oppover, noe som skyldes tyngdekraftens kompresjon av fjæren. Når væsken strømmer tilbake utvides fjæren - og låsen lukker rørlumen.Denne typen ventiler er mer utsatt for tilstopping enn andre på grunn av kroppens komplekse konfigurasjon. Det trenger regelmessig vedlikehold for å fungere skikkelig. Dette er den vanligste ventiltypen og installeres oftest i første etasje.

Når avføring strømmer gjennom røret, er platen plassert i den øvre delen av ventillegemet i en omvendt stilling
Kriterier for valg av avløpsventil
Før du kjøper en tilbakeslagsventil, bør du bestemme hvor beslagene skal installeres. Produktets størrelse velges i samsvar med diameteren på kloakkrørledningen.
For fremstilling av stoppventiler brukes samme materiale som for produksjon av samleren. Her bør du også ta hensyn til enhetens kvalitet. Det foretrekkes et holdbart produkt laget av materiale som er motstandsdyktig mot negative konsekvenser.
Enheten kan være laget av plast, støpejern, stål eller bronse. Plastprodukter er for tiden veldig populære på grunn av installasjonen av et dreneringssystem fra plast- eller polypropylenrør. Metallprodukter brukes oftest til utendørs rørledninger.
Nyttige råd! For innendørs installasjoner brukes en grå tilbakeslagsventil i plast, og for utendørsinstallasjoner en oransje.
Kontrollventiler er tilgjengelige i forskjellige diametre. For systemer innenfor leiligheter brukes enheter med et tverrsnitt på 50 mm. Kontrollventil 110 mm er installert på utløpet fra toalettskålen. For eksterne systemer brukes enheter med en diameter på 150 mm eller mer.
Nyttige råd! Hvis ventilen og rørene har forskjellige diametre, kreves det spesielle adaptere når du installerer enheten.
Ventilen skal være enkel i utformingen for å sikre enkel, rask installasjon og praktisk vedlikehold. For dette formål anbefales det å velge modeller med avtakbart deksel, som kan fjernes for å rengjøre låsemekanismen.
Relatert artikkel:
Avløpsventil: beskyttelse av huset mot kloakkoversvømmelse
Prinsippet om drift og formålet med enheten. Varianter av låseanordninger. Regler for valg og installasjon av en tilbakeslagsventil.
En 110 mm avløpsventil kan ha en eller to spjeld. Det andre alternativet er mer pålitelig, siden det er mulig å lukke enheten manuelt. Dette er en garanti for pålitelig og holdbar drift av mekanismen.
Hvordan installere en tilbakeslagsventil på et kloakkrør
Det er to måter å installere en tilbakeslagsventil på kloakken. Den første innebærer installasjon av et avstengningselement på en felles kloakk i en bygård. I det andre tilfellet er enheten installert for hver avløpskilde. Dette alternativet brukes for private husholdninger.
Nyttige råd! Ifølge eksperter er installasjonen av en 110 mm tilbakeslagsventil for en stigerør ikke tilstrekkelig beskyttelse mot mulig flom av kloakk, og det anbefales derfor å installere låseanordninger i første etasje.
Når du installerer låsemekanismen, bør du huske at ventilen ikke er montert på kloakkrøret i avløpsgapet under revisjonsdekselet. Spjeldene kan fungere effektivt i et horisontalt system. Ellers vil det være problemer med avhending av avløpsvann, siden membranen i denne stillingen ikke vil skape deres uhindrede bevegelse.
Når du velger et sted for installasjon av en tilbakeslagsventil, er det nødvendig å ta hensyn til at praktisk tilgang til enheten må gis slik at du i tilfelle en ulykke ikke trenger å demontere overflaten eller flytte møblene.Avløpsventil 110 mm er installert i kjelleren etter svingbarbuen - før rørledningen kommer inn i veggen. I en leilighet plasseres enheten på et kryss eller tee i nærheten av sentralavløpet i stigerøret. Hvis det ikke er teknisk gjennomførbarhet, kan du feste et låseelement med en diameter på 50 mm til utløpet mot badekaret eller kjøkkenet, og installere den andre ventilen med en størrelse på 110 mm på toalettet.
Stengeventilen er montert i en slik posisjon at det er mulig å sikre fri flyt i en retning. En peker på ventilhuset, som indikerer avløpets retning, fungerer som en ledetråd. Ventilen må være minst 100 mm over den høyeste sifonen.
Viktig! Kontrollventilen må ikke kunne absorbere trykk-, strekk- eller torsjonsbelastninger fra de tilkoblede rørene.
Ventilstørrelse og materiale må samsvare med rørledningens egenskaper. Ellers må adaptere brukes, noe som vil svekke påliteligheten til systemet.
Kloakkinstallasjon kontraventiler 110 mm, laget av forskjellige materialer
For øyeblikket, som det fremgår av vurderingene fra eierne, er en 110 mm avløpsventil ofte valgt i en plastversjon. Dette skyldes at dreneringssystemet er satt sammen av dette materialet. Installasjon av produktet gir ingen problemer.
Etter å ha valgt et sted for å installere ventilen, kutt av en del av rørledningen, hvis lengde må matche dimensjonene til avstengningsenheten med en avstand på 5 cm. En ventil med stikkontakt settes på seksjonen av rørledningen. Den samme prosedyren utføres fra siden av eksosmanifolden. Forbindelsen er forseglet ved hjelp av tetningselementene til låseanordningen.
Nyttige råd! For å sikre den mest pålitelige forbindelsen, anbefales det at kantene på rørene forsegles med tetningsmiddel før installasjon i stikkontakten.
Når du bruker en 110 mm avløpsventil av plast for støpejern eller stålrør, må du i tillegg kjøpe to adaptere. Arbeidssekvensen er den samme som når du installerer avstengningselementet på plastrør. Ved hjelp av en kvern kuttes et sted på manifolden for montering av avstengningselementet. Kantene er pusset.
En adapter settes på rørseksjonen, deretter - en tilbakeslagsventil, etter den - igjen en adapter, som er festet med den andre enden til røret ved hjelp av en stikkontakt ved hjelp av slep. For å gjøre systemet pålitelig behandles sømmene med silikon.
Viktig! Støpejernets tilbakeslagsventil er boltet sammen ved å trekke monteringsplatene og gummibåndene sammen.
Hvorfor bruke en 110mm luftkontrollventil
For å eliminere sannsynligheten for at kloakk kommer inn i rommet, er det montert en luftventil på avløpsrøret som skyter luft inn i systemet og ikke lar det komme ut. Denne lukkingen bidrar også til å redusere støynivået i systemet når avfallsstrømmen beveger seg.
Når vann dreneres, oppstår det et vakuum i kloakkanlegget, som et resultat av at luft kommer inn i det. Dette gjøres på grunn av tilstedeværelse av ventilasjon eller et rørleggeranlegg med den minste vanntetningen. Som et resultat av vakuumet åpner membranen seg, og etter at trykket er stabilisert, lukkes det, noe som ekskluderer luftstrømmen tilbake til rommet.
Avløpsventilen er laget av plast av høy kvalitet.Elementet består av en kropp, membran eller stamme, en gummitetning og et deksel. Membranen reagerer på overtrykk i nettverket og aktiveres når den oppstår. Driftstilstanden til stammen reguleres av en tetningspakning. Elementet er koblet til rørledningen gjennom sidehullet.
En 110 mm avløpsventil for avløp, som en kontraventil, er ikke installert høyere enn 2 etasjer. Det må være plassert over det største avløpet som er koblet til enheten. Ventilen er festet i vertikal stilling. Den monteres på rørledningen ved hjelp av en stikkontakt, som er fullstendig forseglet med silikonbehandlede gummi mansjetter.
Viktig! Luftventilen er installert på et sted der temperaturen ikke faller under 0 ° C.
Avstengningselementet kan være automatisk, vakuumfri eller kombinert. Den første produkttypen har lav gjennomstrømning. Det andre ventilalternativet fungerer bra ved lavt trykk. Den kombinerte versjonen kombinerer funksjonene til begge typer inventar.
Populære produsenter av kloakkventiler
Hemkor North-West-selskapet har anbefalt seg selv fra den beste siden. Det er en pålitelig produsent av et bredt spekter av produkter for private og offentlige avløpsanlegg.
Kontrollventilene til det ledende selskapet er produsert ved hjelp av innovativ teknologi, de beste metallkvaliteter, som gir produkter av høy kvalitet med passende pålitelighet og holdbarhet. Prisen på en 110 mm avløpsventil er i gjennomsnitt 700-900 rubler.
Stoppventiler fra den tyske produsenten VIEGA er i stor etterspørsel. Selskapet produserer et bredt utvalg av tilbakeslagsventiler i forskjellige design. Produktene er overveiende produsert av polypropylen av høy kvalitet med høye driftstrykk og temperaturterskler. Derfor kan stengeventiler brukes ikke bare for tyngdekraften, men også for et trykkavløpsnett. Produksjonskostnadene starter fra 1500 rubler.
Stoppventiler av det polske merket Capricorn er ikke mindre populære på hjemmemarkedet. Selskapet tilbyr tilbakeslagsventiler for kronblad og heis. For produksjon av produkter brukes polyetylen av høy kvalitet, som gir enheten pålitelighet og holdbarhet. Du kan kjøpe en tilbakeslagsventil for et 110 mm avløpsrør for 1000 rubler.
Installering av en tilbakeslagsventil på kloakknettet er nøkkelen til normal og jevn drift av systemet. Dette vil eliminere forekomsten av en nødsituasjon i tilfelle en omvendt strøm av fekale masser når samleren er tett.




















