Før du starter renoveringen av lokalene, bør du tenke på mange nyanser. Visualisering av plassen og et gjennomtenkt layoutdesign vil ikke bare hjelpe til med å bestemme den nødvendige mengden materialer, men også til å beregne kostnadene for reparasjoner. Når du lager et kjøkkenprosjekt, må du tenke på riktig tilrettelegging av møbler og utstyr, plassering av nødvendige gjenstander. For å utvikle en plan trenger du ikke kontakte en designer - du kan gjøre det selv.
Innhold
- 1 Hvorfor anbefales det å lage en tegning av kjøkkenet på forhånd
- 2 Det du trenger for å fullføre en kjøkkenskisse
- 3 Funksjoner ved å lage en kjøkkentegning: hva du skal bruke på den og hvilken skala du skal bruke
- 4 Hvordan lage en kjøkkenskisse basert på møbeloppsettet
- 5 Kjøkkenprosjekt: hvordan du skal kaste plass på riktig måte
- 6 De viktigste typene av kjøkkenoppsett: valg av alternativ avhengig av område
- 7 Funksjoner ved å lage et designprosjekt for et kjøkken kombinert med stue og spisestue
- 8 Hvordan fullføre et sommerkjøkkenprosjekt i landet: bilder av vellykkede alternativer
Hvorfor anbefales det å lage en tegning av kjøkkenet på forhånd
Selv med hjelp av et elementært kjøkkenoppsettprosjekt, tegnet på papir eller grafpapir, kan du visuelt få en ide om den fremtidige situasjonen i rommet. Samtidig anbefales det ikke å starte arbeidet umiddelbart etter at prosjektet er utarbeidet; det bør utsettes og etter noen dager gå tilbake til planen igjen. Over tid vil det bli klart om et slikt prosjekt er egnet eller ikke, og sannsynligvis vil du legge til eller fjerne noe til det. Planen vil gjøre det mulig å tenke over den sannsynlige kombinasjonen av kjøkkenet og rommet (eller balkongen), som vil utvide rammene for rommet betydelig.
Nyttige råd! Å lage et kjøkkenprosjekt fra bunnen av er ganske vanskelig, men ofte for å få resultatet må du komme i gang. Vanligvis, etter de første anvendte detaljene, begynner kreativ tanke å fungere, som utvikler seg raskt og hjelper til med å fullføre oppsettet.
Det ferdige kjøkkenprosjektet vil gjøre det mulig å løse et stort antall problemer som oppstår under planleggingen av renoveringen av et rom. Med hjelpen kan du rasjonelt plassere møbler og husholdningsapparater, slik at du kompetent kan bruke det brukbare området i rommet.
Takket være foreløpig planlegging kan du umiddelbart bestemme hvor mye møbler som passer i rommet, slik at det er nok plass til fri bevegelse og komfortabel matlaging. Antallet husholdningsapparater er også tenkt ut på forhånd, som passer godt inn i dimensjonene på kjøkkenet.Dette trinnet vil spare deg for å kjøpe unødvendige eller uegnet husholdningsapparater.
Kjøkkendesignbildet må nødvendigvis inneholde plasseringen av kommunikasjonen. Dette vil gjøre det klart hvordan man fordeler arbeidsområdet, med tanke på utløpet av vann- og gassrør. Dette vil hjelpe deg med å planlegge riktig plassering av husholdningsapparater. Samtidig er det ikke nødvendig å fokusere på uttakene, for i løpet av reparasjonsfasen kan de plasseres hvor som helst du trenger det.
Hvis du ikke bare tegner et kjøkkenprosjekt på et papirark, men lager et fullverdig 3D-design, kan du i tillegg til å beregne de nødvendige størrelsene på et kjøkkensett, hvitevarer og andre møbler på forhånd bestemme fargen på veggene og møblene, og til og med med plasseringen av innredningselementene du liker. Klar 3D-visualisering vil tillate deg å beundre bildet av det ferdige kjøkkenet og bestemme om du trenger å la ideene dine forbli uendrede eller om du trenger å gjøre noen justeringer.
På Internett, inkludert på store møbelnettsteder, er det designprogrammer som du kan lage et gratis kjøkkendesignprosjekt med. Ofte krever dette bare å registrere seg på nettstedet. Den mest populære er PRO100, som har en gratis prøveversjon.
Hvis det ble bestemt å lage et kjøkkenprosjekt alene, får en person følgende fordeler:
- kjøkkensettet passer perfekt inn i parametrene til rommet, siden størrelsen og konfigurasjonen av rommet ble tatt i betraktning;
- hele rommet brukes riktig;
- en individuell kjøkkendesign oppnås, enestående;
- penger spares på kostnadene for møbler (i tilfelle det ble bestemt å montere kjøkkensettet uavhengig).
Det du trenger for å fullføre en kjøkkenskisse
Hvis målet med arbeidet ikke bare er å skape et generelt interiørkonsept, men også å utvikle en detaljert plan for kjøkkenområdet med en indikasjon på møbler og husholdningsapparater (med tanke på deres individuelle parametere), må du lage et kjøkkenprosjekt i flere forskjellige versjoner. Det er nødvendig å vise ovenfra, fra en side, utføre en skanning av veggene, som viser plasseringen og det nødvendige antall uttak, samt belysningsartikler.
Før du lager et kjøkkendesign og oppretter et prosjekt, må du nøye utføre en detaljert måling av kjøkkenområdet. Det skal forstås at denne handlingen utføres etter reparasjonen for etterbehandling, siden hvis overføring og innretting av veggene er nødvendig, vil dette endre konfigurasjonen av rommet betydelig og påvirke andre parametere.
På planleggingsfasen skal veggene og gulvet være plant, kjøkkenet skal ikke inneholde noe overflødig, inkludert byggeavfall. Bare i et tomt rom kan alle vinkler og avstander måles riktig. For å måle et rom, må du ha en blyant, et ark i et bur eller grafpapir, et viskelær, et målebånd eller en bygningsavstandsmåler for hånden. Følg disse trinnene for å få detaljert informasjon om et rom:
- måle bredden og lengden på veggene;
- finn ut takhøyden;
- foreta målinger av vindusåpninger og dører;
- bestemme parametrene for fremspring eller nisjer.
I tillegg må du nøye måle gjenstander som ikke kan flyttes, disse inkluderer gassmålere, en radiator, et ventilasjonsutløp, en gasskjele. I tillegg til dimensjonene, må du vite avstanden fra disse objektene til nøkkellinjene. Vanligvis er dette gulvet eller et av hjørnene i rommet - oftere blir det ytre hjørnet tatt, plassert nær døren. Hvis det opprettes et kjøkkendesign med en vinkelform, måles i tillegg til standardmålinger veggenes vinkelrett i tillegg.
Når du måler veggen, anbefales det å slå av mellomliggende punkter. Ett punkt er vanligvis plassert på nivået med den fremtidige benkeplaten, og standardhøyden er 800-850 mm. I noen tilfeller endres denne parameteren, avhengig av personens høyde. Det andre punktet blir slått av på nivået med menneskelig vekst, der installasjon av veggskap skal planlegges. Det er viktig å plassere disse punktene på forskjellige steder på veggen og koble til et nivå for å unngå krumning. Alle mottatte elementer anbefales å bruke manuelt på papir på forhånd, selv om du planlegger å gjennomføre prosjektet på en datamaskin.
Nyttige råd! Romdesignere bruker ofte millimeter som måleenheter, så det er bedre å utføre alle beregninger i disse enhetene samtidig.
Funksjoner ved å lage en kjøkkentegning: hva du skal bruke på den og hvilken skala du skal bruke
Etter at alle målinger er tatt, bør du begynne å lage en tegning. For å gjøre dette må du overføre de oppnådde indikatorene til papir eller til et spesielt program, og velge den mest vellykkede skalaen. Det bør tas i betraktning at for stor skala er upraktisk å bruke på grunn av den store størrelsen på bildet, og hvis det velges for liten skala, vil bildet være upraktisk å lese. Sivilingeniører anbefaler et forhold på 1:10 eller 1:20 som det beste alternativet.
Hvis skala-koordinatmarkeringen gjøres riktig, vil det være ganske enkelt å lage et kjøkkenprosjekt med dimensjoner. Når du utvikler denne skissen, overføres alle målinger til papir - resultatet er en plan for kjøkkenområdet som viser ovenfra. På tegningen er det viktig å merke seg plasseringen av dør- og vindusåpninger, samt utstikkende gjenstander.
Her tegner og merker de ved hjelp av skilt utløpene til vannrør, et ventilasjonshull og et varmesystem. Det er viktig å skildre fordypningen riktig fra gjenstander til vegger. Etter å ha overført informasjonen til plantegningen, må du i tillegg gå inn på kjøkkenet og sjekke tegnet skisse og rommet igjen, sjekk at ikke en eneste gjenstand går tapt. I tillegg gjør det ikke vondt å i det minste visuelt kontrollere de avbildede avstandene.
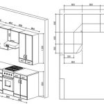
Den andre fasen av å lage en kjøkkenskisse: utfolding av vegg
For å gjøre kjøkkenprosjektet i et hus eller leilighet til det mest informative, anbefales det på den andre skissen å vise de utfoldede veggene for å visualisere kjøkkenet fra siden. En sideskanning av veggene er nødvendig for å skildre veggflatene på en skala, hvor det da vil være praktisk å tegne en tegning av et kjøkkensett og bruke plasseringen til spisegruppen. Utfolding regnes som det mest praktiske verktøyet, og det er enkelt å indikere plassering og plassering av hyller, kjøkkenskap og skap, samt plasseringen av husholdnings- og lysarmaturer.
Interiørdesignere bruker spesielle programmer som Archicad og Revit for å lage en planløsning. Hvis du nærmer deg etableringen av et design profesjonelt, må du selvfølgelig studere alle nyansene i programmene. For å lage et elementært kjøkkenprosjekt er det imidlertid nok å se en video som inneholder enkle instruksjoner for å jobbe med programmene.
Viktig! Når du lager din egen tegning, anbefales det å forhåndsvise bilder av kjøkkenprosjekter med dimensjoner som best oppfyller de nødvendige egenskapene.
I tillegg til å bruke programmer, kan du gjøre planleggingen manuelt ved hjelp av blyant og grafpapir. For å gjøre dette må du tegne et rektangel på arket, høyden (i skaleringsforhold) skal være lik veggens høyde, og lengden er lik størrelsen på veggen som har størst verdi i interiøret.Etter å ha valgt ønsket avstand fra gulv og hjørne, må du tegne vindu- og døråpninger, tegne et batteri og andre gjenstander som ikke kan flyttes. Utfoldingen må gjøres for hver vegg separat. Det viktigste er å tegne en generell plan for kjøkkenet, der hver vegg er merket med en bestemt bokstav.
Relatert artikkel:
Kjøkkeninteriør: hvordan lage et kjøkken ikke bare behagelig, men også attraktivt
Ulike stiler av interiør, funksjoner i planlegging og utvalg av møbler. Bilder av kjøkken.
Hvordan lage en kjøkkenskisse basert på møbeloppsettet
Før du lager kjøkkenet selv, må du tenke gjennom det generelle konseptet til rommet. For å gjøre dette må du bestemme hvilket utstyr som skal være obligatorisk på kjøkkenet, hvordan hovedelementene i arbeidstrekanten ligger: kjøleskap, kokeplate og vask. På forhånd må du bestemme området for installering av spisegruppen, som ikke skal krysse med arbeidsplassen, samt formen på kjøkkenenheten og plasseringen av skap.
Viktig! Veggskap må henges på en sterkere bærende vegg. Installasjonsalternativet er valgt avhengig av hvilken type materiale bygningen er bygget fra.
Etter å ha tegnet flere skisser som viser kjøkkenet fra forskjellige vinkler, må du fylle ut rommet med virtuelle møbler. Før du fortsetter med tegningen av møbler på diagrammet, anbefales det å lage kopier av tegningene, slik at du i tilfelle en feil ikke trenger å tegne rommet på nytt.
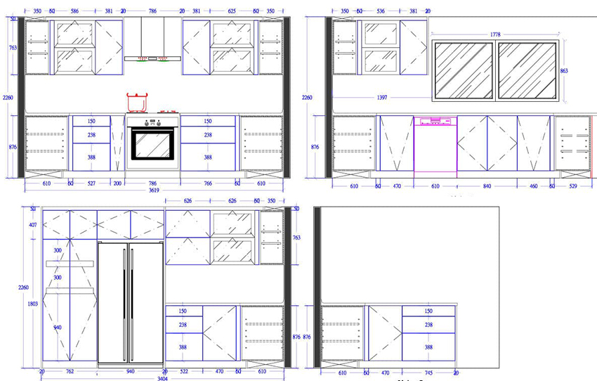
Designere anbefaler å begynne å tenke over en skisse fra det øyeblikket hvor store møbler og store husholdningsapparater ordnes. For å lage et tredimensjonalt bilde uten bruk av datamaskin, er oppsett laget av papp eller annet slitesterkt materiale i en viss skala. Du kan lage skalamodeller ved å bruke standardstørrelser på kjøkkenmøbler:
- den innvendige dybden til veggskap er vanligvis ikke planlagt mer enn 350 mm, oftere er den 300 mm;
- innvendig dybde på skap som står på gulvet - 460-500 mm;
- benkeplate dybde - 600 mm;
- skap under vasken - minst 550 mm, avhengig av funksjonene til kjøkkenkonfigurasjonen.
Det er ikke vanskelig å skildre husholdningsapparater, men du bør bestemme modellene på forhånd og se parametrene deres på sidene til nettbutikker. Hvis du ikke trenger å spare plass, er det bedre å velge utstyr av standardstørrelser, og ikke forkortede eller smale modeller. Det er nødvendig å plassere utformingene med tanke på utgangene til den nødvendige kommunikasjonen, fordi jo lenger vasken er plassert fra avløpet, og gasskomfyren fra gassrøret, jo mer tid vil det ta å vokse eller overføre kommunikasjon.
Etter å ha tegnet alle elementene på tegningen, vil det bli klart hvilke kjøkkenbord dimensjoner er egnet for installasjon, og bekvemmeligheten av konfigurasjonen av arbeidstrekanten blir vurdert og det frie området beregnes, som dannes etter installasjonen av alt nødvendig. Hvis det med tanke på planen blir klart at for lite plass er igjen for uhindret bevegelse, er det allerede på dette stadiet nødvendig å bestemme hvilke gjenstander som kan kastes.
Etter at det er klart hvor og hvilke gjenstander du skal plassere, er det nødvendig å feste forberedte papiroppsett til tegningen og sirkle dem med en tynn blyant. Målinger av nøkkelavstander konverteres til skala og brukes også på papir. Resultatet av alt dette arbeidet er en ferdig kjøkkenordning som ble utviklet uavhengig. Nedenfor kan du se de ferdige kjøkkenprosjektene 5 × 5 m med møbler og apparater plassert.
Kjøkkenprosjekt: hvordan du skal kaste plass på riktig måte
For ikke å gå glipp av noe når du oppretter et forprosjekt, er det nødvendig å dele kjøkkenområdet i hoveddeler på forhånd. Dette inkluderer et arbeidsområde, lagringsplass for mat og kjøkkenutstyr, og et hjørne for å sette opp en spisegruppe.Hovedkravet når du lager en plan, er at du ikke skal plassere store møbler eller apparater nær vinduet, for ikke å hindre fri inntrengning av naturlig lys.
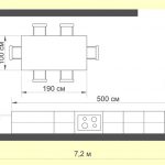
Uansett hvilket valg av kjøkkenoppsett som er valgt, er hovedoppgaven å organisere en praktisk og funksjonell arbeidstrekant, på toppen av hvilken et kjøleskap, vask, komfyr eller kokeplate er plassert. Sørg for å legge igjen en liten arbeidsflate mellom hovedartiklene, slik at det er plass til å legge ut mat. Det anbefales ikke at den lengste siden av trekanten overstiger 2,5 meter, ellers vil den tildelte tiden til matlaging være bortkastet.
Nyttige råd! Hvis det er mindre enn 90-120 mm igjen for fri bevegelighet på kjøkkenet, bør prosjektet revideres og endres, fordi det på et slikt kjøkken ikke bare vil være ubeleilig å flytte, men det vil også være vanskelig å åpne skapdørene og kjøleskapet, samt trekke ut skuffene.
Det er også viktig å forstå riktig plassering av grunnleggende husholdningsapparater. For eksempel, hvis vi snakker om et veldig lite kjøkkenprosjekt 2 × 2 m, er det umulig å lage en arbeidstrekant i samsvar med reglene. Ved begrenset plass er det absolutt umulig å plassere kokeplaten nær vasken. Det er bedre at vasken står ved siden av kjøleskapet og er atskilt med minst en minimal benkeplate fra kokeplassen.
De viktigste typene av kjøkkenoppsett: valg av alternativ avhengig av område
Før du fortsetter med planleggingen av kjøkkenmøblene, er det nødvendig å studere konfigurasjonsfunksjonene og dimensjonene til rommet, med tanke på alle nisjer og uregelmessigheter. Grunnlaget for ethvert oppsett er etableringen av et komfortabelt arbeidsområde der alt du trenger er tilgjengelig. Hvis du ordner ordentlig matlagingsområdet, vil denne prosessen ta mye kortere tid. Avhengig av plasseringen til kjøkkengruppen, er det flere alternativer for utformingen av kjøkkenet, beskrevet nedenfor.
Lineær utforming. Det regnes som et passende alternativ når du utvikler et kjøkkendesign på 10 m² eller mindre. I dette tilfellet plasseres alle nødvendige kjøkkenmøbler langs den ene veggen, mens den motsatte veggen brukes til å installere kjøkkenbordet slik at det er nok plass til fri gjennomgang. Ulempen med dette alternativet er umuligheten av å organisere en praktisk arbeidstrekant. Nedenfor er en serie bilder av kjøkkenprosjekter på 9 kvm. m.
Parallell. Egnet for å organisere smale kjøkken, hvor møbler er beleilig plassert langs motsatte vegger i to rader. Her plasseres vasken og komfyren på den ene veggen, og kjøleskapet på den andre. Resultatet av denne organisasjonen av rommet er en vanlig arbeidstrekant. Slike prosjekter er spesielt egnet for kjøkken i Khrushchev, som et lite totalareal av leiligheten er karakteristisk for.
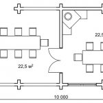
U-formet layout. Den ideelle løsningen for å organisere mellomstore rom - fra 8 til 15 m². Studerer bilder av kjøkkenprosjekter 12 kvm. m, kan du se at møblene er installert rundt tre vegger, mens den fjerde forblir gratis. Dette gir en trekant med en langstrakt side.
L-formet. Det er relevant å bruke i romslige kjøkken med et areal på 12-15 m², som avviker i rektangulær eller firkantet form. I dette tilfellet er to funksjonelle soner i arbeidstrekanten plassert nær en vegg, og den tredje er plassert på en vinkelrett vegg. De fleste bilder av hjørne kjøkkenprosjekter viser at en spisegruppe er plassert i et ubrukt hjørne, ofte med en hjørnesofa.
Øy. Egnet for å organisere kjøkkendesign med en størrelse på 15 m².To arbeidssoner er plassert på hovedveggen, og den tredje blir tatt ut til øya - oftere er det enten en vask eller en kokeplate. Øya brukes ofte som et lite spisebord for rask matbit.
Viktig! Type layout påvirkes ikke bare av størrelsen på rommet, men også av konfigurasjonsfunksjonene. Derfor må du bestemme hvor funksjonell det vil være i et bestemt kjøkken før du bestemmer deg for oppsettet.
Funksjoner ved å lage et designprosjekt for et kjøkken kombinert med stue og spisestue
Ved å lage et kjøkken-stue design i det indre av en leilighet, kan du bruke mer plass til å imøtekomme de nødvendige møblene og utstyret. Som et resultat av å kombinere rommene, dannes et stort rom som vil være nok til å ta imot et stort antall gjester. For å lage et kjøkken-spisestue-prosjekt, bør du ikke bare forberede deg på betydelige økonomiske og arbeidskraftskostnader, men du må også besøke noen tilfeller, dokumentere ombyggingen og beskytte deg mot problemer som kan oppstå i fremtiden.
Før du kombinerer et kjøkken og en stue i ett rom, må du ta hensyn til det faktum at du må forlate den sentraliserte gassforsyningen til fordel for elektrisitet, fordi det i følge normene ikke skal være noen gassinstallasjoner i stuen. Det er også forbudt å ta ut rør som har ansvar for vannforsyning og drenering inn i stuen.
For å unngå disse problemene, anbefaler mange designere å gå på trikset og ikke rive hele veggen som deler rom. Det beste alternativet er å rive en del av veggen, der skyvedørene deretter installeres. Et slikt trinn vil unngå noen dokumentariske problemer, og vil også gjøre det mulig å gjøre kjøkkenet til et helt isolert rom. På Internett kan du se et godt utvalg av bilder av kjøkken og stuer sammen.
Hvordan sone rom: bilde av kjøkken-stueinteriør 20 kvm. m
I et kombinert rom er det viktig å utføre kompetent regulering, noe som ikke bare kan gjøres ved hjelp av en skyvedør, men også ved bruk av forskjellige gulv- eller overflatefarger. Et interessant alternativ for å avgrense plass anses å ta kjøkkenet til podiet, som ligger litt over stuenivået. Ulempen med dette alternativet er ulempen med rengjøring, samt sannsynligheten for skade på et slags trinn.
Hvis vi snakker om å organisere et privat hus, kan du i dette tilfellet disponere personlig plass etter eget ønske. Oftere, i et privat hus, er ikke stue, kjøkken og spisestue adskilt av solide vegger, og falske vegger eller hyller brukes til regulering. I henhold til reglene for tilrettelegging av rom, ligger kjøkkenet først, deretter stue og spisestue. Hvis vi snakker om å arrangere et trapesformet rom, så ligger rommene i en vinkel på hver side av kjøkkenet.
Nyttige råd! Hvis du ser på bildene av interiøret i kjøkkenstuen i et privat hus, kan du være oppmerksom på at en vakker peis installert i stuen er en uunnværlig egenskap for lokalene. Det vil bidra til å skape en koselig atmosfære i rommet.
Når du kombinerer rom, må du gjøre deg kjent med noen av ulempene ved dette prosjektalternativet. Hovedproblemet er støy fra husholdningsapparater. Kjøleskap, oppvaskmaskin, blender og kjøttkvern regnes som de høyeste apparater som kan forstyrre kommunikasjonen i stuen. Et annet problem er behovet for konstant å opprettholde orden på kjøkkenet, fordi det faktisk er en del av stuen. Du må også ta i betraktning at hvis du kjøper en ikke for kraftig hette, vil alle luktene fra kjøkkenet umiddelbart komme inn i stuen.
Hvordan fullføre et sommerkjøkkenprosjekt i landet: bilder av vellykkede alternativer
Å arrangere et sommerkjøkken i et landsted eller i et privat hus, vil redde huset fra overflødig damp og høye temperaturer som kommer fra ovnen, noe som er spesielt viktig når det er varmt ute. Det viktigste er at matlaging utendørs om sommeren er mye mer behagelig. I tillegg, når du utvikler et sommerkjøkkenprosjekt, kan du tenke på å installere en grill, grill eller peis, som vil bidra til å diversifisere listen over retter.
Byggeplanen avhenger av formålet med de fremtidige lokalene, så du må på forhånd bestemme hvordan den skal brukes, om du trenger å lage mat på kjøkkenet i den kalde årstiden. Størrelsen bestemmes avhengig av om du bare planlegger å lage mat på kjøkkenet eller om du trenger å installere en spisegruppe her.
Spørsmålet om å plassere kjøkkenet blir også ansett som viktig: vil det være plassert i et eget hus eller vil det være en fortsettelse av hovedrommet. Den avgjørende faktoren er det maksimale budsjettet som er planlagt tildelt for bygging og utstyr på kjøkkenet. Før du utvikler et prosjekt for et sommerkjøkken i landet, må du i tillegg løse en rekke slike problemer:
- hvilken type lokaler skal være: åpne eller lukkede;
- hva slags ovn er planlagt: gass eller elektrisk;
- om det er nødvendig å installere en grill og en peis i tillegg;
- hvordan organisere levering og fjerning av kommunikasjon.
Det vanligste alternativet regnes som et åpent sommerkjøkken, som består av flere vegger og et baldakin. Utad ser et slikt kjøkken mer ut som et lysthus. Hovedfordelene med prosjektet anses å være den korte tiden det tar å bygge konstruksjonen, samt det lille budsjettet som kreves for konstruksjonen. Det er en ulempe: det vil være ubehagelig å lage mat på et åpent kjøkken hvis det er kaldt eller vind ute. Du kan ikke legge igjen ferdigmat her heller, og i den kalde årstiden må alt kjøkkenutstyr flyttes inn i huset. Andre populære alternativer for sommerkjøkkenprosjekter:
- Åpent kjøkken på verandaen. Krever et solid fundament og vegger, taket er ofte en fortsettelse av taket på huset. På veggene brukes glass.
- Åpent kjøkken anneks. Vanligvis koblet til hovedhuset ved hjelp av et vaskerom eller et bad. Utvidelsen regnes som en forlengelse av verandaen og ser ut som en terrasse med alle nødvendige kjøkkenutstyr installert.
- Åpent lysthus. Det regnes som et utmerket alternativ hvis du vil utfylle kjøkkenet med grill. I dette tilfellet må du legge grunnlaget, solide vegger og et solid tak.
- Stengt kjøkken. Oftest er dette et fullverdig lite hus som ligger i nærheten av hovedbygningen. Du må nærme deg opprettelsen av et prosjekt på en kompetent måte, fordi bygging praktisk talt ikke er forskjellig fra byggingen av et solid hus.
Ved første øyekast virker det å lage et uavhengig kjøkkenprosjekt som en umulig oppgave, spesielt hvis det ikke var noen designopplevelse tidligere. Hvis du gjør en liten innsats og gjør deg kjent med noen av reglene, vil du kunne lage et unikt prosjekt der alle ideer og intensjoner vil bli legemliggjort.






















































































