En-etasjes husprosjekter med en garasje tiltrekker utviklere med sin funksjonelle arkitektur og skjønnhet. Derfor foretrekker flere og flere slike løsninger, som gir alt de trenger for livet utenfor byen. Denne artikkelen vil hjelpe deg med å forstå fordelene og ulempene ved visse prosjekter, samt gi illustrerende eksempler på vellykkede oppsett og bilder av bygninger fra forskjellige materialer.
Innhold
- 1 Nyanser og viktige punkter i byggingen av enetasjes hus med garasje
- 2 Fordeler og ulemper ved ferdige prosjekter av en-etasjes hus med garasje
- 3 Prosjekter av enetasjes hus med garasje: bygninger i forskjellige former
- 4 En rask oversikt over de beste en-etasjers husprosjektene
- 5 Gjennomgang av moderne prosjekter av enetasjes hus med garasje opp til 150 m²
- 6 Materialer for bygging av bygninger med garasje: bilder av hus og prosjektfunksjoner
Nyanser og viktige punkter i byggingen av enetasjes hus med garasje
Et komfortabelt liv utenfor byen er umulig uten bil, så byggefirmaer er kreative når de lager prosjekter for bygninger med garasje. Uavhengig av området for det fremtidige huset og dets utforming, krever tilgjengeligheten av lokaler for et kjøretøy overholdelse av visse regler.
Sørg for å ta hensyn til nyanser som:
- sikkerhet;
- påliteligheten og styrken til fundamentet;
- ventilasjonssystem;
- lokalets optimale dimensjoner, spesielt garasjen;
- bygningens arkitektoniske form;
- materiale for konstruksjon.
Merk! Inngangen til huset med en garasje skal være praktisk, og størrelsen på rommet selv skal tilsvare dimensjonene på kjøretøyet.
Intet prosjekt med et vakkert enetasjes hus med garasje er komplett uten port. Denne designen regnes som et av hovedelementene i bygningsarrangementet og påvirker utseendet.I de fleste tilfeller foretrekker eiere av forstadsboliger automatiserte systemer som er svært pålitelige og praktiske.
Minste dørbredde er 2,5 m. Dette tallet kan overskrides litt. Hvis det er planlagt å bygge en garasje for to biler, må rommet være utstyrt med en overdimensjonert port. Samtidig forblir høyden på strukturen standard, den er 2,1 m.
Fordeler og ulemper ved ferdige prosjekter av en-etasjes hus med garasje
Ethvert boligbyggeprosjekt har både fordeler og ulemper. Hvis du ikke tar hensyn til utformingen av et hus med garasje og materialet det er laget av, kan vi fremheve følgende fordeler med enetasjes bygninger:
- Enetasjes bygninger har ikke trapp, så de har trygge levekår for eldre og barn.
- Alt forarbeid og byggearbeid tar mye kortere tid enn konstruksjoner med flere etasjer krever.
- Fundamentkonstruksjonskostnadene reduseres - det kreves ikke noe tungt fundament for å bære vekten av en tung struktur i flere etasjer.
- Et enetasjes hus er mye lettere og lettere å ta vare på.
- For gjennomføring av prosjekter med enetasjes hus med garasje under ett tak kreves det mye mindre plass på stedet enn for bygging av frittliggende strukturer.
- Du trenger ikke å gå utenfor for å sette deg inn i bilen.
- Selv en uoppvarmet tilbygg vil være mye varmere enn en frittliggende garasje.
Byggefirmaer, så vel som eiere av forstadsboliger, bemerker også noen av ulempene forbundet med gjennomføringen av prosjekter av enetasjes bolighus med garasje:
- Målene og formen på bygningen avhenger helt av størrelsen på stedet.
- Noen ganger er et enetasjes hus dyrere for utbyggeren enn en to-etasjes bygning. Dette skyldes det økte takområdet, samt den lange kommunikasjonslengden.
- Det spesielle ved å betjene garasjen gjør det til et brannfarlig rom, så du må ta spesielle beskyttelsestiltak for å forhindre brann hjemme.
Viktig! Prosjektet må nødvendigvis sørge for tvungen ventilasjon av høy kvalitet, og dette gjelder ikke bare garasjen, men også huset som helhet. Ellers vil mikroklimaet i boligene være ugunstig, og luften vil være fuktig.
Prosjekter av enetasjes hus med garasje: bygninger i forskjellige former
Bygningsform er et bredt konsept. Det inkluderer ikke bare veggenes geometri, men også formen til vindu- og døråpninger, typen tak, verandaens parametere og beskyttelsesvisiret over den osv. Alle disse elementene påvirker bygningens utside. Husets form kan ha riktig eller feil geometri.
Følgende typer strukturer anses som riktige (fra et geometrisk synspunkt):
- rektangulær og kubisk;
- U- og L-formede hus;
- H- og T-lignende.
U-, T-, L- og H-formede bygninger passer for en stor familie eller flere generasjoner samtidig. Slike hus har mange fordeler. De lar deg legge til en individuell inngang til prosjektet for hver familie, samt gi alle innbyggere personlig plass. I dette tilfellet er selvfølgelig noen av lokalene ment for felles rekreasjon.
Når du utvikler prosjekter for bygninger med uregelmessig geometri, starter de oftest fra formen på stedet der huset skal bygges. For å oppnå harmoni gjentar utviklere vanligvis silhuetten i arkitektur. Denne oppgaven er ikke lett og krever en individuell tilnærming, siden slike prosjekter er ganske komplekse.
Byggingen av et uregelmessig formet hus benyttes hovedsakelig av rent estetiske, ikke praktiske grunner.Bygninger med slik arkitektur skiller seg ut mot den generelle bakgrunnen, de er unike og ser uvanlige ut. Videre, for å oppnå en uregelmessig form, er det slett ikke nødvendig å bryte veggenes geometri. Det er nok å utstyre taket med et originalt ikke-standard design.
Prosjekter og bilder av en-etasjes hus med firkantede og rektangulære former
Prosjekter med en-etasjes vakre kubeformede hus tiltrekker seg utviklere med høye varmebesparelser. Disse bygningene har en enkel struktur som varmes opp raskt og avkjøles sakte. Den varmebesparende effekten oppnås på grunn av at veggflatens kontaktflate med det ytre miljøet er veldig lite. Firkantede bygninger er kompakte, raske og enkle å bygge. Det er her listen over fordelene ender.
Fordelingen av innvendig plass i et firkantet hus er ledsaget av visse vanskeligheter. Det er veldig problematisk å tegne et komfortabelt oppsett, siden tilstøtende rom nesten alltid er til stede i prosjektene til slike bygninger. Slik plassering av lokaler er ledsaget av visse ulemper for beboerne.
I tillegg er det veldig vanskelig å passe tekniske og økonomiske lokaler inn i prosjektet til en firkantet bygning, for eksempel et pantry, et vaskerom, et fyrrom osv. Derfor, hvis du vil skaffe deg et lite hus med garasje, bør du forlate kubiske strukturer.
Merk! Kubiske bygninger blir vanligvis reist i sommerhytter for sesongbruk. De har ikke vilkår for permanent opphold.
I motsetning til firkantede strukturer er rektangulære hus i stor etterspørsel. I prosjektene til slike bygninger kan du inkludere mange isolerte rom, tildele et område til en innebygd garasje eller vaskerom. Bygninger i form av et rektangel lar deg dele det indre rommet i huset i "støyende" og "stille" deler. Denne fordelen kommer også godt med hvis du vil finne pauserommene så langt fra garasjen som mulig.
Prosjektet med et etasjes hus med loft vil være et utmerket alternativ for eiere av forstadsområder som ikke har råd til bygging av en to-etasjes bygning. Rektangulære strukturer er best egnet for dette formålet.
Rektangulære hus er ikke kompakte i størrelse, noe som er en betydelig ulempe. Byggingen av slike bygninger vil kreve et stort område. Samtidig stilles det ytterligere krav til nettstedet. Overflaten må være flat, og formen må være proporsjonal og symmetrisk.
Hva er trekk ved prosjektene til en-etasjers hus av L-formet og U-formet
Hjørnebygningene har original og estetisk tiltalende arkitektur. Med ytre kompaktitet er de romslige nok inne. Vinkelformen lar deg organisere en koselig uteplass. Veggene i bygningen vil pålitelig beskytte dette rommet mot vinden. Slike prosjekter er egnet for eiere av forstadsområder med en kantet eller firkantet form, hvor det rett og slett er umulig å bygge et rektangulært hus.
Ytterligere utvidelser passer organisk inn i utformingen av de L-formede strukturene, derfor kan du i nettverket finne mange prosjekter med enetasjes hus med garasje og veranda eller terrasse. Vanligvis plasseres disse elementene i det indre hjørnet, som danner gavlene i bygningen. Ofte får terrasser også en vinkelform som støtter de geometriske egenskapene til hjemmet.
Hvis bygningen har en inngang, ligger den vanligvis i en fløy, kombinert med en terrasse. Prosjekter med to uavhengige innganger er imidlertid i større etterspørsel. De plasseres på forskjellige gavler.
Sammenlignet med standardbygninger har hjørnehus flere innvendige romalternativer. Oppsettet inkluderer ofte et "stille" område med kontor og et soverom i den ene fløyen, mens den andre er reservert for kjøkken og stue. Slike prosjekter kan involvere mange lokaler for forskjellige formål, så hjørnehus er veldig komfortable og egner seg for permanent opphold. Inngangen til garasjen kan være både fra gaten og fra lokalene.
Nyttige råd! Når du utvikler et prosjekt for et L-formet hus, er det viktig å ta hensyn til gavlene. Hvis den korte fløyen i en bygning blir bredere, vil hele strukturen se mer attraktiv og harmonisk ut.
Prosjekter av U-formede hus tillater å realisere potensialet skjult i hjørnebygninger i større grad. Samtidig ser arkitekturen deres mer organisk og balansert ut.
Én bygning vil ta imot alle lokalene som er nødvendige for et komfortabelt og praktisk liv:
- stuer;
- svømmebasseng;
- Tekniske bygninger;
- front soner;
- garasje osv.
U-formede bygninger lar deg kontrollere graden av belysning. Rommene kan plasseres slik at en viss dagslys kommer inn i hvert rom. Ved å planlegge et stort hus riktig kan du unngå behovet for å installere lette brønner som gir tilgang til solstrålene i interiøret.
En rask oversikt over de beste en-etasjers husprosjektene
Området med enetasjes hus kan være annerledes. Byggefirmaer tilbyr standard design av enkle etasjes hus på 8x8, 8x10 og 10x10 m med variabel planløsning.
Nyttige råd! Når du forbereder et prosjekt for et enetasjes hus, er det viktig å ta hensyn til sannsynligheten for utvidelse i fremtiden. Kanskje, i fremtiden, vil eieren ønske å øke arealet av bygningen, så det er tilrådelig å tenke over utformingen med tanke på disse nyansene.
Om ønskelig kan eieren av tomten utvide prosjektet under byggeprosessen eller endre et allerede ferdig hus:
- Å legge til et tak med et loft på strukturen - dette tillegget vil ikke påvirke byggeprisen for mye, men eieren vil ha en ekstra etasje der det vil være mulig å organisere et soverom eller et kontor.
- Lag et skråtak - for dette stiger en av veggene, noe som resulterer i at det dannes ekstra plass (nisje) som kan brukes etter eget skjønn.
- Hvis størrelsen på nettstedet tillater det, kan du øke husets areal ved å legge til flere rom i det.
- Legg til en kjeller eller kjeller - dette rommet er egnet for å ordne badstue, garasje eller stor bod.
- Organiser et flatt tak - hvis stedet er lite, kan et flatt tak være en fullstendig erstatning for et åpent rasteplass.
Relatert artikkel:
Prosjekter av to-etasjes hus med garasje: enhet av komfort og lakonisk arkitektur
Murstein, skumbetong, luftbetong som grunnleggende byggematerialer. Wireframe-teknologi. Bygninger med herskapshus, balkonger, terrasser.
Prosjekt av et etasjes hus: bilder og nyanser av byggingen av en 8x8 m bygning med sokkel
Prosjekter av bygninger med kjelleretasje er i høy etterspørsel blant utviklere. Slike strukturer har mange fordeler:
- lar deg spare bygningsmaterialer;
- underjordiske etasje vil tjene som et ekstra fundament;
- i kjelleren kan du plassere en garasje eller utstyre vaskerom, og frigjøre boareal på toppen;
- kjelleren er egnet for installasjon av oppvarmingsutstyr og nodalkomponenter i vannforsyningssystemet, som vil fjerne alle stygge elementer fra boligkvarteret;
- kjelleren kan brukes som en kjeller med de nødvendige forholdene for lagring av bevaring og høsting.
Ulempene med slike prosjekter inkluderer de høye kostnadene, samt behovet for et ventilasjonsanlegg av høy kvalitet og vanntetting i kjelleren. I tillegg er ikke alle områder egnet for bygging av en bygning med kjeller.
Før du velger et etasjers husprosjekt med kjeller og garasje, må du finne svar på følgende spørsmål:
- Hva er dybden på grunnvannsbordet? Hvis grunnvannet er nær overflaten, er det ikke mulig å bygge en kjeller.
- Hva er hellingen til tomten? Hvis byggeplassen er sterkt skrånende, vil det være dyrt å utjevne et stort område.
- Hvilken type jord vil bygningen stå på? Et hus med kjeller og sump er rett og slett uforenlig.
Fordeler og funksjoner ved prosjekter av en-etasjes hus 8 til 10 m
Planene for enetasjes hus 8 til 10 m er utbredt, siden de fleste som bor utenfor byen har bil, og noen ganger flere. Hus av denne størrelsen gjør det mulig å utstyre en god garasje der du kan gjemme bilen mot virkningen av ugunstige værforhold. Om nødvendig lages en utvidelse og kommunikasjonssystemer settes inn i den uten store vanskeligheter.
Fordelene med utformingen av et enetasjes hus 8 til 10 m, inkludert en garasje:
- Komfort - garasjeporter beskytter bilen mot de negative effektene av ulike miljøfaktorer, og størrelsen gjør det enkelt å bringe store gjenstander inn i huset.
- Kostnadseffektivt - det er ikke nødvendig å bygge et eget fundament og vegger til garasjen, som vil bli skilt fra hovedbygningen med bare en skillevegg. Siden en av veggene vil være vanlig, vil dette gjøre det mulig å spare på byggematerialer.
- Funksjonalitet - Garasjen kan brukes som et oppbevaringsrom som er egnet for oppbevaring av store gjenstander som barnevogner og scootere, sykler, sportsutstyr og hageredskaper.
Nyttige råd! For å holde ting i garasjen så rasjonelt som mulig, anbefales det å installere hyller på veggene, spesielle stativer for verktøy og sykkelholdere. De vil frigjøre intern plass, samt opprettholde orden i rommet.
Prosjekter av enetasjes hus 8 til 10 m har ulemper:
- Hvis garasjen ikke er isolert, vil kulden fra dette rommet trenge inn i huset.
- Hvis ventilasjonssystemet ikke er riktig installert eller ikke fungerer veldig effektivt, vil bilens avgasser forurense luften i stuen.
Fordeler og ulemper med enetasjes hus 10 x 10 m med loft
Arealet til et etasjes hus på 10x10 m er ca 150 m². Bygninger i denne størrelsen lar deg komfortabelt innkvartere en stor familie med barn.
Fordeler med konstruksjoner med loftetasje:
- lagring av byggematerialer (i motsetning til en utvidelse i form av en fullverdig andre etasje, er et stort loft under gaveltak allerede inkludert i estimatet);
- hvis du bruker loftet på loftet riktig, kan du doble bygningens funksjonalitet;
- et stort tak holder på varmen mye lenger, noe som sparer oppvarming;
- å legge kommunikasjon til loftsetasjen krever ikke store anstrengelser og alvorlige kostnader;
- plassen under taket kan brukes til å utstyre et rekreasjonsområde ved å plassere et biljardrom eller bibliotek der;
- loftets indre vil se veldig originalt ut.
Ulemper med prosjekter av store enetasjes hus med loft:
- hvis teknologien for bygging av loftet gulvet er brutt, vil plassen under taket
- kald; siden veggene på loftet er i en vinkel, er det installert spesielle vinduer i dette rommet, hvis pris er 2-3 ganger høyere enn kostnaden for konvensjonelle strukturer (det samme gjelder møbler, ofte blir det laget på bestilling);
- hvis det er mye snø om vinteren, blir rommet under taket mørkt.
Gjennomgang av moderne prosjekter av enetasjes hus med garasje opp til 150 m²
Bygninger med et boareal på 150 m² har plass til en familie på 4-5 personer. Prosjektet med et moderne enetasjes hus med garasje kan inneholde stue, tre soverom, kjøkken. Et utmerket tillegg til en slik struktur vil være et loftsgulv eller en kjeller, som lar deg skjule ledningene til kommunikasjon.
Slike bygninger har mange fordeler:
- for konstruksjon kan forskjellige materialer brukes, for eksempel skumblokker, stein, tømmer osv .;
- kompakt størrelse, som tillater bygging av et hus i et lite område;
- muligheten til å redusere nyttekostnadene, siden boarealet som trenger oppvarming er lite.
Moderne prosjekter av en-etasjes hus fra denne kategorien inkluderer bygninger med dimensjoner 11x11, 10x12 og 12x12 m, samt strukturer med loft og garasje.
Nyttige råd! Hvis garasjen ikke er i kjelleren, vil den skjule plassen i huset. Eierne av små tomter er spesielt klar over mangelen på boareal. For å kompensere for denne ulempen, anbefales det å supplere et enetasjes hus med et loft.
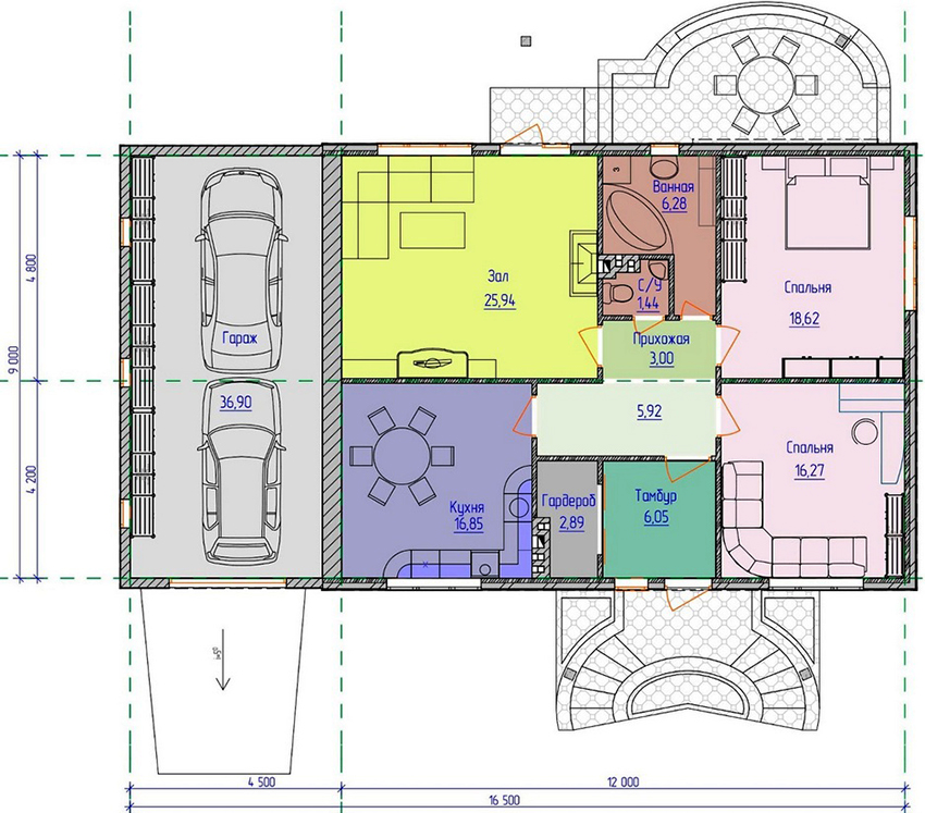
Prosjekter av enetasjes hus med garasje: bilder og fordeler med bygninger med en størrelse på 10x12 og 12x12 m
Størrelsen på boarealet er i gjennomsnitt 140 m² (forutsatt at det er et loft i prosjektet til et enetasjes hus med en garasje på 10x12 m). Bygningens arkitektur og utformingen av lokalene kan varieres. Når du velger et passende alternativ for et hus med slike dimensjoner, er det viktig å ta hensyn til hvor mange mennesker som skal bo under ett tak på permanent basis.
Uansett valgt prosjekt har enetasjes bygninger med dimensjoner 10x12 og 12x12 m en rekke fordelaktige fordeler:
- hvis du vil øke bruksarealet i slike bygninger, kan du lage et loft ved å konstruere et gaveltak;
- fraværet av trapper gjør huset trygt for barn og eldre, siden det ikke er behov for å gå opp trappene til andre etasje (hvis prosjektet innebærer et loft, er det bedre å organisere soverommene til disse beboerne i første etasje);
- Utsiden av bygningens fasade kan diversifiseres ved å legge til arkitektoniske elementer, som karnappvinduer eller panoramavinduer, buer og andre dekorative detaljer.
Prosjekter av bygninger med dimensjoner på 10x12 og 12x12 m lar deg organisere tre soverom i huset eller ta et av dem til spisestuen (hvis du kombinerer det med stuen, vil utformingen vise seg å være mer romslig).
Funksjoner av landsbyhus: prosjekter av bærekraftige bygninger fra en bar
Blant alle de eksisterende alternativene er et spesielt sted okkupert av en-etasjers landsbyhus laget av tømmer. Opptakene av slike bygninger kan være forskjellige - fra 6x6 til 11x11 m. Det avhenger av det valgte prosjektet og størrelsen på tømmeret. Naturlige materialer er i høy etterspørsel blant utviklere. Prosjekter av landsbyhus, implementert i forstadsområder, ser vakre og harmoniske ut, de passer godt inn i det naturlige landskapet. Hvis du følger konstruksjonsteknologien, vil slike bygninger kunne betjene lenge.
Fordelene med prosjekter av en-etasjes hus med bar med garasje:
- for bygging kan både vanlig og profilert tømmer brukes, derfor har prosjekter av landsbyhus mange designalternativer;
- materialet er holdbart og miljøvennlig;
- tre skaper behagelige klimatiske forhold for mennesker;
- byggemateriale er trygt for helsen til beboerne;
- installasjon av kommunikasjon i huset krever ikke mye innsats (tre egner seg godt til prosessering, så det er enkelt å bore hull i veggene og legge ledningene);
- tre har gode varmebesparende egenskaper, det lar ikke kulden være ute, derfor er tømmerhus egnet for regioner med sterke vintre.
Viktig! Tre absorberer fuktighet godt, så veggene må være vanntette. I tillegg kan materialet lide av mugg og forskjellige mikroorganismer. For å unngå dette, bør treet behandles med antiseptiske og beskyttende midler.
Er det mulig å lage et prosjekt for et enetasjes hus med garasje og et badhus under ett tak?
Hvis du fordeler det indre rommet riktig, er det fullt mulig å plassere en badstue eller et bad i rommet. Dette layoutalternativet kan sees på eksemplet på en bygning på 13x16 m. Lokalets totale areal er ca 130 m². I dette tilfellet kan du se hvor variabelt oppsettet er, opprettet på grunnlag av det samme prosjektet.
I det første tilfellet inkluderer prosjektet til et etasjes hus med badstue og garasje følgende lokaler:
- to soverom (13,7 og 13,2 m i størrelse);
- stue (21,6 m);
- kjøkken kombinert med spisestue (13,2 m);
- garasje (23,2 m);
- garderobe og teknisk rom (hvert rom er 5,7 m);
- lite bad (6,8 m).
Siden området på badet er lite, er det bare nok plass til dusj. I denne situasjonen tillater størrelsen på rommet installasjonen av en moderne badstue, som er laget i form av en kompakt hytte. Fordelen med dette prosjektet er at du fra garderoben kan komme deg direkte inn i garasjen, og derfra har du tilgang til gaten gjennom teknisk rom.
I det andre tilfellet ble badets størrelse økt på grunn av garderoben, som ble fjernet fra planløsningen. Dette området er ganske nok til å utstyre et badehus i huset. Videre har begge prosjektene to innganger fra forskjellige sider av bygningen, noe som er veldig praktisk (fra verandaen og den overbygde terrassen).
Materialer for bygging av bygninger med garasje: bilder av hus og prosjektfunksjoner
Ulike materialer kan brukes til å bygge en enetasjes bygning med garasje. Valget avhenger av budsjettmulighetene til eieren, bygningens arkitektoniske trekk, selve prosjektet, samt egenskapene til jorden som huset vil stå på.
For bygging av forstadshus brukes vanligvis følgende materialer:
- murstein;
- tre;
- mobilbetong (gass- og skumblokker).
Merk! Før du kjøper materialer, er det nødvendig å nøye beregne dimensjonene til den fremtidige bygningen. Designdokumentasjonen skal detaljere de foreslåtte typer arbeid, prosedyren for implementering av dem, og også utarbeide en liste over nødvendige materialer. Basert på disse dataene blir beregningen gjort.
Hvilke blokker er det bedre å bygge en garasje fra: prosjekter basert på luftbetong og skumblokker
Gass og skumbetong er varianter av samme materiale - luftbetong. Forskjellen mellom dem ligger bare i produksjonsteknologien, som som et resultat påvirker de tekniske og operasjonelle parametrene til disse enhetene.
Materialer for bygging av luftbetongbygninger har en standard tykkelse:
- 200 mm;
- 375 mm;
- 400 mm;
- 500 mm.
Når du utvikler et prosjekt for et enetasjes hus med en garasje laget av skumblokker eller gassblokker, er det viktig å ta hensyn til klimatets trekk i regionen. Faktum er at betong har hygroskopiske egenskaper, derfor må bygningens vegger beskyttes mot virkningen av ugunstige miljøfaktorer. For dette brukes slike etterbehandlingsmaterialer som:
- sidespor;
- falske diamanter;
- murstein;
- dekorasjonspuss osv.
Minste materialtetthet er 300 kg / m². Denne indikatoren velges under hensyntagen til oppgavene som blokkene skal brukes til. For eksempel for konstruksjon av bærende vegger, kreves produkter med en tetthet på minst 400 kg / m². Skillevegger inne i huset, som ikke utfører bærende funksjoner, kan bygges av mindre tett materiale, hvis kjøp vil koste mindre.
Viktig! For å gjennomføre prosjektet med en etasjes luftig betonghus med garasje, må du bruke materialer med passende tetthet. Ikke spar på sikkerhet.
Hvordan implementere et prosjekt av et etasjes hus med en murstein garasje
I utformingsdokumentasjonen for slike bygninger er det hovedsakelig lagt silikat eller keramiske murstein. Valg av materiale avhenger av klimatiske egenskaper i regionen der huset skal ligge. Med tanke på dette kriteriet kan tykkelsen på murverket på de bærende veggene variere i området 250-640 mm.
Bruken av innovative teknologier rettet mot energisparing lar deg redusere massen av murstein i veggene til et ferdig hus. Hvis prosjektet med et enetasjes murhus med garasje sørger for kontinuerlig mur av 640 mm tykke yttervegger, kan bygningens egenskaper forbedres ved å endre tilnærmingen til konstruksjonen. For dette reduseres murstykkelsen til 250 mm, og ekstrudert polystyrenskum (150 mm) tilsettes som varmeapparat. For veggdekorasjon kan du bruke motstående murstein (120 mm).
Ofte brukes hule keramiske murstein til bygging av hytter. Luftfylte hulrom i produkter forbedrer murens varmebesparende egenskaper. Massiv murstein er mer egnet for å arrangere ventilasjonsstigerør. Denne versjonen av materialet er mer effektiv enn utvidede leirmoduler. Massiv murstein er også egnet hvis prosjektet sørger for en peis i huset.
Funksjoner av prosjekter av en-etasjes rammehus med garasje
Hus bygget med rammeteknologi er mindre pålitelige og holdbare enn murstein eller luftbetongkonstruksjoner. Imidlertid er kostnadene for å gjennomføre slike prosjekter mye lavere, og tidsrammen er mye kortere. I tillegg har rammebygg en relativt lett struktur, slik at de kan installeres på søyler eller peler. Slike baser krever ikke høye kostnader og blir reist veldig raskt.
Designdokumentasjon av rammebygg inkluderer vanligvis tegninger av utvendige og innvendige vegger. Detaljert informasjon om alle nyanser av designet er ganske enkelt nødvendig, siden det brukes direkte i byggeprosessen. Derfor kan kostnadene for prosjektene i seg selv være høyere enn i tilfelle bygging av bygninger av murstein eller luftbetong.
Rammehus er overveiende trekonstruksjoner. Et tømmer brukes som bærende stativer, som er kledd med brett med en seksjon på 40x150 eller 50x200 mm. I vest er rammebygg veldig populære, men i vårt land drives slike bygninger bare sesongmessig.
Det tar mye tid å velge et ferdig prosjekt eller utvikle et nytt. Jo mer nøye utformingen er tenkt ut og alle nyanser blir tatt i betraktning, jo mer praktisk og behagelig vil huset være til slutt.




























