Na szczególną uwagę zasługuje dobór mebli do kuchni. To miejsce w domu jest nie mniej ważne niż sypialnia czy salon, ponieważ tutaj rodzina zwykle gromadzi się jako całość, a gospodynie domowe spędzają długi czas. Wygodne układy wpływają pozytywnie na produktywność, samopoczucie i nastrój, a wielkość szafek kuchennych odgrywa ważną rolę. W tym artykule dowiesz się o ich standardach, cechach pomiarów i sporządzaniu rysunków.
Zadowolony
- 1 Rozmiary szafek kuchennych: niuanse projektowania przestrzeni
- 2 Standardy wielkości szafek kuchennych i urządzenia do zabudowy
- 3 Wymiary szafek kuchennych: cechy szkicowania i rysowania
- 4 Aranżacja szafek i frontów kuchennych: standardowe rozmiary produktów
- 5 Wymiary szafek kuchennych stojących na podłodze: wymiary standardowe i niestandardowe
- 6 Standardowe rozmiary wiszących szafek kuchennych
- 7 Szafka kuchenna narożna: rodzaje, wymiary, rysunki
- 8 Standardowe rozmiary narożnych szafek kuchennych
- 9 Jak wykonać rysunki szafek kuchennych: wymiary, standardy produktów
Rozmiary szafek kuchennych: niuanse projektowania przestrzeni
Na organizację przestrzeni kuchennej wpływa wiele czynników, biorąc pod uwagę to, że można stworzyć kuchnię idealną w określonym otoczeniu i dla konkretnej rodziny. Przestrzegając zasad ergonomii bez problemu uzyskasz przytulne i funkcjonalne wnętrze nawet w najmniejszym pomieszczeniu. Aby odpowiednio zorganizować przestrzeń, konieczne jest podjęcie decyzji o zakupie gotowych zestawów słuchawkowych ze standardowymi modułami, samodzielne skomponowanie zestawu mebli kuchennych z dwóch rzędów szafek, czy też wykonanie zestawu na zamówienie.

Najpierw musisz dokonać pomiarów pomieszczenia, zmierzyć miejsce, w którym planujesz zainstalować przyszły zestaw kuchenny
Standardowe wymiary szaf w produkcji seryjnej są wyznaczane przez fabryki mebli, aby zaoszczędzić czas i pieniądze. Aby stworzyć meble według indywidualnych wymiarów, części są cięte na podstawie określonych rozmiarów, które wykonuje specjalnie przeszkolony mierniczy, biorąc pod uwagę charakterystykę pomieszczenia, układ, stylistyczny wystrój wnętrza, a także upodobania smakowe właścicieli, ich wysokość.
Jeśli w przypadku zakupu standardowego zestawu słuchawkowego urządzenia do zabudowy kupowane są już po zamontowaniu mebli, to w indywidualnych projektach można budować na wymiarach piekarników, lodówek i pralek. W efekcie gabaryty szafek kuchennych powinny zapewniać wygodę użytkowania, a ich wygląd powinien zapewniać piękno wnętrza.
Zastosowanie systemów modułowych to najbardziej ekonomiczne rozwiązanie przy wyposażaniu kuchni. Zestawy słuchawkowe tego typu montowane są z gotowych obudów o standardowych parametrach.

Przy wyborze należy wziąć pod uwagę nie tylko materiał i paletę kolorów, ale także wymiary szafek kuchennych.
Standardowe rozmiary szafek kuchennych i zasada trójkąta roboczego
Dla prawidłowej organizacji przestrzeni kuchennej konieczne jest przestrzeganie warunków ergonomii, bezpieczeństwa i wygody. W spełnieniu tych wymagań pomoże tak zwana zasada trójkąta roboczego, która mówi, że wszystkie elementy mebli i urządzeń w kuchni są rozmieszczone w określonych miejscach. Pod uwagę brane są trzy główne obszary:
- miejsce przygotowywania potraw, w skład którego wchodzi część blatu, płyta grzewcza, kuchenka mikrofalowa, multicooker itp .;
- miejsce do przechowywania żywności, w tym lodówka, zamrażarka, szafka ze zbożami itp .;
- strefa czystości łączy w sobie zlew kuchenny i zmywarkę.
Przydatna rada! Zamawiając kuchnie modułowe, należy wziąć pod uwagę, że konkretni producenci stawiają własny krok w produkcji modułów. Może wynosić od 5 do 20 cm, na przykład jedna fabryka produkuje moduły do kuchni o szerokości 45, 60 i 90 cm, podczas gdy inna wykorzystuje do tworzenia zestawów kuchennych rozmiary szafek 40, 80 i 120 cm, co należy wziąć pod uwagę przy obliczaniu długości całkowitej miejsce do pracy i zakup sprzętu AGD.

To zależy od wielkości zestawu słuchawkowego i przestronności szafek, jak wygodna i przytulna gospodyni będzie korzystała z kuchni
Zgodnie z wymienionymi zasadami ergonomii wszystkie te trzy strefy powinny znajdować się w pewnej odległości, tworząc trójkąt. Idealna odległość między obszarami roboczymi powinna wynosić 120 cm, co znajduje odzwierciedlenie w wymiarach szafek kuchennych, rysunkach i projektach kuchni.
Zabrania się instalowania zlewu obok kuchenki lub lodówki. W takim przypadku sprzęt jest podatny na silne zanieczyszczenie, a do gotowania żywność musi być stale transportowana przez zlew w drodze do pieca. Idealnie byłoby, gdyby między tymi trzema miejscami była przestrzeń lub część blatu kuchennego. W tym miejscu warto przypomnieć sobie zasadę Feng Shui, zgodnie z którą w pobliżu nie można umieszczać źródeł żywiołów wody i ognia.
Normy rozmiary szafek kuchennych i urządzeń do zabudowy
Rysunki szafek kuchennych o wymiarach do produkcji muszą koniecznie uwzględniać wymiary urządzeń gospodarstwa domowego, które zostaną wbudowane w zestaw słuchawkowy. Kwestię tę należy rozstrzygnąć na etapie projektowania kuchni. Lista urządzeń do zabudowy obejmuje:
- kołek;

Standardowe rozmiary szafek kuchennych pomagają z wyprzedzeniem zaprojektować wymiary i lokalizację zestawu meblowego
- piekarnik;
- zmywarka;
- lodówka;
- pralka.
Zamiast duetu w postaci płyty grzejnej i piekarnika często stosuje się standardowy piec. W kuchni można również wbudować kuchenkę mikrofalową. Wszystkie te punkty należy omówić z projektantem, aw przypadku projektowania samodzielnego przedstawić na rysunkach. Standardowe rozmiary szafek kuchennych przewidują możliwość wbudowania poszczególnych elementów wyposażenia, w szczególności piekarników, zmywarek i pralek.
Na szczególną uwagę zasługuje wbudowany okap, który polega na umieszczeniu go w specjalnie wyposażonych szafkach, które z reguły mają niższą wysokość górnej szafki kuchennej. Opcje umieszczenia zależą od rodzaju płyty.
Aby zapewnić swobodne i wygodne otwieranie drzwiczek piekarnika, zaleca się umieszczenie go w odległości 1 cm od mebli. Idealnym miejscem do zainstalowania piekarnika nie jest zwykłe miejsce pod płytą, ale umieszczenie go w szafce - na wysokości oczu.Taka lokalizacja zapewni maksymalny komfort obsługi i bezpieczeństwo, ponieważ dzieci nie będą mogły do niej dotrzeć.
Wymiary szafek kuchennych: cechy tworzenia szkicu i rysunku
Zanim zaczniesz sporządzać szczegółowy plan lokalizacji zestawu słuchawkowego w kuchni, musisz utworzyć zgrubny rysunek wskazujący szacunkowe wymiary mebli kuchennych. Standardy postawione przez deweloperów przewidują możliwość montażu zlewu i zabudowy w sprzęcie AGD. Ponadto powinieneś zdecydować o umieszczeniu takich szczegółów wnętrza:
- gniazda;
- komunikacja wodno-kanalizacyjna;
- rury gazowe;
- kanały wentylacyjne.
Przydatna rada! Nie instaluj lodówki w pobliżu pieca, ponieważ nadmierne nagrzewanie doprowadzi do zwiększonego zużycia energii elektrycznej przez urządzenie chłodzące i szybkiej awarii sprzętu. Musi być pewna odległość (około 15 cm) między lodówką a kuchenką, aby zapobiec rozpryskiwaniu.
Wskazane jest wykonanie kilku szkiców z różnym rozmieszczeniem mebli w kuchni. Należy pamiętać, że istnieją różne rodzaje planowania przestrzeni kuchennej:
- Za najpopularniejszy uważany jest układ w kształcie litery L lub narożny, który pozwala efektywnie, wygodnie i kompaktowo wykorzystać powierzchnię użytkową. Wymiary narożnych szafek kuchennych muszą odpowiadać wymiarom kuchni.
- Bezpośrednie umieszczenie polega na zainstalowaniu zestawu słuchawkowego wzdłuż jednej ściany. Ta opcja jest uważana za najbardziej ekonomiczną, ponieważ zawiera tylko najbardziej niezbędne elementy. Nadaje się do małych, wąskich przestrzeni.
- Kuchnia w kształcie litery U lub okrągła umożliwia montaż mebli wzdłuż trzech sąsiednich ścian. W takim przypadku dwa rogi są jednocześnie wypełnione szafkami.
- Układ wyspy to jeden z typów wymienionych powyżej, z jednym miejscem do pracy pośrodku kuchni.
- Półwyspowy zestaw mebli to zestaw z blatem barowym na jednym końcu kuchni.
Aranżacja szafek i frontów kuchennych: standardowe rozmiary produktów
Wybór wielkości szafek kuchennych podyktowany jest różnymi warunkami, w szczególności ich umiejscowieniem. Biorąc pod uwagę tę funkcję, są one podzielone na następujące typy:
- naścienny lub na zawiasach;
- podłoga lub spód;
- kąt.
Główną cechą wiszących szafek kuchennych jest to, że są przymocowane do ściany, tworząc w ten sposób drugi rząd zestawu słuchawkowego, dlatego nazywane są również modułami wiszącymi, naściennymi lub górnymi. Wymiary wiszących szafek kuchennych są znacznie mniejsze niż stojących. Ponadto powinny być lżejsze niż dolne moduły.
Szafki podłogowe to dolne moduły w postaci cokołów osadzonych na ozdobnych lub technicznych nogach, które można przykryć specjalnym cokołem. Szafy te są zwykle używane do przechowywania ciężkich i nieporęcznych przedmiotów oraz wbudowania urządzeń gospodarstwa domowego. Głębokość dolnych szafek kuchennych wynosi średnio 60 cm, a szafek ściennych 40 cm Przy obliczaniu wymiarów dolnych szafek należy uwzględnić parametry blatu.
Narożne szafki kuchenne przeznaczone są do umieszczenia w narożniku, dzięki czemu mają najbardziej złożoną konstrukcję. Są instalowane w pierwszej kolejności i to od nich są odpychane przy obliczaniu i sporządzaniu rysunków, wymiarów. Narożne typy szafek kuchennych obejmują modele górne, dolne i wysokie. Najczęściej zlew jest instalowany w rogu u dołu zestawu słuchawkowego, a na górze - szafka z ociekaczem do naczyń.
Wymiary szafki bazowej: wymiary standardowe i niestandardowe
Wymiary szafek dolnych zależą od wielu czynników. Na przykład standardowa wysokość zestawu słuchawkowego jest zalecana dla osoby o średnim wzroście - 170 cm.W przypadku wysokich mieszkańców mieszkania lub odwrotnie, w przypadku miniaturowych gospodyń domowych należy przestrzegać innych wymagań. Głównym warunkiem jest wygoda użytkowania kuchni.
Przydatna rada! Aby poprawnie określić długość i wysokość zestawu słuchawkowego, należy zmierzyć szerokość, a także wysokość ściany w różnych miejscach od granicy jastrychu podłogowego do środka ściany i od środka do połączenia z sufitem. Pomoże Ci to określić minimalny rozmiar zestawu słuchawkowego.
Aby bezpiecznie zlokalizować urządzenia gazowe i elektryczne, podczas montażu i wymiarowania dolnych szafek kuchennych należy przestrzegać pewnych norm:
- płyta gazowa musi być umieszczona co najmniej 50 cm od lodówki i 30 cm od okna, zlewu i ściany.
Powiązany artykuł:
Fartuch do kuchni: ciekawe rozwiązania projektowe do oryginalnych wnętrz
Przegląd najczęściej używanych materiałów do dekoracji miejsca pracy, ich zalety i wady. Jak wybrać wysokiej jakości fartuch i zaprojektować go.
- odległość między gniazdkami elektrycznymi a zlewem powinna wynosić 50 cm, co jest zalecane dla najwygodniejszego korzystania z urządzeń elektrycznych;
- obszar cięcia nie powinien znajdować się w pobliżu okien, aby uniknąć dostania się brudu i zasłon do noży urządzeń tnących.
Szczególną uwagę należy zwrócić na instalację płyty. Nie zaleca się umieszczania pod nim szafek z szufladami, ponieważ z ich pomocą dzieci mogą łatwo dostać się do pieca. Z tego samego powodu piekarnik powinien być zainstalowany na poziomie klatki piersiowej. Nie warto też umieszczać pod nim szafek typu fantazyjnego. Następnie ustalmy konkretne wymiary dolnych szafek kuchennych.
Standardowa wysokość stojących szafek kuchennych
Standardowa wysokość szafek dolnych to 85 cm i obejmuje kilka parametrów:
- dolna wysokość cokołu - do 10 cm;
- na wysokość dolnych szafek wpływa grubość blatu, który może mieć następujące parametry: 2,8, 3,8 i 4 cm;
- wielkość frontów kuchennych (dolnych) to średnio 72 cm.
Dodatkowo wysokość poszczególnych elementów dolnych szafek podyktowana jest ich wyglądem. Tak więc niższe moduły mogą zawierać następujące elementy:
- szafka pod umywalkę - zwykle pusta w środku, bez półek, z jednymi lub dwojgiem drzwi;
- szafa z jedną lub dwoma półkami;
- szafka wyposażona w 3-5 szuflad - metaboksy;
- sekcja z półką i górną szufladą;
- sekcja do osadzania sprzętu (płyta grzewcza i piekarnik, pralka lub zmywarka);
- wąska szafka ładunkowa (uchwyt na butelkę).

Parametry są ze sobą ściśle powiązane, dlatego ważne jest przestrzeganie wymiarów, co pomoże zachować funkcjonalność kuchni
Wysokość dolnych szafek kuchennych pomoże wyregulować nogi, które są wyposażone w mechanizm skręcający. Ta funkcja jest szczególnie ważna, jeśli właściciel kuchni ma wzrost powyżej lub poniżej średniej. Nie należy zbytnio nadużywać tej funkcji, ponieważ kuchnia straci swój organiczny wygląd.
Standardowa głębokość dolnych szafek kuchennych i ich szerokość
Wymiary dolnych szafek kuchennych zależą od wymiarów blatu. Jego standardowa głębokość to 60 cm, więc minimalne parametry głębokości dla szafek kuchennych to od 46 cm, ponieważ blat powinien wisieć nad szafkami, a pomiędzy tylną ścianą a blatem powinien być niewielki odstęp. W przypadku montażu szuflad należy wziąć pod uwagę, że ich długość powinna być o 1 cm mniejsza od głębokości samej szafy.
Przydatna rada! Nie należy kupować szafek z blatem mniejszym niż 60 cm, ponieważ mogą wystąpić problemy z urządzeniami do zabudowy. Jedynym wyjątkiem jest projekt małej kuchni.Zbyt szerokie blaty nadają się tylko do przestronnych pomieszczeń, ale kuchnia o głębokości ponad 90 cm będzie po prostu niewygodna w użyciu, ponieważ trudno jest dostać się w głąb szafki.
Standardowa głębokość szafki podłogowej to 56-58 cm plus 2-5 cm ozdobnego cokołu na blacie. Zwis blatu z przodu to maksymalnie 3 cm, a minimum 5 cm, a jego obecność chroni korpus przed zabrudzeniem. Z tyłu szafki znajduje się szczelina na blat, która jest niezbędna do swobodnego umieszczenia komunikacji gazowej, elektrycznej i wodnej. Wymiary szafki kuchennej na zlew powinny zapewniać dwa centymetry szczeliny wokół wbudowanego zlewu.
Szerokość frontów dolnych szafek waha się od 30 do 45 cm Meble o szerszych gabarytach będą niewygodne w użytkowaniu, gdyż otwieranie drzwi wymaga dodatkowej przestrzeni. Idealna odległość między dolnymi półkami to 20-40 cm.
Wymiary szafki kuchennej do piekarnika muszą odpowiadać wymiarom urządzeń do zabudowy, biorąc pod uwagę szczelinę za urządzeniem do podłączenia przewodów elektrycznych lub rur gazowych.
Standardowe rozmiary wiszących szafek kuchennych
Wysokość szafek górnych zależy przede wszystkim od wysokości stropów w pomieszczeniu. Na przykład w „Chruszczowie” można łatwo sięgnąć do sufitu, po prostu wyciągając rękę. W związku z tym całkowita wysokość zestawu słuchawkowego nie może przekraczać 215 cm. Natomiast w przypadku „stalinków” trzymetrowe sufity zakładają instalację wysokich górnych modułów, dopuszcza się nawet dwurzędowe antresole, na których bez problemu zmieszczą się wszystkie przybory kuchenne. W mieszkaniach późniejszych radzieckich budynków i nowoczesnych wieżowcach parametry zestawu słuchawkowego wzrosły do 240 cm.
Dlatego właśnie ze względu na wielkość górnych szafek kuchennych regulowana jest wysokość całego zestawu meblowego. Tak więc ten wskaźnik górnych szafek kuchennych wynosi od 65 do 90 cm, czasami szafki mogą osiągnąć wysokość 120 cm, ale wtedy drzwi powinny być ustawione w dwóch rzędach.
Standardowa głębokość górnych szafek kuchennych to 30 cm, chociaż jeśli zestaw słuchawkowy korzysta z szerokiego blatu lub planowane jest zainstalowanie wbudowanych urządzeń, na przykład kuchenki mikrofalowej w górnym rzędzie, wskaźniki te powinny być wyższe. Idealnie, głębokość górnych szafek kuchennych wynosi połowę lub 2/3 głębokości dolnych modułów. Szerokość drzwiczek górnych szafek powinna być identyczna z elementami znajdującymi się na dole zestawu słuchawkowego.

Aby zapewnić funkcjonalność i pełne przechowywanie przyborów kuchennych, należy dokładnie zapoznać się z zasadami obliczania wielkości górnych modułów
Parametry wysokości strefy fartucha, to znaczy odległość od powierzchni roboczej do dna górnej szafki, powinny wynosić co najmniej 45 cm Wzrost tego wskaźnika jest możliwy, jeśli hostessa jest wysoka i może osiągnąć 60 cm Szafka z wbudowanym kapturem jest umieszczona w większej odległości od dolnego rzędu ... Dla dygestorium umieszczonego nad kuchenką elektryczną parametr ten powinien wynosić 70-75 cm, a dla kuchenki gazowej 75-80 cm Maksymalna wysokość montażu górnych modułów (od podłogi) nie powinna przekraczać 210 cm.
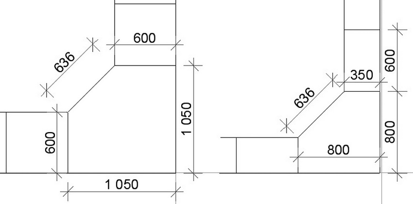
Szafka kuchenna narożna: rodzaje, wymiary, rysunki
Szafki narożne mogą być również stojące i naścienne. Jednocześnie ich standardy znacznie odbiegają od wymiarów zwykłych szafek, co podyktowane jest ich specjalnym kształtem. W takich modelach nie jedna, ale dwie ściany przylegają jednocześnie do ściany, która zgodnie ze standardem powinna mieć szerokość 60 cm. Pomiędzy nimi z reguły montowane jest tylne cięcie o szerokości 16 do 18 cm. Parametry sąsiednich ścian bocznych odpowiadają wymiarom sąsiednich modułów szafki, ta liczba sięga co najmniej 30 cm).
Przydatna rada! Drzwi szafek należy ustawić w taki sposób, aby po otwarciu nie kolidowały z innymi meblami, takimi jak drzwi lodówek, szuflady i drzwi innych szafek.

Narożny model szafki kuchennej przylega do ściany nie jedną, ale dwiema ścianami jednocześnie, które powinny mieć szerokość 60 cm
Szerokość elewacji frontowej jest nieco większa niż szerokość drzwi w tradycyjnych szafach i wynosi średnio 38 cm, obowiązuje zasada trójkąta prostokątnego. Wymiary narożnej szafki kuchennej ze względu na redukcję żeber przy ścianie są nieco mniejsze od parametrów szafki dolnej. Dlatego nie przestrzega się tutaj zasady dopasowania szerokości drzwi. Aby zaradzić tej sytuacji, górne moduły uzupełnia szafa z dwojgiem drzwi nad stolikiem nocnym z jednymi drzwiami. Modele narożne charakteryzują się dużą pojemnością, ponieważ głębokość górnych szafek kuchennych może sięgać 50 cm.
Ze względu na szczególną przestronność szafek narożnych można w nich montować skomplikowane konstrukcje i wszelkiego rodzaju urządzenia, np. Regały karuzelowe i wysuwane.
Standardowe rozmiary narożnych szafek kuchennych
Wymiary dolnych szafek narożnych odpowiadają parametrom ogólnego zestawu kuchennego. Uwzględnia to takie parametry, jak wysokość i głębokość pieca, wymiary zlewu i innych urządzeń do zabudowy. Jeśli mówimy o małej kuchni, maksymalna głębokość szafki nie powinna przekraczać 50 cm.
Wysokość konstrukcji dna narożnika odpowiada ogólnemu standardowi i wynosi 85 cm Nogi takich szafek można regulować jak w zwykłych. Szerokość modeli mieści się w przedziale od 15 do 80 cm Najczęściej spotykane wymiary to szafa 60x60 cm, która jest dość pojemna i wygodna w użytkowaniu. Dolna część jest instalowana po przymocowaniu górnej i muszą koniecznie pasować do siebie.
Najpopularniejszą wersją projektu w dolnym rogu jest narożna szafka kuchenna na zlew. Jego wymiary mogą się zmieniać i zależą od wymiarów samego zlewu. Ponadto brany jest pod uwagę sam rodzaj zlewu - jest to wpuszczany lub list przewozowy.
Najczęściej modele narożne są zawarte w wykonanych na zamówienie zestawach słuchawkowych. W tym przypadku parametry są obliczane niezależnie, szerokość może przekraczać 60 cm, głębokość produktu może osiągnąć 80 cm, często w szafce narożnej, na której jest zainstalowany zlew, stosuje się dwie fasady lub jedne drzwi harmonijkowe.
Jak wykonać rysunki szafek kuchennych: wymiary, standardy produktów
Przed sporządzeniem rysunku konieczne jest wykonanie pomiarów. Ich dokładność wpłynie bezpośrednio na jakość produktu i szybkość procesu produkcyjnego. Aby to zrobić, musisz wykonać kilka pomiarów:
- obliczyć obwód pomieszczenia, który mierzy się na wysokości 85–95 cm od listew przypodłogowych;
- ogólną wysokość zestawu słuchawkowego należy mierzyć w kilku miejscach, aby pomóc wykryć możliwe błędy;
- wykonać pomiary w miejscach komunikacji, gniazdach, niszach, wybrzuszeniach i oknach.
Przydatna rada! Podczas sporządzania projektu konieczne jest zapewnienie swobodnego dostępu do różnych komunikacji, przede wszystkim do zaworów i rur gazowych.
Tworząc indywidualny projekt, lepiej jest używać schematów i rysunków z najdokładniejszymi pomiarami, aż do milimetrów. Nie zapomnij o szczelinach, które znajdują się z tyłu dolnych szafek, technika ta jest szczególnie skuteczna w przypadku nierównych ścian w kuchni. Tutaj wystarczy na margines 5–7 cm, wszystkie błędy będą ukryte pod blatem obramowanym cokołem.
Projekt powinien przewidywać montaż sprzętu AGD, które są rozmieszczone w odstępach 50 cm od siebie oraz od innych urządzeń i elementów.Wysokość obliczana jest z uwzględnieniem cokołu, który w standardowych wymiarach mebli kuchennych wynosi 10 cm od podłogi do elewacji. Na idealnie płaskiej podłodze jej parametry można zmniejszyć do 7-8 cm, a na nierównej i niestabilnej powierzchni przeciwnie zwiększyć do 16-18 cm Odległość od górnej szafki do sufitu powinna wynosić co najmniej 25 cm.
W ten sposób, szafki kuchenne mogą mieć różne rozmiary, ale podczas tworzenia rysunków należy przestrzegać pewnych standardów i zasad. Biorąc pod uwagę różne czynniki, zasady i niuanse, możesz uzyskać idealny projekt, realizując go, będziesz mógł stworzyć wygodną, wygodną i wielofunkcyjną kuchnię.

















