Dla wielu przytulny wiejski dom to marzenie na całe życie, w którym każda godzina spędzona sam na sam z naturą sprzyja relaksowi. Ważne, aby obudowa była nie tylko piękna, ale także wygodna i wielofunkcyjna. Realizacja marzenia rozpoczyna się od stworzenia projektu, którego podstawą są rysunki domu, zawierające szczegółowy układ i schemat komunikacji. Ten materiał powie Ci, jak właściwie zorganizować konstruktywną scenę.

Przed budową musisz wykonać rysunek domu, aby uniknąć błędów, które mogą opóźnić proces przez długi czas
Zadowolony
- 1 Jak zrobić projekt: kroki przygotowawcze do stworzenia rysunku
- 2 Funkcje tworzenia projektów domów: rysunki jako główna część planowania
- 3 Struktura projektu domu: plan budowy, rysunki i wymiary
- 3.1 Lista wymaganych rysunków domu architektonicznego wraz z wymiarami
- 3.2 Rysunki przekrojowe domu i obraz elewacji z różnych stron
- 3.3 Sekcja konstrukcyjna: jak rysować rysunki i schematy poszczególnych elementów
- 3.4 Sekcja inżynierska: rysunki pomieszczeń i komunikacji
- 3.5 System antywłamaniowy na rysunkach projektu domu
- 4 Dokumentacja towarzysząca do projektu i rysunki konstrukcyjne
- 5 Programy komputerowe do projektowania domów: niezawodni asystenci w tworzeniu projektów
Jak zrobić projekt: kroki przygotowawcze do tworzenia rysunku
Przed wykonaniem rysunku prywatnego domu musisz zdecydować, jaki będzie jego bezpośredni cel: czy będzie służył jako podmiejskie miejsce wypoczynku latem, czy jako mieszkanie dla całej rodziny przez cały rok. Należy również pamiętać o liczbie gospodarstw domowych. Jednocześnie należy wziąć pod uwagę styl życia członków rodziny, ich gusta, preferencje i hobby.
Jeżeli przyszli mieszkańcy domu są zwolennikami spokojnego trybu życia, wówczas budynek należy umieścić w miejscu oddalonym od jezdni i terenów sąsiednich. A co najlepsze - na tyłach ogrodu. Dla ludzi otwartych, towarzyskich, na początku działki można zbudować dom, odsłaniając elewację domku i piękny krajobraz przed nim. Z technicznego punktu widzenia szczególnie ważne są dane geodezyjne uzyskane podczas badania terytorium. Wskażą cechy powierzchni, skład gleby i nachylenia, co pozwoli stworzyć plan terenu.
W celu usprawnienia projektu domu proces jest tradycyjnie podzielony na etapy, które są następnie wyświetlane w następujących sekcjach gotowego projektu domu:
- szkicowy;
- architektoniczny;
- konstruktywny;
- inżynieryjno-techniczne;
- projekt lub dekoracja.
Decydując się na lokalizację i przeznaczenie przyszłego domu, możesz przystąpić do projektowania domu. W tym celu wykonaj wstępne szkice.Jeśli masz podstawowe umiejętności artystyczne, właściciele będą mogli to zrobić samodzielnie, nawet bez specjalnego programu komputerowego do budowy domu. Na podstawie szkiców sporządzany jest główny szkic. Zgodnie z nim wszystkie inne szczegółowe rysunki są przygotowywane i ustalane z układem przyszłego budynku.
Co wziąć pod uwagę przy sporządzaniu schematu domu
Już na etapie sporządzania szkicu trzeba jednoznacznie określić ilość kondygnacji, rodzaj dachu, wygląd elewacji i frontowych części domu, aż po ilość okien, balkonów, obecność tarasu czy strychu. W projekcie projektu uwzględniono również szkice typu budynku w przekroju podłużnym i poprzecznym, które wskazują cechy projektowe i materiały, z których dom ma zostać wzniesiony.
Pomocna rada! Doświadczeni projektanci odradzają tworzenie bardzo przestronnych sypialni, ponieważ duże przestrzenie mogą wywoływać u ich mieszkańców poczucie niepokoju. Dlatego sypialnie powinny być kompaktowe i wygodne.
Przed narysowaniem planu domu musisz określić lokalizację miejsca i zbadać orientację względem punktów kardynalnych. Na podstawie tych danych określa się lokalizację pomieszczeń. Ich liczba zależy od tego, ile osób będzie mieszkać w budynku i jak często goście będą przychodzić przez długi czas. Ważnym elementem jest także umiejscowienie lokalu i funkcjonalne przeznaczenie każdego z nich.
Następnie musisz określić, które konkretne pokoje zostaną przydzielone członkom rodziny, a które - gościom i pracownikom, jeśli ma powstać określony personel. Nie zapomnij o rozkładzie pomieszczeń, w których zbierze się cała rodzina - jest to jadalnia, hol czy salon.
Ważne jest uwzględnienie preferencji i zainteresowań mieszkańców domu, aby przekonać się o konieczności uwzględnienia w planie siłowni, basenu lub sauny, ogrodu zimowego lub szklarni, biblioteki z gabinetem czy obszernego warsztatu.
Funkcje tworzenia projektów domów: rysunki jako główna część planowania
Decydując się na układ domu, musisz wyobrazić sobie życie rodziny w budynku, przemyśleć wszystkie elementy, aby niczego nie przegapić. Dlatego nie spiesz się, aby stworzyć ostateczny układ domu. Gotowe rysunki i plany domu muszą być jak najdoskonalsze, aby efekt końcowy zadowalał wszystkich domowników, a wybudowane mieszkanie przetrwało maksymalną liczbę lat bez przebudowy i przeróbek. Ostateczna wersja szkicu powinna zostać omówiona na radzie rodzinnej, biorąc pod uwagę wszystkie szczegóły, aż do najmniejszego szczegółu.
Przede wszystkim pożądana liczba pięter jest wskazana na schemacie domu. Może to być przestronny dom parterowy, kompaktowy dwupiętrowy domek lub luksusowy dwupiętrowy dwór z poddaszem użytkowym. Układ wewnętrzny pokazany na rysunkach budynków powinien obejmować następujące strefy:
- salony;
- pomieszczenia gospodarcze;
- powierzchnie wspólne;
- dodatkowe budynki gospodarcze.
Dom parterowy jest podzielony na strefy za pomocą przegród, a także umieszcza pomieszczenia o tej samej funkcjonalności w jednym skrzydle. W dwukondygnacyjnych domkach sypialnie, pokoje gościnne i pokoje dziecięce tradycyjnie zlokalizowane są na drugim piętrze, a na piętrze znajdują się pomieszczenia gospodarcze i biurowe do wspólnego użytku.
Struktura projektu domu: plan budowy, rysunki i wymiary
Zanim samodzielnie wykonasz projekt w domu, musisz mieć jasne pojęcie o tym, jakiego rodzaju jest to dokument iz jakich sekcji się składa. Po pierwsze jest głównym pomocnikiem i przewodnikiem na etapie budowy, który pomoże stworzyć dom według wszelkich zasad, sprawi, że będzie niezawodny, wygodny i funkcjonalny, a co najważniejsze bezpieczny do zamieszkania.
Ważny! Budowa domu bez projektu to ogromne ryzyko. Bez wyczerpujących informacji o przyszłym domu nie można kontrolować wszystkich kosztów, obliczyć wymaganej ilości materiałów i wielkości lokalu. Chaotyczna budowa może mieć tragiczne konsekwencje w postaci osiadania fundamentów, niewygodnych klatek schodowych i małych pomieszczeń.
Po drugie, projekt to dokument, który zapewnia kontrolę jakości wykonania konstrukcji i zużycia materiałów. W przypadku braku dokumentacji kosztorysowej nie tylko jakość będzie niska, ale sama konstrukcja będzie niepłynna. Po prostu niemożliwe jest zaprojektowanie takiego domu jako nieruchomości.
Projekt domu składa się z dwóch głównych części:
- architektoniczno-konstrukcyjne, w tym rysunki architektoniczne elewacji oraz szczegółowe schematy konstrukcyjne z wymiarami i materiałami;
- inżynieria i projektowanie, z reguły składające się z rysunków sieci wodociągowej, kanalizacyjnej, elektrycznej, grzewczej i wentylacyjnej.
Klasyczna wersja projektu z rysunkami dwupiętrowego domu obejmuje następujące sekcje:
- architektoniczne, z wyszczególnieniem pięter;
- konstruktywny ze szczegółowym układem domu;
- plan instalacji elektrycznej;
- system wodno-kanalizacyjny;
- plan instalacji ogrzewania i wentylacji;
- projekt instalacji gazowej;
- paszport projektu i nota wyjaśniająca.
Pomocna rada! Rysunki mogą być wykonane ręcznie lub możesz użyć specjalnych programów komputerowych do projektowania domu online.
Lista wymaganych rysunków domu architektonicznego wraz z wymiarami
Rysunki architektoniczne i konstrukcyjne zakładają wskazanie dokładnych wymiarów, zawierają charakterystykę ogólnych parametrów domu, poszczególnych konstrukcji, konstrukcji i ich części. Zawiera szczegółowe plany dla każdej z kondygnacji, przewidujące rozmieszczenie salonów i pomieszczeń gospodarczych. Wskazano obszar wszystkich elementów, wysokość sufitów, położenie otworów na okna i drzwi.
Na przykład rysunki dwupiętrowego domu z poddaszem w części architektoniczno-konstrukcyjnej są ułożone w następującej kolejności:
- plan piwnicy;
- plan parteru;
- plan drugiego piętra;
- plan poddasza.
Również w tej sekcji należy umieścić plan konstrukcji więźby dachowej. Aby narysować rysunek, konieczne jest przedstawienie w przekroju całego systemu elementów konstrukcyjnych konstrukcji podłogi. Tabela dołączona do rysunku zawiera specyfikację części konstrukcji więźby dachowej, pełną listę asortymentu materiałów i ich ilość. Oddzielnie sporządzany jest rzut dachu, na którym wskazano kształt, wymiary, kąty nachylenia i nachylenia połaci, a także rozmieszczenie otworów wentylacyjnych, lukarn, luków, poddaszy.

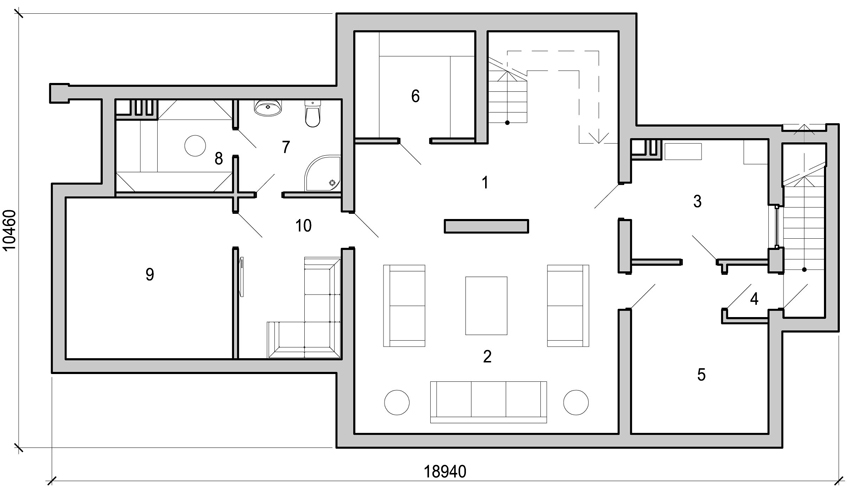
Rzut piwnicy, gdzie 1 - hol, 2 - pokój rekreacyjny, 3 - pomieszczenie grzewczo-pralnicze, 4 - wiatrołap, 5 - spiżarnia, 6 - spiżarnia, 7 - łazienka, 8 - sauna, 9 - siłownia, 10 - taras
Rysunki domów prywatnych bez wątpienia zawierają kilka sekcji przedstawiających wszystkie elementy konstrukcji wzdłuż lub w poprzek. Wykonywane są sekwencyjnie od dachu do fundamentu. Tak więc w przekroju widoczne są wymiary i położenie podłogi, wszystkie podłogi i dach. Powinno być pięć podobnych nacięć wykonanych z różnych stron.
Rysunki przekrojowe domu i obraz elewacji z różnych stron
Nie można narysować projektu domu bez zdjęcia wszystkich elewacji, które wyraźnie pokazują stan zewnętrzny wejścia od frontu, widoki z tyłu iz boku. Dlatego powinny istnieć cztery arkusze, na których konieczne jest narysowanie rysunków przedstawiających:
- fasada frontowa;
- fasada boczna nr 1 (prawa strona);
- fasada boczna nr 2 (lewa strona);
- elewacja z tyłu domu.
Rysunek elewacji domu w rzeczywistości przedstawia wstępne szkice i zarys budynku.Można go łatwo stworzyć za pomocą specjalnych programów komputerowych, dlatego przed narysowaniem projektu domu trzeba dokładnie przemyśleć wszystko, skonsultować się ze specjalistami o różnych profilach konstrukcyjnych i uzgodnić wszystkie szczegóły z członkami rodziny. Ostateczna wersja powinna spodobać się wszystkim domownikom.
Po rysunkach elewacji osobna lista w tabeli wskazuje specyfikację elementów stolarki otworowej - drzwi i okien oraz uwzględnia sposób ich otwierania. Dla każdego produktu wskazane są jasne formy, parametry, określa się obecność i ilość szklanek. Dom dwupiętrowy może mieć nawet trzy tuziny nazw takich produktów.
Pomocna rada! Możesz stworzyć projekt małego dwupiętrowego domu, analogicznie do rysunków mieszkań. Pierwsze piętro jest oparte na planie mieszkania dwupokojowego, a drugie piętro składa się z sypialni, dwóch pokoi gościnnych oraz dodatkowej łazienki.
Sekcja konstrukcyjna: jak rysować rysunki i schematy poszczególnych elementów
Część konstrukcyjna to już szczegółowa część projektu, która zawiera zarówno dane ogólne, jak i indywidualne, różne układy elementów budynku: fundamenty, klatki schodowe, podłogi, konstrukcje krokwi. W tej części znajdują się również szczegółowe rysunki wszystkich jednostek, w których wskazana jest specyfika produktów i materiałów.
Rysunek przekrojowy fundamentu odszyfrowuje wymiary pasowych obwarowań domu, głębokość ich występowania oraz materiały niezbędne do ich budowy. Obraz fundacji jest przedstawiony w postaci takich planów-rysunków:
- ogólny plan fundamentów;
- schematy przekrojów podłużnych;
- rysunek przekrojów.
Niektóre typy rysunków zawierają sekcję płyty podłogowe, ich przekroje podłużne i poprzeczne na różnych wysokościach:
- plan piętra w punkcie +0,00;
- około + 3,00;
- na wysokości +6,00.
Węzły elementów konstrukcyjnych to obiekty o specjalnej konstrukcji, w tym schody i biegi, zarówno na zewnątrz, jak i wewnątrz lokalu. Oto dokładne obliczenia wytrzymałościowe i statyczne. W tej części projektu w oddzielnych tabelach zawarto charakterystykę i kolejność użycia materiałów, w szczególności:
- wzmocnienie stalowe;
- elementy żelbetowe;
- drewniane belki.
Sekcja inżynierska: rysunki pomieszczeń i komunikacji
Dział inżynierski zawiera schematy i rysunki instalacji elektrycznych, wodociągowych, kanalizacyjnych, wentylacyjnych i grzewczych. Tabele dekodowania zawierają dane specyfikacji sprzętu i ogólne obliczenia. Są to oddzielne bloki budulcowe znajdujące się wewnątrz przyszłego domu.
Sekcja dotycząca hydrauliki zawiera plan lokalizacji komunikacji w piwnicy i na każdym piętrze. Schemat sieci kanalizacyjnej jest wykonywany w podobny sposób. Czasami te dwa plany są pokazane na jednym rysunku. Istnieje również schemat aksonometryczny instalacji zaopatrzenia w zimną i ciepłą wodę.

Rysunki instalacji elektrycznych, wodociągowych, kanalizacyjnych, wentylacji i ogrzewania wykonywane są na etapie inżynierskim
W części poświęconej instalacji grzewczej przedstawiono rysunki posadzek począwszy od piwnicy oraz ogólny schemat ogrzewania całego domu. Urządzenia gazowe i układy zasilania przedstawiono na osobnych rysunkach z indywidualnymi schematami instalacji gazowej i elektrycznej.
Aby zapobiec niebezpieczeństwu gromowemu, konieczne jest uwzględnienie w modelowaniu domów instalacji piorunochronu, gdyż brak takiej ochrony może nie tylko doprowadzić do zniszczenia, ale także stanowić zagrożenie dla życia i zdrowia mieszkańców domu. Piorunochron jest instalowany według osobnego schematu przy zaangażowaniu wykwalifikowanych specjalistów.
Powiązany artykuł:
Projekty nowoczesnych domów: prostota w harmonii z funkcjonalnością
Charakterystyka techniczna domku w nowoczesnym stylu. Co jest lepsze: standardowe gotowe projekty lub indywidualny projekt. Etapy stworzenia.
System antywłamaniowy na rysunkach projektu domu
Przed samodzielnym zaprojektowaniem domu należy wziąć pod uwagę konieczność zainstalowania dodatkowych systemów, na przykład alarmu antywłamaniowego. Jego projekt polega na opracowaniu odrębnego planu, który przewiduje strukturę sieci urządzeń inżynierskich. Głównym celem jest zapewnienie różnych stopni ochrony placów budowy. Sporządzanie rysunków systemu bezpieczeństwa dla domu jest procesem indywidualnym, gdyż przewiduje działanie alarmu w określonych warunkach.
Tworząc taki projekt, należy wziąć pod uwagę szereg zasad i przepisów. W szczególności przy sporządzaniu rysunków należy postępować zgodnie z normami SNiP i innymi dokumentami o charakterze technicznym. Kluczowe czynniki do rozważenia:
- cel lokalu, zgodnie z którym wybierany jest sprzęt o określonej złożoności;
- obszar obiektu podlegający ochronie oraz cechy jego architektury i projektu;
- określenie rodzaju alarmu, który może być przewodowy i bezprzewodowy.

Układ czujników bezpieczeństwa, gdzie czujnik otwarcia zaznaczony jest na żółto, czujnik ruchu na czerwono, zbicie szyby na zielono, czytnik na niebiesko, syrena na niebiesko, a strefa detekcji ruchu na różowo
Plan projektu alarmu podlega obowiązkowemu zatwierdzeniu w odpowiednich organizacjach, a dopiero potem sporządzane są szczegółowe rysunki systemu bezpieczeństwa domu.
Dokumentacja towarzysząca do projektu i rysunki konstrukcyjne
Projekt budowlany to nie tylko zestaw szkiców, rysunków i tabel, zawiera szczegółowe informacje o każdym z etapów budowy oraz o poszczególnych obszarach prac. Umożliwia to złożoną budowę kapitału.
Pomocna rada! Zasadnicze znaczenie ma umieszczenie pokoju dziecięcego obok pokoju rodziców, tak aby przy najmniejszej potrzebie dziecka byli tam rodzice. Jeśli w momencie budowy dzieci nie ma jeszcze w rodzinie lub są jeszcze małe, należy z wyprzedzeniem pomyśleć o obecności specjalnego pokoju lub strefy zabaw. Jeśli pozwala na to miejsce, można jednocześnie przeznaczyć kilka pokoi na gry dla dzieci.
Każdy projekt, oprócz już wymienionych rysunków, bez wątpienia zawiera następujące dokumenty:
- cechy architektoniczne i strukturalne;
- opis funkcjonalności budynku;
- dane techniczne i ekonomiczne, takie jak powierzchnia, kubatura, wysokość;
- opis rozwiązań inżynieryjnych;
- rodzaje, wykaz i ilość materiałów budowlanych i wykończeniowych.

Kierując się projektem można zorganizować proces budowy, ustalić kolejność prac oraz określić koszty finansowe
Paszport architektoniczny zawiera kopię licencji projektanta, notę wyjaśniającą, kolorystykę elewacji, rzuty kondygnacji, przekroje osiowe i rzut dachu.
Programy komputerowe do projektowania domów: niezawodni asystenci w tworzeniu projektów
Nowoczesna technologia komputerowa pozwala szybko wizualizować wszystkie pragnienia i zobrazować dom swoich marzeń. Ponadto dzięki specjalnym programom możesz samodzielnie wykonać projekt 3D domu. Nawet niedoświadczeni użytkownicy mogą to zrobić za pomocą na przykład Google SketchUp. W tej usłudze możesz zaprojektować zarówno pomieszczenia mieszkalne, jak i gospodarcze.
Za pomocą planowania domów online bezpośrednio w przeglądarce można tworzyć modele budynków z dokładnymi wymiarami, a nawet teksturą materiałów. Programy offline wymagają pobrania i instalacji na komputerze, więc komputer musi mieć wystarczającą ilość pamięci RAM.
Konstruktor domu umożliwia zaprojektowanie wirtualnego luksusowego domku lub małego wiejskiego domu przy użyciu indywidualnych próbek i detali.Programy takie umożliwiają nie tylko zaprojektowanie różnych modeli, ale także zestawienie listy materiałów i części potrzebnych do zakupu, a nawet wyliczenie przybliżonego kosztu projektu.
Popularne produkty elektroniczne to AutoCAD i KOMPAS-3D. Są to wszechstronne programy, które można wykorzystać do tworzenia projektów dla domów i wnętrz. Ich główną wadą jest wysoka cena. Tańszy, ale mniej funkcjonalny, Ashampoo Home Designer to idealny wybór dla początkujących projektantów.
Rysunki domów prywatnych są głównym elementem projektu budowlanego. Ich prawidłowa realizacja zależy nie tylko od niezawodności samej konstrukcji, ale także od czasu trwania obsługi łączności i systemów wsparcia mieszkań, co sprawia, że jest trwała, wygodna i przytulna dla rodziny. Dlatego do kwestii tworzenia rysunków należy podchodzić tak ostrożnie i odpowiedzialnie, jak to tylko możliwe.













