Na nowym rynku nieruchomości wiodącą pozycję w zakresie projektowania prywatnego zajmują projekty domów z poddaszem użytkowym i garażem. Ta popularność wynika z estetyki i wszechstronności konstrukcji w połączeniu z oszczędnością. Jednak taki budynek ma cechy, z którymi warto się zapoznać przed przystąpieniem do budowy.
Zadowolony
- 1 Projekty domów z poddaszem użytkowym i garażem: charakterystyczne cechy domków
- 2 Najważniejsze cechy projektowania domu z garażem i poddaszem użytkowym
- 3 Wybór materiału do budowy domu z poddaszem użytkowym i garażem: przykłady zdjęć
- 4 Zgodność zarysu konstrukcji z wielkością działki
- 5 Jaki rodzaj dachu zapewnić w projekcie domu z poddaszem użytkowym i garażem: przykłady zdjęć
- 6 Prawidłowe ocieplenie małego domu z poddaszem użytkowym i garażem
- 7 Opcje układu wnętrza domu z poddaszem użytkowym
- 8 Opcje projektu do tworzenia dużych budynków
Projekty domów z poddaszem użytkowym i garażem: charakterystyczne cechy domków
Dom z poddaszem użytkowym - na zdjęciach wyraźnie widać różne warianty - to najbardziej racjonalne rozwiązanie na niewielką działkę, pozwalające na powiększenie powierzchni mieszkalnej bez zmniejszania terenu. Obecność transportu osobistego staje się przyczyną kolejnej popularnej techniki - budowy domu z garażem.

Projekt domu z poddaszem i garażem na jeden samochód
Projekty domków z garażem i poddaszem mają szereg zalet:
- dzięki połączeniu dwóch obszarów funkcjonalnych możliwe jest obniżenie kosztów związanych z opracowaniem projektu i realizacją prac budowlanych;
- sąsiedztwo części dziennej i garażu stwarza w tym ostatnim komfortowe środowisko, co prowadzi do obniżenia kosztów związanych z ogrzewaniem garażu;
- stworzenie wewnętrznego przejścia pozwala na swobodne przemieszczanie się z pomieszczenia do garażu bez wychodzenia na zewnątrz, co jest szczególnie wygodne podczas złej pogody
- stworzenie przestrzeni na poddaszu zapewnia zwiększenie przestrzeni życiowej, co jest szczególnie ważne w przypadku budynków parterowych;
- zwarty budynek wielofunkcyjny pozwala znacznie zaoszczędzić wolny obszar działki;
- budowa strychu będzie znacznie tańsza niż budowa drugiego piętra;
- podłoga na poddaszu pozwala dodatkowo zaizolować przestrzeń życiową, chroniąc ją przed przeciągami;
- dołączony garaż będzie kosztował znacznie mniej niż element wolnostojący;
- budynki mają stylowy i reprezentacyjny wygląd, co wyróżnia je na tle innych budynków.
Najważniejsze cechy projektowania domu z garażem i poddaszem użytkowym
Zanim zaczniesz rozwodzić się nad typowym projektem lub złożeniem zamówienia na indywidualną opcję budowy, powinieneś zdecydować o kluczowych punktach.Oprócz atrakcyjnej elewacji budynku na uwagę zasługują następujące pozycje:
- dobór podstawowego materiału do budowy budynku;
- połączenie budynku z otaczającym projektem krajobrazu;
- zgodność zarysu konstrukcji z wielkością działki;
- wybór konstrukcji dachu budynku;
- niezbędna izolacja dachu na poddaszu;
- układ wnętrza.
Opracowanie projektu domu z poddaszem użytkowym i garażem zaleca się powierzyć specjalistom, w tym architektom, inżynierom, budowniczym i projektantom. Dzięki temu możliwe będzie wyeliminowanie nieścisłości w obliczeniach i błędów technicznych w projekcie.
Dach wymaga szczególnej uwagi, której projekt należy dokładnie przemyśleć. Wilgotne ciepłe powietrze unoszące się z domu tworzy kondensację, a naturalne wpływy zewnętrzne w postaci opadów atmosferycznych i słońca mogą pogorszyć stan wystroju wnętrza górnego pomieszczenia. Aby temu zapobiec, należy odpowiednio zorganizować barierę cieplną, wodną i paroizolacyjną.
Wybór materiału do budowy domu z poddaszem użytkowym i garażem: przykłady zdjęć
Do budowy domku z poddaszem i garażem można użyć cegieł, bloków piankowych, gazobetonu, drewnianych belek, płyt warstwowych. Każda opcja ma niezaprzeczalne zalety i wady. Wybór materiału zależy od strefy klimatycznej obszaru i właściwości gleby.
Pomocna rada! Mniej kosztowna i pracochłonna podczas budowy garaż ramowy z poddaszem użytkowym.
Klasycznym materiałem do budowy domów jest cegła, która ma niski koszt, jest dobrym izolatorem ciepła i dźwięku. Mur z cegły jest jedną z najbardziej stabilnych konstrukcji, która może utrzymać ciężar strychu. Ściany nośne nie wymagają wzmacniania, co pozwala zaoszczędzić pieniądze na budowie domu. Materiał ten tworzy solidny, niezawodny wygląd konstrukcji.
Pomocna rada! Pomieszczenie na poddaszu można stworzyć po zakończeniu budowy domu murowanego, co nie było wcześniej przewidziane w projekcie.
Innym tradycyjnym materiałem do budowy niskich budynków jest drewno. Ona, podobnie jak cegła, ma wysokie właściwości izolacji cieplnej i akustycznej. Ponadto jest to produkt przyjazny dla środowiska. Dom zbudowany z drewnianych belek będzie miał reprezentacyjny wygląd. Ponadto drewniana konstrukcja może wytrzymać ponad 50 lat.
Jednak drewno jest podatne na szybki zapłon, co zwiększa ryzyko pożaru. Może to spowodować zniszczenie nie tylko przestrzeni życiowej, ale także samochodu w garażu. Ponadto materiał ma dość wysoki koszt, co jest bardziej akceptowalne dla osób, które nie mają ograniczeń finansowych.
Nowoczesny materiał budowlany do budowy domów z poddaszem użytkowym
Obecnie bardzo popularne są bloki z betonu komórkowego lub gazokrzemianu. Mają takie same parametry użytkowe jak cegły, ale proces budowy budynku jest znacznie uproszczony. Elementy są lekkie, dzięki czemu prace budowlane można prowadzić samodzielnie. Pomaga również zmniejszyć obciążenie fundamentu budynku. Jednak materiał ma najgorszą nośność, co należy wziąć pod uwagę już na etapie projektowania. Wizualne zastosowanie materiału można zobaczyć na zdjęciu projektów domów z bloków piankowych z poddaszem użytkowym i garażem.
Płyty warstwowe dostarczane są jako komplet. Elementy składowe konstrukcji wykonane są według opracowanego wcześniej projektu domu na poddaszu z garażem z uwzględnieniem usytuowania pomieszczeń. Panele SIP są montowane zgodnie z planem rysunkowym.Nie ma możliwości zaplanowania dodatkowego garażu lub strychu po wykonaniu paneli.
Budowa domu szkieletowego z garażem i poddaszem jest łatwa, ale tutaj ważne jest, aby poprawnie obliczyć obciążenie ramy. Jeśli tak się nie stanie, konstrukcja nie przetrwa i utworzy się jak domek z kart. Zastosowanie tego materiału ułatwi proces dekoracji wnętrz.
Zgodność zarysu konstrukcji z wielkością działki
Kiedy pojawia się potrzeba stworzenia dużej przestrzeni mieszkalnej o skromnej wielkości gruntu, wielu wybiera dwupiętrowe budynki, których różne warianty można zobaczyć na zdjęciu projektów domów 8 na 10 z poddaszem użytkowym i garażem. Jednak codzienny ruch po schodach spodoba się nielicznym. Dotyczy to zwłaszcza osób starszych i osób o ograniczonej sprawności ruchowej. W takim przypadku należy zwrócić uwagę na projekty domów parterowych z garażem i poddaszem.
Jeśli strona jest wąska, lepiej jest dać pierwszeństwo opcji budynku z pustą ścianą, na której nie ma okien i drzwi. Takie rozwiązanie pozwoli na budowę domu z poddaszem użytkowym w bezpośrednim sąsiedztwie granicy działki. Wzdłuż ścian podłużnych można ustawić budynek na potrzeby gospodarstwa domowego.
Wybierając opcję rozplanowania pomieszczenia, konieczne jest zaaranżowanie salonu i sypialni na końcach budynku, które zapewnią maksymalne przenikanie naturalnego światła do pomieszczenia, w tym na poddasze. Wejście powinno znajdować się w frontonie lub części końcowej. Umiejscowienie garażu z poddaszem użytkowym - zdjęcia wyraźnie to pokazują - dobrany jest również fronton.
Jaki rodzaj dachu zapewnić w projekcie domu z poddaszem użytkowym i garażem: przykłady zdjęć
Zazwyczaj w typowych projektach domów z garażem i poddaszem użytkowym przewidziano dach obejmujący jednocześnie główny budynek oraz dobudowę w postaci garażu. Istnieją opcje, w których jeden z pokoi na poddaszu jest umieszczony nad garażem. Od razu możemy założyć, że do takich budynków nadaje się każdy rodzaj dachu, co widać wyraźnie na zdjęciu projektów domów z garażem na 2 samochody. Jak pokazuje praktyka, niektóre opcje są ekonomicznie nieuzasadnione, ponieważ wymagają znacznych kosztów finansowych. Ponadto niektórych typów konstrukcji nie można ustawić w określonej strefie klimatycznej ze względu na dużą wysokość budynku.
W projektach małego domu z poddaszem użytkowym i garażem najbardziej odpowiednie typy dachu to dach dwuspadowy, czterospadowy i półpiętrowy, które są wyraźnie widoczne na zdjęciu. Najprostszą wersją jest konstrukcja szczytowa. Jednak z powodu takiego dachu pokój na poddaszu będzie mały, wąski i niewygodny.
Dachy biodrowe i półspadowe są czterospadowe. Dzięki tak rozbitym konstrukcjom można zagospodarować 90% powierzchni pomieszczenia na poddaszu, jednocześnie uzyskując komfortowe pokoje dzienne. Jednak projektowanie tak złożonych konstrukcji będzie wymagało pomocy specjalistów. Takie dachy mansardowe prezentują się bardzo estetycznie i oryginalnie, podkreślając wyjątkowość konstrukcji.

W przypadku domu z poddaszem użytkowym najbardziej odpowiednie są dachy dwuspadowe, czterospadowe lub półspadowe.
Pomocna rada! Aby zapewnić wygodną i wygodną obsługę podłogi na poddaszu, jej wysokość powinna wynosić co najmniej 2,5 m.
Bardzo popularne są projekty domów na poddaszu, w których dach budynku i garaż stanowią jedną całość. Jednak z praktycznego punktu widzenia najbardziej udaną opcją byłaby taka, w której górna część garażu posłuży jako podstawa do stworzenia tarasu na poddaszu.
Prawidłowe ocieplenie małego domu z poddaszem użytkowym i garażem
Domy z poddaszem wymagają organizacji odpowiedniej izolacji. Nie ma potrzeby ocieplania garażu.Ważna jest tutaj dobra wentylacja. Najtrudniejszym etapem jest izolacja podłogi na poddaszu. Ważne jest tutaj, aby wykluczyć występowanie przeciągów i przenikanie zimnych podmuchów wiatru. Ponadto hydroizolacja powinna być odpowiednio zorganizowana. Wybór izolacji zależy od rodzaju pomieszczeń, które znajdują się pod poddaszem i od czasu spędzonego na podłodze.
Najpopularniejszym materiałem jest pianka. Dostarczany jest w płytach, co ułatwia transport i montaż. Materiał charakteryzuje się niewielką wagą, dobrymi właściwościami termoizolacyjnymi oraz niskim kosztem. Wadą jest łatwość zapłonu i większe prawdopodobieństwo fragmentacji produktu podczas montażu.
Innym budżetowym materiałem, który jest często używany do ocieplania poddaszy, jest wełna szklana, która ma wysoki stopień izolacji termicznej i odporności na ogień. Jednak praca z materiałem jest utrudniona, ponieważ uwalnia on do powietrza pył szklany niebezpieczny dla zdrowia człowieka, który może uszkodzić drogi oddechowe. Montaż produktu należy przeprowadzić w specjalnym sprzęcie ochronnym, który chroni drogi oddechowe i skórę przed uszkodzeniem.
Ważny! Jeśli pokój na poddaszu będzie służył jako przestrzeń mieszkalna, nie należy używać wełny szklanej.
Odpowiednikiem wełny szklanej, która ma te same właściwości, ale pozbawioną wad jest wełna mineralna. Ponadto materiał charakteryzuje się odpornością na wysoką wilgotność, dobrą paroprzepuszczalnością, odpornością na zarodkowanie mikroorganizmów, obniżonymi właściwościami przewodzenia ciepła oraz przyjaznością dla środowiska. Takie charakterystyczne zalety znajdują odzwierciedlenie w koszcie materiału.
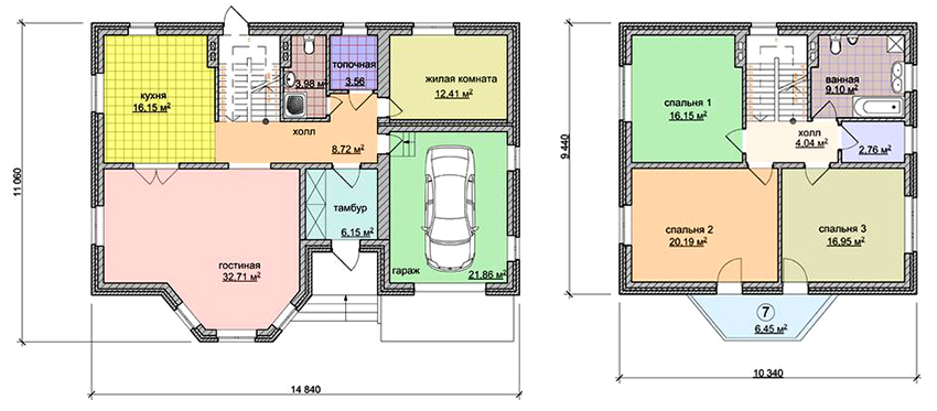
Opcje układu wnętrza domu z poddaszem użytkowym
Rozplanowanie wnętrza lokalu odbywa się z uwzględnieniem wymagań klienta na etapie opracowywania projektu garażu z poddaszem użytkowym - na zdjęciach układu wyraźnie widać różne możliwości. Wszystko zależy od pożądanej liczby pokoi, ich przeznaczenia, o którym decyduje skład rodziny i wymagania właścicieli. Budynki te wymagają jednak szczególnej uwagi przy określeniu ścieżki z domu do garażu oraz rodzaju konstrukcji klatki schodowej.
Wygodne i wygodne podnoszenie na podłogę zapewnia klatka schodowa o dużym nachyleniu. Należy zauważyć, że taki projekt wymaga dużej ilości wolnego terytorium. Rozsądnym wyjściem z tej sytuacji jest wyposażenie praktycznej spiżarni pod schodami, półek na książki czy obszernej garderoby na ubrania lub artykuły gospodarstwa domowego.
Spiralne schody mają zwartą konstrukcję. Jednak nie jest to zbyt wygodne. Ale w przypadku wyboru takiego projektu należy przemyśleć stromość spirali, optymalną szerokość stopni i wysokość stopni.
Powiązany artykuł:
Projekt domu parterowego z tarasem: nowoczesne pomysły i rozwiązania projektowe
Zalety i cechy takich budynków, ciekawe opcje układu i wskazówki. Tarasy wewnętrzne i zewnętrzne.
Wejście do garażu można ustawić bezpośrednio z domu. W takim przypadku konieczne jest przemyślenie projektu przedsionka. Należy podjąć działania w celu zmniejszenia poziomu hałasu i zapewnienia niezawodnej bariery przed wnikaniem zapachów paliwa i tlenku węgla do przestrzeni mieszkalnej. Projekt garażu na dwa samochody wraz z poddaszem użytkowym docenią właściciele podczas złej pogody. Mimo to jedno wejście do garażu od strony ulicy jest nadal uważane za bardziej racjonalne.
Opcje projektu do tworzenia dużych budynków
Obecnie istnieje wiele odmian gotowych projekty domów oraz domki z poddaszem użytkowym i garażem. Wszystkie różnią się rozmiarem i wewnętrznym wypełnieniem.Istnieją opcje dla budynków parterowych i dwupiętrowych, lokali z piwnicą, sklepu z winami lub łaźni.
Domy o powierzchni powyżej 100 m² są znacznie łatwiejsze do umeblowania. Zdjęcia planów budynków wyraźnie pokazują wiele różnych wariantów, w tym projekty garażu i strychu na 2 samochody. Poddasze będzie bardziej przestronne ze względu na dużą wolną przestrzeń. Tutaj można zorganizować kilka salonów, wyposażyć siłownię, postawić stół bilardowy lub stworzyć przestronny salon. Garaż, który może mieć różne wymiary, jest łatwy do zamocowania po obu stronach konstrukcji. W takim przypadku konieczne jest uwzględnienie estetyki domu, aby przedłużenie nie zniekształcało jego proporcji.
Konstrukcję całej konstrukcji można wykonać zgodnie z projektem domu parterowego z garażem na 2 samochody. Jest to szczególnie ważne, gdy rodzina ma dwa samochody. Nad garażem można zorganizować ogród zimowy, kino domowe czy bawialnię, co wyraźnie widać na zdjęciu garażu na 2 samochody z poddaszem użytkowym.
Możesz dodać stylu i oryginalności konstrukcji, zastępując standardowe ściany podłogi poddasza szklanymi. Docenią również posiadacze dwóch lub więcej samochodów projekt domu z garażem pod domem położonym na parterze. W tym przypadku pokoje dzienne znajdują się na poddaszu, co jest planowane na podstawie osobistych preferencji właścicieli domu. Różne opcje można zobaczyć na zdjęciu projektów garażowych z poddaszem mieszkalnym.
Wariacje projektów małych domów: przykłady zdjęć
Projekty domów z poddaszem użytkowym do 100 m² wymagają ostrożniejszego podejścia przy aranżacji pomieszczeń mieszkalnych i garażu. Jeśli dom jest wydłużony i wąski, garaż jest przymocowany od końca. W przypadku konstrukcji kwadratowej przedłużenie można wykonać z dowolnej strony. Inną opcją, często przewidzianą w projekcie domu 6 na 8 z poddaszem użytkowym, jest wyposażenie piwnicy, w której można wyposażyć garaż... Takie rozwiązanie pozwoli uzyskać kompaktowy, pojemny, wielofunkcyjny i stylowy budynek na niewielkiej powierzchni. Obok garażu znajduje się łaźnia parowa lub sauna.
Pomocna rada! Projekty garaży z poddaszem użytkowym, w których miejsce postojowe jest wyposażone w piwnicę, zaleca się stosować w terenie pagórkowatym. To wizualnie wygładzi relief i zharmonizuje otaczający krajobraz i ogólny wygląd budynku.
Strych w tym przypadku będzie miał mniejszą powierzchnię. Istnieje możliwość aranżacji tylko jednego pokoju. Dlatego, aby uzyskać maksymalną wolną przestrzeń, należy zwrócić szczególną uwagę na konstrukcję dachu, wybierając wersję zepsutą. W wersji daczy pokój na poddaszu może służyć jako pomieszczenie gospodarcze. W takim przypadku zaleca się wyposażenie dachu dwuspadowego, dzięki czemu będzie można znacznie zaoszczędzić na budowie.
Tworząc projekt domu często stosuje się dodatkowe elementy architektoniczne, dzięki czemu powstaje nie tylko reprezentacyjny i stylowy wygląd budynku, ale także poszerza się wolna przestrzeń wewnątrz domu. Jednym z tych elementów jest wykusz. Zdjęcia domów z garażem i poddaszem użytkowym wyraźnie pokazują różnorodność jego lokalizacji.
Możesz także użyć kolumn, ekskluzywnych okien. Dodatkowa aranżacja tarasu lub werandy uszlachetni budynek, czyniąc go bardziej komfortowym. Aby zapewnić komfortowe letnie wakacje, tworzenie balkonu nie będzie zbyteczne.
Na uwagę zasługuje projekt domu z poddaszem użytkowym (na zdjęciu wyraźnie to widać), w którym garaż przykryty jest płaskim dachem, stanowiącym podstawę tarasu.Estetykę i elegancję projektu zapewnia umiejętne połączenie materiałów wykończeniowych. Dużej rodzinie spodoba się przestronny domek ze strychem zwieńczonym spadzistym dachem, co zapewnia maksymalne docelowe wykorzystanie poddasza.
Przed podjęciem decyzji o konkretnej opcji należy szczegółowo przestudiować różne projekty, w których w planie domu z poddaszem użytkowym i garażem prezentowane są wszelkiego rodzaju warianty wewnętrznego układu pomieszczeń. Doświadczeni specjaliści dostosują wybraną zabudowę do konkretnego regionu i dokonają niezbędnych zmian w oparciu o życzenia klienta.
















