Moderné domy sú vďaka plastovým oknám, vonkajšej a vnútornej izolácii dosť vzduchotesné. Na jednej strane je to dobré, ale na druhej strane to sťažuje vstup čerstvého vzduchu do domu, jeho vetranie sa čiastočne zastaví alebo úplne chýba. Na nápravu situácie musí vlastník bytovej budovy vypracovať schému vetrania v súkromnom dome vlastnými rukami alebo kontaktovať špecialistov na usporiadanie ventilačného systému v súkromnom dome, ktorého schéma bude zabezpečená projektom.
Správne vetranie v súkromnom dome zabraňuje tvorbe kondenzácie, šíreniu plesní a plesní a vytvára priaznivú mikroklímu pre obyvateľov. Vetranie by malo byť zabezpečené nielen v obývacích izbách, ale aj v technických miestnostiach: kúpeľne, kuchyne, toalety, pivnice, kotolne.
Rozlišujte medzi prirodzeným a núteným vetraním v súkromnom dome. Niektoré systémy je možné inštalovať ručne.
Obsah
Vytvorenie schémy vetrania prírodného typu v súkromnom dome vlastnými rukami
Prirodzené vetranie v súkromnom dome spočíva v tom, že do stien sú položené špeciálne kanály, ktorými cirkuluje vzduch vo všetkých miestnostiach, ako aj v oblasti krbu. Vďaka rôznej hustote teplého a studeného vzduchu dochádza k prirodzenému pohybu prúdenia vzduchu.

Schéma vetrania v dvojposchodový dom
Schéma prirodzeného vetrania v súkromnom dome zobrazuje umiestnenie zvislých vzduchovodných potrubí, ktoré sa začínajú vo vetranej miestnosti a vedú až k hrebeňu na streche.
Aby bolo možné prirodzené vetranie v súkromnom dome vlastnými rukami, je potrebné položiť kanál s časťou 140 mm v stene (zvyčajne ložiskový). Tu je dôležité, aby hrúbka muriva výfukového potrubia bola jedna a pol tehly. Ak je hrúbka kanála menšia, je možný účinok spätného ťahu. Rúrka by mala končiť nad hrebeňom, čo tiež zabezpečí dostatočnú trakciu. Z tohto kanála sú usporiadané vodorovné ohyby pre miestnosti, ktorých priemer je 100 mm. Z plastových rúrok môžete urobiť ventilačné vedenie v súkromnom dome.
Vetranie vlastnými silami v súkromnom dome, schéma a výpočet parametrov systému je úplne uskutočniteľný proces, ktorý podlieha dodržiavaniu pravidiel a odporúčaní.
Vetranie súkromných domov núteného typu
Systém núteného vetrania v súkromnom dome je nevyhnutný tam, kde prirodzené vetranie nie je schopné zabezpečiť úplnú obnovu vzduchu. Najčastejšie sú potrebné ventilačné zariadenia v kotolniach, kúpeľniach, toaletách a kuchyniach. Zariadenia, pomocou ktorých sa vykonáva nútené vetranie, sú Fanúšikovia a kukly.
Užitočná rada! Nútené vetranie odstraňuje z miestnosti nepríjemný zápach a prebytočnú vlhkosť. Preto, ak chcete zabrániť tomu, aby v kúpeľni rástli plesne alebo plesne, určite dbajte na vetranie takýchto miestností.
Nútená výmena vzduchu môže byť organizovaná pomocou schémy vetrania v súkromnom dome. Schéma môže predpokladať prítomnosť nástenného ventilátora, ktorý je nainštalovaný na začiatku vzduchového potrubia. Aj keď je ventilátor ložiska odolnejší, počas prevádzky vydáva veľa nepríjemného hluku. Zariadenia s priechodkami fungujú oveľa tichšie, čo je navyše lacnejšie.
Vlastnosti vetrania v kuchyni
Na kuchynský priestor majú vždy vplyv vône. Výmena vzduchu tu musí prebiehať neustále, a preto musí byť nútené vetranie, ktoré je pri varení nevyhnutné, potrebné posilniť stabilným prirodzeným spôsobom výmeny vzduchu.
Hood inštalovaný nad sporákom. Toto je najefektívnejší spôsob extrakcie vzduchu v tejto miestnosti, pretože pri varení určitých jedál vzniká teplo a para so zodpovedajúcim zápachom. Na plastových oknách sa tvorí kondenzácia.
Pri inštalácii odsávača vlastnými rukami je dôležité inštalovať ho v optimálnej efektívnej vzdialenosti od sporáka. Pre plynové sporáky to je 0,75 m, pre elektrické - 0,65 m.
Niekedy sa v kuchyni používa napájacia jednotka. Je súčasťou systému prívodu a odvodu vzduchu a podporuje účinnú výmenu vzduchu. Tento systém bude fungovať správne s dostatočnou funkciou trakčného kohútika. Preto je pri použití vzduchotechnickej jednotky dôležitá kontrola ťahu vo vetracom potrubí. V opačnom prípade sa prúd privádzaného vzduchu jednoducho zmieša s použitým vzduchom a rozšíri sa do ďalších miestností.
Príklady a vysvetlenia videa na ventilačnom zariadení v súkromnom dome s vlastnými rukami nájdete na internete.
Dôležitosť zabezpečenia prúdenia vzduchu
Schéma vetrania v súkromnom dome s vlastnými rukami by mala poskytovať nielen drenáž, ale aj prúdenie vzduchu v dostatočnom množstve. Ak sa o to nestaráte, môžeme predpokladať, že dom nemá správne vetranie. Tesnosť okien a dverí sa stáva dôvodom, že v dome prestáva fungovať prirodzené vetranie a je pozorovaný proces stagnácie vzduchu. Práca s nútenou výmenou vzduchu navyše spôsobí opačný efekt, keď sa cez kanály prírodného odpadového vzduchu začne pohybovať v opačnom smere spolu so všetkými hromadeniami prachu.
Súvisiaci článok:
|
Pravidlá organizácie ventilačného systému by mali brať do úvahy skutočnosť, že moderné okná a dvere neprepúšťajú čerstvý vzduch do priestorov, ako tomu bolo predtým. Nemajú tie medzery, ktoré im dovoľovali zastarané štandardy SNiP. Aj pri dobre usporiadanom ventilačnom systéme môže dôjsť k uviaznutiu vzduchu v dome, čo je hlavným znakom toho, že v ňom nedochádza k cirkulácii vzduchu.V takýchto miestnostiach sa vytvára pretrvávajúci technický a toxický zápach, ktorý pochádza z lepidla, tapiet, linolea a iných stavebných a nábytkových materiálov. Môže sa objaviť vlhkosť a kondenzácia.
Pre jasnosť sa môžete oboznámiť s príkladmi ventilačného zariadenia v súkromnom dome vlastnými rukami (videonávody sú k dispozícii na internete).
Ktorú možnosť vetrania pre súkromný dom by ste si mali zvoliť?
Schéma vetrania v súkromnom dome s vlastnými rukami by mala byť vypracovaná podľa výpočtu všetkých potrebných parametrov. Vetranie sa počíta na základe údajov o ploche vetraných priestorov a počte osôb v nich. Výmena vzduchu sa vykonáva rýchlosťou 10 m3 za hodinu na osobu.
Aké systémy výmeny vzduchu sú ponúkané v súkromných domoch? Ako kompetentne a funkčne zabezpečiť prirodzené vetranie, aby sa nezhromažďoval kondenzát, vlhké steny a vzduch zostával vždy čerstvý?
K dispozícii sú nasledujúce spôsoby vetrania:
- systém prirodzeného vetrania;
- prívodný a výfukový ventilačný systém;
- kombinovaný ventilačný systém (keď sa k prirodzenému pripojí prívod a výfuk).

Zabezpečenie vetrania pomocou potrubný ventilátor
Voľba inštalácie ventilačného systému v súkromnom dome pre domácich majstrov závisí od mnohých faktorov. Jedná sa o stav životného prostredia, výrobné materiály, stavbu domu a nakoniec finančné možnosti majiteľa.
Existujú miestnosti, kde ďalšie inštalácie pomôžu vyrovnať mikroklímu. Kombinovaný ventilačný systém doma preto poskytne optimálny výsledok.
Systém prívodu a odsávania vetrania v súkromnom dome
Napriek skutočnosti, že schéma vetrania v súkromnom dome s vlastnými rukami sa môže javiť ako príliš jednoduchá, so správnym prístupom k jeho organizácii poskytne pohodlné podmienky v dome.
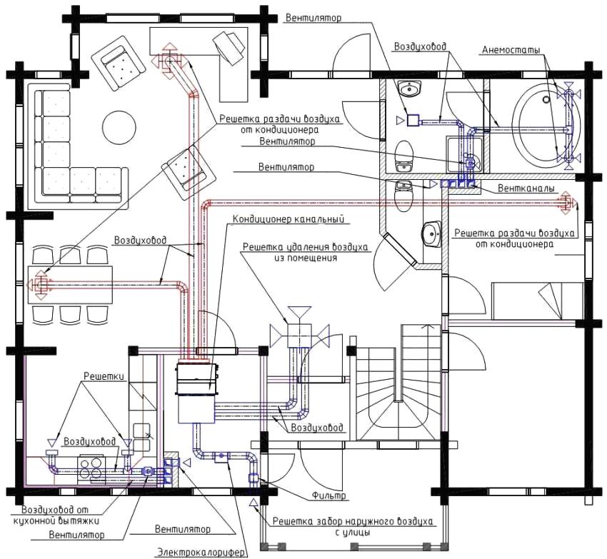
Za najvhodnejší ventilačný systém pre súkromný dom sa považuje prívodné a výfukové vetranie, pri ktorom sú nútené prívod a odvod vzduchu. Pri inštalácii ventilačného systému vlastnými rukami je potrebné vypočítať požadovanú výmenu vzduchu, určiť miesto inštalácie zariadenia (zvyčajne sa používa suchá technická miestnosť) a načrtnúť umiestnenie otvorov pre prívod a výstup vzduchu. V protiľahlých rohoch miestnosti sú umiestnené otvory na prívod a odvod vzduchu. Do otvoru je vložená rúrka, ktorá je z vonkajšej strany uzavretá mriežkami. Z vnútornej strany je nainštalovaný spätný ventil. Vzduchotechnická jednotka je upevnená na vybranom mieste, ventilačné kanály sú k nej pripojené pomocou kovových svoriek. Pre vzduchovody sa používajú pružné rúry.
Potrubie na vetranie v súkromných domoch môžete použiť plast alebo hliník. Pomocou spojovacích prostriedkov sú kanály vedené do miestností celého domu. Vzduchové kanály sú zvyčajne umiestnené nad zavesenými stropmi. Vývod pre potrubné potrubie je zakrytý ventilačnými mriežkami.
Užitočná rada! Pomocou ventilátora vo vzduchotechnickej jednotke je možné dosiahnuť zvýšenie rýchlosti odstraňovania znečisteného odpadového vzduchu.
Prívodný a výfukový systém môže byť vybavený rekuperátorom tepla, ktorý ohrieva vzduch prichádzajúci z ulice. Ďalšou možnosťou napájacieho a výfukového vetrania je prívodný a výfukový systém s klimatizáciou. Pomocou takejto vzduchotechnickej jednotky sa teplý vzduch ochladzuje.
Systém vetrania kúpeľne v súkromnom dome
Pri vybavovaní ventilačného systému vlastnými rukami v kúpeľni je potrebné mať na pamäti, že počas používania kúpeľne tam dochádza k nadmernej vlhkosti, objavuje sa kondenzácia. Kovové časti a prvky, ktoré zhromažďujú kondenzáciu v kúpeľni, začnú hrdzavieť.
Projekt vetrania kúpeľne by mal byť zabezpečený týmto projektom. Jedná sa o zariadenie ventilačnej šachty, ktorej vstup je zo strany vane uzavretý roštom. Privádzaný vzduch môže vstupovať do kúpeľne cez otvorené prieduchy a medzeru medzi dverami a podlahou. Prirodzené vetranie zaisťuje v kúpeľni optimálnu vlhkosť a teplotu.
Užitočná rada! Ak sa kúpeľňa nachádza v druhom alebo treťom poschodí domu, používa sa nútené vetranie, aby sa vylúčila vlhkosť a kondenzácia. Tento systém používa ventilátor.
IN kombinované kúpeľne a kúpeľne sa v súkromnom dome používa vetranie splaškov. Existuje niekoľko možností na inštaláciu ventilačných potrubí pre takéto miestnosti. Jedným z nich je vedenie ventilačného potrubia po stene domu. Takéto potrubie bude vyzerať ako odtoková rúra. Dĺžka vetracieho potrubia by mala byť taká, aby jeho začiatok bol nad strešnou krytinou. Odporúča sa použiť priemer potrubia 11 cm Kompletné a podrobné pokyny nájdete vo videomateriáloch o inštalácii vetrania v kúpeľniach.
DIY zariadenie na vetranie suterénu v súkromnom dome
Suterénna izba v súkromnom dome sa často používa na domáce potreby. Aby sa zabránilo vlhkosti a kondenzácii na stenách, je potrebné vetranie v suteréne súkromného domu. Pomocou vlastných rúk môžete zariadiť jednoduché vetranie vyrazením otvorov na opačných stranách základne. Zakryte ich mrežami, aby sa hlodavce nedostali do suterénu.
Lepšie vetranie suterénu je možné dosiahnuť pomocou potrubí. Na inštaláciu budete potrebovať dve rúry (s priemerom 8-15 cm), mriežky, prístrešky, ktoré chránia pred zrážkami, tepelná izolácia. Jeden koniec prívodného potrubia je inštalovaný do otvoru v stene vo vzdialenosti 25-35 cm od podlahy suterénu. Horný koniec potrubia je vyvedený cez sokel a umiestnený pozdĺž steny. Dĺžka vonkajšej časti potrubia by mala byť 50 - 60 cm Pre estetickejší vzhľad je možné potrubie zneviditeľniť.
Prívodné potrubie musí byť inštalované do otvoru v strope suterénu. Ak sa suterén používa na skladovanie potravín, odporúča sa umiestniť potrubie do ich bezprostrednej blízkosti. Potrubie zo suterénu je vyvedené cez všetky poschodia a končí vo výške 40 - 60 cm od strechy. Je potrebné poznamenať, že v súkromných domoch bude kondenzácia vo vetraní vytvorenom v komíne odvádzať do suterénu. Preto je v suteréne umiestnená nádoba, do ktorej sa zhromažďuje kondenzát. Potrubie na vetranie môže byť plastové alebo azbestocementové.
Na internete nájdete rôzne schémy vetrania v súkromnom dome. Je oveľa jednoduchšie vykonať inštaláciu podľa schémy vlastnými rukami. Video vám povie o možnostiach inštalácie ventilačných systémov v suteréne súkromného domu.
Systém vetrania v kotolni súkromného domu
Pri inštalácii vetrania vlastnými rukami v kotolni je potrebné vziať do úvahy väzbu ventilačných prvkov na umiestnenie vykurovacieho zariadenia. Pre kotolňu je možné použiť prirodzené alebo nútené vetranie.
Užitočná rada! Ak vaša kotolňa má kotol na tuhe palivo, odporúča sa inštalovať nútené vetranie.
Usporiadanie potrubí vzduchovodu v kotolni môže byť vertikálne alebo horizontálne. Horizontálne vzduchové kanály v kotolni by však zároveň nemali obsahovať ohybové časti a mali by sa inštalovať iba v prípade núteného vetrania. Pre prirodzené vetranie môže byť vzduchové potrubie kotla zvislé a dlhé najmenej tri metre.
Kombinované vetranie je optimálny ventilačný systém v kotolni. Ak v kotolni prestane fungovať nútené vetranie, čiastočne ho nahradí prirodzené vetranie.
Vybavením vášho domu účinným ventilačným systémom zabezpečíte dlhodobú prevádzku konštrukcie domu a svoje zdravie.
Vetranie v súkromnom dome (video)


















