Pri výbere textílií pre okná v byte sa nemôžete zaobísť bez takého vnútorného prvku, ako sú tyče na závesy na stenách. Fotografie existujúcich odrôd demonštrujú originalitu prezentácie okenného otvoru v interiéri. Mnoho možností na vykonanie ríms vám umožňuje zvoliť si jedinečnú a skôr funkčnú možnosť, ktorá nielen poteší oko, ale slúži aj pomerne dlho.
Obsah
Nástenné závesové tyče. Fotografie a pohľady
Moderní výrobcovia majú obrovskú škálu stenových ríms. Závesné systémy tohto druhu umožňujú vydržať zložité kompozície pozostávajúce z veľkého počtu vrstiev. Pre bohaté a ťažké tkaniny s lambrequins sú vhodné pohodlné rímsy s trojradovým riadkom, ktoré umožňujú dodatočné zafixovanie tyl... Flexibilné verzie systémov montáže na závesy sú celkom funkčné a ľahké. Zvyčajne sa používajú v arkierových oknách, kde majú steny veľa oblúkov.

Rímsa pre záclony a zároveň hrací prvok v detskej izbe
Drevené rímsy
Takéto systémy upevnenia záclon sú dosť rozšírené, pretože sa považujú za ekologické. Na ich výrobu sa používajú známe dreviny. Môže to byť čerešňa, dub, orech alebo iné, v závislosti od možných preferencií kupujúceho.
Drevo používané na výrobu záclonových tyčí má zvyčajne pozdĺžne vlákna. Pri vytváraní originálnych návrhov veľmi vyniknú. Výrobcovia sú pripravení ponúknuť systémy, ktoré vydržia jednu až tri vrstvy látky. To bolo možné pomocou pripevnenia ďalších radov k rímsam pomocou plastových svoriek.
Kovové rímsy
Originálne vyzerajú aj kovové tyče na závesy na stenu. Fotografie jedinečných dizajnérskych prác vrátane dekorácie tohto prvku interiéru prekvapujú svojou jedinečnosťou. Dizajn takýchto výrobkov je dosť rozmanitý. Prichádzajú v takmer akomkoľvek metalickom odtieni. Bohaté zlato, strohá mosadz - akékoľvek možnosti sú dekorácie interiéru. Rímsy s kovacími prvkami vyzerajú jednoducho čarovne.Jedinečné, takmer skutočné kvety alebo strapce hrozna sa stanú skutočnou ozdobou klasických záclon.
Hliníkové systémy robia svoju prácu dobre. Ich hmotnosť je pomerne malá, ale cena je úplne demokratická, na rozdiel od nákladov na mosadzné alebo oceľové rímsy. Vďaka svojej ľahkosti a vysokej pevnosti sa hliník čoraz viac udomácňuje na trhu s podobnými výrobkami.
Plastové záclonové tyče
Ďalšou lacnou možnosťou sú plastové tyče na závesy na stenách. Fotografie takýchto jednoduchých systémov demonštrujú možnosť ich inštalácie aj v zložitých architektúrach a usporiadaní. Pružné konštrukcie sa dajú použiť aj na okenné otvory neobvyklého tvaru. Jedinou nevýhodou takýchto výrobkov je ich nízka pevnosť. Pod ťarchou ťažkých záclon sú náchylné na zmenu tvaru, preto si vyžadujú pravidelnú výmenu.

Plastová záclonová tyč vhodná na podporu pľúc záclony šifón alebo organza
Druhy prevedenia ríms
Existuje niekoľko radikálne odlišných typov stenových ríms. Najčastejšie nájdete okrúhle štruktúry pozostávajúce z dutej rúrky. Zvyčajne sú určené pre ťažké závesy. Takéto systémy vydržia viacvrstvové záclony s lambrequins a inými dekoratívnymi prvkami.
Profilové systémy sa považujú za nemenej bežné. Tieto konštrukcie majú špeciálne pneumatiky, ku ktorým sú pripevnené prvky, ktoré pohybujú látkou. Často sú vyrobené z plastu a hliníka, sú ľahké a dobre držia akékoľvek závesy.
Rímsy bagety svojím dizajnom pripomínajú profilové systémy. Sú dosť flexibilní. Môžu byť použité v miestnostiach s mnohými uhlami alebo naopak v zaoblených miestnostiach. Ozdobný pás je hlavným poznávacím znakom takýchto tyčí na záclony na stenách. Fotografie rôznych verzií takýchto závesných systémov vám pomôžu vybrať skutočne krásnu a neobvyklú rímsu, ktorá sa stane nezabudnuteľným prvkom výzdoby každej miestnosti.
Tyčová záclonová tyč je jednou z dlho používaných odrôd tyčovej záclonovej steny. Fotografie takýchto systémov, ako aj pokyny na ich inštaláciu, demonštrujú jednoduché použitie ríms s reťazcami. Možno usporiadať pre jednu až tri záclony. Jedinou nevýhodou je, že sa pod ťažkými tkaninami struna ohýba a nemusí vydržať.
Užitočná rada! Na veľmi ťažké a veľké záclony môžete použiť elektrické záclonové tyče.
Vlastnosti výberu spojovacích materiálov
Pred inštaláciou rímsy steny musíte rozhodnúť o spojovacích prvkoch. V závislosti od materiálu rímsy môžu mať tieto detaily obrovský rozdiel. Tiež výber spojovacích prvkov je ovplyvnený hmotnosťou budúcich záclon a kvalitou stien v miestnosti.
Súvisiaci článok:
|
Pre tehlové stenové panely sa najčastejšie používajú korkové zátky. Vyrezávajú si ich sami z dreva. Je vhodné sa rozhodnúť pre živicové horniny, potom budú rímsy trvať oveľa dlhšie.Takáto zátka je zatĺkaná do otvoru predvŕtaného do steny a až potom je k nej pripevnená rímsa pomocou bežnej samoreznej skrutky.

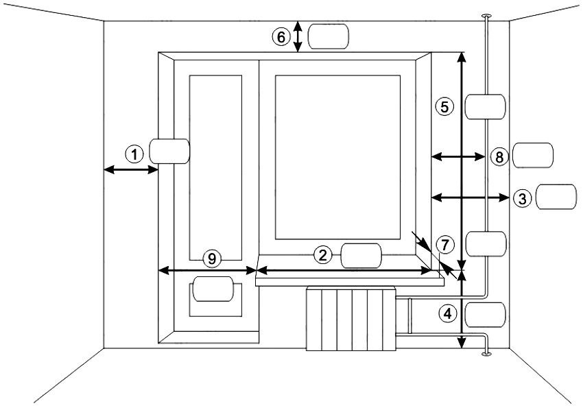
Šablóna veľkosti pre výber rímsy a záclon: 1 - vzdialenosť od ľavého rohu k oknu, 2 - šírka okna, 3 - vzdialenosť od okna k pravému rohu, 4 - výška okenného parapetu, 5 - výška okna, 6 - vzdialenosť od okna k stropu, 7 - vzdialenosť od steny k okraju parapetu, 8 - vzdialenosť od okna k vykurovacej rúre, 9 - šírka balkónových dverí
Ak sú steny staré a vyrobené z betónu, ktorý sa časom začne maľovať, je lepšie zakúpiť si plastové hmoždinky, ktoré sa nazývajú motýľ. Po inštalácii sa steny dielu pohybujú od seba v štyroch smeroch a nedovoľujú, aby držiak vypadol.

Dodatočné upevnenie v strede rímsy nielen zvyšuje jej pevnosť, ale slúži aj ako obmedzovač pri zatváraní závesov
Užitočná rada! Steny zo sadrokartónu nie sú určené pre odkvap. Sadra nemusí uniesť váhu konštrukcie.
Niektoré pravidlá pre inštaláciu ríms
Pri dodržaní jednoduchých pravidiel a niektorých jemností pri inštalácii ríms môžete rýchlo opraviť štruktúru bez toho, aby ste volali majstra. Tu je niekoľko tipov na inštaláciu:
- dĺžka rímsy by mala byť o 30-50 cm väčšia ako šírka okna;

Visí záclony na držiakoch ríms pomocou kovových háčikov
- ak je závesný systém namontovaný priamo nad oknom, potom musíte nechať asi 5 cm od horného okraja okna, aby závesy nezasahovali do jeho otvárania;
- medzi závesmi a stenou by mala byť ponechaná vzdialenosť asi 10 cm, čo je nevyhnutné pre voľný pohyb vzduchu z vykurovacích radiátorov do miestnosti.















