Ang mga nagsasarili na solidong boiler ng gasolina para sa pagpainit ng isang pribadong bahay na tumatakbo sa kahoy, karbon, coke, pit, pellets, briquette, granules, at gumagamit ng gawaing kahoy at basura sa agrikultura. Ang eco-friendly heat generator ay hindi nakasalalay sa sentralisadong gas at supply ng kuryente. Pinagbubuti ng mga pinagsamang modelo ang kalidad ng pangunahing mapagkukunan ng reserba, dagdagan ang kahusayan, at bawasan ang gastos ng sistema ng pag-init.

Ang isang solidong fuel boiler ay magbibigay ng pagpainit at suplay ng mainit na tubig para sa isang pribadong bahay
Nilalaman
Solid fuel boiler para sa pagpainit ng isang pribadong bahay: mga tampok sa disenyo
Materyal para sa paggawa ng mga yunit: cast iron o mataas na lakas na boiler steel. Ang mga katangian ng materyal ay nakakaapekto sa buhay ng serbisyo at thermal inertia ng istraktura. Ang mga steel boiler ay may mataas na paglaban sa pagpapapangit sa ilalim ng presyon at pagbabago ng temperatura. Ang cast iron ay lumalaban sa kaagnasan.
Ang mga pakinabang ng mga boiler ng bakal: makatuwirang presyo, hitsura ng aesthetic, maginhawang pagkarga. Mga kalamangan ng kagamitan sa cast iron: pagiging simple sa pagpapatakbo (hindi sila nangangailangan ng espesyal na paghahanda ng tubig ng boiler), tibay, ang kakayahang magbigay ng init sa loob ng mahabang panahon.
Ang mga yunit ng cast iron ay pinili para sa mga bahay na may permanenteng paninirahan ng mga tao. Para sa mga cottage ng tag-init at mga bahay sa bansa na may pana-panahong paninirahan, ginagamit ang mga boiler ng bakal.
Ang kumpletong hanay ng mga generator ng init ay nahahati sa solong o doble-circuit na disenyo. Ang isang circuit ay nagbibigay ng isang solidong fuel boiler para sa pagpainit ng isang pribadong bahay. Pinapayagan ng dalawang independiyenteng singsing ang pagpainit ng silid at pagbibigay ng mainit na tubig.
Ang pagpapakandili ng enerhiya ay dahil sa kagamitan ng yunit na may sapilitang sistema ng suplay ng hangin para sa pagkasunog o awtomatikong pagkarga ng gasolina.
Sa oras ng pagkasunog ng gasolina, nakikilala ang tradisyonal at pyrolysis heating boiler. Ang mga tagabuo ng gas ay nagbibigay ng pangmatagalang agnas ng gasolina sa paglabas ng init, na nangyayari kapag may kakulangan ng oxygen. Ang ilang mga modelo ay nagbibigay para sa paglo-load ng solidong fuel boiler para sa mahabang pagsunog isang beses sa isang linggo.
Mga boiler ng pyrolysis ay hinihingi ng mamimili dahil sa independiyenteng enerhiya, pangkabuhayan na pagkonsumo ng gasolina, pagkamagiliw sa kapaligiran at mataas na kahusayan.
Panuntunan ng tsimenea para sa solidong fuel boiler
Ang mga karagdagang kinakailangan para sa samahan ng tsimenea ay ipinahiwatig ng tagagawa ng boiler sa teknikal na dokumentasyon. Ang sapilitan na pagsunod sa mga rekomendasyon ay kinakailangan upang mapanatili ang isang matatag na proseso ng pagkasunog, ligtas at mahusay na pagpapatakbo ng yunit.
Kaugnay na artikulo:
Solid fuel boiler para sa mahabang pagsunog sa isang circuit ng tubig para sa bahay. SAmga id, aparato at prinsipyo ng pagpapatakbo ng mga solidong fuel boiler. Mga boiler ng pyrolysis. Pamantayan sa pagpili ng boiler.
Ang mga boiler fired boiler ay nilagyan pangunahin sa mga ceramic chimney na maaaring makatiis ng temperatura hanggang sa 1200 ℃. Ang mga gas na tambutso ay hindi nag-iiwan ng mga deposito sa makinis na ceramic ibabaw. Ang matatag na istraktura ng materyal ay hindi napapailalim sa kaagnasan at hindi natatakot sa paghalay. Ang mga elemento ng isang duct ng hangin, isang layer ng pagkakabukod, pinalawak na luad na kongkreto na shell ay ginagamit para sa pag-install ng panloob at panlabas na mga seksyon ng tsimenea.

Ang mga ceramic tubo ay isang tanyag na materyal para sa pag-aayos ng tsimenea ng isang solidong fuel boiler
Ang mga metal chimney ay gawa sa bakal na lumalaban sa init, lumalaban sa kaagnasan, na makatiis ng temperatura na 800 ℃. Ang disenyo ng chimney na bakal ay isang tubo ng sandwich: isang layer ng thermal insulation ay matatagpuan sa pagitan ng panlabas at panloob na mga shell ng metal. Ang mga steel chimney ay tugma sa lahat ng mga uri ng solid fuel boiler. Ang isang sapilitan na sangkap ng isang bakal na tsimenea ay isang linear compensator ng pagpapapangit. Ang yunit ay kinakailangan upang mapanatili ang integridad at higpit ng tubing bushing sa pamamagitan ng bubong.
Ang mga repraktibong brick, tradisyonal para sa mga hearth, fireplace, heating stove, ay bihirang ginagamit para sa pagtula ng mga chimney. Ang pagtula ng brick ng isang tsimenea ay nangangailangan ng mga kasanayan at karanasan sa paggawa ng gawaing pugon.
Mga kinakailangan para sa pag-aayos ng mga chimney para sa solidong fuel boiler:
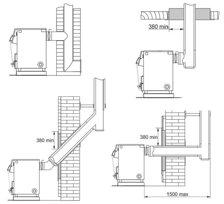
- ang cross-section ng tsimenea ay dapat na tumutugma sa laki ng tubo ng sangay ng boiler para sa nakakapagod na mga gas;
- ang taas, diameter, haba ng seksyon ng booster ng tsimenea ay ipinahiwatig sa teknikal na dokumentasyon ng boiler;
- ang patayo ng istraktura ay sinusunod anuman ang lokasyon ng tsimenea (ang pinahihintulutang haba ng mga sloped na seksyon ay hindi hihigit sa 1 metro);
- ang dobleng pader (insulated) na mga chimney na gawa sa mga metal na tubo ay ginagamit sa mga malamig na silid at labas (pinipigilan ng disenyo ang paglamig ng mga produkto ng pagkasunog, isang pagbawas sa draft at ang hitsura ng paghalay);
- sa mga seksyon ng pag-ikot ayusin ang mga hatches para sa paglilinis ng tsimenea;
- obserbahan ang mga distansya ng pag-iwas sa sunog sa pagitan ng tsimenea at mga nasusunog na istraktura;
- ang ulo ng tsimenea ay nilagyan ng isang deflector at isang spark aresto.
Mahalaga! Ang isang T-piraso na naka-install sa ibaba ng koneksyon sa pagitan ng boiler at tsimenea ay pumipigil sa condensate mula sa pagpasok sa silid ng pagkasunog.

Solid fuel boiler na may awtomatikong supply ng gasolina sa sistema ng pag-init ng isang pribadong bahay
Mga diagram ng kable para sa isang solidong fuel boiler ng pag-init
Ang direktang koneksyon ng boiler sa circuit ng pag-init ay mapanganib dahil sa pagbuo ng mga pagkakaiba sa temperatura sa heat exchanger. Kapag naabot ang estado ng "dew point", ang mga form ng condensate sa loob ng silid ng pagkasunog. Ang agresibong kapaligiran ay nagtataguyod ng mga reaksyon ng oxidative, ang pagbuo ng mga deposito at ang pagkawasak ng panloob na mga ibabaw ng generator.
Mahalaga! Ang pagkawalang-kilos ng solidong proseso ng pagkasunog ng gasolina ay isang tampok na dapat isaalang-alang kapag kumokonekta sa boiler sa piping. Ang hindi timbang at nabalisa na sirkulasyon ay maaaring humantong sa pagkulo ng tubig ng boiler at pinsala sa generator ng init.
Mga paraan upang ma-optimize ang pagpapatakbo ng isang solidong yunit ng gasolina:
- tangke ng imbakan ng init sa pagitan ng boiler at ng circuit ng consumer;
- separator ng haydroliko ng mga circuit (boiler at pangalawang);
- pangkat ng kaligtasan na may isang naaayos na balbula ng kaluwagan (malapit o sa boiler);
- tangke ng pagpapalawak (bukas o dayapragm);
- air vents upang alisin ang hangin mula sa system.
Mahalaga! Ang boiler ay konektado at piped lamang sa mga metal pipe. Ang perpektong pagpipilian ay isang scheme ng piping ng boiler ng pag-init ayon sa proyekto, na binuo ng mga espesyalista sa pag-init.

Diskarte sa piping ng solidong fuel boiler: 1 - tsimenea; 2- overhead termostat; 3 - solidong fuel boiler; 4 - pangkat ng kaligtasan ng boiler; 5 - elektrisidad o gas boiler; 6 - heat accumulator (buffer tank); 7 - three-way balbula na may isang electric drive; 8 - separator ng hangin; 9 - sirkulasyon ng bomba; 10 - three-way na paghahalo ng balbula; 11 - suriin ang balbula; 12 - patch sensor; 13 - make-up balbula; 14 - proteksyon laban sa dry running; 15 - tangke ng pagpapalawak; 16 - panlabas na temperatura sensor; 17 - awtomatikong nakasalalay sa panahon; 18 - regulator ng silid; 19 - radiator ng pag-init; 20 - sirkulasyon ng bomba; 21 - three-way na paghahalo ng balbula
Mga tatak na solidong fuel boiler na gawa sa Russia
Ang pagtatasa ng mga teknikal na katangian ay makakatulong upang makakuha ng isang pangkalahatang ideya ng mga solidong fuel boiler para sa mahabang pagkasunog. Ang mga pagsusuri ng consumer sa mga independiyenteng forum ay nagbibigay ng isang layunin na pagtatasa ng mga pagpapaunlad sa bansa.
Talahanayan 1. Solid fuel boiler Zota Mix at Pellet na ginawa ng kagamitan sa pag-init at planta ng pag-aautomat (Krasnoyarsk):

Talahanayan 1. Solid fuel boiler Zota Mix at Pellet na ginawa ng kagamitan sa pag-init at planta ng automation (Krasnoyarsk)
Mga kalamangan:
- Kahusayan ng mga boiler ng saklaw ng modelo ng Zota Mix - 80%, Pellet - 90%;
- Ang Zota Mix pinagsamang bakal solidong fuel boiler ay nagpapatakbo sa anumang uri ng fuel (liquefied o natural gas, elektrisidad, likidong fuel);
- ang silid ng pagkasunog at kahon ng abo ay matatagpuan sa loob ng water jacket;
- madaling iakma ang tsimenea ng tsimenea, regulator ng mekanikal na traksyon at pagsipsip ng hangin ng isang ejector, na naka-install sa pintuan ng pugon, tiyakin ang kumpletong pagkasunog ng gasolina na may kaunting draft;
- ang panlabas na ibabaw ng katawan ay natatakpan ng isang anti-kaagnasan polimer compound;
- ang naaalis na pinto sa likod ng front panel ay nagbibigay ng pag-access para sa paglilinis ng tambutso;
- ang posibilidad ng pagkumpuni.
Mga disadvantages:
- kailangan mo ng isang supply ng gasolina at isang lugar upang iimbak ito;
- mga gastos sa paghahatid, pagdiskarga at pag-iimbak ng kahoy na panggatong, karbon, mga briquette;
- pagbaba sa pagganap ng Zota Mix boiler kapag gumagamit ng mababang kalidad na gasolina (kayumanggi karbon ng 10 ÷ 20%, hilaw na kahoy na panggatong ng 60 ÷ 70%);
- para sa Zota Mix - manu-manong pagkarga ng gasolina, paglilinis ng ash pan, pader ng pugon, mga duct ng gas at tubo ng tambutso;
- sapilitan paghahanda ng tubig ng boiler (tigas hanggang sa 2 mg-eq / l);
- pag-install sa isang hiwalay na silid;
- para sa mga boiler ng linya ng Zota Mix, kinakailangan na mag-install ng isang nagtitipon ng init, isang maubos ng usok, isang boiler.
Talahanayan 2. Pinagsamang solidong patakaran ng gasolina na may isang circuit ng tubig (AKTV). Ang tagagawa Sibteploenergomash LLC (Novosibirsk):

Talahanayan 2. Pinagsamang solidong patakaran ng gasolina na may isang circuit ng tubig (AKTV). Tagagawa Sibteploenergomash LLC (Novosibirsk)
Mga kalamangan:
- bersyon ng badyet ng solidong fuel boiler na may isang circuit ng tubig para sa bahay (presyo 11,000 ÷ 25,000 rubles);
- laki ng siksik;
- ang isang water heat exchanger ay sumasakop sa firebox mula sa lahat ng panig (maliban sa harap);
- pull-out ash drawer;
- mounting socket para sa draft regulator;
- ang kakayahang kumonekta sa isang tsimenea ng anumang pagsasaayos;
- Pinapayagan ng steel heat exchanger ang pinasimple na koneksyon sa pagpainit ng tubo (nang walang paghahalo);
- ang disenyo ay inangkop upang gumana sa gas at elektrisidad.
Mga disadvantages:
- hindi napapanahong disenyo, mababang kalidad ng primitive na awtomatiko;
- ang mga teknikal na katangian na idineklara ng tagagawa (lakas, pinainit na lugar at kahusayan), ayon sa mga pagsusuri ng mga mamimili, ay hindi tumutugma sa mga tunay na tagapagpahiwatig.
Talahanayan 3. Solid fuel fuel pyrolysis boiler Bourgeois & K mula sa NPO TES LLC (Kostroma):
Mga kalamangan:
- nagbibigay ng matatag na pagkasunog ng gasolina ng anumang grado at antas ng kahalumigmigan;
- mahusay na pagpapatakbo ng boiler mula sa isang tab sa loob ng 8 oras;
- matipid na pagkonsumo ng gasolina;
- pagiging tugma ng generator sa natural o sapilitang sistema ng sirkulasyon;
- environmentally friendly unit, ang gasolina ay dumadaan sa isang kumpletong cycle ng pagkasunog nang hindi bumubuo ng mga nakakapinsalang emissions sa himpapawid;
- ang disenyo ng firebox ay nagbibigay ng isang exit sa isang mabisang operating mode sa loob ng 40 minuto.
Mga disadvantages:
- kumplikadong pag-install: ang koneksyon ay dapat gawin ng mga empleyado ng mga dalubhasang negosyo na lisensyado para sa ganitong uri ng aktibidad (kung hindi man ang warranty mula sa tagagawa ay hindi nalalapat sa yunit);
- manu-manong pagpuno ng gasolina at paglilinis ng silid ng pagkasunog;
- malaking timbang.

Ang pag-install at pagpapatakbo ng solidong fuel boiler ay dapat na isagawa alinsunod sa mga patakaran sa kaligtasan ng sunog
Para kay pagpainit ng isang cottage ng bansa, garahe o mga greenhouse posible na gumawa ng mga solidong fuel boiler para sa mahabang pagsunog gamit ang iyong sariling mga kamay. Ang mga video na may mga materyal sa paksang ito ay matatagpuan sa Internet. Ngunit tandaan na ang pangunahing kondisyon para sa paggamit ng kagamitan sa pag-init ay ang kaligtasan sa sunog. At ang isang sertipikadong tagagawa lamang ang maaaring magagarantiyahan ang katuparan ng kundisyong ito sa ilalim ng wastong kondisyon ng pagpapatakbo at pag-install ng kagamitan.















