Đối với nhiều người, sự hiện diện của một bồn tắm trong ngôi nhà mùa hè của họ sẽ có vẻ như là một điều xa xỉ. Nhưng nếu ngân sách cho phép bạn mua phòng xông hơi khô của riêng mình, tại sao không xem xét các lựa chọn thú vị hơn là sự kết hợp tiêu chuẩn giữa phòng xông hơi ướt và phòng giặt. Từ bài viết này, bạn có thể tìm ra những ưu điểm của bồn tắm có hồ bơi: dự án và các loại cấu trúc chính, đặc điểm của thiết kế và xây dựng các tòa nhà, ví dụ về các giải pháp thiết kế thành công.
Nội dung
Xông hơi với hồ bơi: dự án và các tính năng chính của nó
Nhiệt độ cơ thể thay đổi mạnh do nhúng người vào nước lạnh sau khi đến phòng xông hơi ướt có tác dụng tích cực đối với cơ thể. Việc nghỉ ngơi như vậy không chỉ giúp cải thiện tâm trạng mà còn tăng cường hệ thống miễn dịch. Do đó, trong bức ảnh của những phòng tắm đẹp, cùng với phòng thư giãn, phòng tắm và phòng giặt, bạn có thể thấy một hồ bơi hoặc các hồ chứa khác phù hợp tối ưu với không gian và tạo điều kiện lý tưởng để thư giãn hoàn toàn.
So với việc thiết kế một phòng tắm thông thường, lập kế hoạch cho một phòng tắm hơi có hồ bơi có vẻ là một công việc phức tạp hơn. Vì vậy, nên giao phó công việc này cho những người có chuyên môn.
Không phải căn phòng nào cũng có những điều kiện cần thiết để tạo ra một cấu trúc như vậy. Và điều này không chỉ áp dụng cho các dự án phòng tắm có hồ bơi dưới một mái nhà, nơi có cấu trúc âm tường được lắp đặt. Khó khăn nảy sinh ngay cả khi làm việc với các loại sản phẩm trên cạn. Thực tế là sự hiện diện của hồ bơi trong phòng khiến mức độ ẩm tăng lên đáng kể. Để hoạt động của bồn tắm được thoải mái và hoàn toàn an toàn, bạn sẽ phải chăm sóc chống thấm đầy đủ. Cần chống ẩm:
- những bức tường;
- sàn nhà;
- Trần nhà;
- dây điện.

Thiết kế nhà tắm có hồ bơi là một công việc khá khó khăn nên tốt hơn hết bạn nên giao phó cho các chuyên gia
Cần đặc biệt chú ý đến các dự án nhà tắm có hồ bơi làm bằng gỗ, vì gỗ không được chuẩn bị kỹ lưỡng sẽ nhanh chóng bị hư hỏng dưới tác động của độ ẩm.
Ghi chú! Hồ bơi được đưa vào quy hoạch ở giai đoạn phát triển dự án. Sau khi nhà tắm được xây dựng, sẽ không thể thêm nó vào công trình đã hoàn thiện, hoặc quy trình này sẽ quá tốn thời gian và tốn kém.
Đặc điểm của việc xây dựng khu phức hợp nhà tắm có bể bơi
Trong quá trình phát triển một dự án, bắt buộc phải suy nghĩ về các sắc thái như loại hồ bơi, loại nền móng phù hợp với công trình của nó, cũng như cách bố trí sẽ góp phần tạo ra các điều kiện vận hành tối ưu.

Xây dựng phức hợp nhà tắm bạn cần bắt đầu với một kế hoạch chi tiết
Nếu một hồ bơi nhỏ dưới dạng một cái bát nhựa được sử dụng để trang bị cho nhà tắm, các vấn đề xây dựng thường không phát sinh. Để lắp đặt cấu trúc, bạn sẽ cần đào một cái hố có kích thước thích hợp và đặt một thùng kín vào đó. Thông thường, các sản phẩm như vậy được trang bị hệ thống liên lạc có thể tháo rời, nhưng cũng có những loại cố định. Các dự án có bể bơi xếp tầng cần có sự tham gia của các chuyên gia có trình độ chuyên môn cao nên bạn không thể tự làm trong trường hợp này.
Trước khi bạn tạo một hồ bơi tĩnh trong bồn tắm, bạn sẽ cần tổ chức và kết nối hệ thống cấp nước và cống rãnh của riêng mình cho nó. Sẽ không còn có thể giới hạn chúng ta trong việc sắp xếp một cống thông thường, như trong một phòng giặt. Nhiệm vụ này còn phức tạp hơn bởi thực tế là đối với việc xây dựng hệ thống thoát nước địa phương, cần phải xin phép chính quyền địa phương.
Cách tự tạo hồ bơi: phát triển dự án
Khi thiết kế hồ bơi trong khu phức hợp nhà tắm, cần lưu ý một số điểm quan trọng:
- Khu vực vị trí hồ bơi. Một thùng chứa nước có thể được lắp đặt bên trong bồn tắm, trên đường phố, hoặc trong một căn phòng được chỉ định đặc biệt cho mục đích này.
- Điều khoản sử dụng. Nếu hồ bơi sẽ được sử dụng bởi người già và trẻ em, bạn cần phải xem xét cẩn thận độ sâu của nó, cũng như sự hiện diện của các yếu tố như đường xuống thuận tiện và tay vịn.
- Phòng trống. Trong các khu phức hợp nhà tắm, các thùng chứa nhỏ thường được lắp đặt nhiều nhất. Kích thước tối ưu của hồ bơi là 2x3 m, 2x2 m và 3x3 m.
Quyết định về việc lựa chọn hình thức, cũng như tỷ lệ kích thước của phòng tắm và hồ bơi, do chủ sở hữu đưa ra, dựa trên sở thích cá nhân. Một thùng chứa nước có thể có thành nhô lên, cấu trúc góc cạnh hoặc có thể được trang bị trong bồn tắm với cửa sổ toàn cảnh, từ đó bạn có thể quan sát vẻ đẹp của cảnh quan xung quanh.
Theo loại vị trí, các hồ bơi ngoài trời và trong nhà. Việc lựa chọn thiết kế phần lớn phụ thuộc vào kích thước của bồn tắm. Ngay cả một hồ bơi nhỏ cũng có thể được xây dựng thành một cấu trúc nhỏ gọn, nhưng đối với điều này, vẫn cần thiết phải cung cấp một phòng riêng trong thiết kế tòa nhà. Quyết định phụ thuộc vào việc chủ sở hữu của trang web đã sẵn sàng để cắt khu vực bên trong của bồn tắm. Nếu không, sẽ thích hợp hơn nếu lắp đặt hồ bơi bên ngoài tòa nhà.
Lời khuyên hữu ích! Nếu dự định lắp đặt hồ bơi trong nhà, để lắp đặt hồ bơi, bạn nên chọn phòng càng gần phòng xông hơi ướt càng tốt. Điều này được thực hiện để đường dẫn từ phòng nóng sang nước lạnh mất ít thời gian nhất có thể.
Các loại hồ bơi: ảnh và tính năng thiết kế
Các loại hồ bơi hiện có có thể được chia thành hai loại. Một số cấu trúc là di động (cái gọi là bồn tắm nước nóng di động), những cấu trúc khác là cố định. Các sản phẩm loại xách tay được đặc trưng bởi một hệ thống cài đặt đơn giản.Để sản xuất những chiếc bát như vậy, nhựa có độ an toàn cao hơn được sử dụng. Nhờ sử dụng các công nghệ hiện đại, các kết cấu hoàn toàn kín khít.
Phạm vi của các sản phẩm như vậy là khá đa dạng. Trong danh mục của các nhà sản xuất về hình ảnh bể tắm, bạn có thể thấy những chiếc bát nhựa có độ sâu, hình dạng và kích thước khác nhau. Nếu muốn, chủ sở hữu có thể xây dựng lại cấu trúc như vậy thành một hồ chứa nước nóng nhân tạo. Đối với những mục đích này, thiết bị đặc biệt được cung cấp. Đun nóng nước được thực hiện bằng các bộ phận làm nóng bằng điện. Thiết bị như vậy thường đi kèm với hướng dẫn, nơi nhà sản xuất đưa ra các khuyến nghị để lắp đặt.
Mái hiên thích hợp để bố trí hồ bơi ngoài trời. Được phép sử dụng một địa điểm riêng biệt cho những mục đích này, nhưng với điều kiện là nó phải nằm ngay gần bồn tắm. Đối với các cấu trúc của loại tĩnh, quá trình lắp đặt chúng phức tạp hơn trong thực hiện. Hệ thống văn phòng phẩm bao gồm:
- skimmer;
- vòi phun trở lại;
- hệ thống lọc và các yếu tố khác.
Nếu không có kinh nghiệm và các kiến thức liên quan, bạn sẽ rất khó để lắp đặt hồ bơi tĩnh trong nhà tắm. Trước khi tiến hành việc sắp xếp một cấu trúc như vậy, bạn chắc chắn sẽ phải vẽ ra một dự án chi tiết sẽ phản ánh tất cả các đặc điểm. Hơn nữa, cả bản thân hồ bơi và nhà tắm nói chung.
Quan trọng! Nên trang bị một bể bơi mini nước nóng do chính tay bạn làm trong nhà. Nếu một cấu trúc như vậy được đặt ngoài trời, chi phí đun nước nóng sẽ tăng lên đáng kể.
Xây dựng công trình nhà tắm chìa khóa trao tay có bể bơi: giá xây nhà hoàn thiện
Nhiều công ty xây dựng cung cấp các giải pháp làm sẵn cho chủ nhân của các ngôi nhà tranh mùa hè. Khi đặt hàng từ một công ty như vậy việc tạo ra một bồn tắm chìa khóa trao tay với một hồ bơi, bạn có thể tin tưởng vào chất lượng cao và thực hiện nhanh chóng, cũng như đảm bảo rằng cấu trúc sẽ tồn tại đủ lâu và đáp ứng tất cả các tiêu chuẩn và yêu cầu an toàn.
Chi phí bình quân của các dự án đã hoàn thành
| Tên dự án | Kích thước tòa nhà, m | Diện tích, m2 | giá, chà. |
| Dự án phòng xông hơi khô với hồ bơi và phòng thư giãn | 9,44x5,92 | 45,6 | 571500 |
| Xông hơi với hồ bơi và hiên nhà | 5,5x12,2 | 55,24 | 611400 |
| Phòng tắm có phòng thư giãn và hiên nhà | 6,4x11,8 | 68 | 737600 |
| Nhà tắm có hai lối vào | 9,4x11,8 | 74 | 796000 |
| Dự án phòng xông hơi khô với hồ bơi và sân thượng | 8,7x14,7 | 117,23 | 911400 |
| Bồn tắm góc | 12,2x13,5 | 121,1 | 925000 |
Cách làm bồn tắm bằng hồ bơi bằng tay của chính bạn: hướng dẫn từng bước
Đầu tiên bạn cần quyết định vị trí của hồ bơi. Trong trường hợp này, cần phải xây dựng trên kích thước dự định của bồn tắm. Nếu tòa nhà có đủ không gian trong nhà, hồ bơi có thể được bố trí bên trong tòa nhà trong một phòng riêng. Khi xây một bồn tắm nhỏ, bạn nên đặt một hồ chứa nhân tạo bên ngoài.
Bất kể kiểu lắp đặt nào được chọn, kích thước và thông số của hồ bơi được xác định ở giai đoạn phát triển dự án. Công việc đào móng được thực hiện trong quá trình bố trí phông sẽ dễ dàng hơn nhiều nếu nó được tiến hành ở giai đoạn đặt nền móng cho công trình.
Các chuyên gia khuyên bạn nên trang bị bể bơi cùng lúc với nhà tắm. Điều này được thực hiện vì lý do rằng việc đặt hệ thống thoát nước và cấp nước được thực hiện có tính đến đặc thù của việc đặt phông, và hoạt động của nó sẽ không hoàn thành nếu không có sự lưu thông liên tục của nước. Ngoài ra, chất lỏng bể bơi cần được làm sạch thường xuyên, vì vậy việc thiết kế hệ thống cấp và thoát chất lỏng phù hợp là rất quan trọng.
Giai đoạn đầu tiên của việc xây dựng nhà tắm có bể bơi: ảnh và mô tả công việc đào đắp
Sau khi hoàn thành các tính toán thích hợp và điều chỉnh tài liệu thiết kế, bạn có thể bắt đầu tiến hành đào đắp.Đầu tiên bạn cần đánh dấu địa điểm xây dựng.
Đối với điều này, bản vẽ từ dự án của phòng tắm hơi với hồ bơi được chuyển đến khu vực. Với những mục đích này, bạn có thể sử dụng các chốt bằng gỗ, được đóng vào các góc của tòa nhà trong tương lai và dọc theo chu vi của nó. Sau đó, một sợi dây chắc chắn được kéo giữa chúng.
Quan trọng! Trước khi bắt đầu đào hố, bạn cần quyết định loại thang trong hồ bơi. Nó có thể đứng yên (trong trường hợp này, cấu trúc trông giống như các bước được hình thành ở một trong các bức tường của phông chữ) hoặc nó có thể được đặt riêng biệt. Thông thường, chủ sở hữu chọn tùy chọn thứ hai để tiết kiệm không gian.
Sau khi hoàn thành việc đánh dấu vị trí xây dựng và đã nghĩ ra tất cả các điểm đi kèm, bạn có thể tiến hành công việc tốn nhiều công sức nhất - đào hố lắp đặt hồ bơi. Giai đoạn này có thể được thực hiện độc lập hoặc bạn có thể sử dụng thiết bị đặc biệt cho những mục đích này.
Bài viết liên quan:
Nhà tắm: giải pháp bố trí và tuyệt đẹp cho các tòa nhà nhỏ gọn
Phát triển một dự án với các thông số tối ưu, có tính đến kích thước của ngôi nhà mùa hè, nhu cầu của chủ sở hữu và số lượng người.
Khi đạt đến độ sâu cần thiết, một lớp đệm cát và sỏi phải được tạo thành dưới đáy hố. Sỏi (đá dăm) và cát được đổ theo từng lớp. Chiều dày tối ưu của mỗi lớp như vậy là 15 cm, trong quá trình thực hiện công việc này phải lu lèn cẩn thận. Để có kết quả tốt nhất, hãy rắc cát và sỏi với nước.
Lắp đặt ván khuôn cho bồn tắm có hồ bơi lớn và đổ sàn
Khi hố đã sẵn sàng, thành và đáy của nó được lát bằng vật liệu lợp. Để làm cho lớp phủ chắc chắn, các dải vật liệu cuộn được phủ chồng lên nhau từ 15-20 cm và các đường nối giữa chúng được xử lý bằng bitum nóng chảy hoặc vật liệu khác có đặc tính phù hợp. Đây là những gì công trình chống thấm chính trông như thế nào.
Tiếp theo, kết cấu ván khuôn được gắn kết. Đối với điều này, nó được khuyến khích sử dụng bảng. Vít thích hợp làm phần tử cố định. Việc lắp đặt ván khuôn dưới bồn tắm nước nóng được thực hiện gần giống như việc lắp đặt kết cấu đổ móng cho bồn tắm bằng củi có bể bơi. Chỉ có một ngoại lệ: chỉ phần bên trong cần được lắp ráp; các bức tường của hố sẽ thực hiện chức năng của ranh giới bên ngoài.
Sau đó, lớp vữa xi măng đầu tiên phải được đổ lên vật liệu lợp. Độ dày đề nghị là 10-15 cm, nên sử dụng xi măng M-400. Bạn có thể tự mình chuẩn bị dung dịch. Đối với điều này, một phần xi măng, 4-5 phần đá nghiền và 3 phần cát được trộn trong một thùng đặc biệt. Tất cả những thứ này được đổ đầy nước, lượng nước phải bằng khoảng 50% tổng khối lượng của hỗn hợp.
Khi lớp bê tông đầu tiên đông cứng, một lưới cốt thép được đặt lên trên, lưới này được tạo thành từ các thanh thép có đường kính 1-1,2 cm. Kích thước ô lý tưởng là 15x15 cm. Trong quá trình lắp ráp lớp cốt thép, các vùng mà các thanh giao nhau được kết nối bằng các kẹp nhựa đặc biệt. Dây đan cũng có thể được sử dụng cho những mục đích này.
Quan trọng! Lưới nên cao hơn mặt nền 5 cm. Để có được độ hở cần thiết, bạn nên sử dụng kẹp nhựa.
Phần thứ hai của dung dịch bê tông được đổ lên lớp cốt thép. Độ dày của lớp này nên là 10-15 cm.
Cách lắp đặt hồ bơi trong nhà tắm: đổ tường và chống thấm
Các bức tường của phông cũng cần được gia cố. Quy trình thực hiện quy trình này không khác với sơ đồ được sử dụng để tạo đáy của hồ bơi. Để loại bỏ khả năng có đường nối, các bức tường được đổ trong một lần.Nếu không, sức mạnh của cấu trúc sẽ bị nghi ngờ. Không khó để tính toán lượng hỗn hợp bê tông cần thiết để tạo ra các bức tường của hồ bơi trong bồn tắm bằng chính tay của bạn. Để làm điều này, bạn cần nhân với nhau các thông số của bát như chiều cao, độ dày và chiều dài của các bức tường dọc theo chu vi. Điều này sẽ cho phép bạn xác định dung tích khối cần thiết.
Khi bê tông sau khi đổ đã đông cứng và khô hoàn toàn thì bề mặt sàn và tường phải được chống thấm cẩn thận. Đối với điều này, một lớp vải địa kỹ thuật được trải ra, và sau đó là một lớp phủ, bao gồm một màng PVC. Kết quả là chống thấm đáng tin cậy và hiệu quả.
Sau khi thi công chống thấm xong, bể được phủ một lớp bột trét. Bạn nên sử dụng vật liệu làm từ silicone cho những mục đích này. Quá trình đăng ký phụ thuộc vào nhà sản xuất đã chọn. Hướng dẫn chi tiết được gửi kèm với mỗi gói bột trét. Để kết quả có chất lượng cao và bền, bắt buộc phải tuân theo các khuyến nghị này.
Ghi chú! Chuẩn bị cơ sở bằng cách áp dụng thạch cao sẽ tạo thuận lợi rất nhiều cho việc lắp đặt hoàn thiện. Do đó, công đoạn này không được loại trừ khỏi sơ đồ xây dựng chung.
Giai đoạn cuối cùng của quá trình xây dựng nhà tắm có bể bơi: hoàn thiện công việc
Sau khi đổ xong cần hoàn thiện tô hồ bơi. Nhiều loại vật liệu có thể được sử dụng cho những mục đích này. Trong ảnh của các nhà tắm, bên trong và bên ngoài, bạn có thể thấy các bể được phủ bằng màng PVC, trang trí bằng gạch sứ hoặc tranh ghép thủy tinh.
Việc lựa chọn chất liệu phụ thuộc vào túi tiền và sở thích cá nhân của gia chủ. Giá thành của một loại gạch làm từ sứ thấp hơn đáng kể so với giá của một bức tranh khảm. Ốp tường và sàn trong hồ bơi bằng vật liệu này dễ dàng và nhanh chóng hơn rất nhiều. Mặt khác, tranh ghép cho phép tạo ra một thiết kế độc đáo và không thể lặp lại. Trên cơ sở của nó, bạn có thể tạo ra các mẫu và đồ trang trí khác thường.
Đối với màng làm bằng polyvinyl clorua, nó được coi là dễ dàng nhất về công việc lắp đặt. Tuy nhiên, phạm vi của lớp hoàn thiện này bị hạn chế đáng kể, cũng như dải màu của nó.
Dự án phòng tắm hấp dẫn: ảnh phòng tắm xông hơi có hồ bơi
Cấu trúc của hồ bơi, cũng như hoàn thiện của nó, có thể có nhiều kiểu thiết kế khác nhau. Đối với việc xây dựng, nên sử dụng móng dải hoặc móng cột, mặc dù bê tông cũng phù hợp. Phương án thứ nhất được sử dụng trong trường hợp công trình, địa hình không có điều kiện phù hợp để lắp đặt các trụ đỡ.

Dự án phòng xông hơi khô với hồ bơi: sân thượng - 20,3 m², phòng thư giãn - 14,3 m², phòng xông hơi ướt - 5,2 m², hồ bơi - 21 m²
Đôi khi, vì lý do thiết thực, có thể sử dụng các loại nền móng khác. Ví dụ, nếu việc xây dựng một nhà tắm nhỏ được thực hiện trên một mái dốc, lựa chọn tốt nhất sẽ là một cấu trúc được giữ cố định bằng cọc vít. Để tạo ra một bồn tắm đẹp, nó được khuyến khích sử dụng một thanh. Vật liệu này có thể được định hình hoặc dán. Kích thước phần được khuyến nghị là 10x15 cm, nếu bồn tắm nằm ở vùng có điều kiện khí hậu khắc nghiệt thì nên tăng đường kính của gỗ lên 15x15 cm.
Dự án ban đầu về nhà tắm có hồ bơi và tiện nghi tiệc nướng trên sân hiên mở
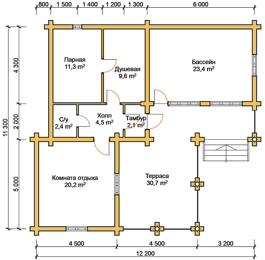
Một lựa chọn tuyệt vời để xây dựng một khu đất cỡ trung bình sẽ là phòng tắm hơi với sân hiên mở và hồ bơi. Kích thước của tòa nhà như vậy sẽ là 9,5x12m, để tiết kiệm không gian bên trong tòa nhà, hồ bơi được chuyển lên sân thượng cùng với khu giải trí (tiệc nướng).
Lời khuyên hữu ích! Bằng cách loại bỏ việc sử dụng tiện nghi tiệc nướng, bạn có thể sửa sang lại sân hiên, đồng thời có được một phòng riêng cho hồ bơi và hiên xinh đẹp với cửa sổ lắp kính để thư giãn sau khi tắm nước.
Lối vào nhà tắm từ sân hiên là qua hành lang, nơi du khách có thể để áo khoác ngoài. Nếu muốn, bên cạnh bà chủ có thể trang bị thêm phòng khách hoặc phòng nghỉ. Diện tích của dự án này cho phép bạn sắp xếp tất cả các phòng cần thiết để tạo sự thoải mái khi tắm:
- sảnh vào với tủ quần áo (3,33 m²);
- phòng khách hoặc phòng nghỉ (18,88 m²);
- phòng tắm (4,72 m²);
- lò (4,72 m²);
- phòng tắm (10,45 m²);
- phòng xông hơi ướt (11,74 m²).

Dự án phòng xông hơi khô với phòng xông hơi ướt, phòng rửa tay, phòng thư giãn, hiên và hồ bơi trên sân thượng mở
Lợi thế của một bồn tắm như vậy là sự hiện diện của một hành lang nhỏ (5,29 m²), kết nối các phòng bên trong. Do đó, không có phòng nào (ngoài phòng khách) là lối đi bộ.
Công trình ấn tượng về nhà tắm có hồ bơi: ảnh công trình quy mô lớn
Chủ nhân của những mảnh đất rộng rãi có thể đủ tiền để xây một nhà tắm lớn. Để thuận tiện, người ta mong muốn trang bị một cấu trúc như vậy với hai lối vào. Trong dự án 12x18 m, kỹ thuật này mới được thực hiện. Bạn có thể vào tòa nhà từ hai phía: từ hiên và từ sân thượng.
Lối vào từ hiên nhà dẫn đến một tiền đình nhỏ. Căn phòng nhỏ gọn này nằm giữa đường phố và các phòng khác hoạt động như một loại khóa gió không cho khí lạnh vào cấu trúc. Từ phòng nghỉ, bạn có thể đến bất kỳ điểm nào của bồn tắm. Sự sắp xếp các phòng này là tối ưu và cho phép bạn dễ dàng di chuyển bên trong tòa nhà, không gây bất tiện cho khách. Lối vào thứ hai từ đường là qua sân thượng. Gần một nửa tổng không gian được phân bổ cho việc lắp đặt bể tắm. Diện tích của hồ chứa nhân tạo là 62,46 m².
Lời khuyên hữu ích! Nếu cần thiết, kích thước của hồ bơi có thể được giảm bớt, và không gian trống có thể được sử dụng để trang bị phòng ngủ hoặc nhà bếp. Nhờ đó, bạn có thể sử dụng bồn tắm không chỉ để thư giãn mà còn có thể cư trú lâu dài hoặc tạm thời.
Có thể thu được nhiều cơ hội lập kế hoạch hơn bằng cách tăng diện tích hữu ích của phòng tắm bằng cách xây một tầng áp mái. Chi phí này sẽ ít hơn đáng kể so với việc xây dựng một tầng hai. Nhưng sẽ có thể tổ chức mặt bằng để tạo thêm sự thoải mái. Trên ảnh phòng tắm có gác mái bạn có thể thấy phòng ngủ hiện đại và ấm cúng, phòng chơi bi-a, phòng tập thể dục nhỏ với các thiết bị tập thể dục, v.v.
Bằng cách xây một tầng áp mái phía trên bồn tắm với kích thước 11x14 m, tổng diện tích bên trong có thể tăng lên 260 m². Trong trường hợp này, tầng hầm của tòa nhà sẽ được sử dụng để bố trí các phòng kỹ thuật. Ở tầng một, mong muốn trang bị các phòng chính:
- phòng thay đồ;
- phòng tắm;
- phòng tắm hơi;
- phòng nghỉ ngơi;
- phòng tắm.
Tầng áp mái có thể được sử dụng để chứa phòng tắm, phòng ngủ và nhà bếp. Các dự án quy mô lớn tốt ở chỗ có đủ không gian trống cho phép bạn tạo bố cục đáp ứng nhu cầu và mong muốn cá nhân của chủ sở hữu mà không cần tính đến cảnh quay.
Bể tắm có thể là gì: thiết kế và đặc điểm thiết kế
Cách đơn giản nhất để có được một phòng xông hơi ướt trong nước là chọn một dự án làm sẵn và thuê chuyên gia thực hiện. Nếu bạn muốn có được thứ gì đó nguyên bản, bạn sẽ phải làm việc chăm chỉ và tham gia vào việc phát triển một kế hoạch xây dựng một nhà tắm. Trong trường hợp này, bạn có thể nhận được một thiết kế thực sự độc đáo. Sân thượng, được trang trí dưới dạng một gờ trên tường - một cửa sổ lồi, trông khá bất thường. Nó có thể là hình bán nguyệt hoặc hình đa diện.
Tốt hơn hết bạn nên sử dụng hồ bơi mini trong các phòng xông hơi nhỏ gọn. Thể tích của các thùng chứa như vậy thay đổi từ 1 đến 6 m³.Chúng được làm bằng sợi thủy tinh, gỗ hoặc acrylic và có thể được lắp đặt cả bên trong tòa nhà và bên ngoài. Các hồ bơi có chức năng spa trông giống như những bồn tắm lớn được trang bị hệ thống mát-xa thủy lực. Chúng được bán làm sẵn và rất tuyệt để thư giãn, nhưng hoàn toàn không thích hợp để bơi lội và chơi dưới nước. Với những người yêu thích sự vận động, bể bơi có thiết kế đóng mở là phù hợp. Chúng bao gồm một khung mà trên đó một màng PVC được kéo căng.
Để tạo một khu phức hợp tắm để thư giãn với điều kiện lý tưởng trên một ngôi nhà nhỏ mùa hè, bạn chỉ cần chọn một cách có ý thức một hồ bơi và phát triển một cách chính xác một dự án để lắp đặt nó. Sự đa dạng của thị trường hiện đại và danh mục của các công ty xây dựng không chỉ cho phép lập kế hoạch xây dựng nhà tắm có hồ bơi một cách chính xác mà còn có thể triển khai dự án.





















