Thật khó để tưởng tượng điều kiện sống thoải mái mà không có nước nóng. Nhưng có rất nhiều phàn nàn về công việc của cấp nước. Nước nóng thường được cung cấp không liên tục cho các căn hộ trong các tòa nhà nhiều tầng ở các thành phố lớn. Trong trường hợp này, một lò hơi gia nhiệt gián tiếp sẽ giúp bạn: nguyên tắc hoạt động của thiết bị này khá đơn giản, và bạn có thể tạo ra nó ngay cả bằng tay của mình. Nhưng bạn phải ngay lập tức nói: cái gì, thiết bị như vậy cung cấp kết nối với hệ thống sưởi.

Lò hơi gia nhiệt gián tiếp cho phép bạn tiết kiệm điện khi sử dụng chất mang nhiệt của hệ thống sưởi
Nội dung
- 1 Lò hơi gia nhiệt gián tiếp là gì và nó dùng để làm gì
- 2 Kết nối nồi hơi lưu trữ với nồi hơi gas
- 3 Tự làm lò hơi gia nhiệt gián tiếp
- 4 Bộ tích lũy nhiệt để đun nóng nồi hơi: các tính năng và kết nối của thiết bị
- 5 Làm thế nào để mua một lò hơi gia nhiệt gián tiếp đúng cách: các khuyến nghị và các mô hình phổ biến
- 5.1 Đặc điểm của lò hơi gia nhiệt gián tiếp Proterm 200 lít Protherm B200S
- 5.2 Đặc điểm của lò hơi gia nhiệt gián tiếp Dražice
- 5.3 Đặc tính kỹ thuật của lò hơi gia nhiệt gián tiếp ACV
- 5.4 Máy nước nóng Gorenje GBK80ORRNB6
- 5.5 Đặc điểm của máy nước nóng Bosch SK 400-3 ZB
- 5.6 Đặc điểm của mẫu BOSCH WSTB 160
- 5.7 Đặc điểm của lò hơi gia nhiệt gián tiếp Baxi
- 5.8 Đặc điểm của lò hơi gia nhiệt gián tiếp Hajdu STA 400 C
Lò hơi gia nhiệt gián tiếp là gì và nó dùng để làm gì
Lò hơi thường được gọi là lò sưởi hoặc bể cung cấp nước nóng cho căn hộ hoặc ngôi nhà. Nói chung, có 2 loại đơn vị đó là: sưởi trực tiếp và gián tiếp. Sự khác biệt chính của phiên bản mới nhất của máy nước nóng là nồi hơi này tạo ra nhiệt được tạo ra bởi hệ thống sưởi ấm. Bề ngoài của thùng cấp nhiệt gián tiếp được liên kết với thùng. Nhưng trên thị trường hiện đại, bạn có thể tìm thấy các mô hình có hình khối hoặc hình bình hành. Trước đây, được chế tạo với một lò hơi gia nhiệt gián tiếp theo cùng một kiểu dáng, thường được lắp đặt ngay bên dưới nó. Giải pháp này giúp tiết kiệm không gian trong phòng tiện ích.
Lò hơi gia nhiệt gián tiếp: nguyên lý làm việc
Nước cấp vào máy cho 2 mạch.Đầu tiên là lò sưởi, được kết nối với hệ thống sưởi của ngôi nhà. Trong lần thứ hai, nước từ hệ thống cấp nước được làm nóng và sau đó được phân phối đến các điểm lấy nước.
Các mạch làm nóng được thực hiện trong đơn vị được xem xét bằng hai phương pháp:
- "Xe tăng trong xe tăng". Ngay từ cái tên, rõ ràng đây là một lò hơi gia nhiệt gián tiếp, thiết kế của nó cung cấp sự hình thành mạch điện bằng cách đặt một thùng thép có kích thước nhỏ hơn vào thùng chính;
- một cuộn dây được gắn trong bể chính.
Cả hai mạch được kết nối song song với hệ thống sưởi ấm khu dân cư. Chất làm mát chảy từ nó vào lò hơi thông qua một đường ống. Để tổ chức lưu thông hiệu quả chất làm mát, đường ống như vậy phải được trang bị hệ thống bơm trộn.
Lời khuyên hữu ích! Khi mua nồi hơi cho nồi hơi, đánh giá công suất của đơn vị cuối cùng. Nó phải đủ để đảm bảo hoạt động đồng thời của hệ thống sưởi và lò hơi được bật để sưởi ấm.
Nước lạnh được cấp vào bồn chứa để sưởi ấm, còn người tiêu dùng lấy nước nóng. Cần lưu ý rằng nhiều nhà sản xuất sản xuất một lò hơi gia nhiệt gián tiếp như vậy với một số bộ trao đổi nhiệt. Thiết kế này hoạt động hiệu quả hơn, nhưng nó cực kỳ hiếm trên thị trường.
Ưu nhược điểm của nồi đun nước nóng gián tiếp
Những ưu điểm của giải pháp kỹ thuật được thực hiện bởi thiết bị này bao gồm:
- trong mùa nóng, hệ thống dây điện không bị quá tải, vì thiết bị không hoạt động từ nguồn điện;
- cả chất làm mát và hệ thống bên trong của máy sưởi không tiếp xúc với nước máy. Điều đó làm cho một lò hơi gia nhiệt gián tiếp như vậy sẽ tồn tại trong một thời gian dài;
- nước nóng sẽ bắt đầu chảy vào vòi ngay sau khi khởi động thiết bị, vì hoạt động của nó dựa trên quá trình tuần hoàn;
- Một hệ thống đun nước nóng được thiết kế tốt dựa trên thiết bị này sẽ hoạt động hiệu quả với mức chi phí tối ưu ở giai đoạn vận hành.
Nhưng có một số hạn chế ở đây. Trong số những chuyên gia phân biệt:
- Việc lắp đặt một lò hơi gia nhiệt gián tiếp có tuần hoàn đòi hỏi công việc chuẩn bị đáng kể đòi hỏi chi phí tài chính đáng kể, điều này sẽ ảnh hưởng tiêu cực đến ngân sách gia đình;
- một lò hơi kiểu này có giá cao hơn nhiều so với các loại lò hơi bằng điện hoặc gas;
- Việc đun nóng nước ban đầu mất khoảng 1-2 giờ. Trong khoảng thời gian này, chất lượng của hệ thống sưởi có thể xấu đi rõ rệt;
- đã mua một lò hơi đốt nóng gián tiếp 100 lít với giá cả phải chăng, bạn sẽ phải bố trí một phòng riêng để lắp đặt nó. Thực tế là ngay cả với dung lượng bên trong có vẻ không quá lớn nhưng kích thước bên ngoài của một thiết bị như vậy lại rất ấn tượng. Chưa kể đến lò hơi gia nhiệt gián tiếp 200 lít. Nhưng ngành công nghiệp này thậm chí còn sản xuất các mẫu 300 lít;

Một trong những nhược điểm của việc sử dụng lò hơi gia nhiệt gián tiếp là khả năng làm giảm hiệu quả của hệ thống gia nhiệt.
- việc cung cấp nước nóng cho ngôi nhà phụ thuộc vào việc hệ thống sưởi hiện đang hoạt động hay không. Nhưng vì những lý do rõ ràng, không cần thiết phải có nó vào mùa hè. Có hai cách để giải quyết tình huống này: lắp đặt hệ thống cung cấp tác nhân gia nhiệt riêng lẻ chỉ phục vụ cho lò hơi, hoặc lắp đặt lò hơi gia nhiệt gián tiếp kết hợp với bộ phận gia nhiệt điện.
Hãy để chúng tôi xem xét chi tiết hơn về tùy chọn cuối cùng. Loại rẻ tiền nhất và vì lý do này đã trở thành truyền thống trong lò hơi là bộ phận làm nóng bằng đồng. Tuy nhiên, do sự hình thành cáu cặn ở nhiệt độ cao trong nước cứng, nó nhanh chóng bị phá vỡ. Ngoài ra, những cặn bẩn này làm giảm mức độ truyền nhiệt từ bộ phận làm nóng, do đó tiêu thụ điện năng tăng lên.
Lời khuyên hữu ích! Mua một lò hơi đốt nóng gián tiếp kết hợp với bộ phận làm nóng "khô" sẽ tiết kiệm chi phí trả tiền điện.

Kết nối lò hơi gia nhiệt gián tiếp là can thiệp vào hệ thống cấp nước và sưởi ấm, do đó, trước khi quyết định mua thiết bị, cần tham khảo ý kiến của các chuyên gia.
Một bộ phận gia nhiệt điện như vậy được làm bằng gốm. Và họ gọi bộ phận gia nhiệt là "khô" vì nó được bao bọc trong một bình thép. Đó là, không có tiếp xúc trực tiếp với nước, và do đó, không có cặn được hình thành. Sự hiện diện của một khung như vậy dẫn đến tăng diện tích truyền nhiệt và giảm cường độ làm mát. Đó là lý do tại sao cần ít điện hơn cho hoạt động của lò hơi gia nhiệt kết hợp với bộ phận gia nhiệt "khô".
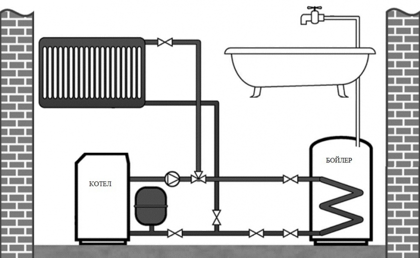
Kết nối nồi hơi lưu trữ với nồi hơi gas
Có thể làm nóng nước trong thiết bị đang được xem xét bằng cách sử dụng lò hơi đốt khí hoặc nhiên liệu rắn, máy nước nóng năng lượng mặt trời hoặc máy bơm nhiệt. Hơn nữa, hoạt động của nó có thể kết hợp với thiết bị sưởi của hai loại: mạch đơn và mạch kép.
Theo sơ đồ đường ống tiêu chuẩn cho một lò hơi gia nhiệt gián tiếp, nó được kết nối với hệ thống sưởi ấm, cũng như các nhánh cấp nước nóng và lạnh. Trong trường hợp này, nước lạnh đi vào từ bên dưới, nước nóng được xả ra từ bình chứa nằm trên đầu bình, nhưng điểm tuần hoàn lại nằm ở giữa lò hơi. Hướng chuyển động của chất làm mát được làm nóng được đảo ngược - từ trên xuống dưới. Tức là, từ lò hơi gas, nó đi vào đường ống nhánh trên của máy nước nóng, và quay trở lại đường ống cấp nhiệt dọc theo đường ống nhánh dưới của máy.
Nhờ sơ đồ này để kết nối một lò hơi gia nhiệt gián tiếp, hiệu suất của thiết bị này tăng lên. Rốt cuộc, nhiệt đầu tiên được truyền đến các lớp nước được nung nóng.
Đặc điểm kết nối lò hơi gia nhiệt gián tiếp với lò hơi hai mạch
Để lò hơi hoạt động thành công song song với bộ gia nhiệt với mạch cấp nước nóng, người ta sử dụng van ba ngã. Nó phân phối dòng môi chất sưởi ấm giữa mạch cấp nước bổ sung và mạch sưởi ấm chính.
Một bộ điều nhiệt được lắp đặt trong nồi hơi bảo quản gián tiếp. Chính anh ta là người tạo ra các tín hiệu điều khiển cho van ba ngả. Khi nhiệt độ của nước trong bình giảm xuống dưới một mức nhất định, van, theo lệnh của bộ điều nhiệt, sẽ bật và chuyển hướng dòng chảy đến nhánh cấp nước nóng từ đường ống gia nhiệt. Tín hiệu từ bộ điều nhiệt sẽ đưa van trở lại trạng thái ban đầu nếu nhiệt độ nước trong bộ điều nhiệt vượt quá mức cài đặt trước. Dòng nước làm mát sau đó được dẫn đến đường ống gia nhiệt.

Khi kết nối lò hơi gia nhiệt gián tiếp, bạn phải đảm bảo rằng tất cả các thông tin liên lạc đều có thể thực hiện được và mua các cảm biến áp suất cần thiết
Vào mùa ấm, thiết bị hoạt động khác nhau: dòng chảy không bị chuyển hướng, nhưng các chế độ đốt của lò hơi khí được kiểm soát. Khi nhiệt độ của nước trong nồi hơi giảm xuống, bộ điều nhiệt sẽ gửi tín hiệu tương ứng đến van ba ngã. Trên "lệnh" này, thiết bị cuối cùng "đốt cháy" đầu đốt chính của bộ gia nhiệt. Khi nhiệt độ nước vượt quá một giá trị nhất định, việc cung cấp khí cho đầu đốt sẽ ngừng lại.
Quan trọng! Khi cài đặt nhiệt độ tối đa của nước trong bể (nó cũng là nhiệt độ tự động kích hoạt bộ điều nhiệt), người sử dụng nên lưu ý rằng giá trị của nó phải nhỏ hơn giá trị của thông số này được đặt để tự động hóa lò hơi.
Sơ đồ trên hoạt động hiệu quả nhất khi sử dụng nồi hơi khí được trang bị tự động hóa và một máy bơm tuần hoàn. Trong trường hợp này, bản thân bộ gia nhiệt có thể điều khiển van theo tín hiệu nhận được từ bộ điều nhiệt của bộ hâm nước.Xin lưu ý rằng khi hệ thống làm nóng nước hoạt động với van ba chiều, mức độ ưu tiên của mạch làm nóng cao hơn mạch sưởi.
Sơ đồ kết nối lò hơi gia nhiệt gián tiếp với lò hơi một mạch
Để đảm bảo hoạt động chung hiệu quả của lò hơi gia nhiệt gián tiếp với lò hơi khí một mạch, một mạch có hai bơm tuần hoàn được sử dụng. Loại kết nối này thực sự có thể thay thế mạch van ba chiều được mô tả ở trên. Phân tách các dòng nước làm mát bằng cách sử dụng máy bơm thông qua các đường ống khác nhau là đặc điểm chính của loại kết nối này. Phân phối ưu tiên đường bao giống như trong trường hợp trước. Tuy nhiên, ưu tiên cao hơn của mạch cấp nước so với mạch gia nhiệt chỉ được đảm bảo thông qua một cài đặt đặc biệt của thuật toán kích hoạt máy bơm.
Việc kích hoạt luân phiên của các máy bơm cũng được điều khiển bởi các tín hiệu từ bộ điều nhiệt được lắp đặt trong bể. Trước mỗi thiết bị phải lắp van một chiều. Việc tạo ra một đường ống như vậy cho lò hơi gia nhiệt gián tiếp ngăn cản sự trộn lẫn các dòng chất mang nhiệt.
Sơ đồ này hoạt động như sau: bật máy bơm nước nóng đi kèm với việc tắt máy bơm sưởi. Tức là, hệ thống sưởi sẽ bắt đầu hạ nhiệt. Tuy nhiên, nhiệt độ trong nhà giảm đáng chú ý sẽ không được quan sát thấy vì lý do đun nước trong lò hơi gia nhiệt gián tiếp với lò hơi gas sẽ kéo dài trong một thời gian ngắn. Các cư dân của ngôi nhà sẽ cảm thấy điều này chỉ khi khởi động ban đầu.
Đôi khi, để tạo ra một khu vực rộng lớn trong một tòa nhà có nhiệt độ thoải mái, chủ sở hữu sử dụng một số thiết bị sưởi. Sau đó, một máy bơm bổ sung được lắp đặt trong đường ống của máy nước nóng lưu trữ.
Các tính năng của đường ống cho lò hơi gia nhiệt gián tiếp có tuần hoàn
Nếu nước nóng không được rút ra trong một khoảng thời gian dài, nó sẽ bắt đầu nguội đi. Có thể mất vài phút để đợi cho đến khi dòng nóng từ lò hơi đến người tiêu dùng cuối cùng. Giảm thời gian xả nước làm mát được đảm bảo bằng cách sử dụng sơ đồ đường ống cho lò hơi gia nhiệt gián tiếp có tuần hoàn. Điều này được thực hiện bằng cách tổ chức chuyển động cưỡng bức của dòng chảy nóng qua các đường ống được đóng thành một vòng.
Lời khuyên hữu ích! Khi chọn sơ đồ đường ống cho hệ thống sưởi và mạch nước nóng (có hoặc không tuần hoàn), cần phải tính đến các đặc tính của hệ thống sưởi, cũng như thực hiện các tính toán chính xác về công suất của thiết bị và mức độ nhu cầu nước nóng.
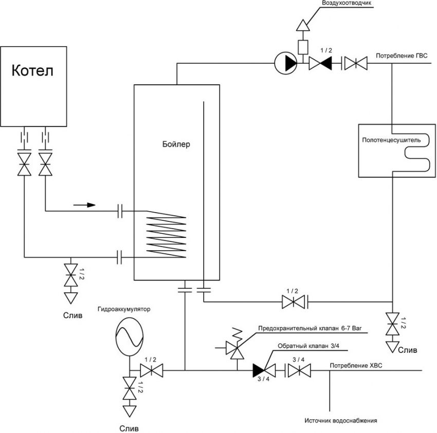
Giải pháp tuần hoàn cung cấp nước nóng gần như tức thì đến bất kỳ thiết bị cố định đường ống nào được kết nối. Nó cung cấp rằng một mạch khác được lắp đặt trong đường ống của lò hơi gia nhiệt gián tiếp, được trang bị máy bơm tuần hoàn riêng và các thành phần cấu trúc bổ sung được lắp đặt:
- van an toàn (được thiết kế để bảo vệ máy nước nóng khỏi áp suất cao);
- lỗ thông hơi tự động (ngăn máy bơm không khí);
- thùng giãn nở (thực hiện chức năng bù áp trong mạch DHW khi các vòi đóng);
- van một chiều (ngăn dòng nước chảy ngược trong đường ống).
Bài viết liên quan:
Nồi hơi dùng cho nước: tổng quan về các ưu đãi tốt nhất trên thị trường hiện đại
Xem xét các mô hình và nhà sản xuất tốt nhất. Các loại và quy tắc để chọn một máy nước nóng phù hợp. Xả nước từ lò hơi.
Tự làm lò hơi gia nhiệt gián tiếp
Tất cả công việc bao gồm lắp ráp các bộ phận cấu thành của cấu trúc. Ví dụ, chúng tôi sẽ cung cấp cho sản xuất một máy nước nóng với một cuộn dây. Nguyên lý hoạt động đơn giản của thiết bị này tạo niềm tin rằng một lò hơi gia nhiệt gián tiếp như vậy có thể được tạo ra một cách độc lập.
Sản xuất và lựa chọn bồn chứa cho máy đun nước nóng lưu trữ
Trong lò hơi, một bồn chứa được sử dụng như một thùng chứa. Thể tích của bộ phận này của kết cấu là giá trị xuất phát từ nhu cầu sử dụng nước nóng của cư dân trong nhà. Chỉ số này được tính toán dựa trên thực tế là, theo định mức, khoảng 50-70 lít sẽ rơi vào một thành viên trong gia đình mỗi ngày. Như vậy, nếu một gia đình gồm 4 người, bạn có thể lựa chọn loại nồi hơi đốt nóng gián tiếp 200 lít, giá linh kiện sẽ không gây gánh nặng lớn cho ngân sách gia đình.
Tuy nhiên, nó sẽ không thể làm được nếu không có chi phí nghiêm trọng, vì bình chứa thiết bị sưởi ấm phải được làm bằng hợp kim nhôm đắt tiền, thép không gỉ đắt tiền hoặc vật liệu chống ăn mòn khác, chi phí của chúng cũng tương đối cao. Ngoài ra, một chai khí cũng phù hợp. Tuy nhiên, tường của nó trước tiên phải được làm sạch và sơn lót. Nếu không, nước sẽ có mùi như khí gas.
5 lỗ được làm trong bể: 1 ở dưới cùng để kết nối vòi xả, 1 ở dưới cùng cho đường ống đầu vào, 1 ở trên cùng để lấy nước và 2 ở bên để lắp đặt cuộn dây. Biết rằng lò hơi gia nhiệt gián tiếp này sẽ phải vận hành vào cuối mùa gia nhiệt, cần tạo điều kiện để lắp đặt bộ phận cấp nhiệt bằng cách khoan một lỗ từ dưới lên. Đã tạo lỗ, sửa van kiểu bi hoặc các bộ phận ngắt trong chúng.

Thể tích của bể lò hơi phải được lựa chọn dựa trên số lượng người sống trong nhà và điểm tiêu thụ nước
Chế tạo cuộn dây: yêu cầu vật liệu và mô tả quy trình
Phần tử này thực hiện chức năng của mạch gia nhiệt trong nồi hơi lưu trữ. Đó là, một chất làm mát đi vào nó - nước nóng từ hệ thống sưởi ấm. Khi tiếp xúc với bề mặt được nung nóng của cuộn dây, nhiệt độ của nước máy ở đoạn mạch thứ hai tăng lên tương ứng.
Đồng thau hoặc ống đồng thích hợp cho thành phần này. Chiều dài và đường kính của nó được xác định bởi thể tích của bể. Đối với 10 lít, cần có công suất nhiệt trung bình do ống ngoằn ngoèo tỏa ra là 1,5 kW.
Lời khuyên hữu ích! Để tiết kiệm, bạn có thể sử dụng một ống nhựa kim loại hoặc cùng một phần tử làm bằng kim loại khác có khả năng truyền nhiệt tốt.
Xoắn ống vào trục hình trụ. Đối với điều này, một đường ống hoặc khúc gỗ có đường kính lớn là phù hợp.
Khi quấn một cuộn dây, cần phải tuân theo các lượt, tuân thủ các khuyến nghị sau:
- không để chúng chạm vào nhau. Điều này sẽ đảm bảo bề mặt cuộn dây tiếp xúc tốt hơn với nước nóng;
- nỗ lực quá mức không được khuyến khích. Khi đó sẽ không dễ dàng tháo cuộn dây ra khỏi trục gá;
- tính toán chính xác số vòng quay dựa trên chiều cao và thể tích của bể.
Cách nhiệt của bể và lắp đặt cấu trúc hoàn thiện
Bề mặt bên ngoài của lò hơi gia nhiệt gián tiếp của cải tiến này phải được phủ một lớp cách nhiệt. Một giải pháp kỹ thuật như vậy sẽ làm tăng hiệu quả của tổ máy và giảm tổn thất nhiệt. Để cách nhiệt thùng chứa, hãy sử dụng xốp, bông khoáng hoặc vật liệu cách nhiệt khác, có thể được cố định vào đế bằng dây buộc, keo hoặc dây. Để làm cho bề ngoài của bể hấp dẫn, tốt hơn là nên bao phủ thân của nó bằng lá cách nhiệt hoặc tấm kim loại mỏng.
Bạn cũng có thể tạo một nguyên mẫu của việc xây dựng bánh sandwich. Tùy chọn này cung cấp cho việc lắp đặt lò hơi đã tạo trong một bể chứa có đường kính lớn hơn. Hốc được hình thành giữa các bề mặt có thể được lấp đầy bằng bọt hoặc vật liệu cách nhiệt khác, do đó tạo thành một loại phích nước.
Bạn có thể bắt đầu lắp ráp cấu trúc sau khi chuẩn bị tất cả các bộ phận cần thiết và làm theo thuật toán của các hành động:
- gắn cuộn dây bên trong bể dọc theo các bức tường của nó hoặc ở trung tâm. Hàn các đường ống cho cả đường ống đầu vào và đường ống ra của bể;
- quyết định cách lắp đặt lò sưởi. Có hai lựa chọn ở đây. Thông thường, các giá đỡ được hàn vào đáy của nồi hơi gia nhiệt gián tiếp đặt trên sàn. Nếu bạn đã chọn lò hơi gia nhiệt gián tiếp treo tường, thì hãy hàn, hoặc tốt hơn là hàn vào bề mặt sau của bản lề (hoặc "tai");

Các nồi hơi gia nhiệt gián tiếp hiện đại được trang bị các thiết bị kiểm soát nhiệt độ hiện đại, cũng như cách nhiệt chất lượng cao, điều này khó có thể lặp lại ở các nồi hơi tự chế
- cài đặt bộ phận làm nóng;
- đóng chặt nồi hơi bằng nắp;
- nối cuộn dây với mạch đốt nóng. Khi làm như vậy, hãy được hướng dẫn bởi các quy tắc tiêu chuẩn để thực hiện thủ tục này;
- kết nối đường ống dẫn nước vào và ra;
- đặt các đường ống dẫn đến phòng tắm hoặc nhà bếp tại điểm lấy nước.
Bộ tích lũy nhiệt để đun nóng nồi hơi: các tính năng và kết nối của thiết bị
Mục đích của việc sử dụng thiết bị này là thu thập và lưu trữ chất làm mát được làm nóng đến một nhiệt độ nhất định để chuyển tiếp vào hệ thống khi có nhu cầu. Được kết nối với mạch nước của phòng, pin loại này hỗ trợ chế độ nhiệt độ, ngay cả khi nguồn nhiệt bị tắt.
Lời khuyên hữu ích!Nếu nước nóng của ngôi nhà được sản xuất từ điện, việc đăng ký biểu giá ban đêm với giá giảm cho chi phí 1 kW / h. sẽ tiết kiệm khi thanh toán hóa đơn. Hệ thống sưởi sẽ được làm nóng đủ vào ban đêm, và vào ban ngày bộ tích nhiệt sẽ hoạt động.
Thiết bị này cũng có các chức năng khác. Những điều chính bao gồm:
- giảm tiêu thụ nhiên liệu gần một phần ba. Trong trường hợp này, hiệu suất của nhà máy nhiên liệu tăng lên;
- bảo vệ các thiết bị sưởi khỏi quá nhiệt, thu nhiệt thừa;
- làm nóng nước cho hệ thống DHW. Đó là, trên thực tế, đây là một trong những loại lò hơi gia nhiệt gián tiếp. Giá của đơn vị này thay đổi trong một phạm vi rất rộng: từ 13 đến hơn 300 nghìn rúp;
- bể chứa nhiệt có thể kết nối một số nguồn nhiệt hoạt động trên các dạng năng lượng hoặc nhiên liệu khác nhau;
- thiết kế của thiết bị cho phép lựa chọn chất làm mát ở các nhiệt độ khác nhau.
Thiết bị lưu trữ nhiệt và kết nối hợp lý các thiết bị bên ngoài
Bộ phận chính của thiết bị này là một bình thép không gỉ hình trụ chứa đầy chất lỏng được đặc trưng bởi hệ số truyền nhiệt cao. Dây đai của nó được thực hiện bằng vật liệu cách nhiệt. Kết hợp với việc lắp đặt áo khoác bên trên, giải pháp thiết kế này giúp tăng thời gian làm mát của bộ tích nhiệt. Bên trong bồn hình trụ có 1 đến 3 thiết bị trao đổi nhiệt. Số lượng cuộn dây được quyết định bởi khả năng và nhu cầu của gia chủ.
Nước nóng từ nhiên liệu rắn hoặc nồi hơi khí đi vào khoang của bình tích lũy từ trên cao, và chất lỏng được làm mát lắng xuống gần đáy và được bơm trở lại lò hơi để sưởi ấm.
Ngăn dưới thường có nhiệt độ khoảng 35-40 ° C. Vì vậy, bạn nên kết nối nó với hệ thống sưởi dưới sàn. Nhiệt độ của phần giữa là 60-65 ° С. Do đó, các thiết bị sưởi ấm nên được kết nối với nó. Phần trên của bình được kết nối với nguồn cấp nước nóng. Nhiệt độ nước ở đó lên tới 80-85 ° С.
Làm thế nào để mua một lò hơi gia nhiệt gián tiếp đúng cách: các khuyến nghị và các mô hình phổ biến
Khi chọn một thiết bị để cung cấp nước nóng cho một đối tượng nào đó, vẻ ngoài của nó không nên là tiêu chí chính. Cần tính đến những đặc điểm ảnh hưởng trực tiếp đến hiệu quả hoạt động của đơn vị thuộc loại hình này.Điều này liên quan, trước hết, khối lượng của nó. Hơn nữa, tải cao điểm trên máy nước nóng cần được tính đến.
Các chuyên gia khuyên bạn nên bắt đầu từ các giá trị sau:
- cho 1 người, một thể tích 50-60 lít sẽ là đủ;
- cho 2-3 người bạn sẽ cần một nồi hơi với thể tích 80-120 lít;
- cho 3-5 người, hãy xem xét các mô hình 120 đến 200 lít.

Các nhà sản xuất hiện đại cung cấp cho người tiêu dùng nhiều lựa chọn về nồi hơi gia nhiệt gián tiếp với nhiều kích cỡ và hình dạng khác nhau.
Phổ biến nhất, theo đánh giá của các bài đánh giá, nồi hơi sưởi ấm gián tiếp bên dưới các thương hiệu được trình bày.
Đặc điểm của lò hơi gia nhiệt gián tiếp Proterm 200 lít Protherm B200S
Bộ phận này được cách nhiệt bằng bọt polyurethane. Các đặc tính vốn có của vật liệu này giữ cho sự mất nhiệt ở mức tối thiểu. Bảng điều khiển cung cấp chỉ báo về nhiệt độ của nước trong nồi hơi. Bề mặt tráng men và cực dương titan cung cấp sự bảo vệ đáng tin cậy của máy nước nóng này chống lại sự ăn mòn và hình thành cặn. Một bộ trao đổi nhiệt đôi bằng thép nằm ở dưới cùng của thiết bị. Điều này cho phép bạn tăng đáng kể việc cung cấp nước nóng và đẩy nhanh quá trình đun nóng.
Lời khuyên hữu ích! Để đạt được hiệu quả hoạt động tối đa của lò hơi gia nhiệt gián tiếp Proterm của kiểu máy này, hãy vận hành nó kết hợp với các lò hơi kiểu tĩnh "Medved" và "Grizzly" của cùng một nhà sản xuất từ Slovakia.
Dưới đây là các đặc điểm kỹ thuật chính của máy nước nóng Protherm B200S:
| Âm lượng, l | 200 |
| Hình thức | Hình trụ |
| Loại phân bổ | Ngoài trời |
| Số lượng bộ trao đổi nhiệt, miếng | 1 |
| Bộ điều chỉnh nhiệt độ | Cơ khí |
| Nhiệt độ nước (tối đa), ° С | 90 |
| Tổn thất năng lượng hàng ngày, kW | 2 |
| Trọng lượng, kg | 90 |
Đặc điểm của lò hơi gia nhiệt gián tiếp Dražice
Nếu bạn muốn mua một nồi hơi đốt nóng gián tiếp 200 lít đặt sàn, bạn nên xem xét model DRAZICE OKC 200 NTRR của nhà sản xuất Séc. Công ty này đã sản xuất thiết bị như vậy trong hơn 60 năm, không ngừng cải tiến chức năng và thiết kế.
Phạm vi mô hình bao gồm các đơn vị cung cấp tiết kiệm năng lượng đáng kể. Ưu điểm là giá cả tương đối phải chăng của một lò hơi gia nhiệt gián tiếp 200 lít Drazhice - khoảng 33 nghìn rúp, và không làm phương hại đến chất lượng công việc và độ bền cao. Một điểm cộng khác liên quan đến câu hỏi làm thế nào để kết nối lò hơi gia nhiệt gián tiếp Drazhice. Có hai lựa chọn ở đây: đến hệ thống sưởi ấm hoặc mạng lưới điện.
Đặc tính kỹ thuật của lò hơi DRAZICE OKC 200 NTRR:
| Âm lượng, l | 200 |
| Hình thức | Hình trụ |
| Loại phân bổ | Ngoài trời |
| Số lượng bộ trao đổi nhiệt | 2 |
| Bộ điều chỉnh nhiệt độ | Cơ khí |
| Nhiệt độ nước (tối đa), ° С | 110 |
| Trọng lượng, kg | 108 |
Đặc tính kỹ thuật của lò hơi gia nhiệt gián tiếp ACV
Một loạt máy nước nóng được cung cấp bởi công ty ACV của Bỉ là những thiết bị bền, đáng tin cậy, bền, rộng rãi và hiện đại. Để giảm thiểu mức độ thất thoát nhiệt, nhà sản xuất đã rất chú trọng đến vấn đề cách nhiệt. Nó được làm từ bọt polyurethane - một loại vật liệu hoàn toàn thân thiện với môi trường, có đặc tính hấp thụ âm thanh tuyệt vời và tuổi thọ rất cao. Sự tiện lợi của việc sử dụng được thêm vào bởi dung tích bình chứa lớn. Chúng tôi đang nói về khả năng mua một lò hơi gia nhiệt gián tiếp 300 lít từ nhà sản xuất này.
Đặc tính kỹ thuật của thiết bị ACV SMART SLE 300 được trình bày dưới đây:
| Tổng khối lượng, l | 293 |
| Đầu vào nhiệt, kW | 68 |
| Thời gian làm nóng lên đến 80 ° С, phút | 22 |
| Năng suất khi gia nhiệt đến nhiệt độ 40 ° C, lít / giờ | 2100 |
| Trọng lượng nồi hơi rỗng, kg | 87,0 |
Lò hơi ACV SMART SLE 300 được lắp đặt trong phòng khô có nhiệt độ trên 0. Trong trường hợp này, cần chọn vị trí đặt máy nước nóng phù hợp.

Mẫu nồi hơi SMART SLE 300 của công ty ACV được trang bị lớp cách nhiệt chất lượng cao, giúp giảm thất thoát nhiệt trong quá trình vận hành
Lời khuyên hữu ích! Khi cài đặt, cần giảm thiểu độ dài của thông tin liên lạc kỹ thuật. Vì vậy, ngoài việc tiết kiệm tiền mua các phần tử nhãn đường ống, bạn có thể giảm thêm mức độ thất thoát nhiệt. Có nghĩa là, đã tìm ra cách kết nối lò hơi gia nhiệt gián tiếp của mô hình này, hãy đảm bảo rằng khoảng cách giữa các điểm tiêu thụ nước nóng từ thiết bị càng nhỏ càng tốt.
Máy nước nóng Gorenje GBK80ORRNB6
Nếu bạn đang tìm kiếm một mẫu máy nước nóng dự trữ nhỏ gọn có khả năng cung cấp nước nóng cho ngôi nhà có 1-2 người sinh sống, các chuyên gia khuyên bạn nên chú ý đến sản phẩm này của nhà sản xuất Slovenia Gorenje.
Nồi hơi GBK80ORRNB6 nhỏ gọn có hai bộ trao đổi nhiệt dạng ống. Thể tích của nó đủ để phục vụ hai điểm lấy nước. Thiết bị được trang bị bộ điều khiển điện tử. Nhiệt độ DHW thay đổi trong khoảng 15-75 ° С.

Nồi đun nước nóng gián tiếp GBK80ORRNB6 có bảng điều khiển tiện lợi cho phép bạn kiểm soát nhiệt độ nước
Chức năng của một lò sưởi bổ sung được thực hiện bởi hai phần tử sưởi ấm "khô". Một số loại bảo vệ được thực hiện trong mô hình: từ sưởi ấm mà không có nước và quá nóng, khỏi ăn mòn (một cực dương magiê được lắp đặt), khỏi đóng băng (cách nhiệt chất lượng cao được thực hiện).
Một lợi thế đáng kể khác của thiết bị này là sự hiện diện của chức năng kiểm soát bệnh legionellosis (một bệnh phổi phổ biến, môi trường sống của các mầm bệnh là nước nóng). Nói chung, ngày nay nó là một trong những giải pháp tốt nhất về giá cả và chất lượng.
Đặc tính kỹ thuật của máy nước nóng Gorenje GBK80ORRNB6:
| Âm lượng, l | 72,6 |
| Một yếu tố sưởi ấm | 2 cuộn dây |
| Tùy chọn chỗ ở | Tường |
| Áp lực nước (tối đa), MPa | 0,6 |
| Trọng lượng, kg | 51 |
| Kích thước tổng thể, mm | 507×500×803 |
Đặc điểm của máy nước nóng Bosch SK 400-3 ZB
Kết quả theo dõi thị trường hiện đại cho thấy một thực tế là dòng sản phẩm nồi hơi gia nhiệt gián tiếp do Bosch của Đức sản xuất có số lượng rất hạn chế. Vì vậy, mẫu xe này đáng được quan tâm đặc biệt. Nó được phân biệt bởi sự đơn giản của giải pháp thiết kế.
Bosch SK 400-3 ZB là một bình tráng men với một cuộn thép không gỉ. Việc sử dụng cực dương magiê để chống ăn mòn cũng không có gì đáng ngạc nhiên: phương pháp chống lại hiện tượng này rất thường được sử dụng trong các thiết bị loại này. Khả năng sử dụng được đảm bảo bằng nhiệt kế và mặt bích tích hợp.
Cũng có thể tinh chỉnh hoạt động của mô hình máy nước nóng này bằng cách kết nối tuần hoàn nước nóng với đồng bộ hóa tiếp theo với nồi hơi gia nhiệt. Lớp cách nhiệt được làm bằng bọt cứng, không phải bọt polyurethane, với cùng độ dày, bảo vệ chống mất nhiệt kém tin cậy hơn.
Đặc tính kỹ thuật của thiết bị Bosch SK 400-3 ZB:
| công suất, kWt | 60 |
| Âm lượng, l | 388 |
| Năng suất (tối đa) ở chế độ dòng chảy, l / phút, ΔT = 25 ° С | 24,2 |
| Một yếu tố sưởi ấm | 1 cuộn dây |
| Tùy chọn chỗ ở | Sàn nhà |
| Áp lực nước (tối đa), MPa | 1 |
| Trọng lượng, kg | 150 |
| kích thước | 710×1681 |
| Kết nối phần tử sưởi | Không thể nào |
Đặc điểm của mẫu BOSCH WSTB 160
Điều đáng suy nghĩ về việc mua máy nước nóng này nếu một nồi hơi gas được lắp đặt trong nhà. Mặc dù không có khả năng kết nối bộ phận sưởi ấm ở đây, nhưng hệ thống tuần hoàn đang hoạt động.
Mô hình này được điều chỉnh để làm việc trong điều kiện hoạt động khắc nghiệt ở các nước hậu Xô Viết. Ngoài ra, thiết bị BOSCH WSTB 160 phù hợp để làm việc với nước cứng.Để bảo vệ thép khỏi bị ăn mòn, bề mặt của bể được phủ bằng hợp chất gốm thủy tinh. Để giảm sự thất thoát nhiệt, người ta sử dụng một chiếc áo khoác bằng xốp polyurethane. Lớp lót của thiết bị mềm, được làm bằng polyvinyl clorua. Loại kết nối - phía trước, có thể sử dụng cảm biến nhiệt độ. Nước được làm nóng đến 45 ° C trong 37 phút.
Đặc tính kỹ thuật của lò hơi của mô hình này:
| công suất, kWt | 20,8 |
| Âm lượng, l | 160 |
| Tùy chọn chỗ ở | Tường |
| Một yếu tố sưởi ấm | 1 cuộn dây |
| Áp lực nước (tối đa), MPa | 1 |
| Kích thước, mm | 1193×550 |
| Trọng lượng, kg | 42 |
Đặc điểm của lò hơi gia nhiệt gián tiếp Baxi
Thông thường, chủ sở hữu của các ngôi nhà nông thôn chọn một lò hơi, trước hết phải tính đến tốc độ sưởi ấm, chứ không phải khối lượng của nó. Trong trường hợp này, bạn nên xem kỹ sản phẩm của BAXI GROUP (Anh), mẫu Premier plus 300.
Lời khuyên hữu ích! Nếu vật liệu sản xuất thiết bị này - thép tráng men hoặc thép không gỉ - là rất quan trọng đối với bạn, hãy chú ý đến loạt sản phẩm của nó. Trong trường hợp đầu tiên, nó sẽ được ký hiệu bằng chuỗi ký tự "UB" và trong trường hợp thứ hai - "INOX".
Tính năng chính của máy nước nóng này là bộ trao đổi nhiệt có thiết kế cụ thể - "cuộn dây trong cuộn dây". Và cũng cần lưu ý rằng nồi hơi gia nhiệt gián tiếp Baksi tương thích với bất kỳ loại nồi hơi nào. Ngoài ra, bộ phận này cũng được bảo vệ chống ăn mòn. Kích thước khá nhỏ gọn và trọng lượng thấp của máy nước nóng này không trở thành trở ngại để trang bị cho nó một máy bơm nhiệt chính xác.
Một điểm cộng quan trọng khác là tính linh hoạt của vị trí. Thiết kế của mô hình này làm cho nó có thể sử dụng một vòng tuần hoàn. Ngoài ra, có thể kết nối bộ phận làm nóng (công suất tối ưu 2,7 kW).
Đặc tính kỹ thuật của mẫu máy nước nóng Premier plus 300 của BAXI:
| công suất, kWt | 30 |
| Âm lượng, l | 300 |
| Thiết kế phần tử sưởi | Cuộn trong cuộn dây |
| Áp lực nước (tối đa), MPa | 0,7 |
| Tùy chọn chỗ ở | Sàn và tường |
| Kết nối phần tử sưởi | có lẽ |
| Kích thước, mm | 2040×552 |
| Trọng lượng, kg | 60 |
Đặc điểm của lò hơi gia nhiệt gián tiếp Hajdu STA 400 C
Mô hình này có thể được người mua tiềm năng quan tâm bởi khả năng điều chỉnh chính xác hơn khi có bộ trao đổi nhiệt. Ví dụ, ở nhiệt độ âm bên ngoài, thiết bị này có thể được xây dựng lại để hoạt động cùng với lò hơi và vào mùa hè, nó có thể được kết nối với đâu thu mặt trơi (khi cần thiết, bộ phận làm nóng được kết nối).
Bình chứa và bộ trao đổi nhiệt được bảo vệ khỏi ăn mòn bởi lớp men và một cực dương magiê được lắp đặt. Lần lượt, lớp cách nhiệt bọt polyurethane được bảo vệ bởi một lớp vỏ nhựa. Bạn có thể kết nối hệ thống tuần hoàn DHW.
Đặc điểm của mẫu STA 400 C:
| công suất, kWt | 69 |
| Âm lượng, l | 400 |
| Năng suất (tối đa) ở chế độ dòng chảy, l / phút, ΔT = 35 ° С | 28,3 |
| Một yếu tố sưởi ấm | 1 cuộn dây |
| Tùy chọn chỗ ở | Sàn nhà |
| Áp suất ode (tối đa) | MPa 1 |
| Trọng lượng, kg | 145 |
| Kích thước, mm | 1832×670 |
Kết luận, cần phải nói rằng việc lựa chọn và lắp đặt một nồi hơi liên hợp cho một ngôi nhà là một nhiệm vụ khó khăn và có trách nhiệm, có thể được giải quyết bằng cách đọc các sơ đồ đấu nối, tư vấn và ý kiến của các chuyên gia, cũng như phản hồi từ người sử dụng các hệ thống đó.



















