Концепцията за „правене със собствени ръце“ предполага проява на творчество, тоест безплатно тълкуване на всякакви практически препоръки. След като разбрах всички тънкости, няма да е трудно да попълните чертежите на стълба стол от дърво, да сглобите конструкцията със собствените си ръце и да я обработите. Дървена стълба има много предимства и е доста лесно да я направите сами, благодарение на гъвкавостта на материала.
Съдържание
- 1 Направи си сам стълба: как да изберем правилния материал
- 2 Размери на стълба: тайните на правилното изчисление
- 3 Направи си сам дървени стълби: подробно ръководство
- 4 Трансформатор за стол-стълба: инструкции за самоизграждане
- 5 Малка стълба: нюансите на дизайна
- 6 Дървена стълба: довършителни щрихи в производството
Направи си сам стълба: как да изберем правилния материал
Степента на надеждност на цялата конструкция, както и нейният експлоатационен живот, пряко зависят от суровините, избрани за нейното производство. Дори при условие да се изготвят чертежи на дървена стълба в процеса на създаване със собствени ръце, ако е използван нискокачествен материал, стълбата едва ли може да се похвали с висока якост и надеждност. Ето защо е толкова важно да не сгрешите при избора на материал.
Заедно с фабричните продукти, домашните стълби са проектирани да издържат на значителни натоварвания: теглото на човек, както и много инструменти и всякакви устройства, необходими за работа. В това отношение качеството на дървесината е от решаващо значение. Разбира се, тези изисквания не се отнасят за дървени стълби. Независимо от модификацията, най-важното условие е липсата на пукнатини, стружки и гниене върху материала.
Освен това дървото, избрано за строителство, трябва да бъде добре изсушено. Допустимото съдържание на влага не трябва да бъде повече от 12%.
Важно! Използването на твърде влажна дървесина с течение на времето ще доведе до деформация и след това до разрушаване на конструкцията.
Ако влажността надвиши определената стойност, материалът трябва да се изсуши в добре проветриво помещение, без да се допуска пряка слънчева светлина върху него.
Диаметърът на прътите също играе важна роля. Дори ако стрингерите са много дълги, секцията трябва да бъде 4x4, 6x6 или 3x5 cm.Това няма да повлияе значително на теглото на конструкцията, но надеждността на стълбата ще бъде напълно осигурена. Що се отнася до точните размери и видове дървен материал, има смисъл да се говори за тях само ако размерите на бъдещата конструкция са известни.
Домашна стълба: няколко думи за аксесоарите
Като направите структурата сами, можете да я подобрите, като добавите отделни елементи. Например металните игли за плетене са проектирани да осигурят по-надеждно фиксиране на стъпалата.
Те са разположени под стъпалото в специални отвори и са закрепени с гайки и болтове. Дължината на тези елементи директно зависи от размера на протектора (ширината на стъпалата) и степента на дебелина на стрингерите. Освен това диаметърът им не трябва да бъде по-малък от 8 мм. В противен случай те ще се огънат под тежестта на товара. Благодарение на спиците се увеличава допустимото налягане, което стъпалата на дървена стълба могат да издържат в бъдеще.
Найлонови шнурове или железни вериги се използват за свързване на опорите и основната част от двете страни, като в същото време не им позволяват да се движат.
Защитата на подовото покритие от надраскване и предотвратяването на подхлъзване е основната задача на така наречените „обувки“. Изработени са от каучук и в идеалния случай трябва да е твърд, тъй като меките дюзи имат кратък експлоатационен живот. В допълнение, дизайнът може да бъде допълнен с куки за кофи и други аксесоари за инструменти. Всичко зависи само от нуждите на потребителя.
Размери на стълба: тайните на правилното изчисление
Независимо какво точно е решено да се проектира, било то пълноценно стълбище или стълбищен стол със собствените си ръце, габаритните чертежи са най-важното условие за започване на работа.
Говорейки за височината на бъдещите стълби, не трябва да се забравя за какво точно е предназначено. Например за домашна употреба линейната дължина се счита за оптимална в рамките на 1,5-1,7 м. Като се вземе предвид височината на повечето жилищни помещения, както и средната височина на възрастен. Това е напълно достатъчно, за да стигнете до тавана, като сте на горното стъпало.
Ако е създадена сгъваема стълба за използване в големи помещения, при изчисляване на височината на конструкцията трябва да се вземе предвид дали човек може не само да достигне горните стелажи, но и да сложи нещо върху тях.
Забележка! Що се отнася до извършването на работа върху градински парцели, дървената стълба с три стъпки би била най-добрият вариант. Тъй като е доста стабилен, този дизайн ще предостави възможност за удобно събиране на даровете на природата от повечето видове овощни дървета.
Размерът на протектора се взема въз основа на 45-ия размер на обувката. Тъй като стълбата е предназначена за удобна и безопасна работа на височина, ширината на стъпалото трябва да бъде най-малко 30 см. И ако дизайнът на продукта предвижда горна платформа, този показател може да бъде увеличен до 45 см. дъски могат да се прилагат с пръти.
Що се отнася до броя на стъпките, този показател ще трябва да бъде определен независимо. Често разстоянието между стъпалата се създава в диапазона 20-30 см. В този случай трябва да се вземе предвид общата височина на конструкцията, както и нейната стръмност. По правило в процеса на изчисление не се получава четен брой стъпки. Оптималното решение в този случай е да се намали интервалът между работния и предпоследния обект. Имайки предвид всички тези нюанси, няма да има трудности с маркирането.
Друг важен критерий в процеса на изчисляване на размера на бъдещия продукт е дължината на стъпките.Независимо от броя на стъпалата на дървена стълба (2, 4, 6 или 8), този показател се променя към намаляване на височината на конструкцията. Тъй като такъв продукт е сглобен под формата на пирамида с пресечен връх, препоръчителната дължина на стъпката е съответно от 55 до 35 см - за долната и горната издатина. Това е достатъчно, за да осигури комфорт по време на изкачване и спускане.
Благодарение на горните препоръки можете лесно да изчислите размерите на конструкцията и да разберете технологията на нейното производство, независимо от степента на сложност на чертежа на стълба със собствените си ръце, изработени от дърво.
Направи си сам дървени стълби: подробно ръководство
Говорейки за това как да направите стълба със собствени ръце от дърво, трябва да се отбележи, че на първо място трябва да създадете чертежи на бъдещия продукт. Необходимо е ясно да си представим как точно ще изглежда структурата, да се определи нейната конфигурация и основни параметри. В процеса на работа по чертежите също трябва да помислите върху вида крепежни елементи и да оформите списък с материали, които ще са необходими за проектиране на стълбите.
Изработването на метална стълба за стъпала със собствените си ръце е доста трудна задача. Това ще изисква много специални инструменти, както и умения за работа с метални изделия. Ето защо дървените конструкции са много популярни.
За тетивата на дървени стълби за къщата често се използват греди с приблизително 5x5 см, а за стъпалата - дъска с ширина до 4 см. Необходимо е да се маркират и отрежат тетивите-греди с необходимата дължина. Те със сигурност трябва да се поддържат в съответствие с височината на конструкцията. За да се осигури стабилност на стълбата, долните краища на гредите трябва да се режат на приблизително 30 °.
След изрязването на гредите с необходимите размери може да започне процесът на изработване на стъпалата. Дължината на долното стъпало трябва да бъде приблизително 65 см, горното - не повече от 35 см. Ще трябва да регулирате размерите още по време на изграждането на стълбата. След като подготвите стъпките с необходимия размер, препоръчително е да ги номерирате на обратната страна, за да избегнете объркване.
Важно! За да се придаде стабилност на продукта, той трябва да бъде направен по такъв начин, че дъното да е по-широко от горното.
Ако дизайнът на продукта предвижда допълнителна платформа, тя трябва да бъде направена от същия материал като стъпките. Втората част на стълбата, която е опорната, се сглобява по същия принцип. Единствената разлика е, че стъпалата се заменят с напречни греди, които са заковани в напречна посока или по диагонал, за да се увеличи силата.
Ключови моменти от най-интересната част от производствения процес
При създаването на дървена стълба за стъпала със собствените си ръце се използват болтове, за да се постигне надеждна връзка на всички елементи, използват се специални панти, които придават мобилност на части от продукта, и ограничители или дистанционни елементи за фиксиране на позицията, които предотвратяват плъзгането на краката по повърхността.
Как да направите сами стълба? Процесът на инсталиране трябва да започне със свързването на напречните гредове и тетивата. За това самонарезните винтове се поставят в краищата, в точките на закрепване на стъпалата, чрез завинтване. Необходимо е да се обработят всички фуги с лепило за дърво. Стъпалата трябва да са успоредни на пода, докато стълбата е разгъната. Ако конструкцията е оборудвана с платформа, е необходимо да се инсталира допълнителна опора.
Подвижните елементи на стълбата трябва да бъдат свързани посредством панти. В този случай трябва да се погрижите за наличието на спирка за пътуване, която трябва да бъде фиксирана към крайните части.Този елемент е ключът към стабилността и надеждността на продукта.
Ако стъпалата на сгъваемата стълба са закрепени с помощта на лепило, за да се увеличи степента на структурна здравина, тетивите се изтеглят заедно с помощта на метални пръти. Те се поставят под стъпалата: под първата, в средата, както и под стъпалото, разположено отгоре. Пръчките помагат за придаване на сила на стълбите.
За да се предпази стълбата от процеса на гниене, върху дървените части трябва да се нанесе антисептично средство, което образува филм с водоотблъскващ ефект. Освен това можете да покриете продукта с лак, без да докосвате металните конструктивни елементи.

Препоръчително е да свържете детайлите на бъдещата стълба с помощта на самонарезни винтове и отвертка
Следвайки горните препоръки, можете лесно да създадете стълба на стъпало със собствените си ръце. Следването на инструкции стъпка по стъпка е ключът към успеха.
Трансформатор за стол-стълба: инструкции за самоизграждане
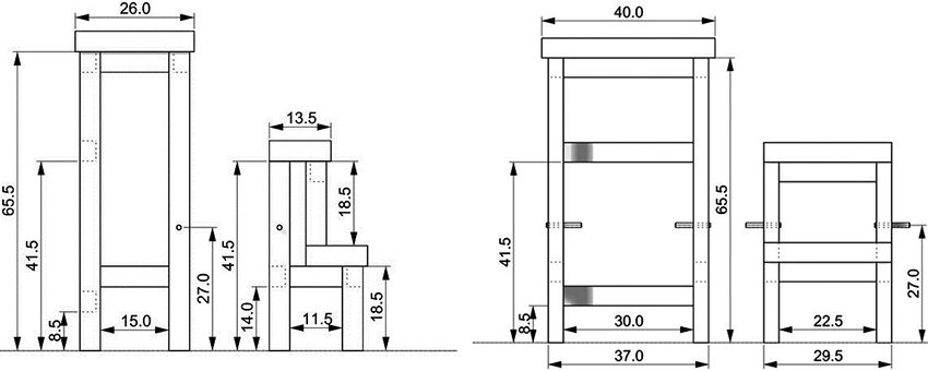
Когато проектирате стол с трансформаторна стълба със собствените си ръце, чертежите са първото нещо, с което да се въоръжите. Не само крайният външен вид на продукта зависи от това колко правилни са изчисленията, но и най-важните му характеристики: удобство, здравина и стабилност.
Тъй като такъв стол е предимно мебел, той трябва да бъде добро допълнение към интериора. В допълнение, такава табуретка служи като миниатюрна стълбищна конструкция. Тя ще ви помогне лесно да стигнете до рафтовете, разположени на височина, а също така ще се превърне в много ценен помощник в процеса на подмяна на крушки в полилей.
Интересно е! Дървеният трансформиращ се стол се различава от стълбата по това, че за да използвате стъпалата, ще трябва да обърнете продукта, по-точно да настроите едната му половина в противоположната.
Можете да проектирате такъв стол с поне минимални умения за боравене с дърво. Това се дължи на факта, че обработката на някои от неговите елементи се извършва с помощта на фреза или бормашина със специфични дюзи. В този случай е много по-важно да се изчислят необходимите показатели, така че след сглобяването всичко да се сближи до милиметър.
Трансформаторен дървен табуретка, планиран за изработка със собствени ръце, може да се характеризира с произволна конфигурация. Необходимо е обаче да се изчислят следните показатели:
Свързана статия:
Телескопична стълба: най-доброто решение за комфортна и безопасна работа
Области на приложение. Предимства на продукта. Видове конструкции. Характеристики на телескопични стълби. Рейтинг на трансформиращите се продукти.
- дължината на опорните крака;
- височина на гърба;
- брой стъпки;
- размери на стъпалата;
- размер на седалката.
Когато оформяте чертеж на стълбищен стол, трябва да се има предвид, че степента на височина на продукта по време на неговата работа зависи от дължината на носещите крака. Освен това могат да се монтират по-дълги крака, които се поставят под ъгъл, за да се увеличи стабилността на конструкцията.
Що се отнася до облегалката, тя трябва да бъде разположена така, че когато продуктът се превърне в стълба, тя е на нивото на пода с опората на основата, под прав ъгъл спрямо повърхността.
Седалката е разделена на няколко части за сгъване на конструкцията. В този случай най-добрият вариант за свързване на половинките на седалката са пантите за пиано. Броят на стъпките зависи от крайната височина на продукта. Често има не повече от 5 от тях.
За да не се притеснявате, че краката на стола могат просто да излязат от жлебовете, не издържайки на натоварването, се препоръчва допълнително да се използват метални пръти, оборудвани с гайки, затягащи частите отстрани.
Направи си сам стъпаловидна стълба: инструкции стъпка по стъпка
На първо място, за да завършите работата, трябва да се запасите с определени материали. Списъкът включва следните елементи:
- дъски или шперплат с дебелина 2 см;
- бои и лакове;
- мозайката, оборудвана с електрическо задвижване;
- пробивна машина;
- отвертка;
- чук;
- PVA лепило;
- шкурка;
- четка;
- самонарезни винтове;
- бримки;
- дървени дюбели.
На първо място, използвайки предварително подготвени хартиени шарки от дъски или шперплат, трябва да изрежете заготовки, в които трябва да направите дупки за дюбели или да изрежете канали, прорези и шипове.
Важно! Повърхността трябва да бъде шлифована и импрегнирана със съединения, които са снабдени с функция за защита от влага.
След това се изисква да нанесете лепило върху дървените дюбели и след това да ги забиете в подготвените отвори на седалката, облегалката и стъпалата с помощта на чук. Желаейки да придадете здравина на конструкцията, по-добре е да използвате самонарезни винтове. Необходимо е да инсталирате контури в предварително създадените канали и да ги фиксирате. Следващата стъпка е повторното шлифоване на стълбищните повърхности, особено в зоните на вторична обработка. След това трябва да нанесете петна и лак или изсушаващо масло и боя.
Когато правите табуретка на стълба със собствените си ръце, трябва да се има предвид, че елементите на продукта не трябва да си пречат един на друг по време на шофиране. Две стъпала отдолу, които приличат на компактен стол, се въртят с помощта на щифтове. По време на сгъването те се поставят вътре в продукта. В този случай можете да помислите за допълнителни крепежни елементи. Най-доброто решение би било ключалка, която служи за фиксиране на конструкцията в разгънат вид.
Компактността на продукта осигурява внимателно отношение както към производството на елементи, така и директно към сглобката. Чертежите включват информация за размерите, които трябва да се спазват. В противен случай процесът на разгъване и сгъване на конструкцията може да стане труден или дори невъзможен.
Въпреки че стълбите, както всяка друга сгъваема конструкция, не създават караница по време на съхранение, те все още изискват определено пространство. Столовете, които могат да служат като стълба, са толкова компактни, че изобщо не се нуждаят от допълнително пространство. Искането "как да проектирате трансформаторен стъпало със собствените си ръце" се среща доста често, което потвърждава огромната популярност на такива продукти.
Малка стълба: нюансите на дизайна
За човек, който е свикнал да проектира всичко сам, информацията за спецификата на монтажа на стълбищни части е напълно безинтересна. За компетентен домашен майстор няма да е трудно да сглобите стълбищен стълб, като използвате готови чертежи със собствените си ръце. Но някои аспекти наистина заслужават специално внимание.
По време на маркирането на стрингерите, за да се определят точките за монтаж на стъпалата, трябва да се посочат и местата за пробиване. За да се постигне здравина, в някои случаи е желателно да се подсилят елементите с метални спици. Ако по някаква причина това не може да се направи, можете да използвате мощни винтове.
По отношение на закопчаването на така наречените "обувки", трябва да знаете, че той също има свои специфики. На първо място, долните разрези на стрингерите трябва да са леко заоблени. Това ще увеличи удобството при инсталиране на стълбата на всяко място и ще намали износването на петата.
Освен това е необходимо правилно да се определи методът за фиксиране на "обувките". Ако RTI (каучукови технически продукти) се характеризират с достатъчна еластичност, могат да се използват самонарезни винтове. Когато се завинтват плътно, главите им потъват в гумата и не оставят драскотини по пода.Тъй като обаче размерите на такъв крепеж са незначителни, той може бързо да счупи гумените изделия. Ето защо под главата трябва да се постави шайба.
Важно! Когато използвате изделия от твърда гума, трябва да кацате само върху лепило. Няма да работи притискането на главата в такава гума, което означава, че подът ще бъде надраскан не от краката на конструкцията, а от самите крепежни елементи.
За да не се разпръснат краката на стълбата по време на престоя на човек на него, трябва да се фиксира т. Нар. Ограничител на около половината височина на стрингерите. Това устройство често се пренебрегва от домашните майстори, но инсталирана верига или дълга кука често ви спестява от падане от мини-конструкция.
Как да направим стълба на стъпало със собствените си ръце по такъв начин, че да осигурява комфорт по време на работа? Експертите препоръчват да се фиксират няколко куки на страничните стени на стрингерите. Върху тях можете да поставите кофа с разтвори или боя, контейнер за прибиране на реколтата или торба с необходимите инструменти.
Фактът, че конструкция, оборудвана с такива устройства, ще бъде много по-удобна в експлоатация, е недвусмислен. Освен това най-малко едно парче пластмасова тръба може да бъде фиксирано отгоре. Резултатът е функционален калъф, в който можете да поставите чук, отвертка или други аксесоари, които са полезни за работа.
Дървена стълба: довършителни щрихи в производството
Вече преди края на работата е останало много малко - просто оборудвайте горната платформа и инсталирайте специални ограничители, които няма да позволят на стълбите да изминат по-голямо разстояние, отколкото е било планирано. Що се отнася до изграждането на обекта, този процес няма да създаде трудности. Трябва само да се изреже от всякакъв материал, например от шперплат. Освен това той трябва да бъде фиксиран върху горния етап на конструкцията чрез подвижен метод. За това стандартните панти ще бъдат отличен вариант.
За да може едновременно платформата да изпълнява функцията за задържане, на противоположната страна трябва да се монтира специален резе, с което тя ще се придържа към горното стъпало на втората стълба. Избирайки ограничители, можете да отдадете предпочитание на елементарни ленти, които свързват стълбите отдолу. Просто трябва да настроите конструкцията в работно положение и да закрепите долната част с пластмасов кабел.
Независимо от това какво точно е решено да проектираме със собствените си ръце: стълбищна табуретка или пълноценна конструкция, изработена от дърво - всички елементи на продукта със сигурност трябва да бъдат подложени на смилане и обработка със специални разтвори.
На първо място, с помощта на шкурка е необходимо да се смилат всички части, които човешките ръце ще докоснат. Повърхностите трябва да придобият такава гладкост, че по време на работа на стълбите вероятността от забиване на треска е напълно изключена. Освен това е необходимо да се почистват повърхностите, ако те са се поддали на повреда от плесени.
Как да удължим живота на крайните продукти: защитни характеристики
За да стане дървеното стълбище стъпало устойчиво на външни влияния, продуктът трябва да се импрегнира със специално съединение - байц. Този инструмент действа като антисептик, предотвратява гниенето, както и появата на мухъл на повърхността на дървото.

За да защитят дървото, стълбите използват петна, боя, изсушаващо масло, както и други антисептични импрегнации
Забележка! Обработката на конструктивни елементи с дървено петно трябва да се извършва до момента на монтажа му. Това ще направи възможно значително удължаване на живота на продукта.
На първо място, дървото трябва да бъде обработено с антисептична импрегнация, която ще се превърне в надеждна защита срещу гниене и ще създаде филм с водоотблъскващ ефект.Оптималното решение е лакирането. В този случай е по-добре да се опитате да не докосвате точките на закрепване. Що се отнася до боята, тя не винаги ще бъде подходяща, но ще се побере само като опция в случай на спешност. Ако направите всичко както трябва, стълбата ще ви радва повече от една година.
Въз основа на горните препоръки можем да заключим, че изобщо не е трудно да приведете продукта в работно състояние. Точно по същия принцип можете да проектирате стълба от профилна тръба според чертеж със собствените си ръце. Разликата между него и дървено стълбище се крие само в материалите, както и устройствата, необходими за работата и метода за свързване на частите на конструкцията.
По този начин не е трудно да направите стълба или табуретка със собствените си ръце, чертежите на които са подготвени предварително. Основното е да се вземат предвид всички съществуващи нюанси на по-нататъшната работа на конструкцията и правилно да се изберат размерите на всички части. По-горе са посочени методи за изработване на едни от най-леките и достъпни продукти за дизайн. Чрез творчески подход към процеса на тяхната обработка, можете да получите оригинален и невероятно красив дизайн.




















