Hyvin usein, kun järjestetään yksityisen talon tai puutarhan piha, keinu... Tällaiset rakenteet on valmistettu puusta, auton renkaista ja muista käsillä olevista materiaaleista. Mutta todella laadukkaan tuloksen saavuttamiseksi käytä piirustuksia ja valokuvia puutarhakiinnityksestä, joka on valmistettu metallista omin käsin: näiden tuotteiden mitat ja suorituskykyominaisuudet antavat sinun käyttää niitä pitkään.
Sisältö
- 1 Metalli-tee-se-itse-puutarhakiinnitys: valokuvat ja ominaisuudet
- 2 Piirrokset ja valokuvat puutarhakiinnityksestä omin käsin metallista: mitat ja tekniikka
- 2.1 Lyhyt luokitus puutarhakiinnikkeestä, joka on valmistettu metallista
- 2.2 Tee-se-itse-swing-tekniikka profiiliputkesta
- 2.3 Luettelo tarvittavista työkaluista ja materiaaleista
- 2.4 Piirustukset ja valokuvat keinusta omin käsin metallista: valmisteluvaihe
- 2.5 Tee itse kokoonpano profiiliputken kääntämisen piirustusten mukaan: runko-osa
- 2.6 Puisen kääntöistuimen asennustekniikka
- 2.7 Visiirin tekeminen rakenteelle
- 2.8 Rakentamisen viimeinen vaihe
Metalli-tee-se-itse-puutarhakiinnitys: valokuvat ja ominaisuudet
Metallirakenteiden rakentamiseen käytetään erilaisia materiaaleja. Siksi suunnitteluratkaisuja on niin paljon. Tämän todistavat lukuisat Internetissä olevat kuvat metallista tehdystä tee-se-itse-puutarhakiinnityksestä.
Rakenteiden valmistuksessa käytetään seuraavia materiaalivaihtoehtoja:
- metallikulmat;
- neliön profiilit;
- I-palkit (teräspalkit);
- putket (pyöreä profiili);
- tuotemerkit (alumiiniprofiilit).
Huomautus! Näihin elementteihin perustuen molemmat yhtä menestyksekkäästi penkit perheen tyyppi ja pienet vauvan keinutuolit.
Ennen kuin aloitat puutarhakiinnityksen piirustusten suunnittelun ja kehittämisen omin käsin metallista, sinun on päätettävä tulevan suunnittelun tyypistä. Voit tehdä tämän tutkimalla nykyaikaisen teollisuuden tarjoamia valmiita järjestelmiä.
Kuinka tehdä puutarhan keinu omin käsin metallista: valokuvia ja esimerkkejä tuotteista
Jos olet hämmentynyt siitä, miten tehdä tee-se-itse-keinu lapsille, ota esimerkkinä tehtaalla tehdyt vaihtoehdot.Tällaisilla tuotteilla on oikein laskettu muotoilu ja niitä edustaa suuri määrä mielenkiintoisia suunnitteluratkaisuja. Sinun tarvitsee vain luoda samanlainen keinu romumateriaaleista.

Vauvan keinuripustettu metallirungosta ketjuihin
Tuotteiden luokitus valmistajilta:
- vapaasti seisovat puutarharakenteet. Tämän tyyppinen tuote voidaan asentaa mihin tahansa sopivaksi, koska ne eivät vaadi lisätukea tai ripustimia. Tämäntyyppinen keinu voi olla paitsi metallia myös puinen;
- sohvan keinu, jota voivat käyttää sekä aikuiset että lapset. Toisessa tapauksessa tuote antaa useille hiihtäjille mahdollisuuden istua penkillä samanaikaisesti. Rakenteet ovat mukavia ja turvallisia, ja niissä on mukava selkänoja. Kovien sateiden aikana tai talvella keinu voidaan helposti poistaa, koska sen rakenteessa on lohkorakenne. Tuotteet voivat olla metallia tai puuta;

Tehdas Puutarha keinu metalli, asennettu yksityisen talon puutarhaan
Kuva puutarhakiinnityksestä omin käsin, luotu taomalla
Tämän tyyppiset keinut tehdään pääasiassa maalaistalojen alueille. Näiden tuotteiden luomiseen tarvitset taitoja hitsauskoneen ja metallin käsittelemiseen tai voit palkata avustajan. Tällöin keinu on kestävämpi ja voimakkaampi kuin muut metallirakenteiden vaihtoehdot. Lisäksi saat alkuperäisen tuotteen, josta voi tulla mielenkiintoinen koristeellinen lisäys talon maisemaan ja ulkoa.
Taomalla valmistetut metallituotteet ovat kalliita. Mutta se on perusteltua sen erinomaisilla koristeellisilla ominaisuuksilla.
Hyödyllisiä neuvoja! Käytä samanlaisia malleja ylläpitääksesi kodin ja ympäröivän alueen kokonaissuunnittelua. Aidat, ikkunatangot, katuvalot, penkit, parvekkeet, portaiden kaiteet, katokset tai huvimajat on rakennettu tällä tekniikalla. Saavuttaaksesi yhtenäisyyden suunnittelussa, käytä samaa tai samanlaista mallia kaikissa luetelluissa tuotteissa väärentämällä.
Ominaisuudet puutarhan keinu omilla käsillä valmistettu metallista
Metallirakenteilla on eniten etuja muihin materiaaleihin perustuviin tuotteisiin verrattuna. Siksi Internetissä on niin paljon valokuvia ja piirroksia lasten keinusta omin käsin metallista.
Metallipohjaisen swingin tekniset ja toiminnalliset ominaisuudet:
- pitkä käyttöikä on yksi tärkeimmistä eduista. Metalli ei ole altis sellaisten tekijöiden kuin hajoamisprosessien haitallisille vaikutuksille. Kuivumisesta johtuva murtuminen on myös suljettu pois;

Korikoruinen metallikehyksinen swing-kotelo tulee epätavalliseksi sisustukseksi yksityisen talon pihalle
- käytännöllisyys - rakennuksille tuhoavat ympäristövaikutukset (ultraviolettisäteily, sade ja muut sademäärät) eivät voi vaikuttaa materiaalin lujuusominaisuuksiin;
- luotettavuus - metallin lisääntyneen lujuuden ja kestävyyden vuoksi tuloksena olevat rakenteet ovat erittäin vahvoja;
- budjetti - ostettavan metallin kustannukset ovat alhaisemmat kuin korkealaatuisella puulla (heikkolaatuinen puu ei voi tarjota tuotteen vahvuutta, joten sitä ei käytetä swingin luomiseen);
- erilaisia muunnelmia - valikoima nykyaikaisia keinuja, jotka voidaan ostaa tai tehdä itsenäisesti, on erittäin laaja, mikä antaa sinulle mahdollisuuden valita malli, joka vastaa täysin yksilöllisiä mieltymyksiä.
Miinukset kotitekoisesta metalli-swingistä
Huolimatta metallituotteiden ulkoisesta houkuttelevuudesta, he eivät yksinään pysty sopimaan harmonisesti kesämökin maisemaan, kuten puusta tehdyssä keinussa. Tämä edellyttää niiden suunnittelun tukemista tyylillisesti lisäämällä vastaavia elementtejä talon tai puutarhan ulkopuolelle.
Huomautus! Metallirakenteet voidaan tehdä käsin, mutta sinun on opiskeltava hitsaustekniikkaa ja hankittava asianmukaiset taidot sekä ostettava tai vuokrattu tarvittavat laitteet.
Yksi materiaalin positiivisista ominaisuuksista, nimittäin metallin kovuus ja sen vahva rakenne, voidaan myös pitää haittana. Toisaalta vahva ja vankka keinu on se, mitä tarvitset kesäasunnossa, ja toisaalta se voi aiheuttaa vakavia vammoja, joita henkilö voi saada iskun seurauksena. Metalli on moninkertaisesti vaarallisempi kuin puu, joka on luonteeltaan pehmeää.
Aiheeseen liittyvä artikkeli:
Tee-se-itse-keinu kesämökille: valokuvat ja vaiheittaiset ohjeet. Suositukset keinojen valmistamiseksi lapsille ja aikuisille kesämökissä. Materiaalien käyttö käsillä rakenteiden luomiseen.
Metallituotteet ovat korroosiota. Ruoste voi johtaa asteittaiseen heikkenemiseen, joten rakenteen kestävyys voidaan varmistaa vain asianmukaisella hoidolla. Korroosion esiintymisen estämiseksi riittää, että metalli peitetään oikeaan aikaan metallipinnoille ja ulkotiloihin tarkoitetulla maalikoostumuksen kerroksella.
Piirrokset ja valokuvat puutarhakiinnityksestä omin käsin metallista: mitat ja tekniikka
Tee-se-itse-puutarhakiinnityksellä voi olla erityyppinen runko. Tämän ominaisuuden perusteella erotetaan seuraavat suunnitteluvaihtoehdot:
- kokoontaitettava;
- hitsattu.
Hitsatut keinutyypit edellyttävät hitsauskoneen ja muiden erikoislaitteiden käyttöä. Tämän seurauksena saat vahvan ja jäykän tukiosan, jonka avulla voit käyttää rakennetta useita vuosia ilman terveysriskejä.
Jos et tiedä miten käsitellä hitsauslaitetta, valitse kokoontaitettava keinu. Rungon kokoamisperiaate on tuotteen kaikkien osien kiertäminen pultteilla ja muttereilla. Kuka tahansa voi tehdä tämän työn.
Huomautus! Ajan myötä käsintehdyissä metallipuutarhakiinnityksissä kierteet painon alaisissa liitoksissa ja muut kuormat löystyvät vähitellen. Seurauksena on vastahyökkäys (vapaa tila). Se voi aiheuttaa rakenteen tuhoutumisen, minkä seurauksena henkilö voi loukkaantua. Tämän estämiseksi kiinnitä elementit ristikoilla ja lukkomuttereilla. Älä unohda kiristää liitoksia säännöllisesti avaimella.
Lyhyt luokitus puutarhakiinnikkeestä, joka on valmistettu metallista
Helpoin tapa on luoda rakenne puutarhakiinnityksen valmiiden piirustusten mukaan omin käsin metallista.Kaaviot huomioon ottaen voit nähdä, että tukien kokoonpano on erilainen.
A-muotoinen runkopohja koostuu kahdesta poikkitangosta, jotka on kytketty toisiinsa yläosassa. Niiden keskellä on hyppääjä. Se on suunniteltu lisäämään rakenteen jäykkyyttä. On L-muotoisia tukia, joissa ei ole nukkaa.
Toinen tukityyppi on poikkipalkilla varustetut elementit, jotka muodostavat U: n muotoisen pohjan. Tällaisen rakenteen luominen vie vähemmän vaivaa, mutta keinu on vähemmän vakaa. Niiden toiminta on pitkäaikaista ja turvallista, jos pohjatuet sijoitetaan syviin reikiin maahan ja hyvin betonoidaan.
Lisäksi kaikki metallituotteet voidaan jakaa kahteen ryhmään:
- paikallaan - keinutuki on betonoitu luotettavasti;
- kannettava - kiinnitetty ankkuripultilla tai taivutetulla vahvistuksella, joka on isketty maahan.
Tee-se-itse-swing-tekniikka profiiliputkesta
Riippuvia keinuja pidetään yleisimpinä suunnitteluvaihtoehtoina. Ne ovat mukavia, käytännöllisiä ja mukavia. Varusta tuote katoksella suojaamaan sitä suoralta auringonvalolta. Tämän ansiosta istuin ei ylikuumene, ja ajo-prosessi muuttuu entistä mukavammaksi.
Jotta voit tehdä katoksen lasten keinulle, joka on valmistettu metallista omin käsin, voit käyttää tekstiilejä, pressua, puuta pehmeillä laatoilla katon muodossa. Mutta sopivin materiaali on solupolykarbonaatti. Polykarbonaattilevyt ovat läpinäkyviä, joten se ei ole pimeä katoksen alla. Samalla ne hajottavat täydellisesti suoraa auringonvaloa.
Luettelo tarvittavista työkaluista ja materiaaleista
Ennen kuin teet puutarhakiinnityksen omin käsin, varmista, että sinulla on asianmukaiset työkalut:
- hiomakoneet;
- rakennuksen taso ja mittanauha;
- hitsauskone ja suojavarusteet (koneen kanssa työskentelyä varten);
- sähköpora;
- sarja poroja, jotka on suunniteltu toimimaan metalli- ja puupintojen kanssa;

Matkapuhelin roikkuva keinutuoli metallirungolla
- ruuvimeisseli;
- sarja jakoavaimia;
- itsekierteittävät ruuvit, jotka on suunniteltu kiinnittämään polykarbonaattilevy.
Työtä varten sinun on ostettava myös materiaaleja, nimittäin:
- metalliprofiili (putket ja kulma);
- laudat tai puupalikat istuimen kokoonpanoa varten;
- pultit, joissa on puoliksi upotetut päät (istuimen kokoonpanoa varten);
- pulttien aluslevyt ja mutterit (istuimen kokoonpanoa varten);
- ruostumattomasta teräksestä valmistetut tai galvanoidut kiinnittimet (sulkurenkaat, laakeripukit, silmukkapultit, ketjut);
- pitkät ankkurit tai taivutetut tukitangot (rakenteen kiinnittämiseksi alustaan);
- solupolykarbonaattiarkki (katoksen katto);
- rungon suoja-aineet (pohjamaali, jolla on korroosionesto-ominaisuudet ja metallipintojen maalikoostumus);
- suojaavat aineet puulle, josta istuin muodostetaan (tahra, lakkakoostumus, harjasarja pintakäsittelyyn).

Suunnitteluvalikoima, kun luodaan keinu metallista omin käsin, on laaja ja sitä rajoittaa vain mielikuvitus
Piirustukset ja valokuvat keinusta omin käsin metallista: valmisteluvaihe
Tässä vaiheessa valitaan alue swingin asentamiseksi, rakenteen mitat määritetään. Ripustuspenkin optimaalinen koko on 1,5 m. Tämä riittää kahden hiihtäjän sijoittamiseen tai makuulle keinulle.
Hyödyllisiä neuvoja! Muista tehdä aukko telineen rakenteen ja penkin sivun välille.Pienin koko on 300 mm.
Nämä tiedot auttavat asennuksessa. Tämän rakenteen ansiosta rakenne saavuttaa vaaditun jäykkyyden. Valitsemalla oikean pohjaleveyden voit rakentaa erittäin vakaan tuotteen. Ota työsi perusta sääntö: mitä suurempi kulma on alustan ja sivujen välisen kolmion kärjessä, sitä vakaampi rakenne on.

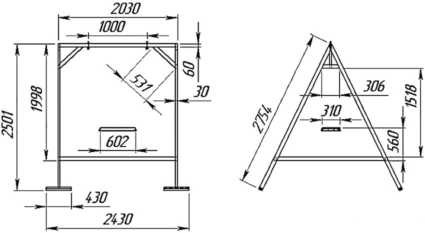
Kaavio metallista keinurungosta A-muotoisilla pylväillä: 1 - laippa; 2 - mutteri; 3 - poikkipalkki; 4 - silmämutteri; 5 - tukirungon tuki; 6 - kehystuki; 7 - pultti
Yleiset mittaparametrit lasketaan yksilöllisesti. Polykarbonaattivisiiriä ja riippupenkkiä koskevat indikaattorit on sovitettu niihin. Asiantuntijat suosittelevat, että on pakollista laatia piirustukset, joissa ilmoitetaan kaikki rakenteen mittaparametrit, jotta materiaalin kanssa työskentely on helpompaa. Myöhemmin tämä säästää virheiltä ja säästää aikaa.

Erilaisten metallista valmistettujen siirrettävien tuolien koot. Samanlaisia malleja voidaan tehdä omin käsin
Tee itse kokoonpano profiiliputken kääntämisen piirustusten mukaan: runko-osa
Rungon kokoaminen on suositeltavaa aloittaa sivuosista. Tätä varten sinun on merkittävä piirustusten perusteella putket ja leikattava ne hiomakoneella. Tarkista mittatarkkuus ennen kokoonpanoa. Kaikkien neljän sivuseinäelementin on oltava samanlaisia toistensa kanssa. Ne on kytkettävä pareittain hitsausmenetelmällä. Seurauksena on, että sinulla on kaksi identtistä L-muotoista osaa.
Lisäksi jokaisen osan yläosassa oleva terävä pää sahataan yhdellä tasolla. Tämä toimenpide suoritetaan siten, että voidaan muodostaa pieni tukialue vaakapalkin kiinnittämiseksi.
Hyödyllisiä neuvoja! Käytä ennalta valmistettua mallia työhön.
Tukikehyksen leveys (lyhyt sivu) tulisi mitoittaa vastaamaan etäisyyttä, joka muodostuu rakenteen sivuosien pariksi liitettyjen putkien välille. Hitsauslaite hitsasi sivuseinät suorakulmaiseen tukirunkoon ja sitten vaakasuoraan poikittaispalkkiin (sivupylväiden yli).
Kaikkien runko-osan kokoonpanovaiheiden on noudatettava tiukasti geometrian lakeja: sivupylväät ovat pystysuunnassa, penkin ripustamiseen tarkoitettu vaakasuora poikkipalkki (palkki) kulkee pohjan suuntaisesti. Hallitse kokoonpanoparametreja rakennustasolla.
Puisen kääntöistuimen asennustekniikka
Penkin kokoaminen on tärkeä rakennusvaihe. Varsinkin jos luot lasten keinu metallista piirustusten mukaan omin käsin. Istuimen pohjassa on oltava teräskulmasta valmistettu runkopohja. Saada haltuunsa penkki mukavalla selkänojalla, aseta se tiettyyn kulmaan suhteessa istuimeen. Optimaalinen kulma on 120 °.
Tee kulmasta oikea taivutus tekemällä kolmion leikkaus (60 °) yhdelle hyllylle.Istuimen runko on valmistettu suorakaiteen muotoisesta metalliprofiilista hitsausmenetelmää käyttäen. Sivuosat tulisi liittää reuna-alueita pitkin vaakasuuntaisilla hyppyjohtimilla. Liitäntävyöhykkeen tulisi olla myös paikassa, jossa rakenne taipuu.
Hyödyllisiä neuvoja! Vaihtoehtoisesti voit parantaa rakennetta lisäämällä käsinojat istuimeen. Ne lisäävät mukavuutta ja turvallisuutta.
Olitpa tekemässä DIY-swing-mallia lapsille tai aikuisille tarkoitettua tuotetta, selkänojan ja istuimen tulisi olla täysin sileät. Näihin tarkoituksiin sopivat puuharkot tai -levyt, jotka on käsitelty huolellisesti hiekkapaperilla (ensin karkea jyvä, sitten hieno).
Levyt leikataan haluttuun kokoon ja kiinnitetään runkoon esiporattujen reikien kautta pultteilla siten, että niiden päät ovat syventyneet. Ennen rakenteen lopullista kokoamista puuelementit käsitellään antiseptisellä aineella ja lakkauksella, ja metallielementit - pohjamaalilla ja maalilla.
Silmupultit on asennettu penkin runko-osan kulmiin. Ketjut kiinnitetään näiden pulttien korvakkeisiin sulkurenkailla tai kierteillä. Penkin ripustamiseksi sinun on myös asennettava silmukkapultit tuotteen kulmiin tai istuimen reunojen yli.
Visiirin tekeminen rakenteelle
Visiirin valmistusprosessi on valinnainen. Mutta jos luot keinumallin omin käsin lapsille, sinun tulisi miettiä mukavuutta ja suojaa paahtavalta auringolta sekä sateelta.
Tätä varten sinun on tehtävä suorakulmainen rakenne, joka perustuu metallirunkoon, vahvistettuna hyppääjillä. Solupolykarbonaattilevy on kiinnitetty rakenteen päälle. Visiiri asennetaan pieneen kulmaan, minkä vuoksi saostuma virtaa vapaasti alas.
Suorita visiirin runko-osa loppuun ottamalla useita metalliprofiileja, joissa on pieni neliön muotoinen osa. Kaikki nämä elementit kiinnitetään hitsaamalla, minkä jälkeen visiiri voidaan kiinnittää swingin rungon yläosaan. Tämä tehdään myös hitsauskoneella.
Kun kaikki kokoonpanotyöt on saatu päätökseen, rakenne käsitellään lopullisesti. Keinut on päällystetty pohjamaalilla, jonka jälkeen se maalataan haluamallasi värillä.
Rakentamisen viimeinen vaihe
Kun maali on täysin kuiva, visiirikehykseen kiinnitetään polykarbonaattilevy. Käytä tätä varten itsekierteittäviä ruuveja ja tiivistealuslevyjä.
Hyödyllisiä neuvoja! Peitä arkkien pääty polymeeriprofiililla. Se suojaa onttoa polykarbonaattirakennetta hyönteisiltä ja pölyltä, säilyttää sen kauneuden ja siisteyden.
Laaja värivalikoima on yksi polykarbonaatin eduista. Voit valita visiirin värin vastaamaan swingin väriä tai päinvastoin tehdä siitä kontrastin. Lisäksi materiaalin värillä on suora vaikutus auringonvalon leviämistasoon.

Puinen toimii pohjana metallisen swingin ripustamiseen pergola
Lopputuote on kiinnitettävä tukevasti betonialueelle. Jos rakennetta rakennetaan tiheälle alustalle, rungon kiinnittämiseen voidaan käyttää useita tukitangoista tehtyjä kiinnikkeitä. Ensinnäkin puristimien päät on teroitettava, mikä mahdollistaa tankojen ajamisen 0,5 m syvälle maahan ilman ongelmia.
On parempi käyttää ankkuripultteja kiinnittiminä betonialueella. Ne on asennettu valmiiksi sopiviin paikkoihin.Kun olet kiristänyt mutterit, katkaise ylimääräinen lanka jauhimella. Tämä viimeistelee rakenteen rakentamisen.



































