Để tổ chức một góc thoải mái cho chế biến gỗ, không nhất thiết phải mua một chiếc bàn chuyên dụng. Có kỹ năng cơ bản trong việc làm việc với vật liệu này, bạn có thể làm một bàn làm việc mộc bằng tay của riêng bạn. Bài viết chứa thông tin sẽ giúp bạn dễ dàng và nhanh chóng đối phó với công việc này: kích thước tối ưu của cấu trúc và bản vẽ, các khuyến nghị hữu ích và công nghệ từng bước với mô tả chi tiết về tất cả các hành động, cũng như hình ảnh trực quan.

Với những kỹ năng tối thiểu, bạn có thể làm mộc Bàn làm việc tự làm
Nội dung
- 1 Bàn làm việc: Đây là yếu tố chính của xưởng đồ gỗ
- 2 Vật liệu làm khung và mộc bàn bìa
- 3 Các loại bàn làm việc chính: ảnh chụp cấu trúc và đồ đạc cho các mục đích khác nhau
- 4 Cách tính kích thước của bàn làm việc trong nhà để xe: kích thước được khuyến nghị
- 5 Nơi tốt nhất để lắp đặt bàn làm việc tự chế
- 6 Công nghệ tạo bàn làm việc mộc tự làm: bản vẽ, kích thước và quy trình
Bàn làm việc: Đây là yếu tố chính của xưởng đồ gỗ
Trong bất kỳ xưởng nào họ làm việc với gỗ đều có bàn làm việc mộc. Bất kể vật liệu được xử lý như thế nào (thủ công hoặc sử dụng công cụ điện), sự hiện diện của yếu tố này không chỉ cho phép tổ chức thành thạo không gian làm việc mà còn làm cho nó trở nên thuận tiện và thoải mái hơn. Tất cả những điều này cuối cùng ảnh hưởng đến kết quả. Trong điều kiện đó, năng suất của người chủ và chất lượng công việc của người đó tăng lên.
Bàn làm việc là bàn làm việc được sử dụng để gia công các sản phẩm từ gỗ một cách thủ công hoặc cơ khí. Thiết kế và các tính năng tiện dụng của nó được thiết kế để cho phép kỹ thuật viên thoải mái cố định các bộ phận ở các vị trí khác nhau cho các nhiệm vụ khác nhau.
Bàn làm việc cho phép bạn thực hiện các thao tác sau:
- lắp ráp các cấu trúc bằng gỗ;
- sản xuất các bộ phận bằng gỗ;
- gia công phôi bằng các chế phẩm đánh bóng và các phương tiện khác.

Bàn làm việc của một người tham gia là một chiếc bàn để một người thợ thủ công chế biến các sản phẩm gỗ
Ghi chú! Bàn làm việc của thợ ghép truyền thống được thiết kế để làm việc với gỗ, chiều dài của chúng không vượt quá 3-3,5 m. Để làm việc với các phôi dài hơn, bạn sẽ phải sử dụng bàn làm việc của thợ mộc.
Thiết bị bàn làm việc mộc: đặc điểm thiết kế
Bàn làm việc mộc đơn giản nhất bao gồm 2 yếu tố là bàn làm việc (mặt bàn) và đôn (khung thực hiện chức năng chịu lực).Bàn làm việc truyền thống nhất thiết phải được trang bị một phó phòng. Tùy thuộc vào vị trí, chúng có thể ở phía trước hoặc cuối. Với sự trợ giúp của tấm che, các thanh gỗ được cố định ở vị trí cần thiết.

Thiết bị bàn làm việc mộc: 1 - kẹp trước; 2 - kẹp sau; 3 - trục vít; 4 - vòng xoắn; 5 - khay; 6 - sự nhấn mạnh; 7 - ổ cắm cho nêm; 8 - nêm; 9 - chân trước; 10 - chân sau; 11 - dây buộc (2 chiếc.); 12 - nêm (4 chiếc.)
Mặt bàn của xưởng, cũng như các hàm của vise, làm bằng gỗ, có lỗ. Chúng được sử dụng để cài đặt các điểm dừng và kẹp, có thể có chiều cao và kích thước phần khác nhau.
Trước khi làm việc, các điểm dừng được đặt trong một cấu hình nhất định để bộ phận có thể được đặt giữa chúng ở vị trí cần thiết. Sau khi phôi được lắp đặt, nó được nén bằng cách sử dụng cơ cấu trục vít được trang bị. Thiết kế này cho phép bạn cố định chắc chắn phần gỗ ở vị trí nằm ngang.
Cơ phó có thể được sử dụng để làm việc với các phôi có độ dày khác nhau. Các điểm dừng có độ cao khác nhau được cung cấp đặc biệt cho việc này. Kích thước của phần tử này được chọn để trong quá trình gia công chi tiết, nó không nhô ra ngoài rìa và không gây trở ngại cho bản gốc.
Vật liệu làm khung và mộc bàn bìa
Trong quá trình xử lý phôi gỗ, bề mặt làm việc phải chịu tải trọng nghiêm trọng, do đó, các yêu cầu tăng lên đối với nó. Cho dù đó là một chiếc ghế tự làm hay một băng ghế mộc gấp, cấu trúc phải chắc chắn và cứng nhắc.
Khung được chế tạo tốt phải chịu được tất cả các loại tải trọng:
- Tĩnh. Chúng phát sinh dưới tác động của một trọng lượng lớn nếu một phôi lớn được xử lý trên bàn.
- Động. Là một tác dụng phụ của các quá trình như khoan, cưa, va đập, v.v.
Các đặc tính sức mạnh của khung phụ thuộc vào các yếu tố như độ tin cậy của các chốt (đinh, bu lông, đai ốc, vít) và loại vật liệu mà nó được tạo ra. Bệ được làm bằng gỗ lá kim, chẳng hạn như gỗ thông. Mặc dù cây bồ đề hoặc cây phong cũng thích hợp cho những mục đích này.
Mặt bàn làm việc được làm bằng gỗ có chỉ số chịu lực cao:
- cây sồi;
- cây sồi;
- cây phong;
- tro, v.v.
Để tạo ra một tấm bìa mộc tự làm, các chuyên gia khuyên bạn nên lấy một tấm bảng có dán keo. Trong trường hợp này, bạn không phải mất nhiều thời gian và công sức cho việc lắp gỗ. Một tấm trống chính thức ở dạng bảng được dán sẽ loại bỏ nhu cầu cắt vật liệu, xử lý phần cạnh của nó, sau đó dán và căn chỉnh. Một chiếc khiên làm sẵn sẽ đắt hơn một chút, nhưng nó rất đáng giá.
Lời khuyên hữu ích! Trong quá trình làm việc với các thanh gỗ, bạn có thể vô tình làm hỏng tấm bìa bằng dụng cụ điện. Để tránh điều này, có thể làm thêm sàn cho mặt bàn làm việc từ ván ép hoặc ván sợi. Nó được cắt theo hình dạng và kích thước của nắp. Sẽ tốt hơn nếu sàn bảo vệ được làm cùng với bàn làm việc.
Các loại bàn làm việc chính: ảnh chụp cấu trúc và đồ đạc cho các mục đích khác nhau
Các bản vẽ bảng có thể tìm thấy trên Internet được trình bày rất đa dạng. Để chọn phương án tốt nhất cho việc tạo bàn làm việc tại nhà, tốt hơn hết bạn nên quyết định trước về loại cấu trúc và cấu hình của nó. Có một số loại bàn được sử dụng để làm việc bằng gỗ.
Cấu tạo đơn giản nhất có bàn làm việc kiểu cố định. Để tạo ra nó, bạn cần một bộ công cụ tối thiểu và một chút kiên nhẫn.Cấu trúc như vậy chủ yếu được sử dụng để gia công phôi gỗ có kích thước lớn.
Một thiết bị phức tạp hơn có bàn làm việc kiểu gấp. Các sản phẩm này khá nhỏ gọn. Trọng lượng của chúng không vượt quá 30 kg. Các cấu trúc như vậy được coi là di động và nếu muốn, chúng có thể dễ dàng di chuyển từ nơi này sang nơi khác. Trong bàn làm việc gấp, phần hỗ trợ dưới có thể được làm bằng kim loại. Điều này được thực hiện để tăng độ ổn định của cấu trúc. Bàn di động được thiết kế để làm việc với các mảnh gỗ nhỏ.
Bàn làm việc của Joiner cũng là composite. Trong trường hợp này, tất cả các yếu tố cấu trúc được cố định bằng các kết nối bắt vít. Ưu điểm của bảng này là tất cả các thành phần của nó có thể hoán đổi cho nhau. Mặt khác, bản vẽ bàn làm việc bằng ván ghép thanh khá phức tạp, công nghệ sản xuất của chúng cũng vậy. Chỉ một bậc thầy có kinh nghiệm mới có thể đối phó với nhiệm vụ này.
Trước khi bắt đầu tạo bàn làm việc, bạn cần chọn tùy chọn vise phù hợp. Trong trường hợp này, các chi tiết cụ thể của công việc trong tương lai phải được tính đến.
Có một số loại vise cho bàn làm việc bằng gỗ:
Bài viết liên quan:
Máy ép thủy lực tự làm: một công cụ đa năng từ kích
Lựa chọn kiểu và thiết kế của cấu trúc. Lựa chọn vật liệu và công cụ. Trình tự lắp ráp máy ép.
- Ghế - những thiết bị này hiếm khi được sử dụng, vì chúng được thiết kế cho những công việc nặng nhọc.
- Universal - được thiết kế để làm việc với các phôi nhỏ. Bu lông được sử dụng để cố định dây buộc này vào nắp bàn làm việc.
- Đặc biệt - cho phép bạn điều chỉnh vị trí của phôi theo cả chiều dọc và chiều ngang, giúp đơn giản hóa đáng kể công việc của người thợ.
- Thủ công - có thiết bị quay, quay và không quay.
Ghi chú! Trong một loại bàn tay cố định và xoay, chiều rộng của các hàm là 8 cm.
Cách tính kích thước của bàn làm việc trong nhà để xe: kích thước được khuyến nghị
Kích thước của cấu trúc được lựa chọn riêng, tùy thuộc vào sở thích của chủ sở hữu, cũng như có tính đến các loại công việc được đề xuất. Chiều rộng của các kết cấu điển hình trong khoảng 0,7-1,2 m và chiều dài từ 1,5-2 m Bàn làm việc là đơn và đôi. Sự khác biệt giữa các thiết kế này là chiều dài và số lượng ngăn kéo. Nếu bàn làm việc là đơn, trong trường hợp này, kích thước tối ưu của mặt bàn sẽ là 0,8x0,8x1,5m, trong kết cấu đôi, chiều dài được tăng lên 2,8m.
Chiều cao của bàn làm việc mệnh mộc được lựa chọn có tính đến sự phát triển của chủ nhân sẽ làm việc phía sau nó. Thông thường chỉ số này dao động trong khoảng 85 - 95 cm, khá đơn giản để kiểm tra tính đúng đắn của các phép tính. Nếu khi đứng trên bàn, chủ nhân có thể tự do tựa lòng bàn tay lên nắp bàn thì chiều cao được chọn chính xác. Điều rất quan trọng là không được nhầm với chỉ số này, vì thường xuyên kéo căng và uốn cong có hại cho lưng của một người và có thể dẫn đến mệt mỏi nhanh chóng.
Điều tương tự cũng áp dụng cho các cấu trúc kim loại, cũng có thể được sử dụng cho công việc của thợ khóa. Trong mọi trường hợp, bàn làm việc phải ổn định và rất bền. Độ dày tối thiểu của tấm bìa là 5 cm. Textolite hoặc linoleum được sử dụng làm vải bọc để bảo vệ mặt bàn khỏi bị hư hại. Trong các bàn làm việc của thợ khóa, bề mặt gỗ của nơi làm việc được bao phủ bởi một lớp vỏ thép. Độ dày tối thiểu của lớp phủ này là 5 mm.
Nơi tốt nhất để lắp đặt bàn làm việc tự chế
Hãy chắc chắn tính đến các tính năng của căn phòng trước khi tự làm bàn làm việc cho thợ khóa.Bản vẽ của cấu trúc tương lai, cũng như kích thước của nó, được chọn có tính đến tất cả các điều kiện:
- Loại xây dựng - cố định hoặc di động.
- Bàn làm việc có khu vực làm việc cố định với kích thước không đổi hoặc có nắp gấp.
- Bàn làm việc điền đầy chức năng là một thiết kế đơn giản dưới dạng bàn hoặc phiên bản chức năng có thêm ngăn kéo, kệ hoặc giá để dụng cụ.
- Cấu hình bảng - góc, thẳng hoặc hình chữ U.
- Tùy chọn lắp đặt là kết cấu treo tường hoặc bàn đứng.
Thông thường, có rất ít không gian trống trong ga ra hoặc xưởng. Theo khuyến nghị của các chuyên gia, cấu trúc gấp được ưu tiên khi tự làm bàn làm việc. Chúng chủ yếu là cố định và thường được lắp đặt gần tường. Trong trường hợp này, tốt hơn là sử dụng khu vực góc của căn phòng hoặc khu vực ít bị chiếm dụng nhất.
Nếu bạn có ý định tự tay mình làm một chiếc bàn làm việc di động nhỏ gọn thì bạn có thể lắp đặt ở bất cứ đâu. Sau khi sử dụng, cơ cấu gấp gọn chỉ đơn giản là được tháo ra nơi khác hoặc đẩy vào.
Quan trọng! Nếu phòng có cửa sổ hoặc có hệ thống thông gió, gió lùa có thể xảy ra. Không nên đặt bàn làm việc ở khu vực hoạt động của họ, vì điều này có thể gây ra các vấn đề về cổ và lưng, cũng như các cơ bị nóng lên trong quá trình làm việc.
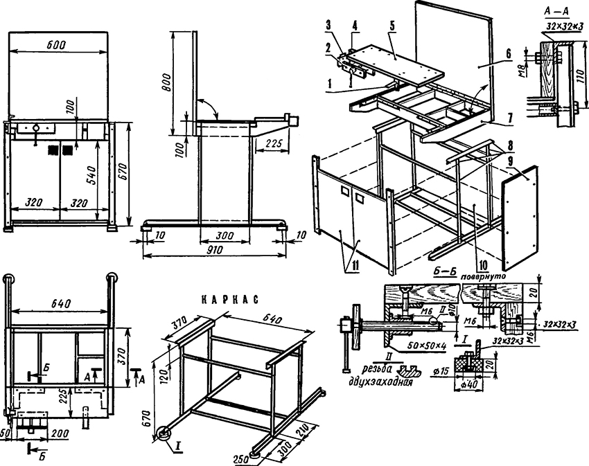
Công nghệ tạo bàn làm việc mộc tự làm: bản vẽ, kích thước và quy trình
Lựa chọn thuận tiện nhất cho nhà riêng hoặc nhà để xe là thiết kế nắp có bản lề. Không giống như bàn làm việc gấp, bề mặt làm việc của nó xoay chứ không mở ra. Phương án thiết kế này có cấu trúc hoàn toàn khác, mặc dù không kém phần tiện dụng và nhỏ gọn.
Khả năng di chuyển được thực hiện thông qua sự hiện diện của các bánh xe gắn ở phía dưới. Để ngăn chặn sự di chuyển tùy tiện của cơ cấu, nên sử dụng các con lăn có chức năng khóa. Phương án cuối cùng, bạn có thể lắp một cái nêm dưới bánh xe, nhưng tùy chọn này không quá tiện lợi và thiết thực.
Các ngăn kéo được lắp đặt bên phải của cấu trúc để thuận tiện cho việc cất giữ các vật dụng nhỏ. Nếu bàn được sử dụng bởi một người thuận tay trái, họ nên được đặt ở phía bên kia, để mọi thứ bạn cần đều nằm trong tầm tay. Ngoài ra, bàn làm việc được trang bị một giá đỡ đặc biệt. Nó được làm từ ván ép đục lỗ và được gắn ở mặt sau của tủ. Như vậy, có thể sử dụng tối đa bề mặt của bàn làm việc và tổ chức thêm không gian lưu trữ cho các dụng cụ nhỏ làm nghề mộc.
Bên trái hoặc bên phải (dành cho người thuận tay trái) có một ngăn mở trong cấu trúc. Nó thích hợp để đặt các thiết bị cao hẹp như máy khoan. Con lăn được gắn trên cạnh của mặt bàn giúp đơn giản hóa đáng kể việc xử lý gỗ dài và nhờ có ổ cắm nhiều ổ cắm, một số dụng cụ có thể được kết nối với nguồn điện cùng một lúc.
Bản vẽ bàn làm việc bằng gỗ tự làm và vật liệu cho công việc
Tập trung vào bản vẽ thiết kế, bạn cần phải làm tất cả các bộ phận cần thiết cho việc lắp ráp của nó. Kích thước tổng thể của bàn làm việc trong trường hợp này là 175 cm (chiều dài) và 76 cm (chiều rộng). Đặc điểm nổi bật của chiếc bàn này là có nắp ba lớp, giúp tăng độ cứng và độ bền. Tầng trên và tầng dưới được làm bằng ván ép với bề mặt nhẵn. Lớp giữa của mặt bàn là thiết lập kiểu, nó được hình thành từ các tấm ván.
Quan trọng! Bắt buộc phải để lại khoảng cách giữa các tấm ván ở lớp giữa của mặt bàn. Khoảng trống này là cần thiết để thanh ren có thể quay tự do.
Một bảng chứa danh sách các vật liệu cần thiết để tạo ra một bàn làm việc bằng gỗ ghép thanh:
| Loại vật liệu | Số lượng, chiếc. | Kích thước, mm |
| Tấm ván ép | 1 | 1,2x1,2 (8 mm) |
| 2 | 0,2x2,5 (8 mm) | |
| 3 | 1,2x2,5 (18-20 mm) | |
| 4 | 0,9x2,5 (25 mm) | |
| 3 | 1,2x2,5 (25 mm) | |
| Ván ép đục lỗ | 1 | 1,2x1,2 (8 mm) |
| Thanh ren (đinh tán) | 1 | M20 (180-200 mm) |
| Đai ốc khóa | 2 | M20 |
| Máy giặt | 4 | 20 mm |
| Chốt với đối tác | 4 | — |
| Xử lý ngăn kéo và mặt bàn gấp | 8 | — |
| Bánh xe nội thất với hỗ trợ phẳng để sửa chữa | 4 | — |
| Vít tự khai thác hoặc vít gỗ | 0,5kg | M8-M24 |
| Vít tự khai thác hoặc vít gỗ | 0,5kg | M50 |
Bàn làm việc của Diy joiner: lắp ráp đế
Trước khi làm bàn làm việc bằng gỗ, tốt hơn là bạn nên ước lượng trước khối lượng công việc và phác thảo quy trình. Hầu hết các bộ phận của bàn được cố định bằng các kết nối vít. Để thuận tiện cho quá trình lắp ráp, nên tạo sẵn các lỗ cho chúng trên ván ép ở những nơi thích hợp. Đối với những mục đích này, bạn cần sử dụng một mũi khoan, có đường kính nhỏ hơn khoảng 1/2 hoặc 1/3 so với đường kính của dây buộc.
Sau khi chuẩn bị đầy đủ các công cụ và vật liệu cần thiết, cũng như nghiên cứu kỹ lưỡng bản vẽ của bàn làm việc bằng gỗ, bạn cần phải thực hiện tất cả các chi tiết của kết cấu. Máy cưa vòng thích hợp để cắt gỗ và ván ép. Sau đó, phần cuối nhất thiết phải được chà nhám để các cạnh của tất cả các phần tử được mịn. Điều này không chỉ đơn giản hóa quá trình lắp ráp mà còn tránh các vấn đề với việc ghép nối các bộ phận.
Trước hết, cơ sở được lắp ráp. Nó bao gồm một tấm đế nơi sẽ lắp đặt một bộ ngăn kéo, một khu vực mở cho thiết bị và chất làm cứng để gia cố cấu trúc. Để làm điều này, bạn cần phải lắp ráp khung và cố định tấm trên đó. Để sửa chữa, hãy sử dụng ốc vít M50.
Quan trọng! Chỉ gỗ xẻ khô mới được sử dụng để làm việc. Độ ẩm gỗ tối ưu là 12%.
Cách làm bàn làm việc bằng gỗ bằng tay của chính bạn: lắp đặt bệ và mặt bàn
Bước tiếp theo là cài đặt các bảng phụ. Trong quá trình lắp ráp các yếu tố này, bắt buộc phải tính đến ván ép, được gắn vào phía sau của cấu trúc, phải được cố định chính xác trên khung.
Cũng cần lưu ý rằng mặt phẳng bên ngoài của bệ bên trái, được sử dụng như một giá đỡ, dài hơn phần bên trong của nó. Để làm cho bàn làm việc tự làm cứng cáp hơn, phần tử này phải được cố định không phải trên tấm đế mà được cố định trên khung. Bản thân các tủ được lắp đặt trên một tấm đế. Đối với điều này, hai loại ốc vít được sử dụng. Mặt phẳng đáy được cố định bằng vít M20-M24. Sử dụng các góc cho các mặt bên trong.
Sau khi lắp đặt các tấm đá lề đường, phần giữa phải được xác định chính xác trên thành bên trong của chúng. Đánh dấu này là bắt buộc để cắt các lỗ chữ U cho thanh trục. Điều này phải được thực hiện sao cho tâm của các lỗ này nằm cách mặt phẳng dưới của nắp trên trên bệ một khoảng 2,2 cm.
Khi hoàn tất, bạn có thể trượt thanh ren qua các lỗ trên bốn thanh thẳng đứng. Đồng thời, các đầu của nó phải nhô ra khỏi bàn làm việc khoảng 4-5 cm. Chúng được cố định (không thắt chặt) bằng khóa và vòng đệm.
Sử dụng kẹp hoặc vít, bạn cần lắp các dải đỡ cho mặt bàn. Chúng sẽ được đặt tạm thời ở đây - chỉ để có thể căn chỉnh vị trí của mặt bàn và mặt phẳng của nó theo chiều ngang. Tiếp theo, ba lớp bìa được lắp ráp, được cố định bằng vít và keo dính. Sau đó, các thanh được loại bỏ và kết quả được kiểm tra. Mặt bàn nên xoay tự do.
Sau đó, bề mặt bên của nắp (cả quay và đứng yên) được gia cố bằng đường ray. Cuối cùng, bạn cần cài đặt các chốt xoay và chốt khóa.
Giai đoạn cuối cùng của việc lắp ráp một bàn làm việc bằng gỗ
Khi tất cả các yếu tố của phần khung được lắp ráp, bạn có thể bắt đầu lắp đặt các hộp và phụ kiện. Trước hết, bạn cần lắp các thanh dẫn vào tủ ở bên phải. Để làm việc dễ dàng hơn, tốt hơn là sử dụng các tấm chèn tạm thời dưới dạng tấm gỗ.
Thay vì những thanh ray tự chế bằng gỗ, bạn có thể sử dụng hệ thống tay quay được sản xuất sẵn của nhà máy. Các phụ kiện như vậy (có chất lượng cao) hoạt động âm thầm và đáng tin cậy. Các hướng dẫn này có thể được thiết kế cho cả phần mở rộng toàn bộ và một phần. Tiếp theo, các hộp lưu trữ được lắp ráp. Đối với điều này, vít và chất kết dính làm từ gỗ được sử dụng. Kích thước của các mặt tiền được lựa chọn có tính đến kích thước của tủ.
Quan trọng! Bắt buộc phải để lại một khoảng cách nhỏ giữa các mặt tiền (khoảng 1-3 mm), nếu không các ngăn kéo sẽ không trượt ra ngoài tốt.
Như một bổ sung chức năng, một thanh di động có thể được lắp đặt trên miếng đệm, dọc theo đó một hoặc nhiều con lăn dẫn hướng sẽ di chuyển. Số lượng của chúng phụ thuộc vào loại công việc sẽ được thực hiện trong xưởng. Để cho phép con lăn di chuyển tự do lên xuống, một rãnh được tạo trên thanh di động cho nó, và sau đó một đai ốc cánh được lắp đặt, nó sẽ hoạt động như một vít kẹp.
Con lăn được lắp ở phần trên của thanh di động. Để làm điều này, hãy sử dụng giá đỡ hình chữ U. Nó nhất thiết phải có các rãnh hoặc lỗ trên các mặt dành cho trục con lăn.
Đôi khi những người thợ thủ công sử dụng các thủ thuật mộc khác và các thiết bị tự chế tạo bằng tay của chính họ trở thành một bổ sung tuyệt vời cho bàn làm việc và các thiết bị khác:
- giá đỡ và giá đỡ nhỏ gọn cho máy cắt;
- điểm dừng trượt cho cưa xẻ thịt;
- miếng đệm từ tính trên hàm của kẹp (ống);
- dụng cụ tạo lỗ góc chính xác bằng mũi khoan;
- thanh dẫn hướng cho máy cưa vòng;
- máy để bàn làm bằng MDF cho máy chà nhám lệch tâm, v.v.
Tiếp theo, bạn cần lắp dụng cụ làm mộc lên bàn làm việc bằng tay của chính mình. Khi lắp đặt thiết bị điện trên nắp có bản lề, bắt buộc phải giữ thăng bằng. Không tải chỉ một bên hoặc một góc của bàn làm việc. Các vít định vị được làm chìm ít nhất bằng 2/3 độ dày trong phần trục của mặt bàn. Điều này cho phép bạn đạt được sự cố định đáng tin cậy, vì ván ghép điện có rất nhiều trọng lượng. Ở các khu vực bên, nơi khu vực làm việc vẫn cố định, dây buộc này có thể kéo dài qua toàn bộ độ dày của vỏ bọc.
Ở dạng hoàn thiện, một bàn làm việc tự chế với mặt bàn quay và thiết bị được lắp đặt trên đó rất tiện lợi và chức năng. Để bảo vệ gỗ khỏi tác động tiêu cực của độ ẩm, bạn nên phủ một lớp sơn lót hoặc thậm chí là sơn. Tất cả các bộ phận được xử lý ngay cả trước khi lắp ráp bàn làm việc và phải được làm khô kỹ lưỡng. Tranh cũng sẽ cải thiện giao diện của máy tính để bàn xưởng của bạn.































































































